Smooth Top Electric Range

Owners use and care guide
MER245W | MER245SS
Congratulations on the purchase of your new Marathon Electric Range!
To activate your Warranty, please register your appliance at www.stirlingmarathon.com or by completing and mailing the enclosed Warranty Registration Card. We are confident you will have years of hassle free enjoyment and ask that you please retain the Use & Care Guide for future reference and your safety.
Before installing please, read your Use & Care guide carefully and pay special attention to the Safety & Warning information outlined in the following pages.
For immediate assistance: 1-844-309-9777
www.stirlingmarathon.com
Cod:0040305734
Important Safety Information
SUFFOCATION HAZARD AND RISK OF CHILD ENTRAPMENT
To avoid the possibility of child entrapment, please take the following precautions before discarding your old electric range
Remove the oven door completely from the electric range.
Never allow children to operate, play with, or crawl inside the electric range.
BEFORE FIRST USE
It is very important that you review this Owner’s Manual very carefully before you plug in or use your new appliance.
Your appliance must be correctly installed as detailed in this Manual in order to avoid the risk of fire, electrical shock or injury.
DANGER!
- It is recommended that a separate circuit, serving only your appliance be provided.
- Never clean appliance parts with flammable fluids. These fumes can create a fire hazard or explosion. Never use or store gasoline or other flammable vapors or liquids inside or in the proximity of this appliance, failing to do so may result in a fire hazard or explosion.
- Before cleaning or servicing this appliance, unplug the appliance completely from the electrical outlet. Failure to do so can result in electrical shock or death.
- Do not attempt to repair or replace any part of your appliance unless it is specifically recommended in this Manual. All other servicing should be referred to a qualified Service Technician.
WARNING!
- For your safety, this appliance should never be used as a source of heat or space heating. The stove top elements should not be operated without proper cookware.
- All openings in the wall behind the appliance and floor under the appliance shall be sealed.
- Keep appliance area clear and free from combustible materials, gasoline, and other flammable vapors.
- Do not obstruct the flow of ventilation air around the appliance.
- Always disconnect the electrical supply to the appliance before servicing.
- When removing appliance for cleaning and/or service:
- Disconnect AC power supply.
- Carefully remove the range by pulling backwards
CAUTION!
- Do not abuse the oven door (e.g. standing, sitting, or leaning on them). This can result in potential hazards and /or injury.
- It is important for the appliance to be level in order to work properly.
- Never allow children to operate, play with or crawl inside the appliance.
- Your range must be wired and fused to meet the requirements of the Canadian Electrical Code. Please consult your local electrical authority for further details.
- Replacement Parts – Only authorized replacement parts may be used in performing service on the range. For replacement parts contact us at [email protected].
Parts Description

Backguard
1. Surface Cooking Control
2. Oven Thermostat
3. Electronic Clock with minute timer
4. Oven Function Selector
Cooking Surface
5. 6″ Radiant elements (2)
6. 8″ Radiant elements (2)
7. SCHOTT CERAN® cooktop
8. Easy Clean upswept cooktop
Oven
9. 6-pass Broil Element
10. Oven light
11. Oven Racks (2)
12. Hidden Bake Element
Floor Level
13. Power Cord
14. Removable Storage Drawer
15. Anti-tip device
16. Levelling Legs
Installation Instructions
NOTICE: Before you use this range for the first time: The Bake and Broil elements have a protective coating, which must be burned off before use. To do this, open the oven door and set the temperature control knob to 450°F. Turn the function selector to the Bake element and the Broil element separately to approximately 15 minutes. The burners also have a protective coating, which must be burned off before use. To do this, set the burner selector to the maximum setting 5 minutes. It is important to ensure adequate ventilation. Switch off the burners and allow cooling completely.
IMPORTANT: This range is designed and manufactured solely for the cooking of domestic (household) food and is not suitable for any non domestic application and therefore should not be used in a commercial environment. The range warranty will be void if the range is used within a non domestic environment i.e. a semi commercial, commercial or communal environment
Important Precautions and Recommendations
Carefully unpack the and ensure there is no damage to the oven, cooktop or structure and that the oven door opens and closes properly. Remove all packing materials Packing elements (i.e. plastic bags, polystyrene foam, packing straps, etc.) and keep out of reach of children to prevent possible serious injury. The range has been thoroughly tested for safe and efficient operation. However, as with any appliance, there are specific installation and safety precautions that must be followed to ensure safe and satisfactory operation.
- Do not attempt to modify the technical characteristics of the appliance as this may become dangerous to use.
- Do not carry out cleaning or maintenance operations on the appliance without having previously disconnected it from the electric power supply.
- After use, ensure that the knobs are in “OFF” position.
DO NOT OPERATE THE APPLIANCE BAREFOOTED.
- Keep children away from the range when it is in use.
- Fire Risk! Do not store flammable materials in the oven or in the bottom drawer.
- Fire Risk! Do not attempt to dry clothing or any other type of textile in the oven or in the bottom drawer.
- Make sure that electrical cables connecting other appliances in the proximity of the range cannot come into contact with the elements on the cooktop or caught in the oven door.
- DO NOT line the oven walls or oven bottom or racks with aluminum foil
- Do not place shelves, pans, backing trays, broil tray or other cooking utensils on the bottom of the oven chamber. Always place on an oven shelf.
- The manufacturer declines all liability for injury to persons or damage to property caused by incorrect or improper use of the range.
- Burn Hazard! The oven and cooking accessories may become very hot during and after use. Make sure children are kept out of reach and warn them accordingly. To avoid burns use clothes and gloves when handling hot parts or utensils.
- Stand away from the range when opening the oven door. Hot air or steam which escapes can cause burns to hands, face, and/or eyes.
- Never clean the oven with any high-pressure steam cleaning devices.
- CAUTION: DO NOT cover the oven vent located underneath the rear 8″ burner with aluminum foil or any other material.
- When disposing of this appliance, or any old appliance, remove the door before disposal to prevent any possibility of entrapment, suffocation or injury.
- Do Not Use Water on Grease Fires – Smother fire or flame or use dry chemical or foam type extinguisher.
- Use Proper Pan Size – This appliance is equipped with one or more surface units of different size. Select utensils having flat bottoms large enough to cover the surface unit heating element. The use of undersized utensils will expose a portion of the heating element to direct contact and may result in ignition of clothing.
- Never leave surface units unattended at high heat settings as boil overs can cause smoke and grease spillovers may cause a fire resulting in damage or injury.
- Please ensure drip bowls are in place during use. Damage to the wiring or components underneath the cooktop may result if incorrectly installed.
- Protective Liners – Do not use aluminum foil to line oven bottoms, except as suggested in the manual.
- Glazed Cooking Utensils – Only certain types of glass, glass/ceramic, ceramic, earthenware, or other glazed utensils are suitable for range top service without breaking due to sudden change in temperature.
- Utensil Handles Should Be turned Inward and Not Extend Over Adjacent Surface Units – To minimize burns, ignition of flammable materials, and spillage due to unintentional contact with the utensil, the handle of a utensil should be positioned so that it is turned inward, and does not extend over adjacent surface units.
- Do Not Cook on Broken Cook-top – If cook-top should break, cleaning solutions and spillovers may penetrate the broken cook-top and create a risk of electric shock. Contact a qualified technician immediately.
- Clean Cook-top With Caution – If a wet sponge or cloth is used to wipe spills on a hot cooking area, be careful to avoid steam burn. Some cleaners can produce noxious fumes if applied to a hot surface
- Use Care When Opening Door – Let hot air or steam escape before removing or replacing food.
- Do Not Heat Unopened Food Containers – Build-up of pressure may cause container to burst and result in injury.
- Keep Oven Vent Ducts Unobstructed.
- Placement of Oven Racks – Always place oven racks in desired location while oven is cool. If rack must be moved while oven is hot, do not let potholder contact hot heating element in oven.
- Do Not Touch Surface Units, Heating Elements, Interior Surfaces of Oven – Surface units and heating elements may be hot even though they are dark in color. Area near surface and interior surf aces of an oven become hot enough to cause burns. During and after use, do not touch, or let clothing or other flammable materials contact surface units, areas near units or interior surfaces of oven until they have had sufficient time to cool. Other surfaces of the appliance may become hot enough to cause burns – among these surfaces are oven vent openings and surfaces near these openings, oven doors, and window of oven doors.
*** THIS APPLIANCE IS APPROVED FOR INDOOR USE ONLY ***
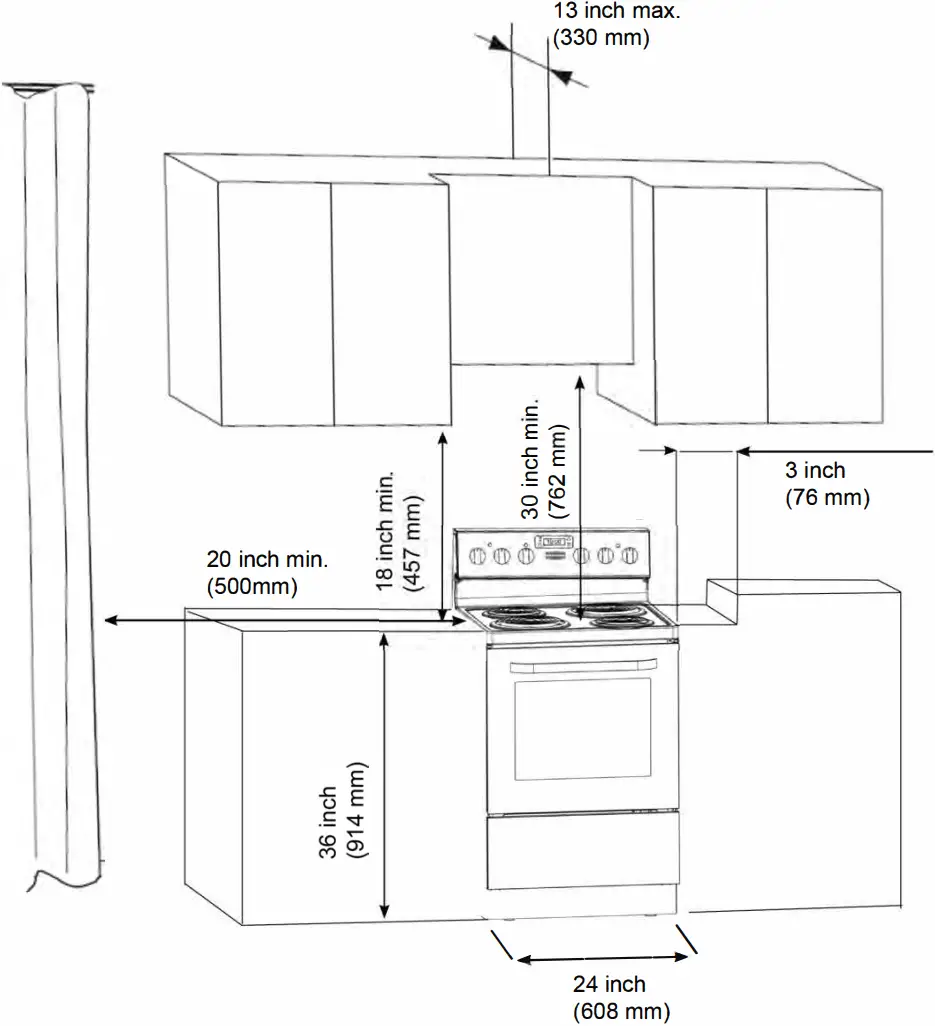
Dimensions

ELECTRICAL CONNECTION
- It is the installer’s complete responsibility to comply with installation clearances specified in the manual. The Minimum Cabinet opening dimensions/clearances shown must be used. The minimum spacings must be maintained between the appliance cooking surface and the horizontal surface above the cooking top.
- 30 inches (65cm) is the minimum clearance between the top of the cooking surface and the bottom of an unprotected wood or metal cabinet
- To eliminate the risk of burns or fire by reaching over heated surface units, cabinet storage located above the cooktop surface should be avoided. If cabinet storage is to be provided, the risk can be reduced by installing a range hood that projects horizontally a minimum of 5 inches beyond the bottom of the cabinets.
- To level your electric range, adjust the leveling legs at the bottom of the unit.
- Avoid locating the unit in moist areas as this may result in the risk of electrical shock.
- The range may only be connected using the certified Power Cord and Plug supplied with this Electric Range. This range is equipped with a CSA International Certified Power Cord intended to be plugged into a standard 14-50R wall receptacle. Be sure the wall receptacle is within reach of range’s final location.
- The range must be connected to the proper electrical voltage and frequency as specified on the rating label.
- For personal safety, the range must be properly grounded.
- Disconnect ALL Power to the Electric Range at the electrical panel before beginning installation.
- Do not attempt to repair or replace any part of the appliance unless it is specifically recommended in this manual. All other servicing should be referred to a qualified technician.
- To minimize the possibility of electric shock, disconnect this appliance from Power Supply be-fore attempting any Service, Cleaning or Maintenance
NOTE: Turning the appliance off does not disconnect the appliance from power supply. Only a qualified Service Technician should service your appliance
WARNING: Improper grounding can result in the risk of electrical shock. If the power cord is damaged, have it replaced by an authorized Service Centre or Certified Electrician

It is recommended that the power cord and plug be place parallel with the floor so that the cord runs parallel with the floor.
- Wall
- Outlet-box
- Floor
Installation Dimensions Guide

Leveling the Range
The range must be level to operate safely and properly. There are four leveling legs located at the corners on the bottom of the range. The legs are easily adjusted by tuning them clockwise or counter clockwise.

Anti-tip Bracket
The range will not tip during normal use. However, the range can tip if you apply too much force or weight to the open door without the anti-tip bracket fastened down properly. To reduce the risk of tipping the appliance, the appliance must be secured by properly installing the Anti-tip bracket included with your Marathon range.
WARNING ![]()
TIP OVER HAZARD

- A child or adult can tip the range and be killed or seriously injured.
- Install the Anti-tip bracket to the range and structure per installation instructions.
- Engage the range to the Anti-tip bracket installed on the structure.
- Re-engage the anti-tip bracket if the range is removed.
- Failure to follow these instructions can result in death or serious burns to children and adults.
Installing the Anti-tip Bracket
To reduce the risk of the range tipping by abnormal usage or improper door loading, the range must be secured by installing the anti-tip bracket included with this appliance.
- The Anti-tip bracket can be installed on either the right or left back leg. Place the anti-tip bracket on the floor as shown below.
- Make the locations of 2 holes of ant-tip bracket on the floor.
- Use a 5/16″ masonry drill bit and insert plastic anchor. (not supplied)
- Secure bracket to floor using screws supplied.
- Slide the range back into place so that the rear foot is under the anti-tip device

- Anti-tip Bracket
- Rear foot of range
- Move the appliance to the final position

- Install the anti-tip bracket either right or left side.
- The contour line of back panel of appliance
- The contour line of right panel of appliance
- The contour line of front panel of appliance
- The contour line of left panel of appliance
- Anti-tip Bracket
Operating the Range

- Burners “ON” Indicator Light
- Oven “ON” Indicator Light
- Burners “ON” Indicator Light
- Front Left Burner Control Knob
- Rear Left Burner Control Knob
- Oven Thermostat Knob
- Oven Function Selector Knob
- Rear Right Burner Control Knob
- Front Right Burner Control Knob
Oven Function Selector Knob
There are two functions on the oven selector: BAKE or BROIL Rotate the knob clockwise to select either “BAKE” or “BROIL”, when finished, rotate knob to “OFF” position.
“BAKE” uses the bottom heat element only which is hidden underneath the oven bottom. This makes the bottom of the oven interior easier to clean and provides an even heat when baking.
“BROIL” uses the upper heating element only to provide high heat projected downwards to cook your food. It is recommended that a two piece broiler pan is used when broiling (sold separately).
OVEN LIGHT
Your Marathon deluxe 24″ range is equipped with an automatic oven light which will turn on, and stay on, automatically when using the “BAKE” or “BROIL” functions. The oven light will turn the oven function selector knob is set to the “OFF” position.
To turn the light on without using the oven simply turn the Oven Function Selector knob to bake or broil but DO NOT turn on the oven thermostat. The oven thermostat must be in the off temperature.

Marathon LED Clock & Timer
Your Marathon smooth top range features a white LED clock and minute timer for your added convenience.
Clock Set up
Press the clock symbol, you will then hear a “beep” and the LED display will start flashing, use the up and down arrows to set the time of day. Once finished, press the clock button again and you will hear another “beep” which sets the clock. During a power outage the clock may need to be reset depending on how long the power outage was.
Timer
Press the timer button, you will hear a “beep” and the LED timer indicator and display will flash. Use the up and down arrows to set the timer length. Once finished, press the timer button again and you will hear another “beep” which starts the timer. The LED indicator will stay illuminated. The timer will count down and when time is done, the timer will “beep” three times quickly, and continue “beeping” intermittently until canceled. To cancel, press the timer button once. To switch back and forth between the clock or timer when the timer is active, simply press the clock or timer icon. The timer will continue to count down until complete.
Please note, the clock or timer does not control the temperature of the oven.
Using the Oven
OVEN RACKS
The oven racks (2) are adjustable and are designed with stop-locks so that when placed correctly on the rack supporters, they will stop before coming completely out from the oven and will not tilt when removing food from or placing food on them.
When placing cookware on the rack, pull the rack out to the bump on the rack support. Place the cookware on the rack, then slide the rack back into the oven. To remove the rack from the oven, pull it towards you, tilt the front end upward and pull it out.

- Stop-lock
OVEN THERMOSTAT

This sets the cooking temperature. Rotate the oven thermostat knob clockwise until the required temperature is reached (From WARM/200°F to 500°F).
To switch o the oven turn the thermostat control to the “OFF” setting position and turn the Oven function selector to “OFF”
SETTING THE TEMPERATURE
Once you have selected either “BAKE” or “BROIL” using the oven function selector, rotate and adjust the oven thermostat dial clockwise to your desired temperature.
Temperature Conversion Chart | |
| Temperature in °F | Temperature in °C |
200 | 93 |
| 250 | 121 |
300 | 149 |
| 350 | 177 |
400 | 204 |
| 450 | 232 |
500 | 260 |
Cooking mode
“BAKE”
For best baking results, use the following steps:
- Place the rack in the correct position, before turning the oven to the “BAKE” setting.
- Turn the oven function selector knob to the “BAKE” position.
- Turn the thermostat control knob to the desired temperature and allow oven to pre-heat.
- The oven temperature light will illuminate while pre-heating, then the light will turn off when the desired temperature is reached. For best baking results wait until the oven has fully preheated before inserting food.
- Check food at minimum time on the recipe to see if food has been cooked to your preference. Cook longer if necessary.
- When baking is completed, turn the function selector knob and thermostat control knob to the “OFF” position, open door fully and remove the food.
For best cooking results, always remember that hot air must circulate around the pans in the oven so that even heat reaches all parts of the oven. Therefore, place the pans in the center of oven and allow at least 2″ space between pan and the surface of cavity.
Always remember that when the oven is hot, outside surfaces of the range get hot.
“BROIL”
Your Marathon deluxe 24″ range has the unique feature of variable “BROIL” heat providing increased flexibility when broiling.
When broiling, only the upper element is switched “ON”. Use with the oven door closed and the note that the thermostat can be set from 200 to 500°F even on “BROIL” setting.
For best broiling results, use the following steps:
- Place the meat on the broil grid in broiler pan (sold separately) – Always use a slotted or angled broil pan so that the fat drips into the broiler pan, otherwise the juices may catch on fire. Do not broil with out using the broiler pan.
- Position the broiler pan on the second rack position from the top.
- Turn the oven function selector knob to the “BROIL” position.
- Turn the oven thermostat control knob to the desired broil temperature.
- The upper heat element will preheat and cycle “ON” and “OFF” to maintain the selected temperature. For best broiling results wait until the broiler has fully preheated and the oven thermostat light has turned off. Turn food over about halfway through the broiling time.
Always broil with the oven door closed. - When broiling is completed, turn the oven function selector knob and thermostat control knob to the ”OFF” position, open door fully and remove the food
*** WARNING***
CAUTION: The oven door becomes very hot during operation. Keep children well out of reach and use the oven handle at all times.
IMPORTANT: Always use suitable protective gloves when inserting/removing the broiler pan, shelves, pans and other cooking utensils from the oven.
Using the Schott Ceran® Smooth Top
Your Marathon electric range is engineered with two fast heating large radiant elements (8″) and two small radiant elements (6″).
To operate the cooktop surface elements, select the surface element you would like to use and simply push in and turn the knob to the desired heat setting between “MIN” and MAX”. The surface element controls are variable based on your cooking needs. To switch the surface element “OFF”, simply turn the corresponding surface element control to the “OFF” setting position.
For your safety, the surface elements have an indicator light that will illuminate when one of the elements are in use.
IMPORTANT: To switch on, always push and turn the control knob slightly.
WARNING! After use the Schott Ceran® cooktop surface may be hot. Caution must be taken at all times as serious injury or fire may result. KEEP CHILDREN OUT OF REACH OF THE COOKTOP SURFACE AND OVEN DOOR AT ALL TIMES
Cookware Tips
The physical characteristics of pots and pans influence the performance of any cooking systems. Therefore, emphasis must be placed on the importance of using proper cookware

- Use cooking vessels with flat bottoms and tight fitting lids to conserve energy and shorten cooking times.
- Only certain types of glass, glass/ceramic, ceramic, earthenware or other glazed utensils are suitable for cooktop. Manufacturers suggest using low to medium heat selections when using glass cookware.
- Pan size should match the element size. A slightly larger pan covers the entire element and prevents spill overs from contacting the heat surface and burning in. Using a smaller pan than the element is a waste of energy.
- To avoid spattering and to maximize efficiency, pan bottoms should be clean and dry before coming in contact with the elements.
- Wipe spills off the elements with a damp cloth as soon as they cool to cut down on clean up time. Be sure the surface elements or oven controls are “OFF”.
If a surface element stays red for a long time, the bottom of the pan is not flat enough or is too small for the surface unit. Prolonged usage of incorrect utensils could result in damage to the surface unit, cooktop, wiring and surrounding areas.
Never leave an empty pot or pan, or one which has boiled dry, on a hot surface unit.
The utensil could overheat and damage the utensils or surface unit. Always be sure that all control knobs are turned to “OFF” and the indicator lights are “OFF”.
WARNING: Make sure that the handles of cookware do not stick out over the edge of the range, to avoid them being knocked over by accident. This also makes it more difficult for children to reach your cookware when in use.
Care and Maintenance
GENERAL INFORMATION
- CAUTION: Before any operation of cleaning and maintenance disconnect the appliance from the electrical supply.
- It is advisable to clean when the appliance is cold and especially for cleaning the enameled parts.
- Avoid leaving alkaline or acidic substances (lemon juice, vinegar, etc.) on the surfaces.
- Avoid using cleaning products with a chlorine or acidic base.
CLEANING YOUR MARATHON SCHOTT CERAN® RANGE
Your Marathon deluxe 24″ range with Schott ceran smooth top is engineered for years of cooking enjoyment but must also be cleaned regularly to ensure cooking performance. When we engineered your Marathon range, we incorporated a few key features that will help make clean ups easier: Durable upswept cooktop with Schott Ceran smooth top glass surface- no seams for food or dirt to accumulate.
WARNING: Before cleaning ALWAYS be sure the cooktop surface elements are off and cool to the touch before cleaning.
You now have an original from SCHOTT, the world’s leading glass-ceramic manufacturer, with the top quality and durability you’d expect. To make sure your new glass-ceramic cooktop lasts, here are a few important tips.
USEFUL CARE TIPS
Clean your SCHOTT CERAN® glassceramic cooktop regularly, preferably every time you use it. Avoid using abrasive sponges or scouring agents. Harsh chemical cleaners like oven sprays or stain removers are also unsuitable, as are bathroom or household cleaners. We have included a list of recommended cleaners and substances to protect your glass-ceramic cooktop against sugar chipping.
Tips for keeping your SCHOTT CERAN® glass-ceramic cooktop shiny:
- Use cookware with smooth undersides to prevent them from scratching the glassceramic cooktop.
- We recommend a thickness of 2 – 3 mm for steel enamel base and 4 – 6 mm for stainless steel pans with a sandwich bottom.
- Lift up your cookware when moving them around on the cooktop to avoid scratches.
- Glass-ceramic cooktops with scratch-resistant coating SCHOTT CERAN Miradur® can also be cleaned by using the recommended cleaners and methods:
CERAMA BRYTE (Golden Ventures) Glass Ceramic scrunge (Vileda)
***WARNING*** Plastic, tin foil, sugar or sugary food have fallen on the hot glass-ceramic cooktop. Please scrape it off the hot surface as quickly as possible. If these substances melt, they can damage the glass-ceramic cooktop.
Sparkling results in only three steps:

To thoroughly clean your glass-ceramic cooktop, first remove dirt and food with a suitable metal scraper.

Once the glass-ceramic cooktop has cooled, put a few drops of a suitable cleaner on it and rub it on with a paper tow

Then wipe the glass-ceramic cooktop with a damp cloth and dry it with a clean cloth.
How do I identify a suitable glass-ceramic scraper?
- Scraper made of metal (won’t melt or catch fire)
- Scraper easy to lock / to unlock
- Blade is fixed precisely, it does not shift
- Blade is unbroken, clean and stainless
- Scraper certified by testing institute, if procurable (e.g. TÜV-GS seal)
- User manual and safety instructions available
CLEANING THE OVEN
The oven interior of your Marathon range is a durable porcelain enamel finish that will last for many years if properly maintained and cleaned regularly.
To make cleaning the oven easier, it is possible to easily remove the oven door as follows:
Step 1

Open the door to the full extent
Step 2

Engage the retaining clips to both hinges (Left and Right)
Step 3

Gently raise the door upward (towards the closed position to withdraw the lower hinge pins from their position)
Step 4

Rest the door face down on a soft but sturdy surface.
* To re-install the door, repeat the steps above in reverse order.
CLEANING PAINTED SURFACES
ONLY use warm soapy water or a warm water/vinegar combination for all painted surfaces including . For heavy baked on spillovers, a spray on oven cleaner can be used. Never use a spray on oven cleaner on the elements, glass door, backguard or controls of your Marathon range

REMOVABLE STORAGE DRAWER
For cleaning, you can remove the drawer by pulling it out until the stop point and lifting it up.
Never store any flammable material in the drawer.
REPLACING THE OVEN LIGHT
Before any maintenance is started involving electrical parts of the appliance, it must be disconnected from the power supply.
- Let the oven cavity cool down completely
- Switch o the electric supply.
- Remove the protective cover.
- Unscrew and replace the bulb with a new one suitable for high temperature (300°C ~ 570°C) having the same specifications: 240V 60Hz, 25W, G9.
- Replace the protective cover.
NOTE: Please note the oven light turns on, and stays on when using the “BAKE” or “BROIL” functions. Oven bulb replacement is not covered under warranty

CLEANING THE INSIDE OF THE OVEN DOOR
In the event food or liquid falls in between the glass oven door panels, remove the door, unscrew and unfasten the plastic latch that is in the corner at the top of the door. Next take out the glass from the second blocking mechanism and remove. After cleaning, insert and block the glass panel and screw in the blocking mechanism
TROUBLESHOOTING
| Problem | Possible cause |
| Surface elements will not maintain a rolling boil or frying rate is not fast enough | You must use pans that are absolutely flat. |
| Pan bottoms should closely match the diameter of the surface unit selected. | |
| Faulty surface element or control. | Check element first, if still not working contact Stirling Marathon |
| Foods cook slowly in oven | Improper cookware being used. If using Bake or Broil, wait until oven has fully pre-heated and the indicator light has turned off before inserting food into the oven |
| Surface element(s) do not operate | You have blown a household fuse or tripped a circuit breaker. |
| The surface units are not plugged in all the way. | |
| Replace surface element. If still not functioning contact Stirling Marathon. | |
| You have not set the control knobs correctly. | |
| Control knobs will not turn | If it is a surface unit control knob, you are not pushing in before turning. |
| If it is oven control knob, you are turning the knob to wrong direction. | |
| Oven light does not work | Light bulb is loose or defective. |
| Oven light only works when you are using the Bake or Broil functions. Light will stay on until Bake or Broil function turned OFF. | |
| Switch operating oven light is broken. | |
| Oven does not work | You have blown a household fuse or tripped a circuit breaker. |
| You have note set the oven function knob to Bake or Broil. Once selected, turn thermostat knob to desired cooking temperature. | |
| Food does not broil properly | The oven control knob is not set to Broil. |
| Improper rack position being used. | |
| Cookware is not suited for broiling. | |
| Broil temperature is not set high enough | |
| Food does not bake properly | The oven control knob is not set to BAKE or temperature has not been set |
| Rack position is incorrect. | |
| Oven has not fully pre-heated. Set oven temperature and wait until the thermostat indicator light has turned off before inserting food into the oven | |
| Incorrect cookware or cookware of improper size is being used. | |
| Oven thermostat is defective. Contact Stirling Marathon for service. |
If the malfunction shows again, contact the Service Center. Please have your model number and information from the rating plate ready. For any Questions or concerns, please contact us at
[email protected] or visit us at www.stirlingmarathon.com
2 Year Limited Warranty
When operated and maintained according to the instructions in the Use & Care Guide, Marathon, a registered trademark of Stirling Marathon Limited, agrees to repair or replace this product for 2 years from the date of original purchase and/or agrees to pay for parts and service/labor required to correct defects in materials or workmanship. Any and all Service must be approved and provided by an Authorized Stirling Marathon Service provider. YOUR EXCLUSIVE REMEDY UNDER THIS LIMITED WARRANTY SHALL BE PRODUCT REPAIR OR REPLACEMENT AT THE SOLE DISCRETION OF STIRLING MARATHON LIMITED AS PROVIDED HEREIN. This limited warranty is valid only in Canada and the Continental United States with proof of original purchase and confirmed warranty registration.
TERMS OF WARRANTY BY PRODUCT
| Capacity/Type | Warranty Type | |
| Refrigerators & Freezers | Less than 6 cu.ft. | Carry-In |
| Premium Wine Coolers, Refrigerators & Freezers | Greater than 6 cu.ft. | In-Home |
| Electric & Gas Ranges | All Sizes | In-Home |
How to Obtain Service
Carry-In: The original purchaser must deliver or ship the defective product to an authorized Stirling Epic Service present a copy of the original bill of sale or Warranty Registration Confirmation
In-Home: Contact Authorized Service Center and provide a copy of the Original bill of sale or Warranty Registration Card. If you are in a remote area or the closest Authorized Service Center is further than 100 km (60 miles), you will be required to deliver the appliance to the closest Service Center at your expense.
Stirling Marathon is not responsible or liable for any spoilage or damage to food or other contents of this appliance, whether due to any defect of the appliance, or its use, whether proper or improper.
Items Excluded from Warranty
- Damages due to shipping damage or improper installation.
- Damages due to misuse or abuse.
- Content losses due to failure of the unit
- Commercial or Rental Use Limited to 90 days Parts & Labor
- Plastic parts such as door bins, panels, door shelves, racks, light bulbs, etc.
- Punctures to the evaporator system due to improper defrosting of the unit.
- Service or Repairs by unauthorized service technicians
- Service calls that do not involve defects in material and workmanship such as instruction on proper use of the product, door reversal or improper installation.
- Replacement or resetting of house fuses or circuit breakers.
- Delivery costs incurred as the result of a unit that fails
- Expenses for travel and transportation for product service if your appliance is located in a remote area where service by an authorized service technician is not available.
- The removal and reinstallation of your appliance if it is installed in an inaccessible location or is not installed in accordance with published installation instructions.
- Liability under this warranty is limited to repair, replacement or refund. If a replacement unit is not available or the unit cannot be repaired, liability is limited to the actual purchase price paid by the consumer.
- This warranty applies only to the original purchaser and does not extend to any subsequent owner(s) and is non-transferable.
- No warranty or insurance herein contained or set out shall apply when damage or repair is caused by any of the following
- Accident, alteration, abuse or misuse of the appliance such as inadequate air circulation in the room or abnormal operating conditions (extremely high/low room temperature).
- Use for commercial or industrial purposes (ie. If the appliance is not installed in a domestic residence).
- Fire, water damage, theft, war, riot, hostility, acts of God such as hurricanes, floods etc
- Service calls resulting in customer education.
- Improper Installation (ie. Building-in of a free standing appliance or using an appliance outdoors that is not approved for outdoor application)
For Service or Assistance please contact us at:
[email protected] or visit us at www.stirlingmarathon.com
Smooth Top Electric Range

















