Schneider Electric 51156127AA-06 MasterPact NW
Safety instructions
DANGER
HAZARD OF ELECTRIC SHOCK, EXPLOSION OR ARC FLASH
- Apply appropriate personal protective equipment (PPE) and follow safe electrical work practices. See NFPA 70E, CSA Z462 or local equivalent.
- This equipment must only be installed and serviced by qualified electrical personnel.
- Turn off all power supplying this equipment before working on or inside equipment. Lock the switchgear in the isolated position.
- Always use a properly rated voltage sensing device to confirm power is off.
- Install safety barriers and display a danger sign.
- Replace all devices, doors, and covers before turning on power to this equipment.
Failure to follow these instructions will result in death or serious injury
Content

Necessary tools
Screwdriver (Pozidrive n°2, 3 and slotted), combination wrench, angled socket wrench, hex key, saw, diagonal cutters, flat gripper.
Possible combinations
Using cables to interlock 3 devices (2 sources QS1 and QS2 and 1 coupling QC) means that any 2 of the 3 devices can be switched off.
- Possible in override mode
Interlocked devices can be placed on top of one another or installed side-by-side. They can be fixed or drawout, 3-pole or 4-pole, with different ratings and sizes.
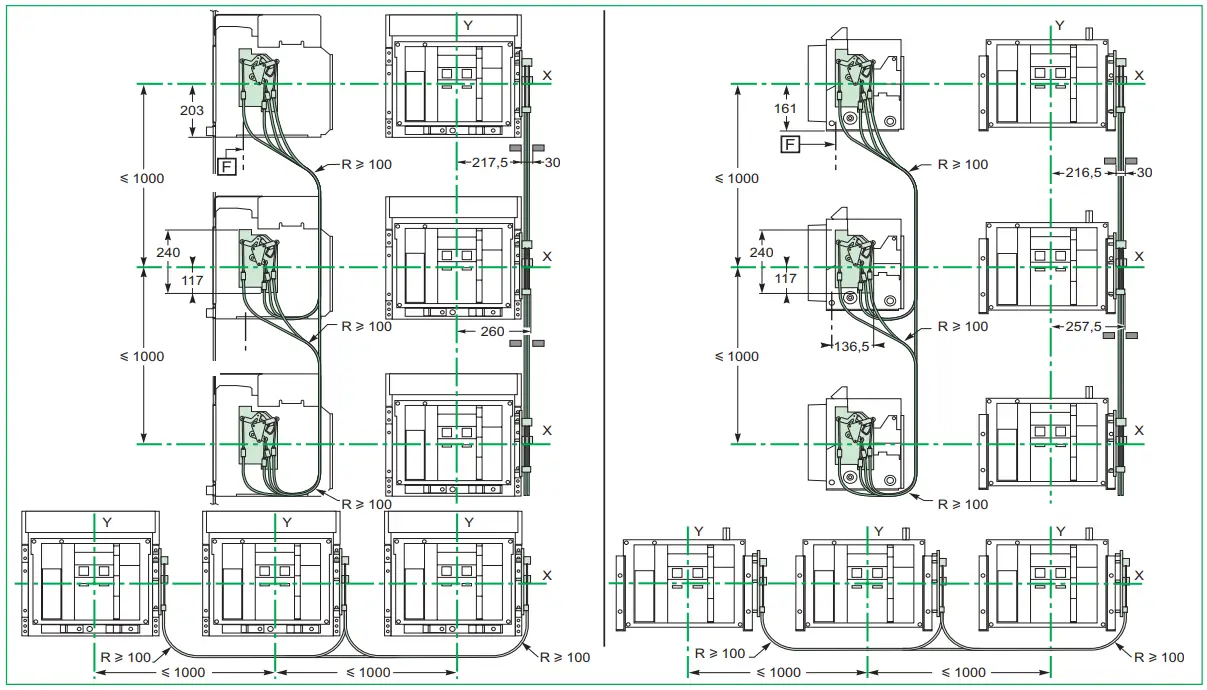
Dimensions
- Drawout circuit breaker
- Fixed circuit breaker

Precautions before carrying out any work
PLEASE NOTE
Before carrying out any work, always de-energize the device as indicated here. Withdrawable devices should be moved to disconnected position.


Installing the interlock plates
Drawout circuit breaker

Fixed circuit breaker
Fixed and drawout circuit breaker

It is normal and necessary to find traces of grease on the plate cams.
Drawout circuit breaker
Fixed circuit breaker

WARNING
RISK OF CABLE JAM
- There must no be more than 3 bends in the cable between 2 devices.
- For each bend in the cable, the radius of curvature must be more than 100 mm (3.94 in).
- The cable must not be wound in a loop: the cable must be cut to the right length in accordance with the procedure outlined in this document.
Failure to follow these instructions can result in death, serious injury, or equipment damage.






Test

The VBP pushbutton locking cover provides redundancy in addition to the mechanical interlocking system.
The use of the pushbutton locking cover is mandatory on each interlocked device. The closing pushbuttons of the interlocked devices must be locked by padlocks sharing one key to help avoid simultaneous closing orders of interlocked devices. Install a VBP pushbutton locking cover on each interlocked device, if not already installed.


Disclaimer
PLEASE NOTE
- Electrical equipment should be installed, operated, serviced, and maintained only by qualified personnel.
- No responsibility is assumed by Schneider Electric for any consequences arising out of the use of this material.
CUSTOMER SERVICE
Schneider Electric Industries SAS
35 rue Joseph Monier
CS 30323
F – 92506 Rueil Malmaison Cedex
www.se.com






















