
DBX 18 Next Electric Instant Water Heater
Quick guide
List of figures





The documents supplied with the device must be stored carefully.
Registration
Register your device online on our website and benefit from our services under warranty.
Your full details help our customer service process your request as fast as possible.
For online registration, just follow the link below or use the QR code with your smartphone or tablet.
https://partner.clage.com/en/service/device-registration/

https://partner.clage.com/en/service/device-registration/index.php
Operation instruction
Note: Carefully read the enclosed safety instructions through in full before the appliance is installed, put into service and used and follow them in the further steps and during use!
Description of the appliance
The E-basic instant water heater DBX Next is a electronically controlled pressure-resistant instantaneous water heater for an efficient water supply to one or more tap outlets.
As soon as you open the hot water tap, the instantaneous water heater switches on auto ma ti cally. When the tap is closed, the appliance automatically switches off.
Its electronic control regulates the power consumption depending on the selected outlet temperature, the respective inlet temperature and the flow rate, thus reaching the set temperature exactly to the degree and keeping it constant in case of water pressure fluctuations.
The factory set outlet temperature is 50 °C. This factory setting can be adjusted in the appliance to be in a range of approx 30 °C and 60 °C by a specialist only.
Note: The hot water temperature may not exceed 55 °C if the instant water heater is connected to a shower.
In case of a low feed temperature and a high flow rate at the same time, it could happen that the preset outlet temperature is not reached which is due to the fact that the appliance exceeded its capacity. The outlet temperature can be raised by reducing the water flow at the tap. It is possible to use the instantaneous water heater in combination with an external load shedding relay for electronically controlled instantaneous water heaters (refer to installing instructions).
Environment and recycling
This product was manufactured climate neutrally according to Scope 1 + 2. We recommend the purchase of 100% green electricity to make the operation climate neutral as well.
Your product was manufactured from high-quality, reusable materials and components. Please respect in case of discarding that electrical devices should be disposed of separately from household waste at the end of their service life. Therefore, please take this device to a municipal collection point that return used electronic devices to the recycling system. Disposing it correctly will support environmental protection and will prevent any potential negative effects on human beings and the environment that could arise from inappropriate handling of these devices at the end of their service life. Please contact your local authority for further details of your nearest designated collection point or recycling site.
Business customers: If you wish to discard equipment, please contact your dealer or supplier for further information.
How to use
Venting after maintenance work
This instantaneous water heater features an automatic air bubble protection to prevent it from inadvertently running dry. Nevertheless, the appliance must be vented before using it for the first time. Each time the appliance is emptied (e.g. after work on the plumbing system, if there is a risk of frost or following repair work), the appliance must be re-vented before it is used again.
- Disconnect the instantaneous water heater from the mains (e.g. via deactivating the fuses).
- Unscrew the jet regulator on the outlet fitting and open the cold water tap valve to rinse out the water pipe and avoid contaminating the appliance or the jet regulator.
- Open and close the hot water tap until no more air emerges from the pipe and all air has been eliminated from the water heater.
- Only then should you re-connect the power supply again (e.g. via activating the fuses) to the instantaneous water heater and screw the jet regulator back in.
- The appliance activates the heater after approx. 10 seconds of continuous water flow.
Cleaning and maintenance
- Plastic surfaces and fittings should only be wiped with a damp cloth. Do not use abrasive or chlorine-based cleaning agents or solvents.
- For a good water supply, the outlet fittings (e.g. jet regulators and shower heads) should be unscrewed and cleaned at regular intervals. Every three years, the electrical and plumbing components should be inspected by an authorised professional in order to ensure proper functioning and operational safety at all times.
Trouble-shooting and service
Repairs must only be carried out by authorised professionals.
If a fault in your appliance cannot be rectified with the aid of this table, please contact the service organisation of your importer or the Central Customer Service Department. Please have the details of the typeplate at hand.
This instantaneous water heater was manufactured conscientiously and checked several times before delivery. Should malfunctions nevertheless occur, it is usually only due to a bagatelle. First attempt to switch the house fuses off and on again in order to reset the electronics. Next, try to remedy the problem with reference to the following table. In doing so, you will avoid unnecessary expense of customer service assistance.
CLAGE GmbH
After-Sales Service
Pirolweg 4
21337 Lüneburg
Germany
Phone: +49 4131 8901-400
Email: [email protected]
| DBX Next | ||
| Problem | Cause | Solution |
| Water stays cold | Master fuse tripped | Renew or activate fuse |
| Safety pressure cut-out tripped | Contact customer service | |
| Safety thermal cut-out tripped | Contact customer service | |
| Flow rate of hot water too weak | Outlet fitting dirty or calcified | Clean shower head, jet regulator or sieves |
| Fine filter dirty or calcified | Let clean fine filter by customer service | |
| Selected temperature is not reached | Cold water has been added via the tap | Tap hot water only; set temperature, check outlet temperature |
| Water perceived to be too cold | Set temperature too low | Decrease set temperature by a specialist |
| Water perceived to be too hot | Set temperature too high | Decrease set temperature by a specialist |
DBX Next
Installation instruction
Overview
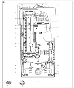
See figure C1.
| Pos. | Function | Pos. | Function |
| 1 | Bottom part | 13 | Water splash protection sleeve |
| 2 | Safety thermal cut-out (STB) | 14 | Wall bracket |
| 3 | Thermal sensor set | 15 | DBX Next hood |
| 4 | Heating element | 16 | Connecting pipe |
| 5 | Non-return valve | 17 | PCB cover |
| 6 | Flow sensor | 18 | PCB |
| 7 | Safety pressure cut-out SDB | 19 | Connecting terminal |
| 8 | Outlet pipe | 20 | Inlet pipe |
| 9 | Flow limiter | 21 | Fine filter |
| 10 | Hot water connection | 22 | Cold water connection |
| 11 | Screw-in nipples ½ inch | 23 | Frame |
| 12 | Grommet |
Technical specifications
| Model | DBX 18 Next | DBX 21 Next | DBX 24 Next |
| Energy efficiency class | A *) | ||
| Rated capacity / rated current | 18 kW / 26A | 21 kW / 30 A | 24 kW / 35A |
| Electrical connection | 3- / PE 380..415 V AC | ||
| Min. required cable size’) | 4.0 mm2 | 4.0 mm2 | 6.0 mm2 |
| Hot water (I/min) max. at At = 28 K max. at At = 38 K | 9.22) | 10.12) 7.9 | 12.3 2) |
| Rated volume | 0.41 | ||
| Rated pressure | 1.0 MPa (10 bar) | ||
| Connecting type | pressure-resistant / pressureless | ||
| Heating system | Bare wire heating system IES® | ||
| @ 15 °C: Required specific water resistance Specific electrical conductivity | ? 1100 Ocm 90 mS/m | ||
| Inlet temperature | 30 °C | ||
| Flow rate to switch on – max. flow rate | 1.51/min – 7.0 3) | 1.5 l/min – 8.0 31 | 1.51/min – 8.0 3) |
| Pressure loss | 0.08 bar at 1.51/min 1.3 bar at 9.0 l/min 4) | ||
| Temperature range | 30 °C – 60 °C | ||
| Water connection | G 1/2 inch | ||
| Weight (when filled with water) | 4.2 kg | ||
| VDE class of protection | 1 | ||
| Type of protection / safety | |||
*) The declaration complies with the EU regulation No 812/2013
- Maximum applicable cable size is 10 mm2 at electrical connection from above
- Mixed water
- Flow rate limited to achieve optimum temperature rise
- Without flow regulator
Dimensions
Dimensions in mm (fig. D1)
Installation

Based on the national constitution guidelines a general test certificate
concerning the evidence of applicability of noise behaviour is granted.
The following regulations must be observed:
- e.g. VDE 0100
- EN 806
- Installation must comply with all statutory regulations, as well as those of the local electricity and water supply companies.
- The rating plate and technical specifications
- Only intact and appropriate tools must be used
Installation site
- Appliance must only be installed in frost-free rooms. Never expose appliance to frost.
- The Appliance must be wall mounted and has to be installed with water connectors downward or alternative transversely with water connections left.
- The appliance complies with protection type IP25 and may therefore be installed in protection zone 1 according to VDE 0100 part 701 (IEC 60364-7).
- In order to avoid thermal losses, the distance between the instantaneous water heater and the tap connection should be as small as possible.
- The appliance must be accessible for maintenance work.
- Plastic pipes may only be used if they conform to DIN 16893, Series 2.
- The specific resistance of the water must be at least 1100 Ω cm at 15 °C. The specific resistance can be asked for with your water distribution company. 1300
Installing the wall bracket
Thoroughly rinse the water supply pipes before installation to remove soiling from the pipes.
- Using a 12 mm hexagon socket screw key, screw the screw-in nipples according to image manual into the wall connections as shown in. The seals must be fully screwed into the thread.
- Hold the included mounting template according to image manual on the wall, mark the drill holes according to the template and drill them using a 6 mm drill.
- Pull down the faceplate and unscrew the main hood screw to open the appliance.
- Loosen the knurled nut of the wall bracket, remove the wall bracket and screw it on the wall. Offset tiling or uneven surfaces can be compensated by up to 30 mm with the aid of the spacers supplied. The spacers are fitted between the wall and the wall bracket.
Installing connection pieces
Note: Fasten the screw nuts with caution, to avoid damage to the valves or the piping system.
- As shown in the illustration, screw the cold water connection piece with the union nut and the ½ inch seal onto the cold water connection.
- Screw the hot water connection piece with the union nut and the ½ inch seal onto the hot water connection. (fig. D2).
- Put the water flow reducer “D” into the hot water connection piece. The O-ring must be visible after insertion.
Installing the appliance
- The electrical power supply cable may be connected in the upper part. In such case, the connection will be done according to the description “Electrical connection from above” in online manual.
- Install the appliance according to image manual.
Note: Accessories and surface mounting
For further informations please use the online operation and installation instruction. Please follow the link below or use the QR code via smartphone or tablet.
https://www.clage.de/links/gma/DBX-Next-GMA-9120-34380
Electrical connection
Only by a specialist!
Please observe:
- e.g. VDE 0100
- The installation must comply with current IEC and national local regulations or any particular regulations, specified by the local electricity supply company
- The rating plate and technical specifications
- The appliance must be earthed!
Wiring diagram (fig. E1)
- Electronic circuitry
- Heating element
- Safety pressure cut-out
- Connecting terminal
- Safety thermal cut-out
Structural prerequisites
- The appliance must be installed via a permanent connection. Heater must be earthed!
- The electric wiring should not be injured. After mounting, the wiring must not be direct accessible.
- An all-pole disconnecting device (e.g. via fuses) with a contact opening width of at least 3 mm per pole should be provided at the installation end.
- To protect the appliance, a fuse element must be fitted with a tripping current commensurate with the nominal current of the appliance.
Electrical connection from below
Note: If necessary, the connecting terminal can be displaced to the upper part of the appliance. To do this, please follow the instructions in the operating and installation manual available online.
Check that the power supply is switched off prior to electrical connection!
- Remove the outer sheath of the connection cable from about 6 cm above the wall outlet (fig. E2). With the smaller opening ahead, slide the water splash protection sleeve over the connecting cable so that the sleeve is flush with the wall. This prevents any leaking water from coming into contact with the electrical leads. It must not become damaged! The protection sleeve must be used!
- Strip the cables and plug them in the connecting terminals according to the wiring diagram. The appliance must be earthed.
- Pull the protective sleeve over the connecting cables until the sleeve fits perfectly in the recess of the intermediate panel. Adjust the water splash protection sleeve as illustrated and fix it with the sleeve fixing (A). Reinsert the control panel and lock it on (fig. E3).
- Place the hood on the appliance and screw in the fastening screw. After that you can slide on the faceplate from the bottom up to the stop.
Note: Load shedding and electrical connection from above
For further informations please use the online operation and installation instruction. Please follow the link below or use the QR code via smartphone or tablet.
https://www.clage.de/links/gma/DBX-Next-GMA-9120-34380
Initial operation
Fill the mains and the appliance with water and emerge air according to image manual.
After every draining (e.g. after work on the plumbing system or following repairs to the appliance), the heater must be re-vented in this way before starting it up again.
If the water heater cannot be put into operation, the temperature cut-out or the pressure cut-out may have tripped during transport. If necessary, check that the power supply is switched off and reset the cut-out (fig. F1 + F2).
- Switch on the power supply to the appliance.
- Open the hot water tap. Check the function of the appliance. The heating element will be activated after approx. 10 – 30 sec of continuous water flow.
- Explain the user how the instantaneous water heater works and hand over the operating instructions.
- Fill in the guarantee registration card and send it to the CLAGE Central Customer Service or use the online registration (see page 7).
Modification of factory preset outlet temperature
The factory set hot water outlet temperature is 50 °C.
By turning the adjustment potentiometer with the auxiliary tool “S”, this presetting can be changed between two stops in the range of approx. 30 °C to 60 °C (see fig. F3).
The hot water outlet temperature will be increased by clockwise rotation and decreased by counterclockwise rotation.
Note: The hot water temperature may not exceed 55 °C if the instant water heater is connected to a shower.
Maintenance work
Maintenance work must only be conducted by an authorised professional.
Cleaning and replacing the filter strainer
The cold water connection of this instantaneous water heater is equipped with an integrated shut-off valve and a strainer. Soiling of the strainer may reduce the warm water output. Clean or replace the strainer as follows:
- De-energize the instantaneous water heater (e.g. via deactivating the fuses) and prevent inadvertent reactivation of them.
- To open the appliance, take off the small face plate, loose the screw behind this cover and detach the hood.
- Close the shut-off valve (a) in the cold water connection piece (position “0“ fig. G1).
- Unscrew the screw plug (b) from the cold water connection piece and take out the strainer (c) (fig. G2).
Note: Residual water can leak - The strainer can now be cleaned or re placed.
- After fitting of the clean strainer tighten the screw plug.
- Slowly reopen the shut-off valve in the cold water connection piece (position “1“). Check all connections for leaks.
- Vent the appliance by carefully opening and closing the affiliated warm water tap valve several times until air no longer emerges from the pipe.
- Fit the hood of the appliance. Then switch on the power again (e.g. via activating the fuses).
Cleaning and replacing the filter strainer if direct connected
The cold water connection of this instantaneous water heater is equipped with a strainer. Soiling of the strainer may reduce the warm water output. Clean or replace the strainer as follows:
- De-energize the instantaneous water heater (e.g. via deactivating the fuses) and prevent inadvertent reactivation of them.
- Close the shut-off valve in the mains water supply of the instantaneous water heater.
- To open the appliance, take off the small face plate, loose the screw behind this cover and detach the hood.
- Unscrew mains water inlet from connection piece and take out the strainer.
Note: Residual water can leak - The strainer can now be cleaned or replaced.
- After refitting the clean strainer reconnect the mains water inlet to the connection piece.
- Slowly reopen the shut-off valve in the mains water supply. Check all connections for leaks.
- Vent the appliance by carefully opening and closing the affiliated warm water tap valve several times until air no longer emerges from the pipe.
- Fit the hood of the appliance. Then switch on the power again (e.g. via activating the fuses). (fig. G3).
Product data sheet
a | b | c | d | e | f | h | i | |
| b.1 | b.2 | nWH% | AEC | °C | LWA | |||
CLAGE | DBX18 Next | 5E-180Q-3C | S | A | 38 | 485 | 60 | 15 |
| CLAGE | DBX 21 Next | 5E-210Q-3C | S | A | 38 | 483 | 60 | 15 |
CLAGE | DBX 24 Next | 5E-240Q-3C | S | A | 38 | 486 | 60 | 15 |
Product data sheet in accordance with EU regulation
(a) Brand name or trademark, (b.1) Model, (b.2) Type, (c) Specified load profile, (d) Energy-efficiency class, (e) Energy-efficiency, (f) Annual power consumption, (g) Additional load profile, the appropriate energy-efficiency and the annual power consumption, if applicable, (h) Temperature setting for the temperature controller, (i) Sound power level, internal. Additional notes: All specific precautions for assembly, installation, maintenance and use are described in the operating and installation instructions. All data in this product data sheet are determined by applying the specifications of the relevant European directives. Differences to other product information listed elsewhere may result in different test conditions. The power consumption was determined in compliance with standardized measurement method based on EU guidelines. The real energy consumption is pending on individual requirements.

CLAGE GmbH
Pirolweg 4
21337 Lüneburg
Deutschland
Telefon: +49 4131 8901-0
E-Mail: [email protected]
Internet: www.clage.de
Subject to technical changes, design changes and errors
9120-34380 12.21


















