
SINGLE DISHDRAWERTM DISHWASHER
INTEGRATED
DD60STX6I1, DD60STX6HI1
INSTALLATION GUIDE
SAFETY AND WARNINGS
![]()
![]()
Electric Shock Hazard Failure to follow this advice may result in electrical shock or death.
- Fitting an integrated panel requires access to electrical service areas. This must be performed by a Fisher & Paykel trained and supported service technician or qualified person.
- Before fitting the front panel, the dishwasher must be disconnected from the power supply.
- After installing the front panel, the installer must ensure that the following components are electrically earthed: the panel bracket and any custom metal component (e.g. handle) that extends past the rubber seal.
- This appliance must be earthed. In the event of a malfunction or breakdown, earthing will reduce the risk of electric shock by providing a path of least resistance for electric current. This appliance is equipped with a cord having an equipment earthing conductor and an earthing plug.
- Before installing the DishDrawerTM Dishwasher, remove the house fuse or open the circuit breaker.
- The plug must be plugged into an appropriate outlet that is installed and earthed in accordance with all local codes and ordinances.
- Do not modify the power supply plug provided with the appliance if it will not fit the outlet, have a proper outlet installed by a qualified electrician. Do not use an extension cord, adapter plug or multiple outlet box.
- The dishwasher must be completely enclosed at the time of installation.
![]()
![]()
Electric Shock Hazard Failure to follow this advice may result in electrical shock or death.
- WARNING Improper connection of the equipment-earthing conductor can result in a risk of electric shock. Check with a qualified electrician or service representative if you are in doubt as to whether the appliance is properly earthed.
![]()
Cut Hazard
Failure to use caution could result in injury.
- Take care panel edges are sharp.
WARNING!
To reduce the risk of fire, injury to persons or damage when using the appliance, follow the important safety instructions listed below. Read all the guidance before using the appliance.
Servicing
- Do not repair or replace any part of the appliance unless specifically recommended in this guide. All other servicing should be undertaken by a Fisher & Paykel trained and supported service technician or qualified person.
Installation
- Installation of this DishDrawerTM Dishwasher requires basic mechanical and electrical skills.
- Installation must comply with your local building and electricity regulations.
- Remove all packaging materials supplied with the dishwasher.
- Be sure to leave these Instructions with the Customer.
- At the completion of the installation, the Installer must perform the Final Checklist.
- This dishwasher is manufactured for indoor use only.
- Ensure all water connections are turned OFF. It is the responsibility of the plumber and electrician to ensure that each installation complies with all Codes and Regulations.
- The DishDrawerTM Dishwasher MUST be installed to allow for future removal from the enclosure if service is required.
- The switched power outlet must be outside the dishwasher cavity, so that it is accessible after installation.
- Care should be taken when the appliance is installed or removed to reduce the likelihood of damage to the power supply cord and hoses.
- If the DishDrawerTM Dishwasher is relocated from one installation site to another it must be kept upright to avoid damage from water spillage.
- Ensure only supplied hoses are used for connection. Old hoses should not be reused.
- Failure to install correctly could invalidate any warranty or liability claims.
- If the product is installed in a motor vehicle, boat or similar mobile facility, you must bring the vehicle, boat or mobile facility containing the product to the service shop at your expense or pay the service technician’s travel to the location of the product.
SAVE THESE INSTRUCTIONS
The models shown in this installation guide may not be available in all markets and are subject to change at any time. For current details about model and specification availability in your country, please go to our website www.fisherpaykel.com or contact your local Fisher & Paykel dealer.
TOOLS AND COMPONENTS
PARTS SUPPLIED
- Keep all packing materials until the unit has been inspected.
- Inspect the product to ensure there is no shipping damage. If any damage is detected contact the dealer or retailer you bought the product from to report the damage.
- Fisher & Paykel is not responsible for shipping damage.
Supplied
TOOLS REQUIRED
Not supplied

INSTALL VIDEO
This video provides an overview of what is needed to install a DishDrawerTM Dishwasher. It is intended as an overview only of the installation process and is not intended to be used as a standalone guide on how to install a DishDrawerTM Dishwasher yourself. Installation should be undertaken by a Fisher & Paykel trained and supported service technician or qualified person.
To access installation videos Scan the QR code with your smartphone or watch online at: fisherpaykel.com/dishdrawer-install
PRODUCT DIMENSIONS


| PRODUCT DIMENSIONS | MM |
| A. Overall height | 454 |
| B. Overall width | 599 |
| C. Overall depth* | 571 |
| D. Depth of chassis | 553 |
| E. Front panel depth** | 16 – 20 |
| F. Max. drawer extension*** | 527 |
*based on front panel thickness of 18mm
**refer to ‘Custom panel dimensions’ for more information
***excluding custom panel and handle
CUSTOM PANEL DIMENSIONS
Material specifications

| CABINETRY DIMENSIONS | STANDARD INSTALL | ASSISTED OPENING INSTALL** |
| MM | MM | |
| A. Minimum panel height* | 452 | 498 |
| B. Minimum panel width | 596 | 596 |
| C. Panel depth | 16 – 20 | 16 – 20 |
| D. Minimum clearance between base of door panel and cabinetry | 2 | 2 |
| E. Minimum clearance between top of door panel and countertop | 2 | 2 |
| Maximum weight of each drawer panel (including handle) | 9kg | |
*Core panel dimension. Panel can be extended or lowered to suit installation
**for more information on panel placement refer to fisherpaykel.com
CABINETRY
STANDARD INSTALL

| CABINETRY DIMENSIONS | MM |
| A. Minimum inside height | 456 |
| B. Inside width | 600 |
| C. Minimum inside depth* | 578 |
| D. Minimum toe kick height** | 100 |
*including 18mm door panels on adjacent cabinetry
**when venting through the same or adjacent cabinet. Refer to ‘External venting preparation’ for more information.
***for more information on service requirements, refer to ‘Plumbing & electrical considerations’ and ‘Cabinetry preparation’.
ASSISTED OPENING INSTALL
The assisted opening unit should be installed at the centre front of the cavity. For more information on assisted opening installations, refer to the guidance provided with the unit or fisherpaykel.com

| CABINETRY DIMENSIONS | MM |
| A. Minimum inside height* | 511 |
| B. Minimum inside height from top of spacer blocks | 456 |
| C. Inside width | 600 |
| D. Minimum inside depth** | 578 |
| E. Minimum toe kick height*** | 100 |
*including an 18mm high spacer and two 55mm high spacer blocks
**including 18mm door panels on adjacent cabinetry
***when venting through the same or adjacent cabinet. Refer to ‘External venting preparation’ for more information.
****for more information on service requirements, refer to ‘Plumbing & electrical considerations’ and ‘Cabinetry preparation’.
Assisted opening units can be purchased separately.
CLEARANCES

| CABINETRY CLEARANCES | MM |
| A Minimum clearance to adjacent cupboard door | 2 |
| B Minimum clearance to corner cupboard* | 13 |
*Access to both sides of the product will be required during installation. If access is not possible, the tubs may need to be removed for door installation and adjustments. Refer to page 16 for guidance on drawer removal.
PLUMBING & ELECTRICAL CONSIDERATIONS
Hose and cord lengths
- Your services can be installed to either the left-hand or right-hand side of the product in an adjacent cabinet. Refer to ‘Cabinetry preparation’ for service access requirements.
- If the drain hoses supplied are not long enough to reach your services, you may purchase a Fisher & Paykel drain hose extension kit which will extend the drain hoses by 3.6m (part number 525798).
Water connection
- Recommended water temperature: Cold (maximum 60°C) z 3/4″ BSP (GB20) to suit flat washer
- Ensure water connection complies with local plumbing regulations.
Water pressure
- Water softener models: max. 1 MPa (145 psi), min. 0.1 MPa (14.5 psi)
- Non-water softener models: max. 1 MPa (145 psi), min. 0.03 MPa (4.3 psi)
Electrical requirements
- 220240V min 4.2A
Assisted Opening electrical requirements
- A double power socket is required

| SERVICE DIMENSION | LEFT SIDE* | RIGHT SIDE* |
| MM | MM | |
| A. Length of drain hoses | 2000 | 1700 |
| B. Length of power cord** | 1650 | 1550 |
| C. Length of inlet hose | 1650 | 1250 |
| D. Minimum distance from floor to top of hose support | 750 | 750 |
| E. Minimum distance from floor to end of drain hoses*** | 500 | 500 |
| F. Minimum distance from floor to inlet hose connection | 200 | 200 |
| G. Maximum distance from cabinetry to the centre of electrical outlet | 450 | 450 |
CABINETRY PREPARATION
SERVICE ACCESS
- Service holes can be created on either side of the DishDrawerTM Dishwasher cavity as shown below.
- If the hole is created through wood, ensure the edges are smooth and rounded.
- If the hole is created through metal, ensure the supplied edge protector is fitted.

| SERVICE HOLE DIMENSIONS | MM |
| A. Maximum distance between rear of cavity and service hole | 5 |
| B. Maximum distance between shelf* and service hole | 10 |
| C. Minimum diameter of service hole | 57 |
| D. If venting through the adjacent cabinetry, the rear edge of the service hole should be enlarged by cutting out the bottom corner |
*For assisted opening installations, maximum distance should be referenced from the top of the spacer blocks
MOISTURE PROTECTION
Align the supplied moisture protection tape to the cabinetry as illustrated
Ensure this area is free of debris before carefully applying the tape to the surface.

EXTERNAL VENTING PREPARATION
To prevent the build up of condensation produced by your DishDrawerTM Dishwasher, the external venting kit must be installed via one of the following options:
THROUGH SAME CABINET
![]() | ![]() | ![]() |
| • A toe kick height of at least 100mm is required. • A Ø57mm service hole should be created through the side wall following the guidance under ‘Cabinetry preparation’. In addition to this, a second Ø57mm service hole must be also be created through the shelf and the base of the cavity to route the venting hose through. • Frameless cabinetry: A 100mm x 200mm cutout must be created at the front of the cabinetry base to secure the duct to. • Framed cabinetry: A toe kick depth of at least 60mm is required. In addition, a 100mm x 200mm cutout must be created within the adjacent cabinetry base to secure the duct to. This cutout should be set back a minimum of 25mm from the frame edge for optimal venting. *Frameless install illustrated | • A toe kick height of at least 100mm is required. • A notched-out Ø57mm service hole should be created through the side wall following the guidance under ‘Cabinetry preparation’. • Frameless cabinetry: A 100mm x 200mm cutout must be created in the base of the adjacent cabinetry to secure the duct to. • Framed cabinetry: A toe kick depth of at least 60mm is required. In addition, a 100mm x 200mm cutout must be created within the adjacent cabinetry base to secure the duct to. This cutout should be set back a minimum of 25mm from the frame edge for optimal venting. *Frameless install illustrated | • There is no minimum toe kick height for venting the DishDrawer™ Dishwasher through the floor below the cabinetry, the space below the floor however, must be a sub-area of the house and have adequate airflow. • A Ø57mm service hole should be created through the side wall following the guidance under Cabinetry preparation’. In addition to this, a Ø57mm service hole must be also be created through the shelf, the base of the cavity and the floor to route the venting hose through. • The duct is not required for this venting method. • Ensure all cutout edges are smooth and rounded and the supplied edge protector is fitted if required. • Ensure cutout in the floor is sealed adequately. |
FIT THE TRIM BRACKET
We recommend fitting the trim bracket when installing your DishDrawerTM Dishwasher into a 480mm cavity to conceal any visible gap left between the countertop and chassis.
![]() | Align the bracket to the chassis ensuring the arrow is facing forward and firmly slot the tabs into place to secure. Ensure the ends of the tabs are not pushed into the chassis. |
![]() | Check the trim seal is facing forward and sitting flat under the bracket. |
PREPARE EXTERNAL VENTING
FIT THE VENTING HOSE TO THE DISHDRAWERTM DISHWASHER
![]() | Rotate the elbow at the rear of the product to either the left or right depending on your venting location. |
![]() | Push the vent hose onto the elbow firmly to secure. |
TRIM THE DUCT
![]() | Unscrew the top cover from the vent and set aside. |
![]() | On a protected surface, carefully cut and remove the clips from the vent as shown. Refit the top cover. |
PUSH THE PRODUCT INTO THE CAVITY
![]() | If securing via bracket method: Secure all four side brackets to the DishDrawer™ Dishwasher, aligning bracket A with slot A and bracket B with slot B. Ensure the ends of the brackets are not pushed into the chassis. |
![]() | Push the product into the cavity, pulling the hoses through as you push to avoid crushing or twisting them. |
SECURE THE VENTING HOSE TO CABINETRY
VENTING THROUGH CABINETRY
![]() | Unframed cabinetry Route the venting hose to the cutout and push onto the duct firmly to secure. Push the duct onto the cabinetry and secure using the four provided screws. |
![]() | Unframed cabinetry Route the venting hose to the cutout and push onto the duct firmly to secure. Push the duct onto the cabinetry and secure using the four provided screws. |
VENTING THROUGH FLOOR

Route the venting hose through the floor. Ensure any excess hose is removed.
FIT THE CUSTOM PANEL
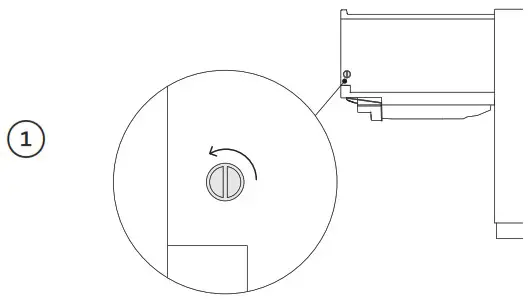
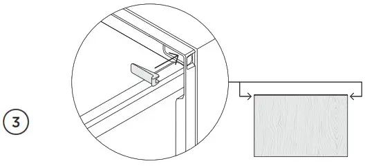
![]() | Remove both side pins by twisting a quarter-turn towards the product front. Pull outwards to remove pin. |
![]() | Carefully pull the bracket down and out from DishDrawer™ Dishwasher and unplug the Knock-to-Pause module and earth wire. Remove the Knock-to-Pause module from the back of the bracket. |
![]() | On the back of the panel, mark the centre and align the base of the bracket with the base of the panel. |
![]() | Secure the bracket to the panel using a minimum of 3 screws on either side. |
![]() | Attach the Knock-to-Pause module to the panel as shown. Ensure the Knock-to-Pause module is oriented correctly and is not in contact with the bracket before securing. |
![]() | Electric shock hazard: To earth the panel bracket, connect the earth wire from the product to one of the tabs. Any custom metal components (e.g. handle) that extend past the rubber seal must be earthed also. Reconnect the Knock-to-Pause module to the UI 1 slot on the wash controller as shown. Reconnect the earth wire to the panel bracket before fitting the panel to the product. |
![]() | Re-insert both side pins to each drawer by pushing in and twisting a quarter-turn towards the rear of the product to secure panels into place. |
![]() | Insert a Phillips screwdriver into the hole above the side pin and rotate to adjust the panel alignment. There is a maximum travel distance of ± 2mm. Repeat on the other side if required. Ensure the minimum clearance gap of 2mm is maintained. |
SECURE TO CABINETRY VIA BRACKETS (METHOD A)
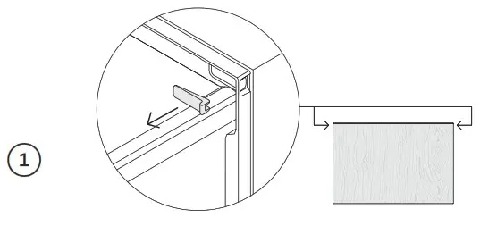
![]() | Partially open the drawer and remove the first screw cover from the trim moulding. |
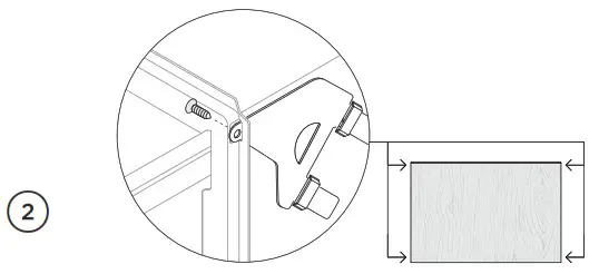
![]() | Secure to cabinetry via the brackets. Pre-drilling a pilot hole may be required depending on the cabinetry material. |
![]() | Replace the trim cover and repeat for the remaining brackets. |
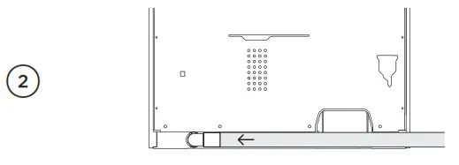
SECURE TO CABINETRY VIA DRAWER REMOVAL (METHOD B)
![]() | Open the drawer and press both locking tabs back to release. |
![]() | Lift the drawer off the runners and carefully set aside on a protected surface. Push runners back in. Take care not to pull drawer out too far to prevent any strain on the hoses. Where possible, protect the base of the tub to prevent damage. |
![]() | Secure to cabinetry via all three fixing locations in the chassis. Ensure sound insulation is replaced correctly. |
![]() | Before refitting the drawer, ensure the hoses are not twisted. Refit the drawer to the runners and clip into place via both locking tabs. |
PLUMBING & ELECTRICAL CONNECTION
Ø38MM STANDPIPE INSTALLATION
![]() | Install the drain hose support to the back wall, as close to the underside of the benchtop as possible. Refer to ‘Plumbing & electrical considerations’ for minimum install heights. |
![]() | Pull the hose through the support guide and rest in standpipe. Ensure the hose does not extend any further than 120mm into the standpipe to prevent waste water from siphoning back into the tub. |
![]() | Ensure the supplied rubber washer is fitted to the coupling before connecting the inlet hose to tap. Hand-tighten into place. Using a spanner or pliers, turn a further 180˚ to secure. Avoiding over-tightening. Do not turn water supply on. The DishDrawer™ Dishwasher must be powered on for the flood protection feature to be enabled. |
![]() | Plug product in. |
SINK TRAP/WASTE TEE INSTALLATION
![]() | Install the drain hose support to the back wall, as close to the underside of the benchtop as possible. Refer to ‘Plumbing & electrical considerations’ for minimum install heights. |
![]() | Install the drain hose support to the back wall, as close to the underside of the benchtop as possible. Refer to ‘Plumbing & electrical considerations’ for minimum install heights. |
![]() | Ensure the supplied rubber washer is fitted to the coupling before connecting the inlet hose to tap. Hand-tighten into place. Using a spanner or pliers, turn a further 180˚ to secure. Avoiding over-tightening. Do not turn water supply on. The DishDrawer™ Dishwasher must be powered on for the flood protection feature to be enabled. |
![]() | Plug product in. |
INSTALLER CHECKLIST
TO BE COMPLETED BY THE INSTALLER
Installation
- Check all parts are installed correctly and are secure. Ensure DishDrawerTM Dishwasher is secure and drawer opens and closes freely with
no resistance. - Ensure panel is fitted correctly to the DishDrawerTM Dishwasher
- Ensure any packaging or tape securing the racks and spray arm is removed.
- Check the spray arm is in place, mounted correctly and rotate freely.
- Ensure knock-to-pause module is fitted securely and operating correctly.
Plumbing
- Ensure any knock-outs or plugs in drain connection have been drilled out and drain connection has been made.
- The drain hose joiner must not support the weight of excess hose material. Keep drain hose as fully extended as possible to prevent sagging. Any excess length of drain hose should be kept on the dishwasher side of the highloop.
- Ensure inlet hose has supplied rubber washer fitted, and that it’s tightened.
- If connecting the drain hose to the sink trap, ensure the highloop is a minimum 150mm higher than the drain hose joiner.
- Water softener models: adjust the water softener setting from the default setting to suit the water hardness of the area. Refer to your user guide.
- Ensure water supply is turned off until power is connected and turned on. The DishDrawerTM Dishwasher must be powered on for the flood protection feature to be enabled.
Electrical
- Ensure all electrical tests have been conducted in accordance with local regulations.
Test operation
- Turn on the power and water supplies, then open the drawer. You should hear a beep and see a program indicator light up on the control panel.
- Add three cups of water into the drawer.
- Navigate to RINSE and start the program.
- Repeat for the other drawer.
- After the Rinse cycle has finished, ensure the dishwasher has run and drained correctly.
- Check the water supply has been shut off correctly.
- Check drainage connections for leaks.
- If site is left without power after installation is complete, ensure water supply is turned off to prevent flooding.
TROUBLESHOOTING
| DISPLAY | POSSIBLE CAUSE | WHAT TO DO |
| RINSE + all modifiers | A1: Water Supply fault. | 1. Ensure the water supply is turned on. 2. Press once to stop the beeping, then again to clear the fault. 3. Press to resume the wash program. |
| ECO, RINSE + all modifiers | A3: Drawer cannot drain. The drainage hose may be blocked or kinked, or the connection to drainage pipe may be blocked. | 1. Ensure the drainage hose and connection to pipes are not blocked. 2. Press once to stop the beeping, then again to clear the fault. 3. Press to resume the wash program. |
| 1. Ensure the filter is installed correctly. Refer to ‘Replacing the filter’ in your user guide. 2. Press once to stop the beeping, then again to clear the fault. 3. Press to resume the wash program. | ||
| GLASSWARE, ECO + all modifiers | A6: The spray arm has loosened or come off its mounting, or water pressure is too low, or a combination of low water pressure and excessive foaming. | 1. Open the drawer and check the spray arm. 2. If the spray arm has loosened or come off its mounting, re-fit it. Check that it is firmly seated and turns freely. Refer to ‘Maintenance’ in your user guide. 3. Press once to stop the beeping, then again to clear the fault. 4. Press to resume the wash program. |
No program indicator lights up when the drawer is opened
- Ensure power is connected and is switched on.
- AUTO POWER-ON may need to be activated. Refer to your user guide for details.
Drawer doesn’t close properly
- Ensure nothing is obstructing the drawer from closing such as hoses or drawer latches.
Water appears around water supply and drain connections
- Check hoses, connections and existing plumbing for leaks.
- Check rubber washer and hose clamp are correctly fitted.
Product is tipping
- Ensure the product is secured to the cabinetry.
Front panels are misaligned to surrounding cabinetry
- Check cabinetry is square.
- Re-adjust door panels using the door adjustment screws. Refer to page 15 for guidance.
- Re-secure DishDrawerTM Dishwasher to cabinetry
If a problem occurs that is not listed, refer to your user guide for additional troubleshooting If after checking these points, you still need assistance, please refer to the Service & Warranty book for warranty details or contact us through our website fisherpaykel.com
FISHERPAYKEL.COM
© Fisher & Paykel Appliances 2021. All rights reserved.
The models shown in this guide may not be available in all markets and are subject to change at any time.
The product specifications in this guide apply to the specific products and models described at the date of issue.
Under our policy of continuous product improvement, these specifications may change at any time.
For current details about model and specification availability in your country, please go to our website or contact your local Fisher & Paykel dealer.
592364A
03.21























































