
DOUBLE DISHDRAWER™ DISHWASHER
CONTEMPORARY
DD24DTX6PX1
INSTALLATION GUIDE
US CA
SAFETY AND WARNINGS
![]() | |
![]() | Electric Shock Hazard Failure to follow this advice may result in electrical shock or death.
|
![]() | |
![]() | Cut Hazard Failure to use caution could result in injury. • Take care – panel edges are sharp. |
![]() | |
![]() | Trip Hazard Failure to follow this advice may result in injury or product damage.
|
WARNING!
To reduce the risk of fire, injury to persons, or damage when using the appliance, follow the important safety instructions listed below. Read all the guidelines before using the appliance.
Servicing
- Do not repair or replace any part of the appliance unless specifically recommended in this guide. All other servicing should be undertaken by a Fisher & Paykel trained and supported service technician or qualified person.
Installation
- Installation of this DishDrawer™ Dishwasher requires basic mechanical and electrical skills.
- Installation must comply with your local building and electricity regulations.
- Remove all packaging materials supplied with the dishwasher.
- Be sure to leave these Instructions with the Customer.
- At the completion of the installation, the Installer must perform the Final Checklist.
- This dishwasher is manufactured for indoor use only.
- Ensure all water connections are turned OFF. It is the responsibility of the plumber and electrician to ensure that each installation complies with all Codes and Regulations.
- The DishDrawer™ Dishwasher MUST be installed to allow for future removal from the enclosure if service is required.
- The switched power outlet must be outside the dishwasher cavity so that it is accessible after installation.
- Care should be taken when the appliance is installed or removed to reduce the likelihood of damage to the power supply cord and hoses.
- If the DishDrawer™ Dishwasher is relocated from one installation site to another it must be kept upright to avoid damage from water spillage.
- Ensure only supplied hoses are used for the connection. Old hoses should not be reused.
- Failure to install correctly could invalidate any warranty or liability claims.
- If the product is installed in a motor vehicle, boat, or similar mobile facility, you must bring the vehicle, boat, or mobile facility containing the product to the service shop at your expense or pay the service technician’s travel to the location of the product.
SAVE THESE INSTRUCTIONS
The models shown in this installation guide may not be available in all markets and are subject to change at any time. For current details about model and specification availability in your country, please go to our website www.fisherpaykel.com or contact your local Fisher & Paykel dealer.
TOOLS AND COMPONENTS
PARTS SUPPLIED
- Keep all packing materials until the unit has been inspected.
- Inspect the product to ensure there is no shipping damage. If any damage is detected contact the dealer or retailer you bought the product from to report the damage.
- Fisher & Paykel is not responsible for shipping damage.
Supplied

TOOLS REQUIRED
Not supplied

INSTALL VIDEO
This video provides an overview of what is needed to install a DishDrawer™ Dishwasher. It is intended as an overview only of the installation process and is not intended to be used as a standalone guide on how to install a DishDrawer™ Dishwasher yourself. Installation should be undertaken by a Fisher & Paykel trained and supported service technician or qualified person.
To access installation videos
Scan the QR code with your smartphone or watch online at: fisherpaykel.com/dishdrawer-install
PRODUCT DIMENSIONS
![]() | ![]() |
| PRODUCT DIMENSIONS | INCHES | MM |
| A Overall height* | 34 – 36 3/8 | 864 – 924 |
| B Overall width | 23 9/16 | 599 |
| C Overall depth | 22 9/16 | 573 |
| D Height of chassis | 22 9/16 | 856 |
| E Depth of chassis | 21 3/4 | 553 |
| F Height of upper door panel | 17 3/8 | 442 |
| G Height of lower door panel | 12 5/16 | 313 |
| H Depth of door panel | 13/16 | 20 |
| I Gap between door panels | 16-May | 8 |
| J Depth of toe kick recess** | 1 1/2 – 2 1/8 | 38 – 54 |
| K Height of toe kick panel** | 2 5/8 – 5 | 66 – 127 |
| L Height of feet* | 3/8 – 2 3/4 | 9 – 69 |
| M Max. drawer extension from the drawer front | 21 9/16 | 547 |
| N Height from top of drawer panel to top of chassis | 16-Jan | 2 |
| O Height from top of chassis to bottom of the lower drawer panel | 30 1/8 | 765 |
*depending on the adjustment of leveling feet
**adjustable
CABINETRY
DIMENSIONS

| CABINETRY DIMENSIONS | INCHES | MM |
| A Minimum inside height* | 34 | 864 |
| B Inside width | 23 5/8 | 600 |
| C Minimum inside depth** | 22 3/4 | 578 |
| D Recommended height of adjacent cabinetry | 30 | 762 |
| E Height of toe kick area*** | 3 15/16 – 6 5/16 | 100 – 160 |
*depending on the adjustment of leveling feet
**including 11/16″ (18mm) door panels on adjacent cabinetry
***For more information on service requirements, refer to ‘Plumbing & electrical considerations’ and ‘Preparation’.
CLEARANCES

| CABINETRY CLEARANCES | INCHES | MM |
| Minimum clearance to the adjacent cupboard door | 16-Jan | 2 |
| B Minimum clearance to a corner cupboard | 2-Jan | 13 |
PLUMBING & ELECTRICAL CONSIDERATIONS
Hose and cord lengths
- Your services can be installed on either the left-hand or right-hand side of the product in an adjacent cabinet. Refer to ‘Preparation’ for service access requirements.
- If the drain hoses supplied are not long enough to reach your services, you may purchase a Fisher & Paykel drain hose extension kit which will extend the drain hoses by 3.6m (part number 525798).
Water connection
- Recommended water temperature: Hot (Maximum 140°F/60°C).
- Supplied hose to suit 3/8″ (9 mm) male compression fitting.
- Ensure water connection complies with local plumbing regulations.
Water pressure
- Water softener models: max. 1 MPa (145 psi), min. 0.1 MPa (14.5 psi)
- Non-water softener models: max. 1 MPa (145 psi), min. 0.03 MPa (4.3 psi)
Electrical requirements
- 110-120 VAC max. 15A
Kosher requirements
- Drains will need to be separated to satisfy kosher requirements.
- We recommend confirming the acceptability with your local rabbi with respect to kosher installations.

| LEFT SIDE* | RIGHT SIDE* | |||
| SERVICE DIMENSION | INCHES | MM | INCHES | MM |
| A Length of drain hoses | 78 1/2 | 2000 | 70 1/2 | 2000 |
| B Length of power cord** | 64 3/4 | 1650 | 64 3/4 | 1650 |
| C Length of the inlet hose support | 64 3/4 | 1650 | 49 | 1650 |
| D Distance from floor to top of the hose support | 29 1/2 – 34 3/4 | 750 – 883 | 29 1/2 – 34 3/4 | 750 –883 |
| E Minimum distance from the floor to the end of drain hoses*** | 19 11/16 | 500 | 19 11/16 | 500 |
| F Minimum distance from the floor to inlet hose connection | 7 7/ 8 | 200 | 7 7/ 8 | 200 |
| G Maximum distance from cabinetry center of electrical outlet | 17 11/16 | 450 | 17 11/16 | 450 |
| H Maximum distance from the floor to the top of the Air Brake | 37 3/8 | 950 | 37 3/8 | 950 |
*dimensions are taken from the chassis edge where applicable
**excluding plug
***standpipe install illustrated. Distance is the same for sink trap installations.
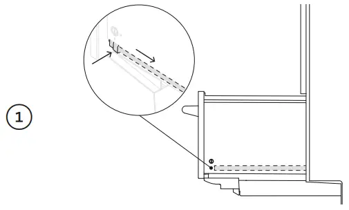
HARD-WIRING (OPTIONAL)
You have the option to hard-wire your DishDrawer™ Dishwasher. To do this, we recommend removing the supplied power cord and doing the hardwiring installation as close to the cavity as possible.

Open the lower drawer and press both locking tabs back to release.

Lift the drawer of the runners and carefully set it aside on a protected surface. Push runners back in. Take care not to pull the drawer out too far to prevent any strain on the hoses. Where possible, protect the base of the tub to prevent damage.

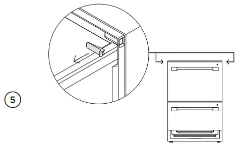
Remove the screw securing the cover. Set aside.

Push the upper latch back to unlock using your hand.
Release the remaining locking clips using a flat-bladed screwdriver.

Lift the cover upwards until you are able to pull it out towards you to remove it.

Unscrew the Live, Neutral, and Earth wires as illustrated.
Ensure the upper Earth wire is not removed.

Carefully remove the cord from the product. Set toroid aside for later use.

Fit a suitable cable clamp for the conduit through the metal knockout. Route wiring behind the tab and through the toroid was removed earlier. Ensure only copper conductors are used.

Fix the Live and Neutral wires to the terminal block and the Earth wire to the chassis.

Position the cover fill valve into place before lowering the rest of the cover into position. Lower the cover back into place ensuring the locking clips are aligned, the rear hook is positioned over the slot and the L rib is cleared.

Lock clips back into place by pressing down on the cover firmly. Ensure all illustrated areas are engaged.

Refit screw to secure cover.

Ensure the hoses are not twisted before refitting the drawer to the runners and clipping it into place via both locking tabs.
PREPARATION
SERVICE ACCESS
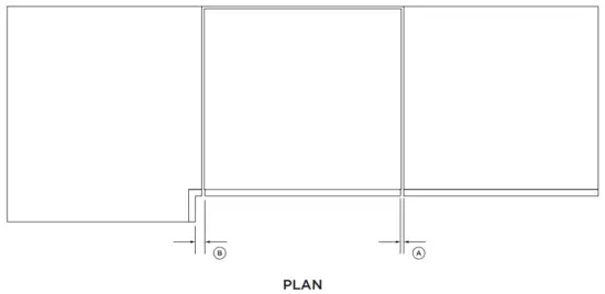
- We recommend locating the service holes on either side of the DishDrawer™ Dishwasher as shown below.
- If the holes are created through wood, ensure the edges are smooth and rounded
- If the holes are created through metal, ensure the supplied edge protector is fitted.
- Ensure the power cord is routed through a separate service hole to the hoses.

| SERVICE HOLE DIMENSIONS | INCHES | MM |
| A Maximum distance between the rear of the cavity and the service hole | 4-Jan | 5 |
| B Maximum distance between floor and service hole | 2-Jan | 10 |
| C Minimum diameter of hose service hole | 2 1/4 | 57 |
| D Maximum diameter of power cord service hole | 1 1/2 | 38 |
MOISTURE PROTECTION

Align the supplied moisture protection tape to the cabinetry as illustrated Ensure this area is free of debris before carefully applying the tape to the surface.
SOUND SEAL (OPTIONAL)
For best results, we recommend installing the supplied sound seal to reduce the possibility of any excess noise occurring during daily use.

Cavity height of 34 – 34 7/16″ (864 – 874mm)
Lay the sound seal flat, do not fold.
Cavity height of 34 7/16″ + (874mm +) Fold the sound seal as illustrated.

Gently tilt the DishDrawer™ Dishwasher back and align the seal to the front feet. Carefully lower the product and ensure the seal is still positioned correctly.
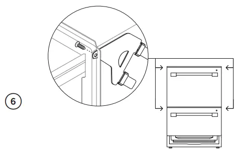
SECURE TO CABINETRY VIA BRACKETS (METHOD A)

Secure all four side brackets to the DishDrawer™ Dishwasher, aligning bracket A with slot A and bracket B with slot B.
Ensure the ends of the brackets are not pushed into the chassis.

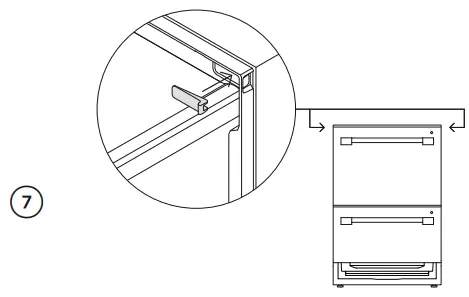
Optionally, fit the two top brackets for additional stability. Ensure the brackets are oriented correctly with the raised locking barbs facing upwards.
Ensure the ends of the brackets are not pushed into the chassis.

Level the DishDrawer™ Dishwasher by carefully tipping it onto the protected surface.
Rotate each leg clockwise to increase the height, and anticlockwise to decrease. Stand upright when complete. Minor adjustments can be made by lightly tilting the product and rotating each leg as desired.

Push the product into the cavity, pulling the hoses through as you push to avoid crushing or twisting them and taking care not to bend the legs.
Push the product in the positions illustrated to avoid denting the door.
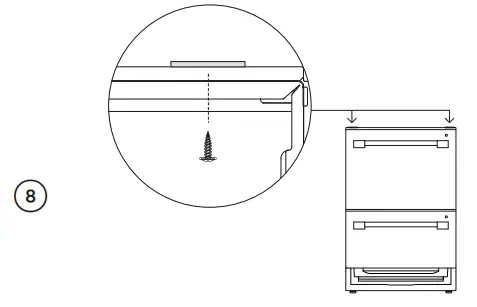
Partially open one of the drawers and remove the first screw cover from the trim molding.

Secure to cabinetry via the brackets.
Pre-drilling a pilot hole may be required depending on the cabinetry material.

Replace the trim cover and repeat for the remaining brackets.

If fitted in step 2, secure the two top brackets to the cabinetry.
SECURE TO CABINETRY VIA DRAWER REMOVAL (METHOD B)

Optionally, fit the two top brackets.
Ensure the ends of the brackets are not pushed into the chassis.

Push the product into the cavity, pulling the hoses through as you push to avoid crushing or twisting them and taking care not to bend the legs.
Push the product in the positions illustrated to avoid denting the door.

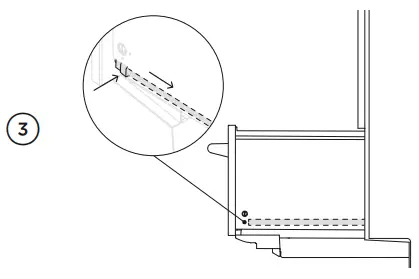
Open the lower drawer and press both locking tabs back to release.

Lift the drawer of the runners and carefully set it aside on a protected surface. Push runners back in.
Take care not to pull the drawer out too far to prevent any strain on the hoses. Where possible, protect the base of the tub to prevent damage.

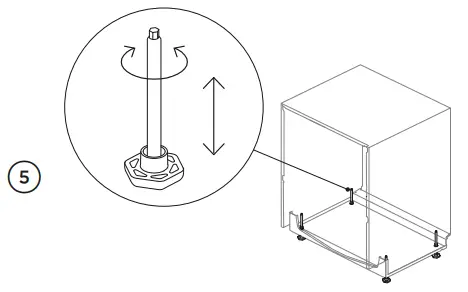
Using the supplied hex socket and a screwdriver, level the DishDrawer™ Dishwasher as required. Rotate clockwise to increase the height of each leg and anticlockwise.
It can help to reduce the loading on the feet to assist the adjustment process to decrease the height.

Secure to cabinetry via all four fixing locations in the chassis. Ensure sound insulation is replaced correctly.
If fitted, secure the two top brackets to the cabinetry.

Before refitting the drawer, ensure the hoses are not twisted.

Refit the drawer to the runners and clip it into place via both locking tabs.
INSTALL TOE KICK

Measure toe kick height against the base of the lower tub.

Carefully score toe kick at the desired height.

Snap off excess toe kick material and both end tabs. Smooth the edges.

Slide toe kick onto the mounting rails and secure. Ensure a 12mm clearance is maintained between the floor and the toe kick, the end tabs can be used to measure this if desired. Do not over-tighten the screws.
PLUMBING & ELECTRICAL CONNECTION
Ø38MM STANDPIPE INSTALLATION

Install the drain hose support to the back wall, as close to the underside of the countertop as possible. Refer to ‘Plumbing & electrical considerations’ for minimum installation eights.

Pull both hoses through the support guide and rest in the standpipe.
Ensure the drain hose does not extend into water retained in the trap; an air gap is required to prevent wastewater from siphoning back into the tub.

Connect the inlet hose to tap and hand tighten into place. Using a spanner or pliers, turn a further 180° to secure. Avoiding over-tightening. Do not turn the water supply on. The DishDrawer™ Dishwasher must be powered on for the flood protection feature to be enabled.
Plug product in.
SINK TRAP/WASTE TEE INSTALLATION

Install the drain hose support to the back wall, as close to the underside of the countertop as possible. Refer to ‘Plumbing & electrical considerations’ for minimum installation lights. 
Pull both hoses through the drain hose support before threading the wire clips onto the hoses and fitting them to the supplied hose joiner. Secure using the wire clips.
Ensure the hose is routed straight to the joiner, removing excess drain hose if necessary. Do not shorten the inlet hose. Unplug or drill out the waste tee before securing the joiner to the sink trap or waste tee.

Connect the inlet hose to tap and hand tighten into place. Using a spanner or pliers, turn a further 180° to secure. Avoiding over-tightening. Do not turn the water supply on. The DishDrawer™ Dishwasher must be powered on for the flood protection feature to be enabled.

AIR GAP INSTALLATION

Install your Air Gap Kit to the benchtop.
We recommend using a Dual Air Gap Kit.
Refer to ‘Plumbing & electrical connection’ for minimum install heights.

Thread wire clips onto the hoses before fitting them to the hose joiner. Secure using the wire clips. Fit the joiner to the Air Gap Kit and secure using the hose clamp. Ensure hoses are routed straight to the joiner, removing excess drain hose if necessary. Unplug or drill out the waste tee before securing it to the sink trap or waste tee.

Connect the inlet hose to tap and hand tighten into place. Using a spanner or pliers, turn a further 180° to secure. Avoiding over-tightening.
Do not turn the water supply on. The DishDrawer™ Dishwasher must be powered on for the flood protection feature to be enabled.

Plug product in.
INSTALLER CHECKLIST
TO BE COMPLETED BY THE INSTALLER
Installation
- Check all parts are installed correctly and are secure.
- Ensure all clearance gaps have been maintained.
- Ensure DishDrawer™ Dishwasher is secure and the drawer opens and closes freely with no resistance.
- Ensure any packaging or tape securing the racks and spray arm is removed.
- Check the spray arm is in place, mounted correctly, and rotates freely.
- Ensure the knock-to-pause module is fitted securely and operating correctly.
Plumbing
- Ensure any knock-outs or plugs in the drain connection have been drilled out and drain the connection has been made.
- The drain hose joiner must not support the weight of excess hose material. Keep drain hose as fully extended as possible to prevent sagging. Any excess length of the drain hose should be kept on the dishwasher side of the high loop.
- Ensure the inlet hose has supplied a rubber washer fitted, and that it’s tightened.
- If connecting the drain hose to the sink trap, ensure the high loop is a minimum of 5 7/8″ (150mm) higher than the drain hose joiner.
- Water softener models: adjust the water softener setting from the default setting to suit the water hardness of the area. Refer to your user guide.
- Ensure water supply is turned off until power is connected and turned on. The DishDrawer™ Dishwasher must be powered on for the flood protection feature to be enabled.
Electrical
- Ensure all electrical tests have been conducted in accordance with local regulations.
Test operation
- Turn on the power and water supplies, then open the drawer. You should hear a beep and see a program indicator light up on the control panel.
- Add three cups of water into the drawer.
- Navigate to RINSE and start the program.
- Repeat for the other drawer.
- After the Rinse cycle has finished, ensure the dishwasher has run and drained correctly.
- Check the water supply has been shut off correctly.
- Check drainage connections for leaks.
- If the site is left without power after installation is complete, ensure the water supply is turned off to prevent flooding.
TROUBLESHOOTING
| DISPLAY | POSSIBLE CAUSE | WHAT TO DO |
RINSE + all modifiers | A1: Water Supply fault. | 1 Ensure the water supply is turned on. 2 Press▶ once to stop the beeping, then again to clear the fault. 3 Press▶ to resume the wash program. |
![]() ECO, RINSE + all modifiers | A3: The drawer cannot drain. The drainage hose may be blocked or kinked, or the connection to the drainage pipe may be blocked. | 1 Ensure the drainage hose and connection to pipes are not blocked. 2 Press▶ once to stop the beeping, then again to clear the fault. 3 Press▶ to resume the wash program. 1 Ensure the filter is installed correctly. Refer to ‘Replacing the filter’ in your user guide. 2 Press▶ once to stop the beeping, then again to clear the fault. 3 Press▶ to resume the wash program. |
![]() GLASSWARE, ECO +all modifiers | A6: The spray arm has loosened or come off its mounting, or water pressure is too low, or a combination of low water pressure and excessive foaming. | 1 Open the drawer and check the spray arm. 2 If the spray arm has loosened or come off it’s mounting, re-fit it. Check that it is firmly seated and turns freely. Refer to ‘Maintenance’ in your user guide. 3 Press▶ once to stop the beeping, then again to clear the fault. 4 Press▶ to resume the wash program. |
No program indicator lights up when the drawer is opened
- Ensure power is connected and is switched on.
- AUTO POWER-ON may need to be activated. Refer to your user guide for details.
The drawer doesn’t close properly
- Ensure nothing is obstructing the drawer from closing such as hoses or drawer latches.
Water appears around the water supply and drains connections
- Check hoses, connections, and existing plumbing for leaks.
- Check rubber washer and hose clamp are correctly fitted.
Product is tipping
- Ensure the product is secured to the cabinetry.
If a problem occurs that is not listed, refer to your user guide for additional troubleshooting after checking these points, if you still need assistance, please refer to the Service & Warranty book for warranty details or contact us through our website fisherpaykel.com
FISHERPAYKEL.COM
© Fisher & Paykel Appliances 2021. All rights reserved.
The models shown in this guide may not be available in all markets and are subject to change at any time.
The product specifications in this guide apply to the specific products and models described at the date of issue. Under our policy of continuous product improvement, these specifications may change at any time.
For current details about model and specification availability in your country, please go to our website or contact your local Fisher & Paykel dealer.
592805A 12.21






RINSE + all modifiers




















