AMAG Access and Power Integration

Overview
Trove2AG2/Trove2AM2 and Trove3AM3 accommodates AMAG boards with or without Altronix power supplies and sub-assemblies for access systems.
Specifications
Trove2AG2 – Trove2 enclosure with TAG2 Altronix/AMAG M4000 backplane
Trove2AG2 accommodates a combination of the following:
Altronix Modules:
- Up to two (2) eFlow4NB, eFlow6NB, eFlow102NB, eFlow104NB or PoE201.
- One (1) NetWaySP4B.
- Up to three (3) LINQ8PD/ LINQ8PDCB, ACM8/ACM8CB, ACMS8/ACMS8CB, ACM4/ACM4CB, MOM5, PD4UL/PD4ULCB, PD8UL/PD8ULCB, PDS8/PDS8CB, or VR6.
AMAG Modules:
- Up to three (3) M4000 modules.
- Includes: tamper switch, cam lock, lock nuts, and mounting hardware.
- 16 Gauge enclosure with ample knockouts for convenient access.
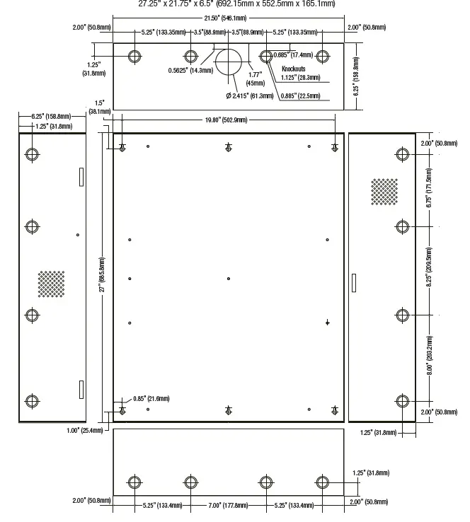
- Enclosure Dimensions (H x W x D): 27.25” x 21.75” x 6.5” (692.15mm x 552.5mm x 165.1mm).
TAG2 – Altronix/AMAG M4000 backplane only
Includes mounting hardware.
- Dimensions (H x W x D): 25.375” x 19.375” x 0.3125” (644.5mm x 482.6mm x 7.9mm).
Trove2AM2 – Trove2 enclosure with TAM2 Altronix/AMAG M2150 backplane Trove2AM2 accommodates a combination of the following:
Altronix Modules:
- Up to two (2) eFlow4NB, eFlow6NB, eFlow102NB, eFlow104NB or PoE201.
- Up to two (2) LINQ8PD/ LINQ8PDCB, ACM8/ACM8CB, ACMS8/ACMS8CB, ACM4/ACM4CB, MOM5, PD4UL/PD4ULCB, PD8UL/PD8ULCB, PDS8/PDS8CB, or VR6.
AMAG Modules:
- One (1) M2150-2DBC, M2150-4DBC or M2150-8DBC modules.
- One (1) M2150-2DC, M2150-4DC or M2150-AC244 modules.
- Includes: tamper switch, cam lock, lock nuts and mounting hardware.
- 16 Gauge enclosure with ample knockouts for convenient access.
- Enclosure Dimensions (H x W x D): 27.25” x 21.75” x 6.5” (692.2mm x 552.5mm x 165.1mm).
TAM2 – Altronix/AMAG M2150 backplane
- 16 Gauge backplane.
- Includes mounting hardware.
- Dimensions (H x W x D): 25.375” x 19.375” x 0.3125” (644.6mm x 492.1mm x 7.9mm).
Trove3AM3 – Trove3 enclosure with TAM3 Altronix/AMAG M2150 / M4000 backplane Trove3AM3 accommodates a combination of the following:
Altronix Modules:
- Up to two (2) eFlow4NB, eFlow6NB, eFlow102NB, eFlow104NB or PoE201.
- Up to two (2) ACM8/ACM8CB, ACMS8/ACMS8CB.
- Up to four (4) LINQ8PD/ LINQ8PDCB, ACM4/ACM4CB, MOM5, PD4UL/PD4ULCB, PD8UL/PD8ULCB, PDS8/PDS8CB, VR6.
AMAG Modules:
- Up to two (2) M2150-4DC or M2150-AC244, M2150-DBU M2150-4DBC or M2150-8DBC modules.
- Up to four (4) M4000 modules.
- Includes: tamper switch, cam lock, lock nuts and mounting hardware.
- 16 Gauge enclosure with ample knockouts for convenient access.
- Enclosure Dimensions (H x W x D): 36.12” x 30.12” x 7.06” (917.5mm x 768.1mm x 179.3mm).
TAM3 – Altronix/AMAG M2150 / M4000 backplane
- 16 Gauge backplane.
- Includes mounting hardware. Dimensions (H x W x D): 34.0” x 28.0” x 0.3125” (863.6mm x 711.2mm x 7.9mm).
Agency Listings:
- UL 294 – 6th edition: Line Security I, Destructive Attack I, Endurance IV, Stand-by Power II*. * Stand-by Power Level I if no battery is supplied.
- This Class B digital apparatus complies with Canadian ICES-003. Cet appareil numérique de la classe B est conforme á la norme NMB-003 du Canada.
- CE European Conformity.
Installation Instructions for Trove2 / Trove3
- Remove backplane from enclosure prior to mounting (do not discard hardware).
- Mark and predrill holes in the wall to line up with the top keyholes in the enclosure. Install the upper fasteners and screws in the wall. with the screw heads protruding. Place the enclosure’s upper keyholes over the screws; level and secure. Mark the position of the lower holes. Remove the enclosure. Drill the lower holes and install the fasteners. Place the enclosure’s upper keyholes over the upper screws. Install the lower screws and make sure to tighten all screws (Enclosure Dimensions, pg. 10, 12).
- Mount included UL Listed tamper switch(es) (Altronix Model TS112 or equivalent) in desired location, opposite hinge. Slide the tamper switch bracket onto the edge of the enclosure approximately 2” from the right side (Fig. 1, pg. 3). Connect tamper switch wiring to the Access Control Panel input or the appropriate UL Listed reporting device. To activate alarm signal open the door of the enclosure.
- Mount Altronix/AMAG boards to backplane, refer to pages 4-6.
TAG2: Configuration of Altronix Power Supply and/or Sub-Assembly Boards and AMAG M4000 Boards
- Fasten spacers (provided) to pems that match the hole pattern for Altronix power supply/chargers and sub-assemblies (Fig. 2, pg. 4). Fasten metal spacers in the correct locations to provide proper grounding, see below (Fig. 2, pg. 4). Fasten spacers (provided) to pems that match the hole pattern for AMAG M4000 modules.
- Mount boards to spacers utilizing 5/16” pan head screws (provided) (Fig. 2, 2a, pg. 4).
- Fasten TAG2 backplane to Trove2 enclosure utilizing lock nuts (provided).
Power Supply, Sub-Assembly and Access Controller Position Chart for the Following Models
| Boards | Pem Mounting |
| eFlow4NB, eFlow6NB, eFlow102NB, eFlow104NB, ACM8/ACM8CB, ACMS8/ACMS8CB or PoE201 | A |
| NetWaySP4B | B |
| LINQ8PD/ LINQ8PDCB, ACM4/ACM4CB, MOM5, PD4UL/PD4ULCB, PD8UL/PD8ULCB, PDS8/PDS8CB, or VR6 | C |
| AMAG M4000 Boards | D |

TAM2: Configuration of Altronix Power Supply and/or Sub-Assembly Boards and AMAG M2150 Boards
- Fasten spacers (provided) to pems that match the hole pattern for Altronix Power Supply/Chargers or Altronix Sub-Assembly boards (Fig. 3, 3a, pg. 5). Fasten metal spacers in the correct locations to provide proper grounding, see below (Fig. 3, pg. 5).
- Mount boards to spacers utilizing 5/16” pan head screws (provided) (Fig. 3, pg. 5).
- Align the AMAG boards on the backplane to match the boards’ mounting holes with pems provided.
- Fasten spacers (provided) to pems that match the hole pattern for AMAG M2150 boards.
- Mount AMAG boards to spacers utilizing 5/16” pan head screws (provided) (Fig. 3, pg. 5).
Note: AMAG M2150 boards have specific markings. Please orient boards in the appropriate position according to the Fig. 3 below. - Fasten backplane to Trove2 enclosure utilizing lock nuts (provided).
| Boards | Pem Mounting |
| eFlow4NB, eFlow6NB, eFlow102NB, eFlow104NB, ACM8/ACM8CB, ACMS8/ACMS8CB or PoE201 | A |
| LINQ8PD/ LINQ8PDCB, ACM4/ACM4CB, MOM5, PD4UL/PD4ULCB, PD8UL/PD8ULCB, PDS8/PDS8CB, or VR6 | B |
| AMAG M2150-AC24/4, M2150-4DC Boards | C |
| AMAG M2150-2DC Board | D |
| AMAG M2150-2DBC Board | E |
| AMAG M2150-4DBC, M2150-8DBC Boards | F |

TAM3: Configuration of Altronix Power Supply and/or Sub-Assembly Boards and AMAG M2150 / M4000 Boards
- Fasten spacers (provided) to pems that match the hole pattern for Altronix power supply/chargers and sub-assemblies (Fig. 4, pg. 6). Fasten metal spacers in the correct locations to provide proper grounding, see below (Fig. 4, pg. 6). Fasten spacers (provided) to pems that match the hole pattern for AMAG boards.
- Mount boards to spacers utilizing 5/16” pan head screws (provided) (Fig. 4, 4a, pg. 6).
- Fasten TAM3 backplane to Trove3 enclosure utilizing lock nuts (provided).
Power Supply, Sub-Assembly and Access Controller Position Chart for the Following Models
| Boards | Pem Mounting |
| eFlow4NB, eFlow6NB, eFlow102NB, eFlow104NB, ACM8/ACM8CB, ACMS8/ACMS8CB or PoE201 | A |
| LINQ8PD/ LINQ8PDCB, ACM4/ACM4CB, MOM5, PD4UL/PD4ULCB, PD8UL/PD8ULCB, PDS8/PDS8CB, or VR6 | B |
| AMAG M2150-DBU | C |
| AMAG M2150-AC24/4, M2150-4DC | D |
| AMAG M4000 | E |
| AMAG M2150-4DBC, M2150-8DC, M2150-8DBC | F |

LINQ2 – Network Communication Module
LINQ2 provides remote IP access to real-time data from eFlow power supply/chargers to help keep systems up and running at optimal levels. It facilitates fast and easy installation and set-up, minimizes system downtime, and eliminates unnecessary service calls, which helps reduce Total Cost of Ownership (TCO) – as well as creat-ing a new source of Recurring Monthly Revenue (RMR).

Features
- UL Listed in the U.S. and Canada.
- Local or remote control of up to (2) two Altronix eFlow power output(s) via LAN and/or WAN.
- Monitor real time diagnostics: DC output voltage, output current, AC & battery status/service, input trigger state change, output state change and unit temperature.
- Access control and user managment: Restrict read/write, Restrict users to specific resources
- Two (2) integral network controlled Form “C” Relays.
- Three (3) programmable input triggers: Control relays and power supplies via external hardware sources.
- Email and Windows Dashboard notifications
- Event log tracks history.
- Secure Socket Layer (SSL).
- Programmable via USB or web browser – includes operating software and 6 ft. USB cable.
LINQ2 Mounts Inside any Trove Enclosure

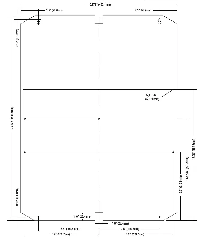
TAG2 / TAM2 Dimensions
25.375” x 19.375” x 0.3125” (644.5mm x 482.6mm x 7.9mm).

Trove2 Enclosure Dimensions (H x W x D approximate)
27.25″x 21.75″x 6.5″(692.15mm x 552.5mm x 165.1mm)

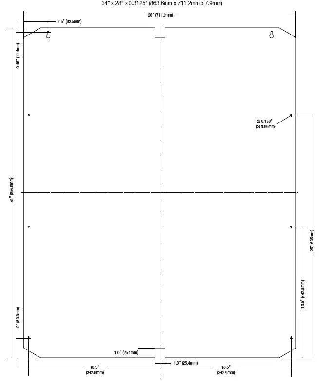
TAM3 Dimensions
34” x 28” x 0.3125” (863.6mm x 711.2mm x 7.9mm)

Trove3 Enclosure Dimensions (H x W x D approximate)
36.12” x 30.125” x 7.06” (917.5mm x 768.1mm x 179.3mm)

AMAG Technology, Inc. is not responsible for any typographical errors. AMAG Technology, Inc. 2205 W. 126th Street Unit B, Hawthorne, CA 90250 | phone: 1-800-874-1091 web site: www.amag.com | e-mail: [email protected] IITrove2AG2/Trove2AM2/Trove3AM3

TAG2: Configuration of Altronix Power Supply and/or Sub-Assembly Boards and AMAG M4000 Boards


















