Nordpeis FP-ODE02-1X0 Odense Exclusive Low
IMPORTANT SAFETY PRECAUTIONS!
- Please follow the installation manual when connecting your stove / fireplace to the chimney / flue pipe. If connected differently from instruction please, consider the heat radiation from the flue pipe to the surrounding materials.
- Before use, please carefully read the user manual and follow the instructions.
- Integrated or defined convection openings may never be reduced or partially obstructed. This may lead to overheating, which again can cause house fire or serious damage to the product.
- Use only designated fire starters. Never use gasoline, diesel or other liquids to start the fire. This may cause explosions!
- Never use other fuel than natural dry chopped wood. Briquettes, peat, coke, coal and waste from construction materials develops far higher temperatures and emissions than natural wood. Since your product has been designed for use with natural wood only, other fuels may damage the product, chimney and surrounding constructions.
- In case of damage to glass or door gasket, all use of the product must be discontinued until the damage has been repaired.
- Products connected to a vented steel chimney must never be operated with open or ajar door other than reloading of wood or shortly during kindling process. Failure to follow these precautions will leave your warranty void and expose people and property to danger.
Advise: Even if not required in your area, it is always wise to have a qualified stove / fireplace fitter do the installation, or at least the final inspection before use.
General information
Weight
The home owner must ensure that the floor can withstand the load according to the total weight of the fireplace. When installing the product on a floating wood floor, the floor boards underneath the fireplace must be removed, this to avoid the that the floor boards lock and crack.
Adjustment
We recommend to stack the surround without glue in order to adjust the insert prior to perforating the chimney for the flue connection. Use a spirit level to ensure that the surround is mounted straight. The insert will expand with heat and for this reason the surround must not rest on the insert. (Above the insert there must be a gap of 3 to 5 mm. Laterally there is no need for gaps, but between the lower part of the insert and the surround there must be a gap of at least 2 mm.)
Floor plate
A fireproof floor plate must be put in front of the fireplace if the floor is of a combustible material.
Acrylic glue
The fireplace is to be assembled using acrylic glue. Make sure all dust is removed and that the surfaces are clean. When the fireplace is assembled, use the same acylic glue for filling joints (FIG Z)
Minor damage
The fireplace can sustain minor damage during transport and handling. This can be repaired with acrylic/light filler. For perfect results, you can fill and sand with a suitable filler. Minor damage and uneven surfaces can be filled. If the damage is deep or in the event of significant damage, you are recommended to fill repeatedly with tile adhesive or cement putty to avoid sinking. Smooth off with e.g. a damp sponge or a float.
Fine Fissures
The building material around the fireplace can move. In new houses in particular, it is common for building materials to settle substantially in the early years. In addition, all concrete elements shrink to a decreasing extent for up to 15 months. The result is that small cracks may appear in the concrete/masonry. Use the fireplace for a few months. If cracks appear, scrape them out with a screwdriver or similar (to provide more space for acrylic joint filler). Vacuum the surfaces to remove any dust. Inject acrylic joint filler and even it out with a spatula or a finger wetted with soapy water. The joint can be painted after a couple of days.
Painting
When the fireplace has been filled/sanded and the glued joints are dry, the fireplace is ready to be painted. Use only breathable paint (acrylic) intended for masonry. For your own safety, comply with the assembly instructions. All safety distances are minimum distances. Installation of the insert must comply with the rules and regulations of the country where installed. Nordpeis AS is not responsible for wrongly assembled inserts. We accept no liability for typographical errors and changes.
Before Installing a new fireplace
All our products are tested according to the latest European requirements and also to the Norwegian standard NS 3058 and NS 3059, which include particle tests. However, several European countries have local regulations for installation of fireplaces, which change regularly. It is the responsibility of the client that these regulations are complied with in the country/region where the fireplace is installed. Nordpeis AS is not responsible for incorrect installation.
Important to check
(please note that this list is not exhaustive):
- distance from firebox to combustible/flammable materials
- insulation materials/requirements between fireplace surround and back wall
- size of floor plates in front of fireplace if required
- flue connection between firebox and chimney
- insulation requirements if flue passes through a flammable wall
Chimney draft
Compared to older models, the clean burning fireplaces of today put significantly higher demands on the chimney. Even the best fireplace will not work properly if the chimney does not have the right dimensions or is not in good working order. The draught is mainly controlled by gas temperature, outside temperature, air supply as well as the height and inner diameter of the chimney. The diameter of the chimney should never be less than that of the flue/chimney collar. At nominal effect there should be a negative pressure of 12 to 25 Pascal.
The draft increases when:
- The chimney becomes warmer than the outside air
- The active length of the chimney over the hearth increases
- There is good air supply to the combustion
It can be difficult to obtain the right draught conditions in case the chimney is too large relative to the fireplace, as the chimney does not heat up well enough. In such cases you may want to contact professional for evaluation of possible measures. Draught that is too strong can be controlled with a damper. If necessary, contact a chimney sweeper. The product is type tested and should be connected to a chimney that is dimensioned for the smoke gas temperature indicated in the CE declaration. When necessary, contact a professional in advance.
Air supply
A set for fresh air supply is available as accessory. This will ensure that the air supply to the combustion chamber is less affected by ventilation systems, kitchen fans and other factors which can create a down-draught in the room. In all new construction, we strongly recommend that it is designed and prepared for direct supply of outside air. In older houses, the use of fresh air supply set is also recommended. Insufficient air supply can cause down-draught and thereby low combustion efficiency and the problems that this entails: soot stains on the glass, inefficient use of the wood and a soot deposits in the chimney.
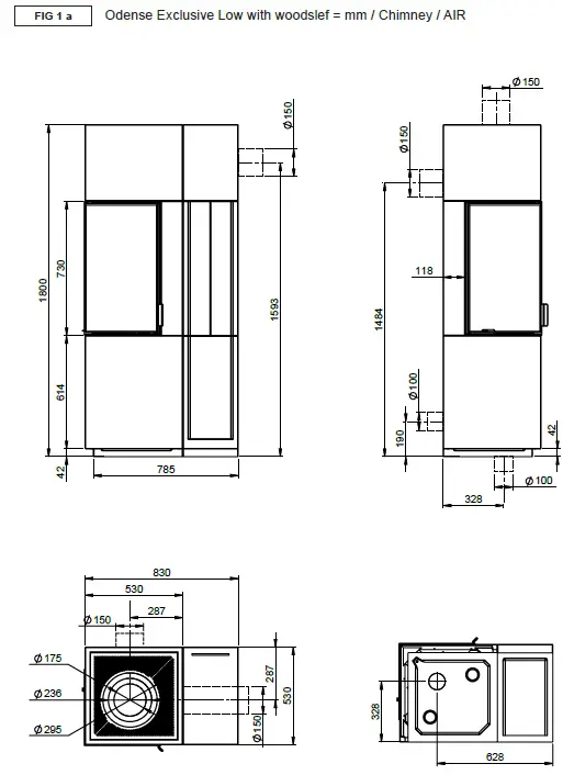
Dimensional drawing
The illustrations indicate the approximate centre height of the hole for the flue. Distortions in floors and walls may influence the dimensions. Dry stack the fireplace without glue for accurate height and positioning of the flue/chimney connection.
Technical information
All products Nordpeis have secondary combustion and are clean burning. The combustion takes place in two phases: First the wood burns and then the gases from the fumes are lit by the hot air. This ensures that these new fireplaces have minimal emissions of soot particles and un-burnt gases (such as CO) and are thus better for the environment. Clean burning fireplaces require a small amount of wood in order to obtain a good heat output. Use exclusively clean and dry wood.
| Weight incl.insert | 254 kg |
| Material insert | Sheet steel |
| Insert | S-31A Exclusive |
| Surface treatment door/ doorframe | Heat resistant varnish |
| Fuel recommended | Wood logs, 25-30 cm |
| Nominal heat output | 6 kW |
| Efficiency | > 65 % |
| CO % @ 13% O2 | <1500 mg/m³ |
| Draught system | Air vent control |
| Combustion system | Secondary combustion (clean burning) |
| Flue outlet | Top and rear |
| Flue | Outer Ø 150 mm *Alternative versions exsists due to National requirements |
| Flue gas temperature at flue connector | 320 °C |
| Flue gas mas flow | 5,2 g/s |
| Draft at flue connector recommended | >12 Pa |
| Flue gas temperature | 277 °C |
| Draft | 12 Pa |
| Maximum fuel length | 30 cm |
| Fuel charge | 1.4 kg |
| Refueling interval | 50 min |
| Opening of the air vent control | 33% |
| Operation | Intermittent* |
* Intermittent combustion refers to normal use of a fireplace, i.e. new wood is inserted when the previous load has burned down to ember.
Safety distances
Ensure that the safety distances are complied with (FIG 2). When connecting a steel chimney to the top outlet follow the assembly instructions from the producer. Ensure to comply with the security distances required for the steel chimney.
Assembly
FIG 3 – 4
Place the base element. Make sure it is level. Make sure the surface is free of any dust and concrete residues.
FIG 14
Adjust the height of the legs as shown in the illustration.
FIG 15
Lift the insert into place. Make sure the insert is level with both sides of the bottom elements.
FIG 19
If the product is to be rear connected, make sure to prepare the top element before assembly. Use a concrete drilling tool to remove the concrete in the desired cut out and carefully sand the remaining edges. Make sure the surface is free of any dust and concrete residue. Place the top element. Once the fireplace is assembled, fill the joints with acrylic and even them out with a sponge or finger and some soapy water, in order to have a clear indentation between the elements (FIG Z).
Fresh air supply set (accessory)
Please note! If the fireplace is connected to a fresh air supply set then the surround elements should be prepared for this before assembly of the surround begins. Fresh air supply can be connected through the base plate or through one of the laterals of the base. See FIG Odense Exclusive Air.
Operating control
When the insert is in an upright position, and prior to assembling the surround, control that all functions are easy to manoeuvre and appear satisfactory.
| Air vent control Fig. 33 | |
| Right Left | Closed Open |
Removing the self-closing mechanism FIG 34
A. Open the door and tighten the set screw using a 2,5 mm Allen Key.
B. Carefully push the door upwards Loosen the set screw with the Allen key.
C. The door can now be lowered back into place.
Attention! In some countries removing the self closing mechanism is not allowed. Make sure you follow the local rules and regulations regarding self closing doors.
Painting the surround
It is recommended to use the insert a few times in order to let the varnish harden before any eventual masking and painting. Only use water based breathing paint and a designated masking tape. Carefully remove the tape in order not to damage the varnish.
Lighting the fire for the first time
When the fireplace is assembled and all instructions have been observed, a fire can be lit. Take care when inserting logs into the burn chamber, in order not to damage the Thermotte plates. Please note that there might be some humidity in the insulation plates which can result in a slower burn rate the first few times the fireplace is used. This will be resolved once the humidity has evaporated. Possibly leave the door slightly open the first 2-3 times that the fireplace is used. It is advisable to ventilate the room well when firing for the first time as the varnish on the fireplace may release some smoke or smell. Both the smoke and smell will disappear and are not hazardous.
Warning! In order to avoid injuries, please be aware that the surface may become hot during operation and that extra care need to be taken to avoid skin burn.
Lighting a fire
Insert small dry pieces of kindling wood, ignite and ensure that the flames have established on the wood before closing the door. Open the air vent control before the door is closed. Additional ignition air is obtained by keeping the door slightly ajar. The air supply is regulated with the air vent control once the flames are stable and the chimney is warm. New wood logs can be inserted when there is a glowing layer of ember. Pull the hot ember to the front of the combustion chamber when inserting new logs so that the wood is ignited from the front. Leave the door slightly ajar each time new logs are inserted so that the flames get well established. The fire should burn with bright and lively flames.
Burning at very a low combustion output and attempting to burn all day and night increase pollution as well as the risk of chimney fire. Never allow the fireplace or flue to become glowing red. Turn off the air vent control should this happen. Regulation of the air vent control takes some experience, but after a little while you will find a natural combustion rhythm.
IMPORTANT! Always remember to open the air vent control and the door when new wood logs are inserted into a hot burn chamber. Let the flames get established on the wood before the air supply is reduced.
Warning! The Firebox shall to be always closed except during ignition, refueling and ash removal. When the draught in the chimney is low and the vents are closed, the gas from the firewood can be ignited with a bang. This can cause damages to the product as well as the immediate environment.
Maintenance
Cleaning and inspection
The fireplace should be inspected thoroughly and cleaned at least once per season (possibly in combination with the sweeping of the chimney and chimney pipes). The inspection shall be performed by the Professional servicemen. Ensure that all joints are tight and that the gaskets are rightly positioned. Exchange any gaskets that are worn or deformed. Remember that the fireplace must always be cold when inspected.
Ashes
The ashes should be removed regularly. Be aware that the ashes can contain hot ember even several days after the fire has finished. Use a container of non-combustible material to remove the ashes. It is recommended to leave a layer of ashes in the bottom as this further insulates the burn chamber. Take care with the Thermotte plates when the ashes are removed, particularly when using an ash shovel, so as not to damage them.
Thermotte™ insulating plates
The insulation plates (Thermotte – FIG 31) are classified as “wear and tear” parts which will require to be exchanged after some years. The wear time will depend on the individual use of your product. Nordpeis offers a one-year warranty on these parts. After this, replacements can be purchased. In case it is necessary to take out the insulation plates, this is done in followieng order:
A. Smoke baffle
B. Backplate
C. Bottom plate front
D. Bottom plate
E. Lateral plate right
F. Lateral plate left
Please note: Wood logs that are too long can cause strain and crack the plates, due to the tension created between the side plates.
Door and Glass
Should there be any soot on the glass it may be necessary to clean it. Use dedicated glass cleaner, as other detergents may damage the glass. (NB! Be careful, even dedicated glass cleaner can damage the varnish on the door frame). A good advice for cleaning the glass is to use a damp cloth or kitchen roll paper and apply some ash from the burn chamber. Rub around the ash on the glass and finish off with a piece of clean and damp kitchen roll paper. NB! Only clean when the glass is cold. Periodically, it may be necessary to change the gaskets on the door to ensure that the burn chamber is air tight and working optimally. These gaskets can be bought as a set, usually including ceramic glue.
Recycling of the ceramic glass
Ceramic glass cannot be recycled. Old glass, breakage or otherwise unusable ceramic glass, must be discarded as residual waste. Ceramic glass has a higher melting temperature, and can therefore not be recycled together with glass. In case it would be mixed with ordinary glass, it would damage the raw material and could, in worst case end the recycling of glass. It is an important contribution to the environment to ensure that ceramic glass does not end up with the recycling of ordinary glass.
Packaging Recycle
The packaging accompanying the product should be recycled according to national regulations.
Warranty
For detailed description of the warranty conditions see the enclosed warranty card or visit our website www.nordpeis.com
Warning! Use replacement parts recommended only by the Manufacturer.
Warning! Any unauthorized modification of the appliance without written permission of the Manufacturer are prohibited.
Advice on lighting a fire
The best way to light a fire is with the use of lightening briquettes and dry kindling wood. Newspapers cause a lot of ashes and the ink is damaging for the environment. Advertising flyers, magazines, milk cartons and similar are not suitable for lighting a fire. Good air supply is important at ignition. When the flue is hot the draught increases and door can be closed.
Warning! NEVER use a lighting fuel such as petrol, karosine, alcohol or similar for lighting a fire. This could cause injury to you as well as damaging the product.
Use clean and dry wood with a maximum moisture content of 20% and minimum 16%. Humid wood requires a lot of air for the combustion, as extra energy/ heat is required for drying the humid wood and heat effect is therefore minimal. In addition this creates soot in the chimney with the risk of creosote and chimney fire. In case of a chimney fire, close the door and air supplies on the stove / insert and call the Fire Brigade. After a chimney fire the chimney must in all cases be inspected by an authorized chimney sweeper before you use the appliance again.
Storing of wood
In order to ensure that the wood is dry, the tree should be cut in winter and then stored during the summer, under roof and in a location with adequate ventilation. The wood pile must never be covered by a tarpaulin which is lying against the ground as the tarpaulin will then act as a sealed lid that will prevent the wood from drying. Always keep a small amount of wood indoors for a few days before use so that moisture in the surface of the wood can evaporate.
Firing
Not enough air to the combustion may cause the glass to soot. Hence, supply the fire with air just after the wood is added, so that the flames and gases in the combustion chamber are properly burnt off. Open the air vent and have the door slightly ajar in order for the flames to establish properly on the wood. Note that the air supply for the combustion also can be too large and cause an uncontrollable fire that very quickly heat up the whole combustion chamber to an extremely high temperature (when firing with a closed or nearly closed door). For this reason you should never fill the combustion chamber completely with wood. It is recommended to keep an even fire with a small amount of wood. Too many logs put on hot ember, may result in combustion air starvation, and the gases will be released unburnt. For this reason it is important to increase the air supply just after adding the logs.
Choice of fuel
All types of wood, such as birch, beech, oak, elm, ash and fruit trees, can be used as fuel in the insert. Wood species have different degrees of density – the more dense the wood is, the higher the energy value. Beech, oak and birch has the highest density.
Attention! We do not recommend using fuel briquettes/ compact wood in our products. Use of such fuel may cause the product to overheat and exceed the temperatures determined safe. Burning briquettes/ compact wood is at your own risk and only small amounts (max 1/3 of normal load) should be used for each load.
Warning: NEVER use impregnated wood, painted wood, plywood, chipboard, rubbish, milk cartons, printed material or similar. If any of these items are used as fuel the warranty is invalid. Common to these materials is that they during combustion can form hydrochloric acid and heavy metals that are harmful to the environment, you and the insert. Hydrochloric acid can also corrode the steel in the chimney or masonry in a masonry chimney. Also, avoid firing with bark, sawdust or other extremely fine wood, apart from when lighting a fire. This form of fuel can easily cause a flashover that can lead to temperatures that are too high.
Warning Make sure the insert is not overheated it can cause irreparable damage to the product. Such damage is not covered by the warranty.
Some advice in case of combustion problems
| Error | Explanation | Solution |
|
No draught | The chimney is blocked | Contact a chimney sweeper / dealer for more information or clean the flue, smoke baffle and burn chamber. |
| The flue is sooty or there is accumulated soot on the smoke baffle | ||
| The smoke baffle is wrongly positioned | Verify the assembly of the smoke baffle – see assembly instructions. | |
|
The stove release smoke when lighting the fire and during combus- tion | Downdraught in the room caused by no draught, that the house is too “air tight”. | Light the fire with an open window. If this helps, more/bigger vents must be installed in the room. |
| Downdraught in the room – caused by extractor and/or central ventilation system that pulls too much air out of the room. | Turn off/regulate extractor and/or other ventilation. If this helps, more vents must be installed. | |
| The flues from two fireplaces/stoves are connected to the same chimney at the same height. | One flue must be repositioned. The height difference of the two flue pipes must be of at least 30 cm. | |
| The flue is in a declining position from the smoke dome to the chimney. | The flue must be moved so that there is an inclination of at least 10º from smoke dome to chimney. Possibly install a smoke suction device*. | |
| The flue is too far into the chimney. | The flue must be reconnected so that it does not enter into the chimney but ends 5 mm before the chimney inner wall. Possibly install a smoke suction device*. | |
| Soot hatch in the basement or attic that is open and thus creating a false draught. | Soot hatches must always be closed. Hatches that are not tight or are defected must be changed. | |
| Damper/top draught vents or doors on fireplaces that are not in use are open and create a false draught. | Close damper, doors and top draught vents on fireplaces that are not in use. | |
| An open hole in the chimney after that a fireplace has been removed, thus creating a false draught. | Holes must be completely sealed off with masonry. | |
| Defect masonry in the chimney, e.g. it is not airtight around the flue pipe entry and/or broken partition inside the chimney creating a false draught. | Seal and plaster all cracks and sites that are not tight. | |
| The cross-section in the chimney is too large which results in no or very low draught. | The chimney must be refitted, possibly install a smoke suction device*. | |
| The cross-section in the chimney is too small and the chimney cannot carry out all the smoke. | Change to a smaller fireplace or build new chimney with a larger cross section. Possibly install a smoke suction device*. | |
| The chimney is too low and hence a poor draught. | Increase the height of the chimney and/or install a chimney cap/ smoke suction device*. | |
| The stove releases smoke inside when it is windy outside. | The chimney is too low in relationship to the surrounding terrain, buildings, trees etc. | Increase the height of the chimney and/or install a chimney cap/ smoke suction device*. |
| Turbulence around the chimney due to the roof being too flat. | Increase the height of the chimney and/or install a chimney cap/ smoke suction device*. | |
| The stove does not heat suf- ficiently. | The combustion receives too much oxygen due to a leakage under the lower border of the stove or too strong chimney draught. Difficult to regulate the combustion and the wood burn up too quickly. | Any possible leakage must be sealed off. A draught regulator or possibly a damper can reduce the chimney draught. NB! A leakage of only 5 cm2 is enough for 30% of the heated air to disappear. |
|
Too much draught | The smoke buffer is wrongly positioned. | Verify the positioning of the smoke buffer – see assembly instruc- tions. |
| In case of using oven-dried wood, this requires less air supply than when using normal wood. | Turn down the air supply. | |
| The gaskets around the door are worn and totally flat. | Replace the gaskets, contact your dealer. | |
| The chimney is too large. | Contact chimneysweeper or other professional for more details. | |
|
The glass is sooty | The wood is too wet. | Only use dry wood with a humidity of maximum 20%. |
| The air vent control is closed too tightly. | Open the air vent control to add air to the combustion. When new wood logs are inserted all vent controls should be completely opened or the door slightly opened until the flames have a good take on the wood. | |
|
White glass | Bad combustion (the temperature is too low) | Follow the guidelines in this user guide for correct combustion. |
| Using wrong material for combustion (such as: painted or impregnated wood, plastic laminate, plywood etc) | Ensure to use only dry and clean wood. | |
| Smoke is relea- sed when the door is opened | A levelling out of pressure occurs in the burn chamber. | Open the air vent control for about 1 min before opening the door – avoid opening the door too quickly. |
| The door is opened when there is a fire in the burn chamber. | Open the door carefully and/or only when there is hot ember. | |
| White smoke | The combustion temperature is too low. | Increase the air supply. |
| The wood is humid and contains water damp. | Ensure to use only dry and clean wood. | |
| Black or grey/ black smoke | Insufficient combustion. | Increase the air supply. |



































Technical parameters for solid fuel local space heaters
| Model identifier(s): S-31A Exclusive | ||||||||
| Indirect heating functionality: no | ||||||||
| Direct heat output: 6 (kW) | ||||||||
| Fuel | Preferred fuel (only one): | Other suitable fuel(s): | ||||||
| Wood logs with moisture content ≤ 25 % | yes | no | ||||||
| Compressed wood with moisture content < 12 % | no | no | ||||||
| Other woody biomass | no | no | ||||||
| Non-woody biomass | no | no | ||||||
| Anthracite and dry steam coal | no | no | ||||||
| Hard coke | no | no | ||||||
| Low temperature coke | no | no | ||||||
| Bituminous coal | no | no | ||||||
| Lignite briquettes | no | no | ||||||
| Peat briquettes | no | no | ||||||
| Blended fossil fuel briquettes | no | no | ||||||
| Other fossil fuel | no | no | ||||||
| Blended biomass and fossil fuel briquettes | no | no | ||||||
| Other blend of biomass and solid fuel | no | no | ||||||
| Characteristics when operating with the preferred fuel | ||||||||
| Seasonal space heating energy efficiency η s > 65 % | ||||||||
| Energy Efficiency Index (EEI): 107 | ||||||||
| Item | Symbol | Value | Unit | Item | Symbol | Value | Unit | |
| Heat output | Useful efficiency (NCV as received) | |||||||
| Nominal heat output | Pnom | 6 | kW | Useful efficiency at nominal heat output | ηth,nom | > 65 % | % | |
| Auxiliary electricity consumption | Type of heat output/room temperature control (select one) | |||||||
| At nominal heat output | elmax | kW | single stage heat output, no room temperature control | no | ||||
| At minimum heat output | elmin | kW | two or more manual stages, no room temperature control | yes | ||||
| In standby mode | elSB | kW | with mechanic thermostat room temperature control | no | ||||
| with electronic room temperature control | no | |||||||
| with electronic room temperature control plus day timer | no | |||||||
| with electronic room temperature control plus week timer | no | |||||||
| Other control options (multiple selections possible) | ||||||||
| room temperature control, with presence detection | no | |||||||
| room temperature control, with open window detection | no | |||||||
| with distance control option | no | |||||||
| Permanent pilot flame power requirement | ||||||||
| Pilot flame power requirement (if applicable) | Ppilot | kW | ||||||
| Contact details | Name and address of the supplier: Nordpeis AS, Gjellebekkstubben 11, N-3420 LIERSKOGEN, Norway | |||||||
Declaration of Ecodesign Conformity
This is to declare that Nordpeis S-31A Exclusive complies to the Ecodesign requirements described in the Commission Regulation, Directive 2015/1185 of the European Parliament and of Council 2009/125/WE for local solid fuel space heaters.
| Emission from combustion: | |
| Carbon monoxide at 13% O2 | CO: < 1500 mg / m3 |
| Oxygen nitride NOx at 13% O2 | NOx : < 200 mg / m3 |
| Organic Gaseous Carbon at 13% O2 | OGC : < 120 mg / m3 |
| Particulate Matter at 13 O2 | PM : < 40 mg / m3 |
| Energy efficiency | > 65 % |
The undersigned is responsible for the manufacture and conformity with declared performance.
Nordpeis AS, Gjellebekkstubben 11, N-3420 LIERSKOGEN, Norway
www.nordpeis.no




















