
RANGE HOOD
User Manual
JQG7501.G
Please read the following safety information carefully before installing and/or using this appliance. We recommend that you keep this manual for future use and/or in case of transfer of ownership of the range hood
1101000519310
Thank you!
Dear User, thank you for purchasing the Fotile Range Hood At Fotile, we manufacture exquisite appliances that are expertly crafted with the finest materials. Before using the Fotile Range Hood, please take some time to read through this Product Manual (manual). It will familiarize you with important safety, operation, and maintenance instructions, as well as help, maximize your culinary experience.
Fotile’s promise is to “Make Our Home Better and therefore we ensure the continued dependable and superior performance of all Fotile appliances so as to satisfy your needs. Before using the Fotile Range Hood. you must follow the instructions. as specified in this manual. Any damage resulting from the improper operation and/or maintenance of the appliance may result in the loss of warranty. The warranty will become invalid, and your warranty appreciation, whether direct or indirect. will not be accepted by the authorized service center of Futile. II you require a warranty or post•warranty after•sale service, please contact the local authorized service center of Fable nearest you.
Your satisfaction with the Folde brand is important to us. Our after-sales service centers provide assistance in resolving issues with Fotile appliances.
If you would like to apply for a warranty please provide the produces model and serial number. which can be found on the nameplate attached to the upper wall of the range hood.
Please refer to the illustration below for the location of the nameplate.
Product features and specifications are subject to change, at any time, without notice. Please visit our website at www.fotileglobal.com for the most up-to-date information.
In order to ensure the safe and efficient use of Fotile appliances, please take note of the following types of highlighted information that will be outlined throughout this manual
IMPORTANT NOTE highlights information that is particularly important
CAUTION signals a situation whore minor injury or product damage may coax i inductions are not followed
WARNING states a specific hazard that may cause serious injury or death if precautions are not followed
SAFETY INFORMATION
In order to prevent accidental damage to the Rothe Range Hood and/or bodily injuries as a result of its operation, please read the following safety information installing and/or using this appliance. Following the instructions carefully will significantly reduce the risk of fire, electric shock, and/or bodily injuries to persons. We recommend that you keep this manual for future use and/or in case of transfer of ownership of the range hood.
Important Note:
- This appliance is intended for indoor home cooking only; it cannot be used for outdoor
- Check the appliance for damage after unpacking it. If you detect any obvious damage to the product, do not proceed with the installation. Please contact our authorized service center immediately.
- Avoid placing gypsum powder, construction dust, etc within dose proximity of the range hood
- Operate the range hood only in the manner outlined in this product manual.
- When operating the range hood do not leave the appliance unattended. If you have any questions and/or concerns, please contact our authorized service center.
- Operate clean and maintain the range hood in accordance to the instnxticos outlined In this natal
- Clean the metal grease fitter according to the instructions.
- The range hood’s motor has a thermal overload function, which automatically trims off the motor when it overheats. Once the motor cools down, the range hood will automatically restart. If the motor, continually turns off and restarts, please contact our authorized service
- If the range hood has not been in operation for an extended period of time, traplug the appliance.
- Please make sure the correct installation and maintenance of the appliance. Installation work and electrical wiring must be done by a qualified person(s), in accordance with all applicable codes and standards, including fire-rated construction codes and standards. The installation personnel should be responsible for the normal operation of the appliance at the installed position.
- When operating the range hood in exhaust mode, ensure to install the damper along with the hood
- For general exhausting only. Do not use this range hood to exhaust hazardous and /or explosive materials or gas.
- In order to reduce the risk of fire, all exhaust pipes, flues, and devices should be Used only metal duct covers and metal duct pipes Never cover the hood with flammable plastic film or paper.
- Services guaranteed under warranty must be performed by Fotile certified service provider or personnel.
- Please read the specification label on the range
hood for further information and requirements.
Caution:
- When applicable local regulations comprise more restrictive installation and/or certification requirements, the aforementioned requirements will prevail, and installation personnel must conform to these requirements.
- The operating temperature of the range hood should not exceed 104 F (401C ).
- Please do not place anything on top of the Anything placed on top may fall off or incline. For example, if you place seasoning bottles on top, the inclination may cause liquid to flow inside the product, resulting in damaged electrified components and therefore unnecessary risks. Our company will not bear the responsibility for free repair in case of product damage due to the above reason.
- Clean the Grease Cup frequently to prevent The resulting grease is inedible!
- When cutting or drilling into the wall or ceiling, be careful not to damage electrical wiring, water pipes, gas lines, or other hidden utilities.
- Adhere to the heating equipment manufacturer’s guidelines and safety standards, such as those published by the National Fire Protection Association (NFPA), the American Society for Heating, Refrigeration and Air Conditioning Engineers (ASHRAE), and the local code Meanwhile, conform to the safety standards issued by such administrative departments as the fire department
- When gas burners are in operation without any cookware placed on them, they can build up a lot of heat. A ventilation appliance installed above the cooker may become damaged or catch fire. Only operate the gas burners with cookware on them.
- Adhere to the voltage and frequency settings listed in this manual to avoid possible damage to the range hood.
- Please use standard accessories provided by our company to prevent the range hood from falling down accidentally. The hole drilled in the wall should precisely match the size of the expansion pipe, otherwise, the range hood may loose and fall down
- Tampered glass is applied to the products of the company and the tampering treatment of the glass determines the extremely little possibility of spontaneous explosion. If the occurrence of the spontaneous explosion is not due to improper use our company promises free replacement of the accessories.
Warning:
Risk of Electric Shock
A defective appliance may cause electric shock Newt switch on a defective appliance. Unplug the appliance from the mains or switch off the circuit breaker in the fuse box in case of problems, and contact cur authorized service center
- The range hood should be connected to a standard power socket with safe grounding. Midway connection, prolonged electric line, or multi-socket wiring may cause electric shock, overheating, and, in some cases, result in a fire. Installation of the range hood should be performed by professional electricians in strict accordance with electricity standards and regulations of the local area. Before connecting the rod, turn off the power source and take appropriate measures to prevent auto-closing of the power switch.
- In order to prevent electric shock and/or other bodily injuries to persons, do not exceed 120V AC input
- Do not install the range hood in a bathroom and/or a humid area, as this will significantly increase the risk of electric shock.
- If a wire is damaged or defective, contact an authorized service provider or a qualified technician (provid•d by Fotile) to replace the wire
- Do not change, stretch, knot, pressure, or squeeze the wire as any resulting damage can result in electrical and/or fire hazards.
- Prevent water from coming into contact with the range hood’s electrical components, such as the motor, switch, and connector. Do not wash the appliance with water. Do not use the appliance if it is wet, as electric leakage and/ or electric shock may occur.
- Do not attempt to change the range hood’s internal wrong system. Improper modifications and/or repairs to the internal wiring can result in bodily injuries to persons, electric shock, and/or a fire.
- In order to avoid electric shock, remember to turn off the appliance’s power source before installation, cleaning, and/or maintenance
- Avoid using high-pressure detergents and/or steam cleaners on the appliance, as they may result in electric shock
- Do not touch the plug or switch with wet bonds, as an electric shock may occur.
Grounding Instructions
- This appliance must be grounded. In the event of an electrical short circuit, grounding reduces the risk of electric shock by providing an escape wire for the electric current. This appliance is equipped with a cord having a grounding wire with a grounding plug. The plug must be plugged into an odd that is properly installed and grounded
- Improper &rounding can result in electric shock
- Consult a qualified electrician if the grounding instructions are not completely understood, or if dab( exists as to whether the appliance is property
- Do not use an extension cord If The power supply cord is too OW, have a quaffed electrician Wstall an outlet near the appliance.
Risk of Fire
- In order to reduce the risk of fire and to properly exhaust air, always duct the air Do not vent exhaust air into spaces within walls, ceilings, attics, crawl spaces, and/ or garages.
- In order to prevent the risk of fire, the range hood should be operated and maintained in accordance to the instructions.
- Hot oils may ignite and burn quickly. Never leave hot oils unattended.
- Clean the hood’s Grease Cup at regular intervals, as leftover grease deposits may
- Never operate the range hood without the Grease Cup filter attachment.
- Never work with naked flames close to the appliance (e.g flambeing). Do not install the appliance near a heat-producing appliance for solid fuel (e.g. wood or coal) There must be no flying sparks.
- Avoid cooking with food products that produce flames under the range hood.
To Reduce Risk of Cooktop Grease Fire:
- Never leave surface units unattended at high Boilovers causing smoking and greasy spillovers that may ignite. Heat oils slowly on low or medium settings.
- Always turn the hood on during cooling.
- Clean ventilating fans Grease should not be allowed to accumulate on the fan, filter, or in exhaust duds.
- Use proper pan size. Always use cookware appropriate for the size of the surface element.
To Reduce the Risk of Injury to Persons in the Event of a Range Top Grease Fire, Observe the Following:
- Smother flames with a close-fining lid, cookie sheet, or metal tray, then turn off the burner. Be careful to prevent burns. If the flames do not go out immediately, evacuate and call the fire department.
- When the cooking utensil catches fire, switch off the range hood immediately. Effective extinguishing measures must be taken at once, such as covering the open flame with a metal cover, turning off the master gas valve, and keeping flammable substances from the open flame, etc. )
- Never pick up a flaming pan—you may be
- Do not use water, including wet dishcloths or
towels—a violent steam explosion will result
Use an Extinguisher Only If:
- You know you have a Class ABC extinguisher and you already know how to operate it
- The fire is small and contained in the area where it started.
- The fire department is being called
- You can fight the fire with your back to an exit
Risk of Injury
- This appliance is not intended for use by persons (including children) with reduced physical, sensory or mental capabilities, or lack of experience and knowledge unless they have been given supervision or instruction concerning the use of the appliance by a person responsible for their safety. Children should be supervised to ensure that they do not play with the appliance.
- The range hood may have sharp edges. Be careful to avoid cuts and abrasions during installation and cleaning. Do wear qualified protective gloves.
- The accessible parts become very hot when in operation. Never touch hot parts. Keep children at a safe distance.
- Do not touch lamps during or soon after Burns may occur.
- Do not insert your limbs and/or foreign objects into the impeller while the range hood is in operation, as that action might cause injury.
- This appliance is not intended for operation with an external clock timer or remote control.
- Incorrect repairs are dangerous Repairs may only be carried out and damaged power cables replaced by one of our trained after-sales technicians..
If any abnormalities and/or defects occur while operating the range hood, immediately turn off the appliance and unplug the appliance from the mains or switch off the circuit breaker in the fuse box. Then, contact our authorized service center. Abnormal operation and defects may cause hazardous situations, such as electric shocks and fires.
Risk of Suffocation.
- Packaging material is dangerous to children. Never allow children to play with packaging material, which may cause suffocation. Keep all packing material out of proximity to Please remember that packaging materials should not be treated as toys.
Risk of Death:
- Risk of poisoning from flue gases that are drawn back in.
- Always ensure adequate fresh air in the room if the appliance is being operated in exhaust air mode at the same time as the room air-dependent heat-producing appliance is being operated. Exhaust gases through the flue (chimney) of fuel-burning equipment to prevent back
- Fotile is not responsible for injuries caused by improper and/or incorrect operation of the range hood.
OPERATION
Warning
- Do not use excessive force to press buttons on the control panel.
- Turn off gas burners without any cookware placed on them.
- Do not disassemble the appliance with power on and/or without complying with instructions.
- Clean the Grease Cup frequently to prevent overflow and a potential fire.
- Disassembly and/or servicing of the range hood must be performed by qualified technicians.
- Do not let the stove fire burn the range hood directly.
Product Information
| Model | JOG7501.6 | |
| Produce size L*H*1 | 29 7/8 x 18 1/4 x 17 7/16 ” (758 x 462 x 442 mm) | |
| Net weight | 58.2 lbs(26.4 Kg) | |
| Vintage/Frequency | 120V/601-1z | |
| Rated power input of the range hood | 256 W (light power included 3W x 2 ) | |
| Noise | high setting | 68dB(A)(5.4Sones) |
| medium setting | 63dB(A)(3.5Sones) | |
| low setting | 53dB(A)(1Sones) | |
| Max static pressure | 380 Pa | |
Caution:
| ||
![]()
HVI-2100 CER RFIED RATINGS comply with new testing technologies and procedures prescribed by the Home Ventilating Institute, for off-the-shelf products, as they are available to consumers. Product performance is rated at 0.1 in. static pressure, based on tests conducted in a state-of-the-art test laboratory. Sones are a measure of humanly-perceived loudness, based on laboratory measurements.
Operation
- Fotile Range Hood Control Panel

- Operation Procedure
POWER
The POWER button activates the range hood Once you press the POWER txt on, the button will fully illuminate and the other buttons on the control panel will display low illumination. Lightly press the POWER button again to turn off the range hood. Once the range hood is off, all buttons will cease to illuminate and the smoke baffle plate will close automatically. With the exception of the LOCK SCREEN button, the control panel’s functions will oily work when the POWER button is active.
HIGH-SETTING FAN
The HIGH-SETTING FAN opens the smoke baffle plate and operates the fan on high-setting. Once pressed, the button will fully illuminate. Press the button again and the fan will stop and the button will return to low illumination.
MEDIUM-SETTING FAN
The MEDIUM-SETTING FAN opens the smoke baffle plate and operates the fan on medium-setting. Once pressed, the button will fully illuminate Press the button again and the fan will stop and the button will return to low illumination.
LOW-SETTING FAN
The LOW-SETTING FAN opens the smoke baffle plate and operates the fan on low-setting. Once pressed, the button will fully illuminate. Press the button again and the fan will stop and the button will return to low illumination.
LIGHTING
The LIGHTING button opens the smoke baffle plate and turns on the lights. Once pressed, the button will fully illuminate. Press the button again and the light will turn off and the button will return to low illumination.
DELAY
The DELAY button activates a two-minute delay. Once pressed during operation, the button will fully illuminate. Two minutes later, the range hood stops operating and the smoke baffle plate closes automatically.
If you press the DELAY button once during the two-minute delay, the range hood will resume operating and the DELAY button will return to low illumination.
If you press any other control panel button once during the two-minute delay, the range hood will resume operating and the DELAY button will return to low illumination The range hood will operate as the pressed button suggests.
LOCK SCREEN
The LOCK SCREEN locks the entire control panel’s functionality. Once pressed and held for 2 seconds, you will hear a “beep” sound and the LOCK SCREEN button will illuminate fully. In order to unlock the control panel, you must press and hold the LOCK SCREEN for another 2 seconds. The control panel functionalities will unlock and the button will return to low illumination. LOCK SCREEN cannot be engaged when the fan is in operation. If LOCK SCREEN is pressed at that time, an alarm sound will engage.
CLEANING AND MAINTENANCE
Important Note:
Reattach the grease filter after cleaning and maintenance of the range hood. Do not operate the appliance without the grease filter, as it may cause safety hazards.
Caution:
Risk of damage due to corrosion.
- Always switch on the appliance while cooking to avoid condensation Condensate can produce corrosion damage.
- Surface damage due to incorrect cleaning.
Clean stainless steel surfaces in the direction of the grain only. Do not use any stainless steel cleaners for operator controls.
- Surface damage due to strong or abrasive cleaning agents.
- Replace faulty LED lights to prevent the remaining lights from overloading.
Warning:
- The range hood should only be cleaned as instructed; otherwise, it may ignite.
- Please remember not to wet the motor and/or the control panel, as it may result in damaging the electric circuits or potential hazards.
- Do not clean the appliance with chemical agents, such as gasoline, acids, benzene and
Risk of Electric Shock:
- Penetrating moisture may result in an electric Prior to cleaning and maintenance, pull out the mains plug or switch off the circuit breaker in the fuse box.
- Do not use any high-pressure cleaners or steam cleaners, which can result in an electric
Risk of Fire:
Grease deposits in the grease filter and Grease Cup may catch fire.
Risk of Injury:
- Unplug the appliance from the mains or switch off the circuit breaker in the fuse box before installation, cleaning, maintenance, and repair in order to avoid electric shock.
- The range hood may have sharp edges. Be careful to avoid cuts and abrasions during installation and cleaning. Do wear qualified protective gloves.
- While the range hood is in operation, do not insert your hand into the area housing the fan.
- The appliance will become hot during operation, especially near LED lights. Allow the appliance to cool down before cleaning. Do not touch lamps during or soon after operation. Bums may occur.
If you would like to schedule a deep cleaning for your appliance, please contact our authorized service center
- Fotile suggests that you clean the surface of the appliance for better use.
- The neutral detergent may be used to clean stains on the range hood. However, avoid touching the control panel. Wipe some detergent on the stains and let the detergent Do not let the detergent sit for an extended period of time, as it can cause damage to the appliance’s surface. Then, wipe off the stain with a soft cloth and the left detergent with a slightly wet cloth. Next, use another cloth to dry the appliance.
- Stains on the range hood should be cleaned within a short time period, as to prevent the stains from becoming permanent.
- Abrasive detergents, such as a salt solution, disinfectant, or bleach powder cannot be used to clean the appliance. Wipe off the detergent with a wet, soft cloth. Next, use another cloth to dry the appliance.
Warning: Do not clean the appliance with abrasive tools, such as steel wool, brushes, and coarse cloths, as these materials will permanently scratch the surface of the hood.
Preparations before Cleaning:
- Unplug the appliance.

- Clear the cookware on the burners.
- Prepare a neutral detergent and a soft cloth (or soft brush) for stain removal and cleaning.

Washing and cleaning the surface, Grease Cup, and grease filter: (The cleaning can be done by the user)
- Clean the surface of the range hood.

- Remove the Grease Cup and clean it.
Warning: For the safety of you and your family, please regularly clean the oil accumulated in the Grease Cup and deposits on the Grease Cup surface. Do wear qualified protective gloves. - Lightly press the POWER button. Then, lightly press the LIGHTING button. After the LIGHTING button is pressed, the smoke bathing plate will open.

- Hold the two sides of the grease filter and pull sideward to unlock it.

* Suggestion: In order to protect the health of you and your family, the filter should be cleaned regularly and it is dishwasher safe for your convenience.

Warning: Please wear qualified protective gloves in operation.
Replacing LED Lights:
- Lightly press the POWER button; then, press the LIGHTING button. After the LIGHTING button is pressed, the smoke baffle plate will open.

- Unplug the appliance.

- Use a small flat-head screwdriver to gently pry the LED assembly out.

- Disconnect the wires and then replace the LED lights.
Risk of Electric Shock:
Before changing the LED lights, unplug the appliance from the mains or switch off the circuit breaker in the fuse box.
FAQ
Warning: Risk of Electric Shock
- Incorrect repairs are dangerous. Repairs may only be carried out and damaged power cables replaced by our authorized service center or certified electricians.
- If the appliance is defective, unplug the appliance from the mains or switch off the circuit breaker in the fuse box. Contact our authorized service center
- Before changing LED lights, unplug the appliance from the mains or switch off the circuit breaker in the fuse box.
- If any abnormalities and/or defects occur while operating the range hood, immediately turn off the appliance. Unplug the appliance from the mains or switch off the circuit breaker in the fuse box and check the following:
| Problem/Issue | Possible Cause |
| After the POWER button is pressed, the range hood remains off and the button does not illuminate. | The appliance may be unplugged |
| The motor works, but the control panel buttons do not illuminate. | LED lights have been damaged |
If the problem/issue with the appliance still persists after ruling out the possible cause(s), please contact our authorized service center for assistance.
SERVICE INFORMATION
Warning
- If any abnormalities and/or defects occur while operating the range hood, immediately turn off the appliance. Unplug the appliance from the mains or switch off the circuit breaker in the fuse box. Please contact our authorized service center.
- The appliance must only be repaired by a professionally trained and certified technician; otherwise, severe injuries may occur
- Warranty service is not provided based on the following situations:
1) Failing to show invoke issued by authorized agents.
2) Damages of the parts due to the abused and wrong installation, improper use, improper location, carelessness or other factors.
3) Repair and maintenance without the permission of FOTILE authorized agents.
4) Other situations that can’t be controlled by FOTILE authorized agents. In the above case, FOTILE will be released from any responsibilities for the loss of personal property, or personal injury directly or indirectly caused by the product.
INSTALLATION
6.1 Installation Instructions
Important Note:
- Prior to installation, please read the Fotile Range Hood Installation carefully and save it for the local inspector’s future reference.
- This appliance must be installed in accordance with National Electrical Codes, as well as all state, municipal and local codes.
- The appliance must be equipped with a safe circuit breaker and installed with a safe grounding
- The correct voltage, frequency, and amperage must be supplied to the appliance according to the proper voltage, frequency, and amperage ratings listed on the product rating plate.
- This installation must be completed by Fotile
authorized service center or certified installers. - Please record the model and serial number before installing the range hood. Both numbers are listed on the product rating plate, located on the upper wall of the hood. Refer to the illustration below.

Caution:
- Please carefully read all instructions prior to Please give special consideration to the following items:
- If you are renovating your kitchen, be careful to not expose the exterior of the range hood Building materials, dust, paint, coating, and gases will corrode and tarnish the surface of the range hood. It is recommended that you install the range hood after all renovations are completed.
- If you need to remove your gas burner before installation, please turn off the main gas valve first.
- Do not connect the range hood duct to a duct used to exhaust hot air or fumes from another
- Two installers are recommended due to the large size and heavyweight of the range Since the installation is complex and the appliance is heavy, professional installers are required to install the appliance as outlined in this manual.
- After the appliance is fixed, the plug should be accessible.
- Make sure to keep the appliance horizontally
- Ensure that the appliance functions normally after the installation is complete.
Warning:
- In order to reduce the risk of fire, electric shock, or injury to persons, please carefully read the following:
- The installation and wiring of the appliance should only be carried out by a professional electrician in accordance with current national or local electric safety regulations, including fire-rated construction. Non-professional personnel should not conduct the installation. Proper installation is the responsibility of the Product failure due to improper installation is not covered under the Fotile warranty.
- Please use standard installation equipment and tools provided by Fotile to ensure safe Make sure to use the expansion tube and expansion bolt provided by our company, in case the range hood falls down accidentally. The hole drilled into the wall should precisely match the size of the expansion tube, otherwise, the range hood will not be properly secured to the wall and may fall down
- The range hood should be connected to a standard power socket with safe grounding.
The midway connection, prolonged electric line, or multi-socket wiring may cause electric shock, overheating arid even fire.
Power off before wiring and make sure proper measures have been taken to avoid unexpected connections. - During installation, switch off the circuit breaker in the fuse box during installation.
If the supply cord is damaged, it must be replaced by a special cord or assembly available from the manufacturer or its service agent. - The appliance should only be installed, removed, and maintained by qualified technicians to prevent risks like electric shocks, falling or fires from occurring.
Risk of Injury.
- Unplug the appliance from the mains or switch off the circuit breaker in the fuse box before installation, cleaning, maintenance and repair in order to avoid electric shock.
- The range hood may have sharp edges. Be careful to avoid cuts and abrasions during installation and cleaning. Do wear qualified protective gloves.
Warning Before Installation
- Prior to installation, ensure that the exhaust outlet is free of debris, as they may damage the range hood.
- A straight and short ducting run will ensure high performance of the range hood.
- A curving and long ducting run should be avoided, as it will lower the performance of the range hood.
- Strictly seal the connection between the duct and duct hole with duct tape. Ensure that the connection between the duct and the duct cover is secure, and seal it with aluminum tape.
- A small duct hole will lower the performance of the range hood. Therefore, it is highly recommended that you cut a duct hole equal to or larger than 6″ of the size
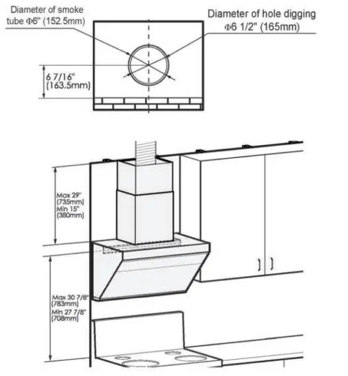
Product Dimensions

Wall Preparation
The wall should be strong enough to support the range hood. As for hollow walls or hollow plates, The minimum thickness of the lumber should be 13/16″ (30mm). As for the concrete wall, the installation can be directly operated. The range hood should be firmly fixed on the wall.
Ductwork Installation
Risk of Injury:
- Unplug the appliance from the mains or switch off the circuit breaker in the fuse box before installation, cleaning, maintenance, and repair in order to avoid electric shock.
- The range hood may have sharp edges. Be careful to avoid cuts and abrasions during installation and cleaning. Do wear qualified protective gloves.
- VVhen cutting or drilling into walls or ceilings, do not damage electrical wiring and other hidden utilities.
- Ducted fans must always be vented to the
- To reduce the risk of fire and to properly exhaust air, always duct air outside. Do not vent exhaust air into spaces within walls, ceilings, attics, crawl spaces or garages
List of Accessories:
Packing List

Installation Tools:

Installation Procedure:
In order to secure the safe use of the range hood and maximize its ability to ventilate cooking fumes. the installation height is suggested as follows: The distance from the countertop of the gas stove to the top board of the range hood shall not be less than 29 9/16″(750mm) and shall not be more than 32 1/2″(825mm). Where there are relevant laws stipulating the mounting height of range hood in the state or region, the laws shall prevail. However, the effect of cooking fumes ventilation might be affected. The range hood can be installed in three ways, either with or without the upper cabinet.
Caution: One of the screws for the duct bracket must be fastened to the wooden beam.
Installation of the Fotile Range Hood with an Upper Cabinet:

Warning: Do wear qualified protective gloves.
- Unpack the appliance and check the List of Accessories.

- Locate the wooden beam and mark the location with a pencil. Mark another beam 16″ (406.4mm) or 24″ (609.6mm)to either side of this mark.

- Locate the duct bracket. Determine the central point and mark the centerline on the wall where the hood will be installed. Also, mark the point where the central line and the lowest point on the bottom board of the top cabinet meet This is the location, in which to secure the bracket. Mark screw hole locations on the wall. The distance between the lowest point on the bottom board of the top cabinet and the center of the bracket should be 16″ (405mm).

- Fasten the bracket: drill 0/8- (0) hole at the screw hole marks with an electric drill, embed expansion tubes and fasten the bracket with bracket screws. Use leveling instrument to make sure that the bracket is leveled.
Caution: One of the brackets for the main engine must be fastened to the beam. Screws must be fixed at Hole A and B in the drawing; also screws must be fixed at bracket bores with corresponding wooden stakes in Area C. - Attach the paper template to the bottom of the cabinet to determine and drill the duct cover hole, screw holes, and wire hole.

Caution: Wear safety goggles when drilling. In case of batten at the wall facing the bottom plate, the rear wall side of the paper template shall be cut as per the thickness of the batten. In the case that hooks are fixed on tiles, the installation paper on the side of the Rear Wall shall be pasted on the bottom of the upper cupboards based on the tile surface. - Remove the protective film of the stainless steel surface and Grease Cup at both sides of the range hood.

- Lift and position the hood onto the brackets at the bottom of the backside while keeping an angle between the wall and the hood, and then push the hood against the wall tightly.

- Secure the hood to the upper cabinet with three M5 X 70 fastened screws for the upper cabinet. The hood will need to be supported before you lose your hands until at least two screws are tightened.
If there is a big gap between the bottom board of the top cabinet and the top of the range hood, please add wood pads based on the gap size near the three M5x70 screws to avoid range hood shell deformation caused by the tightening of screws, which will affect the use of the range hood.
Caution: Two installers are required to ensure safe installation. - Place the gasket seal on the hood outlet and fix the duct cover with four screws of outlet housing. Then, secure the duct to the duct cover and seal the connection with aluminum tape.

- Make sure the hood is leveled. Install the Grease Cup. and plug in the appliance for a test run.
Warning: Please wear qualified protective gloves in operation.
Installation Instructions for the Decorative Plate with Upper Cabinet :
Caution: Please confirm the height of the top cabinet. If the upper cabinet is over 32 112″ es (825mm) high, 6″ or 12″ decorative plate is preferred.

- Unpack the appliance and check the List of ACCesSories.

- Locate the wooden beam and mark the location with a pencil. Mark another beam 16″ or 24″ to either side of this mark.

- Locate the duct bracket. Determine the central point and mark the centerline on the wall where the hood will be installed. Also, mark the point where the central line and the top cabinet meet. This is the location, in which to secure the bracket. Mark screw hole locations on the wall. The upper edge (the fixed surface between the decorative sheet and the board of the top cabinet) of the bottom board of the top cabinet Shall be deemed as the location datum. And the distance between the upper edge and the center of the bracket shall be 7 11/16″/194.4mm for 6″ decorative sheet and 13 11/16″I 346.8mm for 12″ decorative sheet.

- Fasten the bracket: drill 08 holes at the screw hole marks with an electric drill, embed expansion tubes and fasten the bracket with bracket screws. Use leveling instrument to make sure that the bracket is leveled.
Caution: One of the brackets for the main engine must be fastened to the beam. Screws must be fixed at Hole A and B in the drawing; also screws must be fixed at bracket bores with corresponding wooden stakes in Area C. - Attach the paper template to the bottom of the cabinet to determine and drill the duct cover hole, screw holes, and wire hole.
Caution: Wear safety goggles when drilling. In case of batten at the wall facing the bottom plate, the rear wall side of the paper template shall be cut as per the thickness of the batten. - Remove the protective film of the stainless steel surface and Grease Cup at both sides of the range hood.

- Place the gasket seal on the hood outlet and fix the duct cover with four M4 x 18 screws of outlet housing. Use two M4 x 8 base screws to fix the base in the corresponding location at the bottom of the backside of the main engine.

- Lift and position the hood onto the brackets at the top of the backside while keeping an angle between the wall and the hood: and then push the hood against the wall tightly. Secure the duct to the duct cover and seal the connection with aluminum tape.
Caution: Two installers are required to ensure safe installation. - Install the decorative plate. Use four 3.5 x 35 wood screws to fix the decorative plate onto the upper cabinet.

- Make sure the hood is leveled. Install the Grease Cup, and plug the appliance for a test run.

Installation Instructions for the Decorative Cover Without Upper Cabinet

- Unpack the appliance and check the List of Accessories.

- Locate the wooden beam and mark the location with a pencil. Mark another beam 16″ or 24″ to either side of this mark.

- Locate the duct bracket. safety buffer baffle and decorative cover bracket:
Caution: one of the brackets for the main engine must be fastened to the beam. Screws must be fixed at holes A and B in the drawing; also screws must be fixed at bracket bores with corresponding wooden stakes in area C. Firstly determine the installation central point of the range hood according to the central point of the cooker. determine the bracket installation location based on the cooker table and mark the place for drilling. The cooker table is about 27 7/8″ (708 mm) to 30 7/8″ (783 mm) away from the central point of the bracket: The location to install the safety buffer baffle should be 4 9/16″ (115.5 mm) to the left of the duct bracket and 2 5/16″ (58.5 mm) straight up.
The location to install the decorative cover bracket should generally be 29 15/16 ” (760 mm) above the central point of the duct bracket. If the distance between the ceiling and duct bracket equals to or is less than the value, secure the decorative cover bracket on the wall right under the ceiling. If the distance is more than the value, taller decorative covers (27 9/16″ (700 mm) and 35 7/16″ (900 mm) in height respectively) need to be bought separately. Drill 08 hole at the screw hole marks with an electric drill and embed expansion tubes. - Secure the duct bracket and decorative cover bracket to the wall with corresponding screws and tighten the screws. Make sure the bracket is leveled.
Caution: One of the screws for duct bracket must be fastened to the wooden beam.
- Fasten the gasket seal and duct cover to the range hood outlet with four M4 x 18 screws and set four cover screws at the corresponding places. Fix two bases at corresponding positions on the back of the range hood with base screws.


- Remove the protective film of the stainless steel surface and Grease Cup at both sides of the range hood.

- Lift and position the hood onto the mounting screws. Make sure the hood is stable and leveled by using a spirit level. Install the safety buffer baffle above the hood.
Caution: Two installers are required to ensure safe installation. - Secure the dud to the dud cover and seal the connection with aluminum tape. Make sure the hood is leveled. Install the Grease Cup. and plug the appliance for a test run.

- Tear the protective film over the decorative cover and the blower housing; then install the decorative cover onto the brackets. Push the blower housing downward and lock it to the cover screws.

- Install the Grease Cup.
Warning: Please wear qualified protective gloves in operation.
Test Run After Installation:
- Lightly press the POWER button. Next, lightly press the LIGHTING button. At this time, the smoke baffle plate and lights should work normally.
- Lightly press the fan buttons to check the motor. If any of the following malfunctions occurs, unplug the hood immediately and re-check the installation process. (If the malfunction continues, contact our authorized service center as soon as possible.)
(1) The hood vibrates violently.
(2) The impeller does not work.
(3) The impeller grates while rotating.
(4) The motor makes strange sounds. - Lightly press the POWER button again to turn off the fan and close the smoke baffle plate.
Explosive View



Warning: For the safety of you and your family, please regularly clean the oil accumulated in the Grease Cup and deposits on the Grease Cup surface. Do wear qualified protective gloves.


Risk of Electric Shock:


Caution: One of the brackets for the main engine must be fastened to the beam. Screws must be fixed at Hole A and B in the drawing; also screws must be fixed at bracket bores with corresponding wooden stakes in Area C.


If there is a big gap between the bottom board of the top cabinet and the top of the range hood, please add wood pads based on the gap size near the three M5x70 screws to avoid range hood shell deformation caused by the tightening of screws, which will affect the use of the range hood.
Caution: Two installers are required to ensure safe installation.
Warning: Please wear qualified protective gloves in operation.


Caution: One of the brackets for the main engine must be fastened to the beam. Screws must be fixed at Hole A and B in the drawing; also screws must be fixed at bracket bores with corresponding wooden stakes in Area C.
Caution: Wear safety goggles when drilling. In case of batten at the wall facing the bottom plate, the rear wall side of the paper template shall be cut as per the thickness of the batten.

Caution: Two installers are required to ensure safe installation.





Caution: Two installers are required to ensure safe installation.

Warning: Please wear qualified protective gloves in operation.

















