CVG30W9AST Range Hood
User Manual

INTENDED FOR RESIDENTIAL COOKING USE ONLY
Free 3 months extension of the original limited warranty eriod!* Simply text a picture of your proof of purchase to:
1-844-224-1614
*The warranty extension is for the three months immediately following the completion of the product’s original warranty period.
WARNING
WARNING alerts you to situations that may cause serious body harm, death or property damage.
CAUTION
CAUTION indicates a potentially hazardous situation which, if not avoided, may result in minor or moderate injury.
IMPORTANT
IMPORTANT indicates installation, operation, maintenance or valuable information that is not hazard related.
WARNING
TO REDUCE THE RISK OF FIRE, ELECTRIC SHOCK OR INJURY TO PERSONS, OBSERVE THE FOLLOWING:
- Use this unit only in the manner intended by the manufacturer. If you have questions, contact the manufacturer at the address or telephone number listed in the warranty.
- Before servicing or cleaning unit, unplug and switch power off at service panel and lock service disconnecting means to prevent power from being switched on accidentally. When the service disconnecting means cannot be locked, securely fasten a prominent warning device, such as a tag, to the service panel.
- Installation work and electrical wiring must be done by qualified personnel in accordance with all applicable codes and standards, including fire-rated construction codes and standards.
- Sufficient air is needed for proper combustion and exhausting of gases through the flue (chimney) of fuel burning equipment to prevent backdrafting. Follow the heating equipment manufacturer’s guidelines and safety standards such as those published by the National Fire Protection Association (NFPA) and the American Society for Heating, Refrigeration and Air Conditioning Engineers (ASHRAE) and the local code authorities.
- When cutting or drilling into wall or ceiling, do not damage electrical wiring and other hidden utilities.
- Ducted fans must always be vented to the outdoors.
- Do not use this unit with any solid-state speed control device.
- TO REDUCE THE RISK OF FIRE , USE ONLY METAL DUCTWORK.
- This unit must be grounded. This appliance is equipped with a cord having a grounding wire with a grounding plug. The plug must be plugged into an outlet that is properly installed and grounded.
- Do not use an extension cord. If the power supply cord is too short, have a qualified electrician install an outlet near the appliance.
- When applicable local regulations comprise more restrictive installation and/or certification requirements, the aforementioned requirements prevail on those of this document and the installer agrees to conform to these at his own expense.
TO REDUCE THE RISK OF A RANGE TOP GREASE FIRE:
a) Never leave surface units unattended at high settings. Boilovers cause smoking and greasy spillovers that may ignite. Heat oils slowly on low or medium settings.
b) Always turn hood ON when cooking at high heat or when flambeing food (i.e.: Crêpes Suzette, Cherries Jubilee, Peppercorn Beef Flambé).
c) Clean ventilating fans frequently. Grease should not be allowed to accumulate on fan, filters or in exhaust ducts.
d) Use proper pan size. Always use cookware appropriate for the size of the surface element.
WARNING
TO REDUCE THE RISK OF INJURY TO PERSONS IN THE EVENT OF A RANGE TOP GREASE FIRE, OBSERVE THE FOLLOWING*:
- SMOTHER FLAMES with a close-fitting lid, cookie sheet or metal tray, then turn off the burner. BE CAREFUL TO PREVENT BURNS. IF THE FLAMES DO NOT GO OUT IMMEDIATELY, EVACUATE AND CALL THE FIRE DEPARTMENT.
- NEVER PICK UP A FLAMING PAN — You may be burned.
- DO NOT USE WATER, including wet dishcloths or towels —This could cause a violent steam explosion.
- Use an extinguisher ONLY if:
A. You own a Class ABC extinguisher and you know how to operate it.
B. The fire is small and contained in the area where it started.
C. The fire department has been called.
D. You can fight the fire with your back to an exit. - Based on “Kitchen Fire Safety Tips” published by NFPA.
CAUTION
- For indoor use only.
- For general ventilating use only. Do not use to exhaust hazardous or explosive materials and vapors.
- To avoid motor bearing damage and noisy and/or unbalanced impeller, keep drywall spray, construction dust, etc. off power unit.
- Install the vent hood in a location away from strong drafts, such as windows, door, and strong HVAC vent for best performance
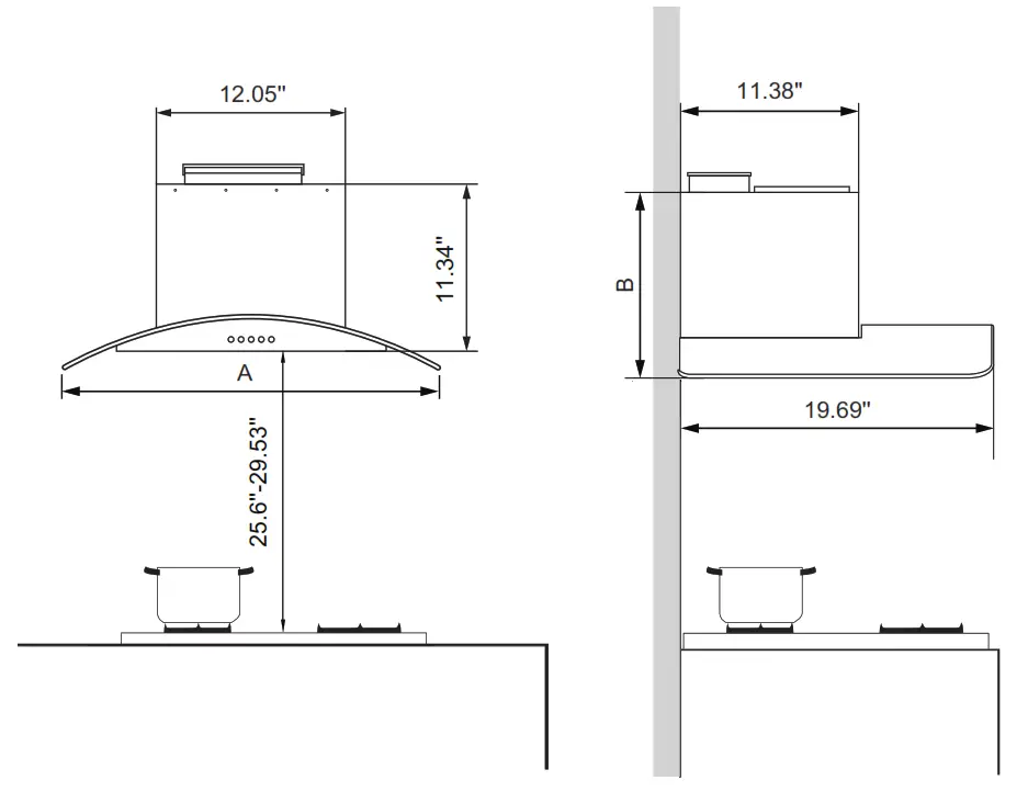
- The minimum hood distance above cooktop must not be less than 25-5/8″. For best capture of cooking impurities, the bottom of the hood should be at a maximum of 29-1/2″ above cooking surface.
- Two installers are recommended because of the large size and weight of this unit.
- To reduce the risk of fire and to properly exhaust air, be sure to duct air outside — Do not exhaust air into spaces within walls or ceiling or into attics, crawl space or garage.
- Because of the high exhausting capacity of this unit, you should make sure enough air is entering the house to replace exhausted air by opening a window close to or in the kitchen.
- Always leave safety grills and filters in place. Without these components, operating blowers could catch onto hair, fingers and loose clothing.
- The vent hood and filters should be cleaned frequently.
SAVE THESE INSTURCTIONS
COMPONENTS

| Ref. | Qty. | Product Components |
| 1 | 1 | Hood Body,complete with: Controls, Light, Blower and Filter. |
| 2.1 | 1 | Lower Decorative Chimney |
| 2.2 | 1 | Upper Decorative Chimney |
| 3 | 1 | The Activated Charcoal filter ( optional ) |
| 4 | 2 | Grease filter |

| Ref. | Qty | Screws 0.2” x 1.97” |
| 10 | 7 | Wall Plugs |
| 11 | 7 | Screws 0.17” x 0.37” |
| 12 | 6 | Hood fixing bracket |
| 20 | 1 | Chimney fixing bracket |
| 21 | 2 | Installation Components |
DIMENSIONS

| CVG36W9AST | CVG30W9AST | |
| A | 35.4″ | 30″ |
| B | 13.11″ | 11.89” |
INSTALLATION PREPARATION
SELECT INSTALLATION TYPE
A. Vented Installation
B. Non-Vented / Recirculation Installation
Roof Discharge
This canopy hood is designed for venting through the roof or wall. A 6″ round vent system is needed for installation (not included). The hood exhaust opening is 6″ round.
Vent system can terminate either through the roof or wall.
To vent through a wall, a 90° elbow is needed.
Rear Discharge
A 90° elbow may be installed immediately above the hood.
WARNING
TO REDUCE THE RISK OF FIRE, USE ONLY METAL DUCTWORK.
If it is not possible to vent cooking fumes and vapors to the outside, the hood can be used in the non-vented (recirculating) version, fitting a charcoal filter and the deflector not included, you can decide whether to use according to your installation environment). Fumes and vapors are recycled through the top grille.
A. Vented Installation
![]() | ||
| A. Roof cap B. 6 round vent | A. Wall cap B. 6″ round vent | A. Deflector B. 6″ round vent |
Local building codes may require the use of makeup air systems when using ventilation systems greater than specified CFM of air movement. The specified CFM varies from ocale to locale. Consult your HVAC professional for specific requirements in your area.
Vents and electrical should be installed in the gray shaded areas to provide a clean finished look

CAUTION
- Vent system must terminate to the outdoors except for non-vented (recirculating) installations.
- Do not terminate the vent system in an attic or other enclosed area.
- Do not use 4″ laundry-type wall cap (plastic). Only use a metal exterior exhaust vent.
- Use metal vent only. Rigid metal vent is recommended for best performane.
- All vent joints should be taped and sealed with 2″metal foil tape
- The length of vent system and number of elbows should be kept to a minimum to provide efficient performance.
For the Most Efficient and Quiet Operation:
- Use no more than three 90° elbows.
- Make sure there is a minimum of 24″ of straight vent between the elbows if more than 1 elbow is used.
- Do not install 2 elbows together.
- Use clamps to seal all joints in the vent system.
- Use caulking to seal exterior wall or roof opening around the cap.
- The size of the vent should be uniform.
Hood Mounting Screw Installation
- Determine and mark the centerline on the wall where the hood will be installed.
- Select a mounting height between a minimum of 25.6” and a suggested maximum of 29.53” above the range to the bottom of the hood. Mark a reference line on the wall.
- Tape template in place, aligning the template centerline and bottom of template with hood bottom line and with the centerline marked on the wall.

NOTE:Ensure that horizontal lines are level prior to marking hole locations.
WALL DRILLING AND BRACKET FIXING

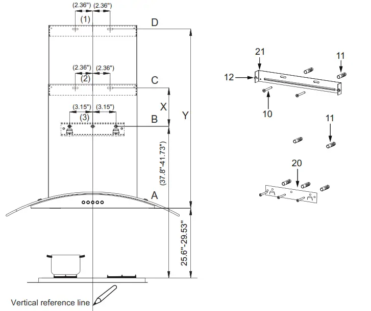
| Chimney | X | Y |
| 15.75″+15.35” | 4.69” | 17.64”-30.83” |
As a first step, proceed with the following drawings:
- A veritcal line up to the ceiling or up to the upper limit, at the center of the area in which the hood is to be fitted.
- The cooker hood should be placed 25.6”-29.53” ( horizontal line A ) up from the cooking plane for safe and a good effect.
- A horizontal line B at a minimum above the cooker top. 37.8”-41.73”
- A horizontal line C at a inch above the B.
- A horizontal line D at X Y above the cooker hood.
Mark Points:
- Mark a point (1) on the horizontal line D, 2.36″ to the vertical reference line.
- Repeat this operation on the other side, checking that the three marks are leveled. Mark a point (2) on the horizontal line C, 2.36″ to the vertical reference line.
- Repeat this operation on the other side, checking that the three marks are leveled.
- Mark a point (3) on the horizontal line B, 3.15” to the vertical reference line.
- Repeat this operation on the other side, checking that the three marks are leveled.
Assemble the Lower Chimney Cover:

- Slide the Lower Decorative Chimney trim (2.1) over the fan body.
- Ensure that the Decorative trim is pressed down to line up the lower mounting holes (A) Insert 2 short sheet metal screws (12) in the lower holes
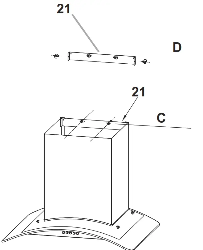
- Place Chimney mounting bracket (21) at the top of the Lower Decorative Chimney (2.1), and insert 2 short sheet metal screws (12) into the outer most holes on the bracket at location B
Pre-Assemble the Upper Chimney Cover and:
- Remove the protective foil from the Upper Decorative Chimney (2.2)
- Slide the Upper Decorative Chimney trim (2.2) down between the fan body and the Lower Decorative Chimney trim(2.1)
o It should be exposed about 0.25″ above the Lower Decorative Chimney trim
Hang and Mount the Vent Hood:
- Hang the vent hood onto fixing bracket 20
- Level the hood, and insert 2 long screws (10 ) into bracket 21 at level C
IMPORTANT
- The vent hood should be lifted and installed by 2 people to prevent injuries and potential damage

Install Duct and Insert Plug:
- Install 6″ duct over the flange on the fan body
- Use 2″ wide metal tape to make an air tight seal between the duct and the fan body
- Install a clamp to secure the ductwork securely
- Remove Carbon Filters if installed ented applications
- Insert the plug into a properly grounded outlet
WARNING
Electrical Shock Hazard
- This unit must be grounded. This appliance is equipped with a cord having a grounding wire with a grounding plug. The plug must be plugged into an outlet that is properly installed and grounded.
- Do not use an extension cord. If the power supply cord is too short, have a qualified electrician install an outlet near the appliance.
- Install Carbon Filters.
- Install deflector according to your installation environment.
Install Upper Decorative Chimney :

- Install Chimney mounting bracket (21) at holes previously marked on level D.
- Slide the upper decorative chimney 2.2 up to the horizontal line D.
- Insert 2 small sheet metal screws into the sides of the bracket to secure the Upper Decorative Chimney.
Summary of installation steps

Speed adjustment
| Gestures | Turn the Motor and Lights ON. | When is | |
| Turn the Motor and Lights ON. | When is | ||
| Enter delayed shutdown mode (Automatic shutdown after 3 minutes) | When is | ||
| Turn the Motor and Lights OFF | When is |
![]()
| Button | Function | Remarks | |
| Turns the lighting system on or off. | Button on. | ||
| _ | Reduce the fan speed. | When ” ” + ” “C) are on. | |
| Display fan speed “1. 2, 3”. | When the fan is running. | |
| Display “0”. | Delayed shutdown mode, or standby mode. | ||
+ | Increase the fan speed. | When ” 0 ” + ” + ” are on. | |
| Turn the hood ON. | When ” U” is off. | ||
| Automatic shutdown after 3 minutes. | When ” 0 ” is on. | ||
| Turn the hood OFF. | When ” 0 ” is flashing. | ||
| Turn the machine and Lights ON. | When ” 0 ” is off. | Height between palm and switch board 3.94″-5.91″ | |
| Change the motor speed 2 3 1 2 3). circularly (1 | When ” 0 ” is on. | ||
| Enter delayed shutdown mode(Automatic shutdown after 3 inutes). | When ” , ” is on. | ||
| Turn the machine and Lights OFF. | When ” , , ” is flashing. | ||
MAINTENANCE
GREASE FILTERS
CLEANING METAL SELF-SUPPORTING GREASE FILTERS

- The filters must be cleaned frequently and can be washed in a dishwasher or a hot detergent solution.
- Depress the latch to remove the filters.
- Avoid bending the filters when washing, and allow the filters to completely dry before reinstalling (The color of the filter surface may change throughout the time but this has no influence to the filter efficiency).
- When reinstalling the filter ensure the release latches are facing down, and are securely in place.
WARNING
Do not operate your cooktop when the filters are not installed into the vent hood.
ACTIVATED CHARCOAL FILTER (RECIRCULATION VERSION)
REPLACING THE ACTIVATED CHARCOAL FILTER
- Remove the metal grease filters.
- Remove the saturated activated charcoal filter.
- Install the new filters.
- Replace the metal grease filters.
- The service part number: 12173000A00481.

LIGHTING
LIGHT REPLACEMENT
- Replacing the light modules
- The entire light module must be replaced.
- Before changing the light module(s), unplug the appliance or switch off the circuit breaker in the fuse box.
- Remove the grease filter and carefully remove the 4 screws from each side on the opening (a Phillips head screwdriver will be needed to remove the screws).

- Lower the control panel at the front by carefully pulling it downwards. You can now access the light module and terminals.Replace the lamp.

| Max Powe | Voltage | Picture | 1.7473E+13 | |
| Round/ Diameter: 2-3/4″ | 1.5W | DC 12 V | ![]() | Service Number |
DISPOSAL OF OLD ELECTRICAL APPLIANCES
The European directive 2012/19/EU on Waste Electrical and Electronic Equipment (WEEE), requires that old household electrical appliances must not be disposed of in he normal unsorted municipal waste stream. Old appliances must be collected separately in order to optimize the recovery and recycling of the materials they contain, and educe the impact on human health and the environment. The crossed out “wheeled bin” symbol on the product reminds you of your obligation, that when you dispose of he ppliance, it must be separately collected. Consumers should contact their local authority or retailer for information concerning the correct disposal of their old appliance.
1 YEAR LIMITED WARRANTY
This is the only express warranty for this product and is in lieu of any other warranty or condition.
This product is warranted to be free from defects in material and workmanship for a period of one (1) year from the date of original purchase. During this period, your exclusive remedy is repair or replacement of this product or any component found to be defective, at our option; however, you are responsible for all costs associated with returning the product to us and our returning the product or component under this warranty to you. If the product or component is no longer available, we will replace with
a similar one of equal or greater value.
We exclude all claims for special, incidental, and consequential damages by breach of express or implied warranty. All liability is limited to amount of the purchase price. Every mplied warranty, including any statutory warranty or condition of merchantability or fitness for particular purpose, is disclaimed except to the extent prohibited by aw, in which case such warranty or condition is limited to the duration of this written warranty. This warranty gives you specific legal rights. You may have other legal rights hat vary d epending on where you live. Some states or provinces do not allow limitations on implied warranties or special, incidental consequential damages, so the foregoing limitations may not apply to you.
This warranty does not cover wear from normal use or operation that does not comply with the instruction manual or damages to the product resulting from accident, lteration, abuse, or misuse. This warranty extends only to the original consumer purchaser or gift recipient. Keep the original sales receipt, as proof of purchase is required to ake a warranty claim. This warranty is void if product is used for other than single-family household use or subjected to any voltage and waveform other than as specified on the label.
Customer Service:
Phone: 1-866-646-4332






















