oventrop Multidis SFQ Heating Circuit Manifold Instruction Manual
General information
The original operating instructions are written in German.
The operating instructions in other languages have been translated from German.
Validity of the operating instructions
These operating instructions are valid for the Multidis SFQ heating circuit distributor/ collector in the versions for 2 to 12 heating/ cooling circuits.
Extent of supply
Please check your delivery for any damage caused during transit and for completeness. Extent of supply
- Flow distributor
- Return collector
- 2 brackets
- 4 screws
- 4 dowels
- 2 ring gaskets for the connection between the heating circuit distributor/collector and the ball valve
- Stickers for circuit identification
- Operating instructions
Contact
OVENTROP GmbH & Co. KG Paul-Oventrop-Straße 1 59939 Olsberg GERMANY
Technical service
Phone: +49 (0) 29 62 82-234
Declaration of conformity
Oventrop GmbH & Co. KG hereby declares that this product has been manufactured in compliance with the essential requirements and the relevant provisions of the relevant EU directives.
The declaration of conformity can be obtained from the manufacturer.
Symbols used
Highlights important information and further additions.
Action required
List
Fixed order. Steps 1 to X.
Result of action
Correct use
Operational safety is only guaranteed if the product is used as intended.
The Multidis SFQ heating circuit distributor/ collector serves the central distribution of the heating/cooling water to the different circuits of a dwelling. The flow rate is automatically controlled by the integrated QM valve insert. Any use beyond and/or different from this is considered improper use.
Claims of any kind against the manufacturer and/or his authorised representatives for damage resulting from improper use cannot be recognised.
Proper use also includes correct compliance with these instructions.
Warnings
Each warning contains the following elements:
Warning symbol SIGNAL WORD
Type and source of danger!
Possible consequences if the danger occurs or the warning is ignored
Ways to avoid the danger.
Signal words define the severity of the danger posed by a situation.
NOTICE
Indicates a situation that can potentially result in damage to property if not avoided
Safety notes
We have developed this product in accordance with current safety requirements.
Please observe the following notes concerning safe use.
Danger due to insufficient personnel qualification
Work on this product may only be carried out by suitably qualified specialist tradespeople. Due to their professional training and experience as well as knowledge of the relevant legal regulations, qualified specialist tradespeople are able to carry out work on the described product in a professional manner.
Operator
The operator must be instructed in the operation by specialist tradespeople.
Risk of injury from pressurised components
- Only carry out work when the system is depressurised.
- Observe the permissible operating pressures during operation.
Risk of burns due to an uncontrolled discharge of hot media
- Only carry out work on the heating/cooling circuit when the system is depressurised.
- Check that the product is not leaking after work is complete.
- Wear safety goggles.
Risk of burns due to hot components and surfaces
- Allow the product to cool down before working on it.
- Wear suitable protective clothing to avoid unprotected contact with hot system components and fittings.
Risk of injury in case of improper work
Stored energy, angular components, points and corners on and in the product can cause injuries
- Ensure that there is sufficient space before starting work.
- Handle open or hard-edged components with care.
- Keep the work area tidy and clean to avoid sources of accidents
Availability of the operating instructions
Every person who works with this product must have read and applied this manual and all applicable instructions.
The instructions must be available at the place of use of the product.
Pass on these instructions and all applicable instructions to the operator.
Technical description
Design
Fig. 1: Design of the flow distributor
- Union nut
- Flow indicator
- Fill and drain cock G ¾
- Flow distributor
- Connection nipple with G ¾ external thread (Eurocone according to DIN EN 16313)

Fig. 2: Design of the return collector
- Union nut
- QM valve insert
- Protection cap
- Fill and drain cock G ¾
- Return collector
- Connection nipple with G ¾ external thread (Eurocone according to DIN EN 16313)
Functional description
The Multidis SFQ heating circuit distributor/ collector serves the distribution of the medium to the corresponding surface heating/ cooling circuits.
The Multidis SFQ heating circuit distributor/ collector is equipped with the QM valve insert. The QM valve insert enables automatic flowcontrol (hydronic balancing) of the surface heating and cooling systems, as the valve insert is infinitely presettable, diaphragmcontrolled and differential pressureindependent.The differential pressure is kept constant over the presetting and control cross-section of the valve by the flow control unit integrated in the valve insert. Printed stickers are included with the heating circuit distributor/collector to identify the individual circuits.You can attach these to the heating circuit distributor/collector. The heating/cooling circuits can be filled, flushed and bled via the fill and drain cocks
Operating elements and displays
Set the flow rate using the presetting key directly on the handwheel of the QM valve insert (the set values can be read directly from the outside).This protects against manipulation of the preset value by unauthorised persons.The valve insert is infinitely adjustable. A correction of the set value is also possible while the system is running.
The flow indicators in the flow distributor must be in the fully open position (factory setting).They do not serve to set the flow rates!
The position of the indicator ring in the sight glass has no direct relation to the flow rate set on the QM valve insert
Install ball valves in front of the flow distributor/return collector to shut off the supply and return pipe.
Fig. 3: Design of the QM valve insert
- Presetting key
- Protection cap
- Handwheel
- Return collector
- Connection nipple
Fig. 4: Setting of the QM valve insert
- Set value l/min
- Indicator mark

Fig. 5: Setting of the flow indicator
- Position open
- Position closed

The flow indicator is operated using the presetting key supplied with the QM valve insert.
- 0 = Position closed (no flow)
- I = Position fully open
Accessories and spare parts
Technical data
Performance data
General
- General Max. operating temperature: +60° C
- Min. operating temperature: +2 °C
- Max. operating pressure: 6 bar (600 kPa)
- Control range 0.5-5 l/min
Control range
- Δp max. 150 kPa (1.5 bar)
- Δp min. (0.5 – 2 l/min) 10 kPa (0.10 bar)
- Δp min. (>2 – 2.8 l/min) 15 kPa (0.15 bar)
- Δp min. (>2.8 – 5 l/min) 20 kPa (0.20 bar)
Below Δp min. a normal thermostatic valve function is given, i.e.the set flow value is undercut depending on the differential pressure.
Data for actuator connection
- Connection thread M30 x 1.5
- Valve stroke 1.8 mm
- Closing dimension 11.8 mm
- Closing force (actuator) 90 – 150 N
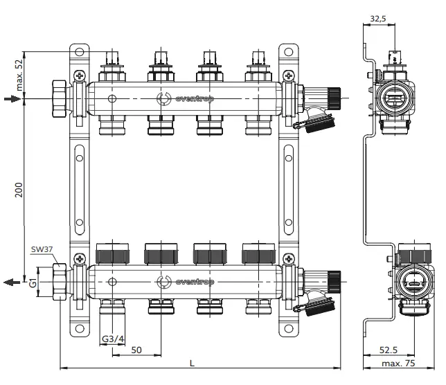
Dimensions

Fig. 6: Dimensions
| Item no. | Circuits | Length (L) | ||
| 1404952 | 2 | 188 mm | ||
| 1404953 | 3 | 238 mm | ||
| 1404954 | 4 | 288 mm | ||
| 1404955
| 5
| 338 mm
| ||
| 1404956
| 6
| 388 mm
| ||
| 1404957 | 7 | 438 mm | ||
| 1404958 | 8 | 488 mm | ||
| 1404959 | 9 | 538 mm | ||
| 1404960 | 10 | 588 mm | ||
| 1404961 | 11 | 638 mm | ||
| 1404962 | 12 | 688 mm |
Accessories and spare parts
The product is supplied with extensive accessories (see par. 1.2 on page 17). Ball valves and heat meters are not included in the scope of delivery
Transport and storage
You can obtain spare parts and accessories from specialist stores.
When selecting the cabinet, please note that the overall depth and length of the Multidis SFQ heating circuit distributor/ collector will increase if you use accessories such as ball valves or heat meters
Ball valve

Fig. 7: Dimensions of the ball valve
| Item no. | Size | D | L1 | L2 | |
| 1406383 | DN 20 | G ¾ | 55 mm | 57 mm | |
| 1406384 | DN 25 | G 1 | 80 mm | 60 mm | |
| 1406483 (with thermo- meter) | DN 20 | G ¾ | 73 mm | 60 mm | |
| 1406583 (with thermo- meter) | DN 20 | G ¾ | 73 mm | 60 mm | |
| 1406484 (with thermo- meter) | DN 25 | G 1 | 85 mm | 60 mm | |
| 1406584 | DN 25 | G 1 | 85 mm | 60 mm |
To obtain the length with the ball valve attached, add the length of the Multidis SFQ heating circuit distributor/collector (L) to the length of the ball valve (L1).
The ball valves item no. 1406483 and 1406484 have a red T-handle which shall mark the supply pipe.- The ball valves item no. 1406583 and 1406584 have a blue T-handle which shall mark the return pipe.
Heat meter
The installation of commercially available G 1 and G ¾ heat meters is possible.
The dimensions of the heat meter can be obtained from the corresponding operating instructions.
Transport and storage
Transport the product in its original packaging. Store the product under the following conditions:
| Temperature range | -20 °C to +60 °C | |
| Relative air humidity | Max. 95 % | |
| Particles | Store in a dry and dust- protected place | |
| Mechanical influences | Protected from mechanical shoc | |
| Radiation | Protected from UV-rays and direct sunlight | |
| Chemical influences | Do not store together with solvents, chemicals, acids, fuels or similar substances |
Installation
NOTICE
Damage to property due to lubricants!
Seals can be destroyed by the use of greases or oils.
- Do not use greases or oils during installation.
- If necessary, flush dirt particles and grease and oil residues out of the pipework.
- When selecting the operating medium, observe the general state of the art (e.g. VDI 2035).
- If the operating medium is contaminated, install a strainer in the supply pipe (VDI 2035).
The brackets enable mounting on the wall or in the cabinet.
- Mount the flow distributor (at the top) and the return collector (at the bottom) into the sound-absorbing brackets.
- Mount them onto the wall or in the cabinet.
The supply and return pipe can be connected from either the left or right hand side.
Commissioning
Filling, bleeding and leak testing of the installation
Before commissioning, you have to fill and bleed the installation.
- Close the ball valves in front of the flow distributor and the return collector.
- Fully open the QM valve inserts.
- Set the handwheel with the presetting key to the set value 5.The G ¾ connection of the fill and drain cock is suitable for the connection of a commercially available DN 15 hose fitting.
- Apart from the circuit to be filled, close all valve inserts QM using the protection cap.
- Flush and fill each circuit one after the other via the fill and drain cock at the return collector to the fill and drain cock at the flow distributor.
- Carry out a leak test according to DIN EN 1264.
Record the tightness and the test pressure in a test record.You can find the test record as a copy template on our website.
Visit www.oventrop.com- There, select the menu option DOWNLOADS & SOFTWARE.
- Proceed to BROCHURES.
- Select SURFACE HEATING AND COOLING COFLOOR.
- You can find the test record in our brochure “Cofloor Surface heating and cooling systems/Systems with distributor/collector”.
Protection cap
The Multidis SFQ heating circuit distributor/ collector is supplied with a protection cap (see Fig. 2 on page 19) made of plastic on the QM valve insert. On the one hand, it protects the valve spindle, and on the other hand, it can be used to manually adjust the valve stroke during the construction phase.
- Turning clockwise
- The valve insert closes and the heat supply is reduced
- Turning anticlockwise
- The valve insert opens and the heat supply is increased
Operation
NOTICE
Damage to the screed due to wrong temperatures!
Do not exceed the maximum permissible screed temperatures according to DIN near the heating pipes. In surface cooling systems, the temperature near the cooling pipes must not reach the dew point
- Carry out incremental heating of concrete and calcium sulphate screed according to DIN EN 1264-4.
- Follow the manufacturer’s specifications for all screed materials.
- Match the flow temperature to the heating or cooling system.
Incremental heating
Check the function of the heated floor construction during incremental heating. Start incremental heating at the earliest:
- 21 days after laying of concrete screed
- 7 days after laying of calcium sulphate screed
Proceed as follows during incremental heating
- Open all valve inserts at the return collector with the help of the protection cap.
- Heat up with a flow temperature between 20 °C and 25 °C for at least 3 days.
- Heat up with the maximum design flow temperature for at least 4 days.
Set the flow temperature via the heat generator control.
Record incremental heating in a test record. You can find the test record as a copy template on our website.

Visit www.oventrop.com.- There, select the menu option DOWNLOADS & SOFTWARE.
- Proceed to BROCHURES.
- Select SURFACE HEATING AND COOLING COFLOOR.
- You can find the test record in our brochure “Cofloor Surface heating and cooling systems/Systems with distributor/collector”
Correction factors for water-glycol mixtures
Take the correction factors of the manufacturers of the antifreeze liquids into consideration when setting the flow rate.
Maintenance
Regularly check the tightness and function of the product and its connection points as part of system maintenance
Removal and disposal
When the product reaches the end of its service life or has an irreparable defect, it must be dismantled and disposed of in an environmentally friendly manner or the components must be recycled.
NOTICE
Risk of environmental pollution!
Incorrect disposal can lead to environmental damage.
Dispose of packaging materials in an environmentally friendly manner.
If possible, recycle the components
Dispose of non-recyclable components according to local regulations.




















