CPG 351FEC100 Electric Convection Ovens
User Manual

www.cookingperformancegroup.com
Congratulations on your purchase of Cooking Performance Group commercial cooking equipment!
At Cooking Performance Group, we take pride in the design, innovation, and quality of our products.
To ensure optimal performance, we have outlined the following instructions and guidelines in this manual carefully for your review. Cooking Performance Group declines any responsibility in the event users do not follow the instructions or guidelines stated here.
Product Overview
The 351FEC100 features a sturdy steel construction with 4 adjustable legs. It is equipped with a built-in two speed convection fan for temperature uniformity throughout the cavity. This oven features high efficiency heating elements and a an electronic thermostat to ensure accurate temperate for precise cooking. The 351FEC200 features two oven cavities helping you meet higher production demands.
Safety Precautions
CAUTION:
- Failure to comply with the following operation instructions could lead to potential hazards and/or unsafe practice and could result in injury and damage to product and property.
NOTICE:
- Local codes regarding installation vary greatly from one area to another. The National Fire Protection Association, Inc., states in its NFPA96 latest edition that local codes are “Authority Having Jurisdiction” when it comes to requirement for installation of equipment. Therefore, installation should comply with all local codes.
- This product is intended for commercial use only. Not for residential use.
WARNING:
- Do not store or use gasoline or other flammable vapors and liquids in the vicinity of this or any other equipment.
- Improper installation, adjustment, alteration, service or maintenance could lead to property damage, injury or death. Read the installation, operating and maintenance instructions thoroughly before installing or servicing CPG equipment. This manual must be retained for future reference.
- A factory authorized agent must handle all maintenance and repair.
Stacking Ovens Instructions
NOTE: Requires two like ovens and stacking kit (#35117046014).
NOTE: We require the stacking to be performed by an authorized service agent or installer and takes two people to lift the ovens

1. Install the caster plate. (Fig. 1 A)
2. Install the casters or legs. (Fig. 1 B)

3. Align the top notches of the lower oven with the notches on the bottom of the upper oven. (Fig. 2)

Attach the top and bottom unit with connecting plates and screws. (Fig. 3)

Stacking is complete. (Fig. 4)
Specifications

NOTE: 351FEC200 ovens consist of two like 351FEC100 ovens – please see the spec table above for the individual oven/cavity specifications.
NOTE: Each oven requires its own electrical connection.
NOTE: You cannot convert voltages with these units. If you have the wrong voltage, you will need to purchase a unit with the correct voltage
Startup
Installation
- Remove packaging before beginning installation.
NOTE: Some parts are protected with an adhesive film. Remove any glue residue with approved substances, such as Noble Chemical Strike All Purpose Cleaner (#147STRIKE1G); never use abrasive substances. (See Cleaning & Maintenance on pg. 11 for our other recommended cleaning agents and further cleaning instructions) - Mount the feet and adjust the height by loosening or tightening each foot to ensure the unit is level.
- The electrical connections must be close to the equipment and easy to reach.
- Place the unit under an exhaust hood to ensure you comply with your local regulations.
- Install the unit at least 2″ from the wall and at least 6″ from other heat-producing equipment.
Any wall, surface, cabinet, table, etc. in close proximity to the equipment should be made of noncombustible materials with proper thermal insulation. - Law provisions, technical regulations, and directives:
The manufacturer requires the installation to be performed according to national and local codes and must be performed by a licensed installer. - Checking the functions:
The serial plate, like the example to the right, is located on the right side panel. Please ensure that the voltage stated on the serial plate is compatible before performing the electrical connection.

Notes for the Installer
- Explain and demonstrate to the user how the equipment works according to the instructions, and ensure that the user manual is accessible.
- Remind the user that any structural alterations or modifications made to the room that houses the equipment will warrant a recheck of the equipment functions.
- Do not install the equipment close to other units that can reach high temperature, as the electrical components could be damaged. A 6″ minimum clearance is required from such equipment.
Electric Connection
The oven must be electrically grounded in accordance with all local and national codes. (in the USA the National Electrical code ANSI/NFPA no. 70 is applicable).
Exhaust System
The room where the equipment is installed must be fitted with air intakes to guarantee the correct operation of the unit and air exchange.
- During installation, make sure the air suction and evacuation ways are free from any obstacles.
- This unit must be installed per all applicable hood regulations.
- This unit is not designed to be directly connected to an evacuation duct for the discharge of combustible products.
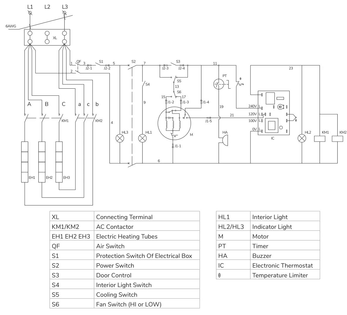
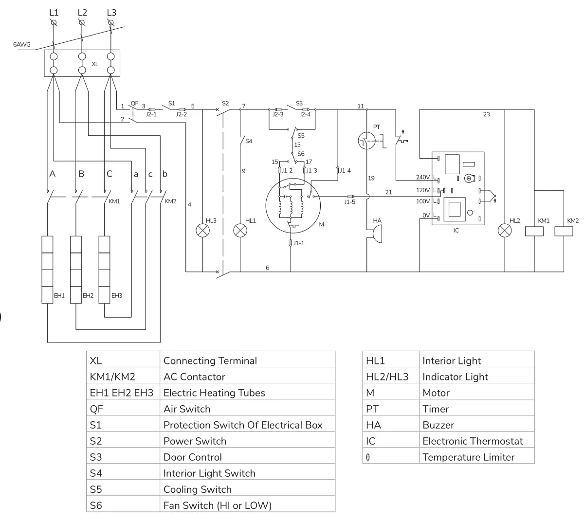
Electrical Diagrams
1 PHASE:

3 PHASE:

Operating Instructions
Control Panel

Cooking Instructions
- Turn the oven ON using the Power Switch at the top of the control panel.
- Select the desired fan speed using the Fan Speed switch. The appropriate fan speed (HI or LOW) depends on the type of food being cooked.
- Switch the Fan Mode to COOK. The fan will run continuously when the oven doors are closed (the fan does not cycle on and off with the heating element). If this switch is set to COOL, the only difference is that the fan will continue to run when the oven doors are open.
- Set the cooking temperature by turning the Cook Temperature Control until the indicator mark on the knob is pointed to desired cooking temperature. The HEAT ON indicator will light when the heating element is on and will remain on while the oven preheats.
- Wait until the HEAT ON indicator has gone out. At that time the oven will have reached the set cooking temperature.
- Open the oven doors, load the product into the oven, and close the doors.
- You can use the Cook Timer as a reminder of when to remove product from the oven. Turn the Cook
Timer knob until the indicator mark points to the desired cooking time (up to 55 minutes).
The timer knob will rotate counterclockwise as the timer runs down, indicating how much time remains. You can turn the knob while cooking to increase or decrease the remaining time. When the timer runs out, a buzzer will sound for a short time, then turn itself off. (To immediately silence the buzzer, turn the Cook Timer knob to the OFF position.)
NOTE: The timer is a reminder to you; the timer does not control the oven.
• If you open the oven doors, the heating element and fan will shut off until the doors are closed.
However, the timer will continue running even if the doors are open.
• For ovens that are equipped with an oven interior light, to turn on the light, press and hold the switch located at the bottom of the control panel. - To rapidly cool the oven cavity when finished cooking: Turn thermostat down to lowest level, open the oven door, switch the fan to COOL mode, and fan speed to HI. This will cause the fan to run even with the doors open.
- When you are done cooking, turn the Cook Temperature Control to the lowest setting (fully counterclockwise) and switch the Power Switch to OFF.
High Limit
Temperature Reset
WARNING: PLEASE UNPLUG AND DISCONNECT UNIT BEFORE REMOVING THE BOLT AND OPENING THE CONTROL PANEL TO AVOID INJURY.

- Remove the 7mm bolt that secures the control panel. (Fig. 1/2)
- Open the control panel by carefully pulling down, lowering it from the top. (Fig. 3)
- Reset the temperature limiter.
The temperature limiter is installed on a small bracket behind the control panel (Fig. 4).
Press the reset button manually.
The unit will operate under the new settings once powered on. - Close the control panel and re-install the 7mm bolt to secure.
- Power the unit on for inspection.
Warnings
- Always ensure proper supervision while the equipment is in use.
- Simple adjustments to knobs, leg height, etc. do not require assistance from specialized personnel.
For more technical adjustments, please consult a qualified technician. - Use only parts and accessories recommended by Cooking Performance Group.
- During the initial uses of the equipment, an acrid or burning smell may be detected. This will disappear after two or three uses. Or set unit to 450-500°F for 30 min. or until smell starts to disappear, then turn unit off and let cool.
- The equipment will remain hot for a short time after use (residual heat). Avoid all physical contact with the unit during this time to prevent injury.
- This equipment is strictly for professional use and must be used by qualified personnel.
- The installation, startup, and maintenance of this equipment must be carried out by a qualified technician.
- All installation must be carried out according to the law. Cooking Performance Group is not responsible for damages due to an incorrect installation, improper maintenance, or incorrect use.
• These are very important regulations; if they are neglected, the equipment may not perform properly or the user may be placed at risk and void manufacturer warranty.
Cleaning & Maintenance
- Before cleaning, turn off the unit and let it cool down.
- Carefully clean the equipment daily to promote proper operation and long life.
- Steel surfaces must be cleaned with with cleaning agents such as Noble Chemical Sunbright, Noble Chemical Knockout, or Noble Chemical Blast, diluted in very hot water using a soft cloth; do not use abrasive powder detergents or corrosive substances. The use of acids can affect the unit’s operation and safety. Do not use brushes, steel cottons, or abrasive disks made with other metals or alloys that may cause rust stains due to contamination. For the same reason, avoid contact with iron objects. Do not use stainless steel brushes, as they can cause damaging scratches.
- Metal powder, metal shavings, and iron material in general can cause stainless steel to rust. Superficial rust stains may be present on new equipment and they can be removed with a detergent diluted in water and a scouring pad. If dirt is difficult to remove, a sponge may be used. Please note that rust is not covered by the warranty.
- Use only approved substances to clean the unit as some chemicals could damage the unit. Rinse properly after cleaning with clean water, do not spray directly with water jet.
- We recommend that the user subscribes to a maintenance agreement to have the equipment checked at least once per year by an authorized technician
- Before carrying out any maintenance or repair, disconnect and unplug the equipment. Use only original spare parts supplied by Cooking Performance Group.
- If the equipment is not going to be used for a long period of time, it is advised to clean the equipment and surrounding areas properly.

www.cookingperformancegroup.com



















