
MGC MIX-4046 Multi Use Output Module Instruction Manual

25 Interchange way, Vaughan Ontario. L4K 5W3
Phone: 905.660.4655; Fax: 905.660.4113
Web: www.mircom.com
ABOUT THIS MANUAL
This manual is included as a quick reference for installation. For further information on the use of this device with a FACP, please refer to the panel’s manual.
Note: This manual should be left with the owner/operator of this equipment.
MODULE DESCRIPTION
The MIX-4046 Output module is designed to operate with a listed compatible intelligent fire system control panel. This module can control speakers, NACs or Fire-Phones. Selection of which mode the module will operate in is made through the FleXNet MP configuration tool. The module is compatible with Mircom FT-300A and FH- 100A Fire-Phones and supervision/busy tone on is provided for of fhook handset. The module supports one output circuit, rated at 2A @ 24VDC/25VRMS or 0.5A at 70VRMS, configured as Class A or Class B. An internal EOL resistor is provided for Class A operation. The module supports group activation capability for fast reaction time. The address of each module is set using the MIX-4090 programmer tool and up to 240 units may be installed on a single loop. The module has a panel controlled LED indicator.
FIGURE 1 MODULE FRONT:

SPECIFICATIONS

MOUNTING
Notice: You must disconnect power from the system before installing the module. If this unit is being installed in a system that is currently operational, it is necessary to inform the operator and the local authority that the system will be temporarily out of service.
The MIX-4046 module is intended to be mounted in a standard 4” square back-box (see Figure 2). The box must have a minimum depth of 2 1/8 inches. Surface mounted electrical boxes (BB-400) are available from Mircom.
FIGURE 2 MODULE MOUNTING

WIRING:
Note: This device should be installed as per applicable requirements of the authorities having jurisdiction.
- Install the module wiring as indicated by the job drawings and appropriate wiring diagrams (see Figures 3 through 8 for examples of wiring different devices)
- Use the programmer tool to set the address on the module as indicated on the job drawings.
- Mount the module in the electrical box as shown in figure 2.
Note: The external power source must be Listed for use in Fire alarm systems. Power connection to the module must be monitored for integrity with built-in or external Listed end of line relay
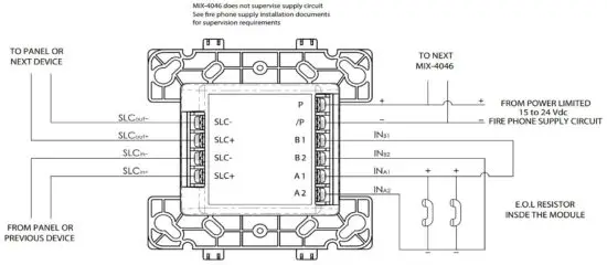
FIGURE 3 SAMPLE CLASS A FIRE PHONE WIRING:

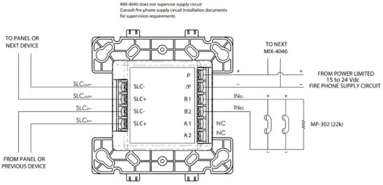
FIGURE 4 SAMPLE CLASS B FIRE PHONE WIRING:

FIGURE 5 SAMPLE CLASS A NAC WIRING:

FIGURE 6 SAMPLE CLASS B NAC WIRING:

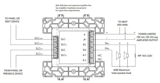
FIGURE 7 SAMPLE CLASS A SPEAKER WIRING:

FIGURE 8 SAMPLE CLASS B SPEAKER WIRING:

Table 1, NAC wiring selection:
The total drop from the power supply output to the devices should not exceed 1.8V based on the use of NAC from Mircom FlexNet FACPs.
This includes the riser drop and the MIX-4046 device line drop. If the riser is connected to several MIX-4046, the total riser load current must be used to calculate drop. The following tables provide a useful approximation

Table 2, speaker line wire selection (70VRMS line)
The maximum voltage drop on a 70V line should not exceed 7V from the amplifier to the last speaker to limit power loss to 1dB. The following tables provide a useful approximation.


Table 3, speaker line wire selection (25VRMS line)
The maximum voltage drop on a 25V line should not exceed 2.5V from the amplifier the last speaker to limit power loss to 1dB. The following tables provide a useful approximation.

Read More About This Manual & Download PDF:

















