MGC ALC-480 Dual Loop Adder

ALC-480 Dual Loop Adder Installation Instructions
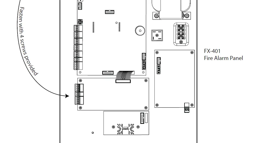
The ALC-480 Dual Loop Adder module is mounted as shown below. For more information refer to the FX-401 manual LT-6670.




The ALC-480 Dual Loop Adder module is mounted as shown below. For more information refer to the FX-401 manual LT-6670.


Download manual
Here you can download full pdf version of manual, it may contain additional safety instructions, warranty information, FCC rules, etc.