
INSTALLATION INSTRUCTIONS
Model IG3240RC3
Type 1 or Type 2 Surge Protection Device (SPD)
IMPORTANT SAFETY INSTRUCTIONS • SAVE THESE INSTRUCTIONS
IG3240RC3 Surge Protective Device
WARNING Risk of Fire or Electric Shock
- For Indoor/Outdoor use.
- Disconnect power at the circuit breaker(s) or disconnect switch(es) before installing or servicing.
- Installation and/or wiring must be in accordance with national and local electrical code requirements.
- Installation and service to be performed by a qualified licensed technician or electrician.
- Suitable for use on a circuit capable of delivering not more than 50,000 rms symmetrical amperes.
- For outdoor locations or wet locations (rain-tight), conduit hubs that comply with requirements of the UL514B (standard for fitting conduit and outlet boxes) are to be used.
NOTICE
- Thoroughly read instructions before installing SPD Unit. This unit contains no serviceable parts.
- This product does not protect against direct lightning strikes.
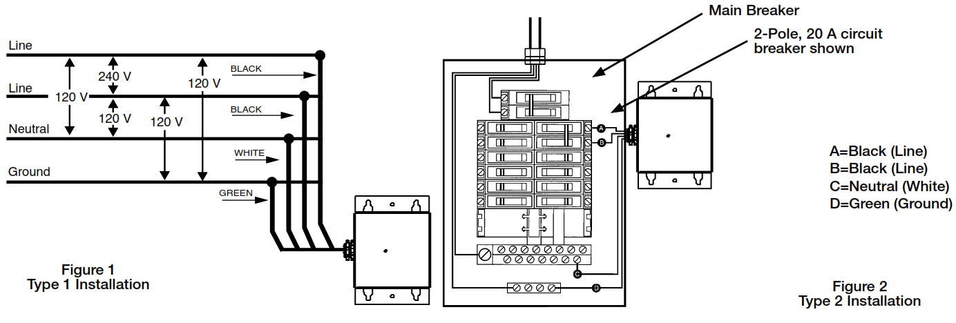
Type 1 installation:
A typical installation of a Type 1 SPD will be connected between the secondary of the service transformer and the line side of the service panel. This installation is intended to be installed without overcurrent protection to the SPD.
- Determine location:
• Ensure conductor lengths are as short and straight as possible for best performance. Do not coil excess wire. The SPD functions best if all bends in wires are rounded, ideally to a 4” radius. Hard 90 degree bend will reduce efficiency. Cut all leads to the correct length. Do not coil excess leads.
• Install appropriate weatherproof fittings if the unit is to be mounted outside. - Connect wires as shown in figure 1.
- Ensure all mounting and connections are correct and secure. Once energized the green indicator LED will be ON and visible through the cover of the SPD.
Type 2 installation:
A typical installation of a Type 2 SPD will be connected to the load side of the service panel and is intended to be installed with overcurrent protection to the SPD.
- Determining location:
• Ensure conductor lengths are as short and straight as possible for best performance. Do not coil excess wire. The SPD functions best if all bends in wires are rounded, ideally to a 4” radius. Hard 90 degree bend will reduce efficiency. Cut all leads to the correct length. Do not coil excess leads.
• Install appropriate weatherproof fittings if the unit is to be mounted outside.
• IG3240FMP33 is also available for flush mount applications. - Connect the green wire from the SPD to the ground bus in the panel.
• Connection may also be made to the neutral/ground bus bar if panel does not have a separate ground bus bar. - Connect the white wire from the SPD to the neutral bus bar in the panel as shown in figure 2.
- Connect the two black wires to a circuit breaker as shown in figure 2. For best performance from SPD, the maximum recommended circuit breaker size of 240 V, 20 A, 2-pole should be used.
- Ensure all mounting and electrical connections are correct and securely fastened. Once energized, the green indicator LED will be ON and visible through the cover of the SPD.
Maintenance:
- AC Voltage SPD:
- Periodically check SPD to ensure green indicator LED is ON. If green LED is OFF, protection has diminished and the SPD should be replaced immediately.

TEN YEAR LIMITED PRODUCT and CONNECTED EQUIPMENT WARRANTY for INTERMATIC SURGE PROTECTIVE DEVICES
KEEP THIS PAGE FOR YOUR OWN RECORDS
- What is Covered By This Limited Warranty
(A) Replacement of Product
Intermatic Incorporated (“Intermatic”) warrants to the original purchaser only, Intermatic IG3240RC3 Surge Protective Devices (each a “Product”) shall be free from defects in material or workmanship for a period of ten years (120 months) from date of purchase or 126 months from date of manufacture. If the purchaser discovers a defect in material or workmanship, the purchaser must promptly submit a warranty claim. Upon a determination by Intermatic that the Product is defective, Intermatic, shall correct any defect in material or workmanship by replacing the Defective Product. Any repair, including both parts and labor, shall be at Intermatic’s expense. The foregoing remedy is the purchaser’s exclusive remedy for a breach of warranty.
The product must be installed in the appropriate application in complete accordance with the installation instructions. All building wiring and other connections to the Product must conform to all applicable national, state, and local electrical codes; the Product must not be opened, modified, exposed to extreme heat or cold, submerged or subjected to abnormal use or service. All products must be used in accordance with the instructions provided with the Product and the purchaser shall be solely responsible for selecting a Product model with specifications appropriate for the equipment to be protected. Intermatic shall determine, in its sole discretion, whether any Product returned by a purchaser has been used in accordance with its instructions, is an appropriate model for the purchaser’s use thereof, and whether the Product is defective.
(B) Repair or Reimbursement for Damage to Properly Connected Equipment
In addition to the above described Product warranty, Intermatic warrants to the original purchaser of the Product for a period of five years from the date of purchase, the following: In the event that any major household connected electrical equipment (as defined below) is damaged (the “Damaged Equipment”) as a direct result of the failure of a Product to protect the Damaged Equipment from Power Transients (as hereinafter defined) and all other conditions are satisfied, Intermatic’s option, either repair the Damaged Equipment or reimburse the purchaser of the defective product. The limit of Intermatic’s liability under this warranty shall be the Fair Market Value (as hereinafter defined) of the Damaged Equipment or the deductible amount of the original purchaser’s homeowners insurance policy, whichever is less. In no event shall Intermatic incur repair costs or reimburse the purchaser for an amount in excess of Twenty Five Thousand Dollars ($25,000.00).
As used herein, “major household connected electrical equipment” shall mean major household appliances and electronic devices, including refrigerators, freezers, air conditioners, stoves and ovens, microwave ovens, clothes washers and/or dryers, dishwashers, audio and stereo equipment or components, video equipment, televisions and computers. Major household connected electrical equipment that normally requires an additional connection such as phone/modem connection, antenna or cable connection or other temporary or permanent connection must be properly connected to an Intermatic listed Surge Protection Device that incorporated surge protection for both AC (power) and all other input connections. The Fair Market Value of the Damaged Equipment shall be the current value of the equipment specified in the most recent version of the Orion Blue Book (printed or on-line edition) by Orion Research Corporation, or a comparable publication.
Promptly upon discovering any Damaged Equipment, the purchaser must submit a claim pursuant to the claim procedure provided below. In no event may a purchaser initiate a claim later than (30) days after the Protected Equipment is damaged. In order to receive the Connected Equipment protection provided in this Section, all of the following conditions must be satisfied with respect to the use of the Product: (a) the Product must be properly installed; (b) all building wiring and other connections to the Product and the Damaged Equipment must conform to all applicable federal, state and local electrical codes; (c) no ground wires or ground connections in addition to the AC power source can be used in connection with the Product or the Damaged Equipment; (d) Equipment with additional wiring or data/cable connections (as defined above) must be properly connected to a Listed Surge Protection Device (as noted above); and (e) the Product(s) and Protected Equipment must not be opened, modified, exposed to extreme heat or cold, submerged or subjected to abnormal use or service.
For purposes of this Limited Warranty, a Power Transient shall mean over-voltage resulting from momentary voltage spikes or surges on an AC power line of magnitude that the Product, according to its specifications, is designed to stop before such spikes or surges affect downstream equipment. - What is Not Covered By This Warranty
Intermatic does not warrant (a) defects in the Product or damage to any equipment caused by the failure to properly install the Product, (b) damage caused by use of the Product for purposes other than those for which it was designed, (c) damage caused by disaster such as fire, flood and wind, (d) damage caused by unauthorized attachments or modification of the Product, (e) damage to the Product occurring during the shipment, or (f) electrical disturbances exceeding published product specifications, (g) damage to the Product caused by any other abuse or misuse by the purchaser, (h) damage due to direct or vicinity lightning strikes, this warranty applies to residential and commercial applications. This device is not intended to provide protection during Utility voltage swells or loss of neutral conditions which are by definition not transient events and are not covered by this warranty. - Disclaimer of Warranty
THE FOREGOING WARRANTIES ARE IN LIEU OF ALL OTHER EXPRESSED WARRANTIES. TO THE EXTENT ALLOWED BY LAW, ANY IMPLIED WARRANTIES OF MERCHANTABILITY OR FITNESS FOR A PARTICULAR PURPOSE ARE LIMITED IN DURATION OF THIS LIMITED WARRANTY. - Limitation of Remedies
IN NO CASE SHALL INTERMATIC BE LIABLE FOR ANY SPECIAL, INCIDENTAL, OR CONSEQUENTIAL DAMAGES BASED UPON BREACH OF WARRANTY, BREACH OF CONTRACT, NEGLIGENCE, STRICT TORT, OR ANY OTHER LEGAL THEORY. SUCH EXCLUDED DAMAGES INCLUDE, BUT ARE NOT LIMITED TO, DAMAGE TO SOFTWARE, LOSS OF DATA, LOSS OF PROFITS, LOSS OF SAVINGS OR REVENUE, LOSS OF USE OF THE PRODUCT OR ANY ASSOCIATED EQUIPMENT, COST OF CAPITAL, COST OF ANY SUBSTITUTE EQUIPMENT, FACILITIES OR SERVICES, DOWNTIME, THE CLAIMS OF THIRD PARTIES INCLUDING CUSTOMERS, DAMAGE TO PROPERTY AND PERSONAL INJURY. SOME STATES DO NOT ALLOW LIMITS ON WARRANTIES OR ON REMEDIES FOR BREACH IN CERTAIN TRANSACTIONS, IN SUCH STATES, THE LIMITS IN THIS PARAGRAPH AND IN PARAGRAPH (3) MAY NOT APPLY. - Time Limit for Bringing Suit
No action arising out of any claimed breach of warranty may be brought more than one year after the cause of action has occurred. - No Other Warranties
Unless modified in writing signed by both parties, this agreement is understood to be the complete and exclusive agreement between the parties, superseding all prior agreements, oral or written, and all other communications between the parties relating to the subject matter of this agreement. No employee of Intermatic or any other party is authorized to make any warranty in addition to those made in this agreement. This warranty is made by: Intermatic Incorporated/After Sales Service, 12429 Rojas Drive, EL Paso, TX 79928-5201/815-675-7000 http://www.intermatic.com - Claim Procedure
In order to submit a claim for warranty service the original purchaser must:
(A) Contact the Intermatic Insurance Claims Center at 1-800-270-7227 before having the damaged equipment repaired.
(B) Request that an Incident Claim Report be written regarding the damage including descriptions and model identification (if available) of the equipment that was damaged.
Record the Warranty Claim Number for future reference.
(C) File a claim for the damaged equipment with your homeowners (or renter’s) insurance company.
(D) Send the INTERMATIC SURGE PROTECTIVE DEVICE to the Intermatic Warranty Coordinator at the address listed below. All returned devices must be plainly marked with the Intermatic Warranty Claim Number.
(E) Send all of the following information in a single packet to the Intermatic Warranty Coordinator at the address listed below.
(1) Claimant’s name, address and telephone number.
(2) Original dated sales receipt for the Intermatic Surge Protection Device.
(3) Original report for repair work.
(4) The damage report
(5) A copy of the claim report by the homeowners (renter’s) insurance company.
(F) Address all communications and products returns to:
Intermatic Warranty Coordinator
1950 Innovation Way, Suite 300
Libertyville, Illinois 60048
Attn: Surge Claim Processor
Product & Installation Information
Purchase date: ——————————————–
Installation date:—————————————-
Installed by:———————————————
Point of installation:———————————-
Breaker ratings if applicable:——————–
INTERMATIC INCORPORATED
LIBERTYVILLE, ILLINOIS 60048
http://www.intermatic.com



















