Whirlpool Ariel Tub ARL-084P

Whirlpool Installation & User Manual
A R L – 084P
Serial Number:

No. | English | No. | English |
1 | Pneumatic on/off switch | 7 | Air Regulator |
2 | Waterfall | 8 | Multiple Direction Water Jet |
3 | Shower Wand | 9 | Air Jet |
4 | Function Selector | 10 | Drain |
5 | Hot/Cold Water Mixer & On/Off | 11 | Overflow Drain & Drain Knob |
6 | Headrest |


All measurements are given in Inches Designs and sizes can vary. We accept no liability for errors, manufacturing tolerance and product changes.
Thank you for purchasing this product. This manual is for use with ARL-084P Whirlpool Bathtub. This manual describes the general installation process, safety procedures, operating instructions, and basic maintenance. Please take your time to read this manual in its entirety before installation and before using this product. Please save this manual for future reference.
Important Precautions:
- Please check the labeling on each package to ensure it matches the item description you have ordered. Also visually inspect each package upon delivery to ensure there are no damages. Upon delivery, if there are any damages to the packaging or indications of damaged contents, it is required to immediately and thoroughly inspect the contents of that package. All damages must be noted on delivery receipt before accepting, signing or taking any responsibility for any shipment. Any damages should be photographed and must be reported. After extracting the product and parts from the packaging, check that all parts are complete and that there are no visible errors, missing parts or damages.
Warning!
- Never lift the whirlpool tub by, or apply heavy pressure to, the critical parts such as the jet plumbing, jets, electrical cables, hoses, and drain hose or similar components.
General Precautions: - Do not allow children use any bathtub without the supervision of an adult. This appliance is not intended for use by any persons (including children) with reduced physical, sensory or mental capabilities, or lack of experience and knowledge, unless they have been given supervision or adequate instructions concerning use of this appliance by a person responsible for their safety, and at their discretion.
- Be aware of the possibility that children can drown-and always have supervision.
- Be aware of the possibility that long hair can be sucked into the water suction port. This could lead to injuries.
- Exposure to extreme temperatures could potentially cause pregnancy complications. Consult your doctor before use.
- Avoid the use of drowsy medication, alcohol or drugs with the use of this product; such usage may lead to possible unconsciousness, heat stroke, drowning or increased risk of fatality.
- Persons using any medication should consult a doctor before using this product, as some medications can cause drowsiness, affect heart rate, blood pressure or blood circulation.
- Persons with a medical history of heart problems, blood circulation, high or low blood pressure, obesity, diabetes or similar health concerns should consult your doctor before using this product.
- Excessive use of this product can lead to heatstroke. Heatstroke occurs when the body loses its ability to regulate a normal temperature range.
- Elevated body temperatures can cause such symptoms as dizziness, drowsiness, unconsciousness and heatstroke.
Heatstroke can lead to the possibility of: a) The loss of awareness to normally perceived dangers, b) the loss of sound judgment for the need to stop using this product, c) the loss of sensitivity to dangerous temperatures, e) the loss of the ability to stand, balance, walk or exit this product, f) if pregnant, potential fetal damage, and/or g) unconsciousness. - Unconsciousness can lead to the possibility of drowning.
- An electrical protective device for an overload of power, short-circuit or incorrect voltage must be used in conjunction with this product. It must be properly functioning and regularly tested for proper functioning.
- Do not use any other electrical devices in or near this product. Very low voltage items without a power cord may be considered. Consult your licensed electrician.
- If any wires, cords or plumbing are damaged, it must be repaired by a qualified professional to avoid risk.
- Measurements, specifications, and local building codes should be reviewed by a licensed professional before purchase.
Installation Precautions: - It is recommended to install this product in such a way that the critical components are easily accessible, or with an access panel. This will ensure any potential repair cost will be kept at a minimum.
- Computerized systems and electrical components are already function tested from the factory, but should always be tested again before installation.
- Bathtubs are already leak tested from the factory, but should always be leak tested again after shipping.
- Before connecting the water supply lines, briefly flush the water lines to free any loose particles that may have built up throughout the years, or may have fallen in during new construction.
- Ensure electrical connections, water supply lines and waste connections are both compatible with this product, and their installation completed and ready for connection the before installation of this product. Review the specifications within this document, other documentation supplied, specifications listed on the packaging of this product, and technical specifications listed on the individual components. If there are any further questions contact your place of purchase. The (optional) drain hose size is 1.5-inches (40mm); the water inlet connections with (optional) hoses are ½-inch National Pipe Thread (NPT/FIP/MIP).
- Ensure the water supply lines for this product has its own dedicated water shutoff valves installed in an accessible location.
- Ensure there is enough space and access to connect, adjust or fasten the various supply lines, waste line and other components.
- Be sure to check each installation step with this manual to ensure the product is installed correctly. The product must be installed with all the feet or supportive legs touching the floor before any use. Leveling the product is an important procedure and must be completed on-site on the installation surface and final installation position.
- Always double-check all connections to ensure for proper installation, tension, and connection, including parts, plugs, hoses, nuts, screws, wires, etc.
- Only a professional electrician is recommended to work on the high voltage portions of installation and testing.
- Electrical service must meet the requirements listed on the components of the product, listed within this manual, or otherwise advised based on a thorough analysis of any special circumstances.
- An electrical protection device for short-circuits, power overloads or incorrect voltage must be installed and used in conjunction with this product.
- This product or any appliance used near this product must be used in conjunction with a Ground Fault Circuit Interrupter (“G.F.C.I.” or “G.F.I.”) or Residual Current Device (“R.C.D.”) with a trip current of not greater than 30mAor otherwise required in accordance to local codes.
- Do not cut or extend electrical wires or power-cord of the product without the approval of a professional electrician and warranty service representative.
- Appliances or components with ground or “earth” connections must be installed and used in conjunction with the product, and connected in accordance to local codes.
- The motor must be grounded with wire not less than 14awg (1.63mm-diameter) or otherwise required in accordance to local codes.
- Check local and national requirements before installing or purchasing this product.
- Local standards and codes must be followed and cannot be the responsibility of the supplier or its distributors.
- Other electrical components, except the remote control device (optional), should be kept, located or affixed away from the product, so they cannot fall into the bath, while in use.
- Do not disassemble the control panel or computer controller as it is not designed for disassembly. Defects, damages or shock caused by such removal cannot be the responsibility of the supplier or its distributors.
- “H” hot (red) and “C” cold (blue) water supply connections and their orientation are critical to proper function of this product.
- Ensure the (optional) “H” hot (red) and “C” cold (blue) water hoses will not touch the floor when this product is fully installed, as it may cause rusting and possibly weakening of those hoses.
- Harsh chemicals such as acetone, ammonia or gasoline can possibly dissolve or damage portions of this product do not use such chemicals for cleaning or installing this product.
- Do not stack anything on top of this product, use it for support, or apply any extreme pressure to critical areas that may cause misalignment or damage; take special care when moving this product.
After Installation: - Before supplying any power to the product, you should inspect the power cables to ensure the power leads are properly connected.
- After installation and before starting the product for the first time, you should inspection all the connections to ensure they are properly connected; including parts, plugs, hoses, nuts, screws, wires, etc.
- After you have fully installed the unit and made all the inspections to ensure the unit can function safely, fully clean the unit inside and out to ensure the unit is ready for usage, and also to check for any potential lose debris that may have fallen into any of the plumbing. After a thorough visual inspection, close the drain and fill the tub up to the overflow drain, submerging all the jets underwater. If any debris floats out, remove it.
- The whirlpool system will not run unless the water-level sensor is fully submerged underwater. The water-level sensor is placed above the water line of the water jets.
- Turn-on the whirlpool system and operate it for a minimum of 10-minutes. Then turn-off the whirlpool system and without draining it, allow it to sit for a minimum of 10-minutes. Now check all the plumbing, pipe works, hoses, joints, threads and any other connections for any leaks. If there are any adjustments made, restart this test and review all the connections again.
- You must ensure the product works as it normally would: immediately test all functions of the product to possibly find any errors. After testing, place the tub against the wall(s) and seal the wall joints with an acid-free caulking agent and then allow it to cure sufficiently before any further use.
Additional Precautions: - It is not generally recommended to use bath oils in whirlpool bathtubs, as the oil residue can stick to the side walls of the tub and plumbing. Clean the whirlpool system after any such uses. 48. It is not recommended to use coarse grain bath salts with the whirlpool function, as it may enter the water pump and damage or cause additional wear onto its internal components.









Faucet Operation:

- The middle faucet is functional faucet. The faucet is closed when it keeps in the middle position. When you rotate the faucet 90 to the left, the water will come out from the hand shower; and when you rotate the faucet 90 to the right, the water will come out from the waterfall.
- The water temperature is controlled by the hot water faucet H and cold water faucet C. If you rotate the H faucet by counterclockwise, then the temperature will goes higher .And it’s in a similar way for faucet C.
Switch on/off:

Press the on/off button at the first time to operate the bubble function; and press it by the second time to turn off the bubble function .
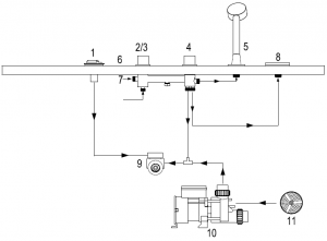
Flowchart
Air Bubble Regulator Valve:
This valve is used to control the amount of air bubbles in the Water Jet Feature.


No. | English | No. | English |
1 | Air Regulator | 7 | Hot Water Supply Inlet |
2/3 | Hot/Cold Water Mixer & On/Off Selector | 8 | Waterfall |
4 | Function Selector | 9 | Water Jet |
5 | Shower Wand | 10 | Water Pump |
6 | Cold Water Supply Inlet | 11 | Water Suction |
Maintenance:
Recommended cleaning the whirlpool features monthly with a whirlpool cleaning solution from your local hardware store. Follow the instructions of the whirlpool cleaning solution. If not cleaned regularly you may notice black flakes in the bath if this happens you should clean the whirlpool system.
Consider cleaning the whirlpool system with whirlpool cleaning solution repeatedly until the black flakes disappear. Soap scum, hair, dead skin, skin care products, oil, grease and/or bacteria can contaminate your whirlpool system, it is important to clean regularly.
Consider cleaning the whirlpool system using a cup of chlorine bleach (sodium hypochlorite) and the minimum amount of warm or hot water to activate the (water-level sensor) whirlpool system, in between regular cleanings with whirlpool cleaning solution. Thoroughly flush and rinse the bathtub and whirlpool system before use. (This is not meant as a substitute for whirlpool cleaning solution)
The drain can be clogged by hair or soap scum and should be cleaned regularly. Cleaning schedule is based off usage conditions; monitor time frame for any slowing of drainage, and then set cleaning schedule.
Poor maintenance, infrequent, or irregular cleaning can cause damage to the faucets or jets. Cleaning schedule is based off usage conditions; generally, more frequent light cleanings are better than less frequent, heavy cleanings.
When cleaning the chrome parts, do not use cleaning compounds or instruments with abrasives or harsh chemicals. Do not try to remove stains with hard objects, such as blades or screwdrivers.
When cleaning the acrylic surfaces of the bathtub, use a soft sponge and a detergent without ammonia, acetone or other harsh chemicals, to prevent surfaces from getting dulled or damaged.
Dulled surfaces can be refinished with an acrylic polishing compound (follow instructions of polishing compound); first spot test in a non-visible surface area.
Warning: The use of cleaning materials other than those recommended by the manufacturer can result in damage to the bathtub, whirlpool apparatus, or other hardware. Spot test in non-visible area.
Warning: Any service, adjustment or repair is only recommended by an experienced professional. Only consider a licensed professional for all installation, servicing or repair work.
Technical Parameters
Rated Voltage Rated Current Normal Rated Power Recommended Power Service Water Pipe Dimension Drainage Pipe Dimension Max. Hot Water Temperature Recommended Hot Water Operating Pressure Recommended Operating Pressure
Test standard:
| Rated Voltage | AC110-120V 60Hz |
| Rated Current | 10.2A |
| Normal Rated Power | 1125W |
| Recommended Power Service | GFCI-Protected 20A |
| Water Pipe Dimension | ½” |
| Drainage Pipe Dimension | 1 1/2″ (40mm) |
| Max. Hot Water Temperature | 176°F (80°C) |
| Recommended Hot Water | 149°F (65°C) |
| Operating Pressure | Max 116 PSI (8 bar / 0.8 mPa) |
| Recommended Operating Pressure | 14.5-72.5 PSI (1-5 bar / 0.1-0.5mPa) |

![]()
Do not trash. Keep these instructions for future references.
Some features explained within this guide maybe optional and/or may not be applicable for your specific model.


















