PW1547032LW1/PW1547032RW1-Platinum 59-Inch Two Wall Acrylic Whirlpool Tub
Installation Guide
Serial number: ——————

| No. | English | No. | English |
| 1 | Pneumatic Switch | 7 | Water Jet |
| 2 | Air Regulator | 8 | Multiple Direction Water Jet |
| 3 | Thermostatic Selector | 9 | Water Suction |
| 4 | Function Selector | 10 | Drain |
| 5 | Shower Wand | 11 | Overflow Drain & Drain Knob |
| 6 | Headrest |
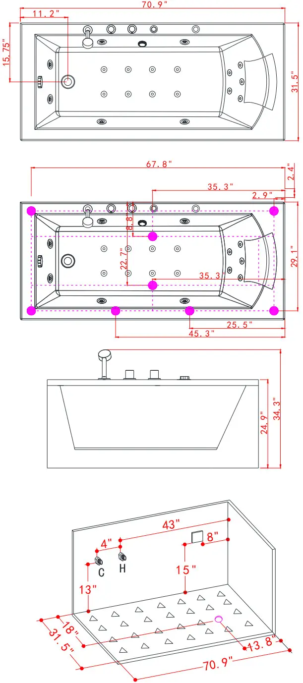
Actual Drain-Cutout Location
![]() | ![]() |
* Optional: Flex-Drain Drain Location
All measurements are given in Inches Designs and sizes can vary. We accept no liability for errors, manufacturing tolerance and product changes.
![]() | ![]() |
![]() | ![]() |
Technical Parameters
| Rated Voltage | AC110-120V 60Hz |
| Rated Current | 9A |
| Normal Rated Power | 1100W |
| Recommended Power Service | GFCI-Protected 30A |
| Water Pipe Dimension | v211 |
| Drainage Pipe Dimension | 1 1/2″ (40mm) |
| Max. Hot Water Temperature | 176°F (80°C) |
| Recommended Hot Water | 149°F (65°C) |
| Operating Pressure | Max 116 PSI (8 bar / 0.8 mPa) |
| Recommended Operating Pressure | 14.5-72.5 PSI (1-5 bar / 0.1-0.5mPa) |
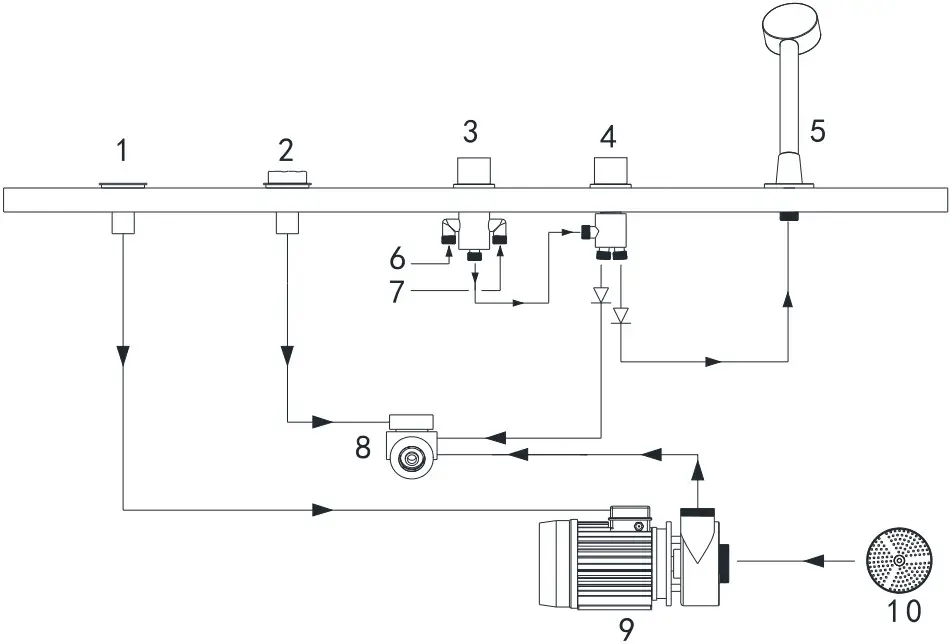
Flowchart

| No. | English | No. | English |
| 1 | Pneumatic Switch | 6 | Cold Water Supply Inlet |
| 2 | Air Regulator | 7 | Hot Water Supply Inlet |
| 3 | Thermostatic Selector | 8 | Water Jet |
| 4 | Function Selector | 9 | Water Pump |
| 5 | Shower Wand | 10 | Water Suction |

























