Signature Hardware 440629 Dulancey 4 Light Pendant Chandelier

BEFORE YOU BEGIN
We recommend consulting a professional if you are unfamiliar with installing electric fixtures. Signature Hardware accepts no liability for any damage to the faucet, plumbing, sink, or countertop, or for personal injury during installation.
Observe all local plumbing and building codes. Unpack and inspect the product for shipping damage. If any damage is found, contact our Customer Relations team via live chat at www.signaturehardware. com or by emailing [email protected].
GETTING STARTED
Ensure that you have gathered all the required materials that are needed for the installation.
ADDITIONAL QUESTIONS?
Still, need help? Check out our Help Center at www.signaturehardware.com for product and warranty information, or contact us through live chat or by emailing [email protected].
FOR YOUR SAFETY
WARNING:
Be sure the electricity to the wires you are working on is shut off, either the fuse is removed or the circuit breaker is shut off. You don’t need special tools to install this fixture. Be sure to follow the steps in the order given. Under no circumstances should a fixture be hung on house electrical wires, nor should a swag-type fixture be installed on a ceiling that contains a radiant-type heating system. Read instructions carefully, if you are unclear as to how to proceed, consult a qualified electrician.
TOOLS AND MATERIALS

INSTALLATION
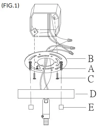
- Thread the mounting screws (A) into the matching holes in the circular strap (B).

- Secure the circular strap (B) to the outlet box with outlet box screws (C).
- Connect the white wire from the fixture to the white wire from the outlet box and the black wire from the fixture to the black wire from the outlet box. Cover the two wire connections using the two provided wire connectors. Wrap the two wire connections with electrical tape for a more secure connection. Connect the copper ground wires from the fixture and from the outlet box to the ground screw on the circular strap.
Note: If you have electrical questions consult your local electrical code for approved grounding methods. - After the wires are connected, tuck them carefully inside the outlet box. Raise the front plate (D) allowing for the mounting screws (A) to protrude through the holes on the front plate (D), and secure with the ball nuts (E).

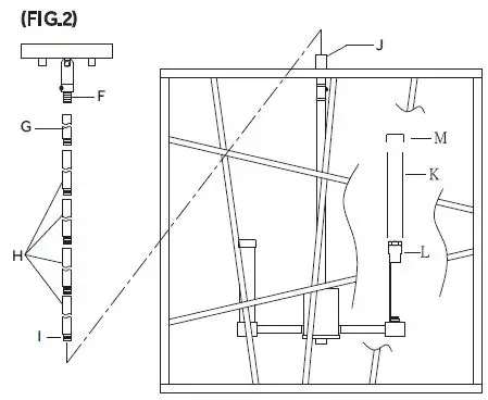
- Assemble the tube (H) and (G) & (I) together, then thread the bottom end of the tube (I) into the coupling (J) tightly, then thread the top end of the tube (G) onto the nipple (F) tightly.
- Put the candle sleeve (K) and sleeve cover (M) over the socket (L) in order, then install light bulbs (not provided). Please do not exceed the maximum wattage capacity recommended on the candle sleeve (K). We recommend the use of a clear light bulb.
Contact Information
1.855.715.1800
signaturehardware.com.


















