phocos 230-100 MPPTsolid Charger Controller Instruction Manual
Important Safety Instructions
WARNING
Installation should be performed by qualified personnel only. MPPTsolid has no userserviceable parts. To reduce the risk of electric shock, do not perform any installation (or servicing) other than specified in these instructions.
- Do not expose the MPPTsolid charge controller to rain, snow, spray, or dust. To prevent overheating, do not obstruct any ventilation openings.
- Use of an attachment not recommended or sold by Phocos may result in a risk of fire, electric shock, or injury to persons.
- Do not disassemble the MPPTsolid charge controller; consult the manufacturer first, or take it to a qualified serviceman when service or repair is required.
Incorrect reassembly may result in a risk of electric shock or fire. - To reduce risk of electric shock, disconnect from solar panel before attempting any maintenance or cleaning.
- Never place the MPPTsolid charge controller directly above a battery; gases from battery will corrode and damage it.
- Never allow battery acid to drip on the MPPTsolid charge controller, especially when checking the specific gravity of the battery or filling battery with distilled water.
Always isolate the MPPTsolid charge controller. Connect and disconnect the DC output connections only after disconnecting the solar panels from the MPPT solid charge controller.
Overview of MPPTsolid MPPT Charge Controller
Introduction
Congratulations on choosing a photovoltaic electric system. When well-planned and properly installed it will give you decades of trouble free service. The Phocos MPPTsolid 230/100 Charge Controller is a key component of your system. MPPTsolid accepts a wide range of input voltages from 30-230 volts, and support a similarly wide range of battery voltages from 24 to 72 Volts nominal (battery voltage must be equal to or less than solar panel voltage).
MPPTsolid features a patented MPPT (Maximum Power Point Tracking) algorithm allowing you to maximize the energy harvested from your solar array. MPPTsolid allows you to use a higher voltage PV array than the batteries you are charging as it is designed to step down the array voltage, allowing greater flexibility in the choice of array for your system.
A PC communications port and software allow viewing and programming MPPTsolid parameters as well as data logging. A battery temperature sensor (supplied) allows programmable compensation of the charging voltage.
Chargeable battery types
This charger is designed to charge both types of lead acid batteries (starting and deep cycle) and all versions: wet cell (flooded), gel cell and Absorbed Glass Mat (AGM).
See manufacturers’ recommendations for bulk absorption and float voltage levels. Other battery types such as Lithium Ion will be support in the future by firmware update.
How the charger operates
The MPPTsolid is a smart DC to DC battery charger that has been optimized to harvest maximum energy from the PV (Photo-Voltaic) array in battery based solar electric systems by using a maximum power point tracking (MPPT) strategy. The controller’s secondary objective is to ensure that the batteries receive a full charge without becoming overcharged. This is accomplished through a three stage charging process.
The result is that you can safely maintain your energy storage system while getting the maximum benefit of your solar array.
The DC to DC converter feature of the MPPTsolid allows for a wide variety of PV array inputs and battery voltage configurations. Batteries may be configured from 24 to 72 volts nominal. PV arrays may be wired up to maximum allowable Voc (Open Circuit Voltage) of 230 volts at worse case conditions.
For example, a Mitsubishi PV-MLE270HD module has an Open Circuit Voltage of 38.4 volts at 25C, but at -25C, the Voc rises to 120% or 46.08 volts. Dividing 230 by 46.08 gives a result of 5, so 5 of these panels can be wired in Series for 1350 watts per string, and then as many strings in parallel as will produce the maximum output power at the nominal battery voltage as shown in the table below.
The charging of batteries from a solar array is enhanced by the use of a patented MPPT control design as explained in detail below.
MPPT Maximum Power Point Tracking
MPPT enables the MPPTsolid Charge Controller to utilize the maximum power available from the PV array. A solar panel has a variable power output. Power is measured in watts and is the product of the voltage multiplied by the current. The MPPTsolid constantly searches for this maximum power point, using a patented MPPT algorithm, to ensure that you get the maximum power output for charging the batteries.
Maximum Power Point Tracker

MPPT Power from the PV array (green) and the Current vs. Voltage (blue)
Charge Controller
A maximum power point tracker (or MPPT) is a high efficiency DC to DC converter which functions as an optimal electrical load for a solar array, and converts the power to a voltage and current level which is optimum for charging batteries.
The benefits of MPPT regulators are greatest during cold weather, on cloudy or hazy days or when the battery is deeply discharged. The MPPTsolid Charge Controller also monitors battery voltage and temperature to prevent overcharging.
The Charge Controller can accept PV open cell voltages (Voc) up to 230 volts for charging lead acid batteries. MPPTsolid produces up to 100 amps of charging current for battery voltages between 24 and 72 volts.
When charging, the MPPTsolid regulates the voltage and output current to the battery, based on the amount of power available from the PV array, the state of charge of the battery and the temperature of the battery bank.
Charging Lead Acid Batteries
For standard flooded lead acid batteries, vent caps should always be kept in place and tight during both charging and discharging.
It is very important to monitor the water level in the batteries (if possible). Refill the batteries as necessary using distilled water. If the batteries need water frequently, recheck the charging voltage settings of the MPPTsolid and reduce if necessary.
Three Stage Battery Charging
The three stage charging process results in a more efficient charging of the batteries.
The three stages of charging are the bulk stage, the absorption stage and the float stage. Your MPPTsolid Charge Controller will automatically move from one charging stage to the next as your batteries require.
Bulk Stage
In this first stage of the charging, the battery is allowed to have a large constant draw on the available current. MPPTsolid uses MPPT technology to provide the maximum available power in this stage, to shorten the charge time or increase the amount of stored energy.
Absorption Stage
The absorption stage commences when the charging voltage reaches the preset absorption voltage. MPPTsolid continues to charge at this constant elevated voltage until the current reaches the switch to float preset. Absorption charging applies peak charge until battery is fully charged. This stage is critical to using the storage capacity of the batteries to their full potential.
Float Stage
The Float stage is a maintenance charge at a preset constant voltage. It can be maintained indefinitely to ensure the batteries maintain the maximum state of charge by allowing the current to vary.

Charge Timer
The charge timer starts once battery voltage goes above the float voltage by a certain amount. The timer will run for a pre-determined amount of time based on the battery specifications provided by the manufacturer, but is adjustable in the PowerWizard software. When the timer expires, the charger will switch into float mode. A new timer will start and the charger will not return to bulk or absorption mode for a predetermined amount of time to allow the battery to recover.
Battery Maintenance
Maintain the batteries in your battery storage system according to the battery manufacturer’s recommendations. In particular, monitor the water level in the batteries as described on the previous page.
Battery Temperature Sensor
A Battery Temperature Sensor (BTS) is included with the MPPTsolid charge controller. Battery temperature affects the ideal charging voltage, the cooler the battery temperature the higher the ideal charging voltage. MPPTsolid, with a properly installed BTS, will protect the batteries from overcharging by adjusting the charging voltage to match the battery temperature. One of the setup values in PowerWizard is the Battery Temperature Coefficient. This value should be supplied by the battery manufacturer and used during setup. There is no need to use a minus sign when entering the coefficient. The coefficient is the value recommended by the manufacturer times the number of batteries in series.
The BTS should be firmly attached to a battery in a central part of the pack by double sided tape, either on the side or on the top of the battery.
System Calculations
Loads
The first step in planning a PV system is to determine the load. What is the power intended for? How much power will be required and for how long? There are many resources available in print and on-line to help determine average and peak load requirements. It is recommended that you use these resources to calculate anticipated load requirements and that your system planner design for load growth.
Experience has shown that loads rarely remain static over time, and most often increase. Once the load characteristics are determined your system planner can make decisions about the appropriate battery voltage, and hence the number and arrangement of batteries that can meet the anticipated demands. This leads to the charging current and voltage needed from the MPPTsolid to charge the batteries.
Maximum Voc
The maximum operating input voltage of the MPPTsolid is 230 volts. Above this voltage the unit will shut down to avoid damage. The absolute maximum input voltage the controller can accept without damage is 250 volts. In practice the actual voltage should never reach the Voc point as MPPTsolid will be loading the array down to the Maximum Power Point at all times unless the batteries reach full charge and will not accept any more charge current.
Conversion Efficiency
The conversion efficiency of the MPPTsolid in the proposed configuration must be considered. The table below shows the minimum Vmp and recommended Vmp (Maximum Power Voltage) for each battery voltage as well as the recommended marray power. Also keep in mind not to exceed the maximum open circuit voltage in any array configuration.
| Nominal Battery Volts | Battery Float Volts | Battery Absorption Volts | Maximum Output Power | Recommended Array Power (Watts) | Minimum Maximum Power Voltage | Recommended Maximum Power Voltage | Maximum Open Circuit Voltage |
| (Watts) | (Vmp) | (Vmp) | (Voc) | ||||
| 24 | 27.2 | 28.8 | 2880 | 3000 | 30 Volts | 55 Volts | 230 Volts |
| 28 | 31.7 | 33.6 | 3360 | 3500 | 35 Volts | 62 Volts | 230 Volts |
| 36 | 40.8 | 43.2 | 4320 | 4500 | 45 Volts | 80 Volts | 230 Volts |
| 48 | 54.4 | 57.6 | 5760 | 6000 | 60 Volts | 106 Volts | 230 Volts |
| 60 | 68.0 | 72.0 | 7200 | 7500 | 75 Volts | 133 Volts | 230 Volts |
| 72 | 81.6 | 86.4 | 8640 | 9000 | 90 Volts | 160 Volts | 230 Volts |
Every brand of panel is different, so ensure you are familiar with your panels’ specifications. Also be aware that weather and temperature will affect the Voc of your panels. A higher temperature will produce a lower Voc and lower Vmp voltage, while lower temperatures will produce a higher Voc and higher Vmp voltage. To determine the corrected Voc, consult the data sheet for your solar panel and allow for the lowest possible temperature the solar panel will be exposed to. If the data sheet is not available, use the table below to make the calculation using the formula Voc Expected = Voc @ 25C * Correction Factor.
| Temperature | Correction Factor |
| 25° to 10° C (77° to 50° F) | 1.06 |
| 9° to 0° C (49° to 32° F) | 1.10 |
| -1° to -10° C (31° to 14° F) | 1.13 |
| -11° to -20° C (13° to -4° F) | 1.17 |
| -21° to -40° C (-5° to -40° F) | 1.25 |
Wire Sizing
The distance between the PV array and the controller will be a factor in choosing an optimum string voltage for the MPPTsolid. The higher the input voltage the smaller the wire can be for any given amount of power. Be sure to consult your local electrical code specifications regarding wire sizing.
MPPTsolid is designed to deliver a maximum of 100 amps to the output. The wire size chosen must be rated for this much current over the length of the run between MPPTsolid and the batteries. The NEC requires that the output conductors have an amperage capacity of 1.25 X the rated current after all temperature and conduit fill corrections are calculated. For the MPPTsolid this means conductors must be rated to carry 125 amps. The minimum cable necessary to carry the full rated output of the MPPTsolid is #2 AWG, corrections for cable run length, conduit fill and temperature could result in a larger wire size being necessary, to a maximum of #1/0 AWG.
The maximum input current is a function of the array Short Circuit Current (Isc), assuming a failure of MPPTsolid that creates a short circuit on the input. In this case, multiply the Isc rating of one panel times the number of panels in PARALLEL to determine the maximum short circuit current.
PV input circuits require a double correction factor for over current so PV Isc (short circuit current) must be multiplied by 1.56. All PV input wires must be sized accordingly. This apparent over sizing is done to reflect the fact that solar modules can, and often do, produce more than their rated power in conditions of heightened insolation and cold temperatures. Any PV input disconnect or circuit breaker must also be rated at 1.56 of array Isc.
Coming back to our example solar panel, the Mitsubishi PV-MLE270HD, the Isc for one panel is 9.18 amps, and from the charts we can see that there is almost no temperature coefficient. Assuming 5 panels in series for 1350 watts per string, and 7 strings for a maximum power of 9450 watts, the maximum short circuit current would be 9.18 x 7 or 64.26 amps. Multiplying this times the safety factor of 1.56 gives a maximum of 100 amps, so likely in this case, the same wire could be used for the input wiring as the output wiring assuming similar run lengths.
Circuit Protection
All electrical circuits require protection from over current and short circuits and the MPPTsolid is no exception. The MPPTsolid should be installed with circuit breakers or fused disconnects on the input and output. The MPPTsolid has a maximum current limit of 100 amps on the output and it is designed and listed to run at its maximum rating continuously. A breaker or fuse rated at 100 amps carrying current at the highest expected ambient temperature should be wired between MPPTsolid and the battery bank.
The maximum input current needs to be calculated. The best way is to divide the array power by the array maximum power voltage. In our example above, we have an array power of 9450 watts and a maximum power voltage of 160 volts giving a maximum input current of 60 amps, only slightly less than the short circuit current. So the minimum circuit breaker or fuse rating is 60 amps at the highest expected ambient temperature.
If a disconnect is fitted on either the input or the output of the MPPTsolid, it should have a minimum current rating equal to the maximum input or output current as calculated above.
Circuit would require a 160 amp input breaker. Of course the 1.56 multiplier has to be applied specifically to your installation and if your anticipated Isc is lower then the wiring and disconnects will reflect this.
Lightning Protection
Like any other electronic device the MPPTsolid may be damaged during lightning storms if left unprotected. We strongly recommend that external lightning protection devices be included as part of the circuit protection equipment.
Installation
The box should contain:
- 1 MPPTsolid 230/100
- 1 Battery Temperature Sensor
- 1 Serial Connection Cable
- 4 90 degree 2 Hole Lugs on 0.625 inch centers for AWG4 wire
- This Manual
- Warranty Card
If anything is missing, contact your dealer.
Mounting
The MPPTsolid Unit must be installed in a weather proof enclosure or inside the building housing the batteries. It is preferable to mount it in a room adjacent to the battery storage for safety reasons. The MPPTsolid should be mounted vertically with the input/output wiring entering the bottom of the unit. A diagram of the mounting screw positions is provided below. The reason for this mounting position is to allow the temperature activated fans to most effectively cool the unit. The fans will exhaust hot air at the top of the unit. Natural convection within the unit will aid this air movement and help with the cooling.
If MPPTsolid is mounted vertically, as recommended, the horizontal distance between the screws is 8” and the vertical distance is 9”.
Use either 4 ¼”x1.5” machine screws or 4 #10 X 3” flat head wood screws if it will be mounted on plywood or into wall studs.

System Wiring Diagram for MPPTsolid
WARNING
This charger controller must be used with an external GFDI device as required by the Article 690 of the National Electrical Code (NEC) for the installation location.
The simplified single-line drawing below shows the appropriate location and maximum amper- age capacity rating of circuit breakers. Please note that all circuit protection devices must be installed inside UL/CSA recognized enclosures. Follow all applicable electrical codes. Input and Output connections and polarities are clearly marked on the MPPTSolid front panel.

Wiring methods shall be in accordance with NEC, ANSI/NFPA 70.
Only use circuit protection equipment which is DC rated for the appropriate amperage capacity and DC voltage.
Wiring Your System
Wiring to and from the MPPTsolid must be sized and installed in accordance with your local electrical code. Installation should be performed by a qualified electrician.
Connections to and from the MPPTsolid require sealed copped ring terminal lugs with 5/16” hole.
Charge Controller Configuration and Software Setup
A standard unit comes pre configured with the following default settings:
- Standard (nominal battery voltage): 24.0 V
- Bulk absorption voltage: 28.8 V
- Float voltage setting: 27.2 V
- Battery Amp-Hours rating (AH): 100 AH
However the MPPTsolid is user programmable for (24 – 72) V nominal batteries. If the settings need to be changed or the unit requires a fresh installation, the unit must first be connected to a computer using the RS232 serial port. If your computer or laptop does not have a serial port, a usb to serial converter will be required. They are readily available at any computer store.
The computer must have the MPPTsolid Power Wizard software installed. The Software for MPPTsolid consists of two files. The first is a Windows only executable named MPPTsolid.exe. The second file is a configuration file that contains all the setup values for the MPPTsolid unit. The configuration values can be changed by the software.
Wherever the two files are located a Data folder and a Logs folder are created to hold the data logging files and logging file respectively. The folder structure should look like this:
C:\Program Files\ASW\MPPTsolid Data Logs MPPTsolid.exe MPPTsolid_Configuration.pty
The first time you start the Software, you need to have the serial cable connected to a powered MPPTsolid. The program will test all the serial ports on your PC to find the one connected to the MPPTsolid
Opening screen:

Opening screen with data logging enabled:

Help > About

Configuration Setup
The first time you use your MPPTsolid you will have to configure its settings; from the menu select Configure -> MPPTsolid

Click the MPPTsolid Configuration button in the (MPPTsolid Configuration) screen so you can read the initial values from your MPPTsolid unit.

To edit the configuration values, click the edit button.

Correct any values that are wrong for your installation and click OK button.

You must now click (Set MPPTsolid) to program all of the values into your system. You should then click MPPTsolid Configuration to confirm that the MPPTsolid is setup with your values.

Click the (Exit) to return to the main screen
Data Logging
Once the serial port and the configuration values have been set, the data logging can be started.
To configure your data logging setup, click on Configure Data Logger.

To change the logging frequency, select a rate from the control. Click the Reset sampling rate button to update the configuration and click Exit to return to the main screen. The next session of logging will be at this new sampling rate.
The data logging file is saved in the Data folder. The file is formatted in the CSV format for easy import into Excel.
The data format in the CSV file is as follows:
Unit ID, Date, Time, Vin, Iin, Vout, Iout, Pin, Pout
MPPTsolid Charge Controller Specifications
Electrical Input Specifications | |
| PV Open Circuit Voltage (Voc) Max | 230V |
| Input Range | 30-230V |
| Input Amps (max) | 100A |
| Input Protection | No Internal Fuse, recommended 100A in-line circuit breaker or fuse. |
Electrical Output Specifications | |
| Output Range | 24 to 72 V nominal battery voltage (must be less than nominal PV voltage) 22 to 90 VDC Actual set by Power Wizard software |
| Output Current (Max) | 100A |
| Standby Power Consumption | 3W Max |
| Efficiency | 97% |
| Charge Type | 3 Stage, Bulk, Absorption, Float |
| Supported Battery Chemistries | Lead Acid (PbA) |
| Output Voltage Regulation | User Programmable 24-100V |
| Battery Temperature Compensation | User Programmable (mV/ °C) |
| MPPT Enabled | Yes, Targets 5% of max power point |
| Status Display | RS232- PC Interface |
| Output Protection | No Internal Output Fuse, recommended 100A in-line output circuit breaker or fuse |
| Data Logging | PC Data logging software included |
| Operating Temperature Range | -25° to +55°C with derating over +55°C |
Mechanical Specifications | |
| Length | 19.3 in / 490 mm |
| Width | 8.3 in/ 211 mm |
| Height | 3.9 in/ 99 mm |
| Clearance | 1 inch (25 mm) all around |
| Material | Anodized Marine Grade Aluminum |
| Finish | Orange Anodized |
| Fastenings | All 18-8 Stainless Steel |
| Weight | 20.4 lb / 9.25 kg |
| Connections | Terminals for 1/4 inch diameter two hole lugs on 0.625 inch centers |
| Warranty | 3 years |
| Regulatory Approvals | CSA 107.1 and UL1741 certified, CE Certification pending, RoHS compliant |
| US Patented No. | 6,690,590 |
Troubleshooting
If any problems are encountered this section should be used as a reference.
OPERATIONAL PROBLEMS
Q: MPPTsolid is not producing the expected output power.
A: Are the PV panels shaded by clouds or structures? Clouds, shade and dirty panels can cause lower than expected performance from the solar arrays.
Is the current limit on either the input or output set lower than needed for the efficient operation of the charger?
Are the batteries fully charged? If so the MPPTsolid will only trickle charge the batteries to maintain a full charge. In this instance the charger cannot use the maximum output from the PV array.
Q: Batteries are hot, and/or out gassing.
A: Check that the BTS (battery temperature sensor) is installed and connected to the batteries properly; if this is the case, there may be a defect in the charger unit itself. Contact Phocos for assistance.
A: Check that battery charging parameters are correct using Power Wizard software.
Q: Cables from the charger to the batteries are hot.
A: The size (AWG) of the cables may be under sized for the current. Check that the size or distance of the wire run is within the guidelines of the NEC.
Make sure the breakers/fuses are the correct sizing to handle the current. Check for a short in the PV wiring if it is the PV breaker.
Q: Erratic behavior of the charger unit.
A: Check that the PV arrays are balanced for voltage, ie. That all the arrays are wired to supply the charger with the same voltage. Arrays of different voltages are not tolerated by the charger. One array may have a damaged panel causing the voltage to be lower than it should be.
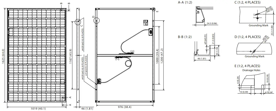
Sample Solar Panel Data Sheet
Specification Sheet
| Manufacturer | MITSUBISHI ELECTRIC |
| Model name | PV-MLE270HD |
| Cell type | Monocrystalline Silicon, 78mm x 156 mm |
| Number of cells | 120 cells |
| Maximum power rating (Pmax) | 270W |
| Warranted minimum Pmax | 270.0W |
| PV USA test condition rating (PTC) | 241.3Wp |
| Open circuit voltage (Voc) | 38.4V |
| Short circuit current (Isc) | 9.18A |
| Maximum power voltage (Vmp) | 31.9V |
| Maximum power current (Imp) | 8.48A |
| Module efficiency | 16.3% |
| Aperture efficiency | 17.6% |
| Tolerance of maximum power rating | -0/+5% |
| Static load test passed | 5,400 Pa |
| Number of bus bars per cell | 4 Bus bars |
| Normal operating cell temperature (NOCT) | 46.5ºC |
| Maximum system voltage, DC | 600V & 1000V (UL), 1000V (IEC) |
| Fuse rating | 15A |
| Dimensions | 64.0 x 40.1 x 1.81 inch (1625 x 1019 x 46 mm) |
| Weight | 44 lbs (20kg) |
| Number of modules per pallet | 22 |
| Number of modules per container (40 ft. container) | 616 |
| Output terminal | (+) 800mm (-) 1250mm with SMK (PV-03) connector |
| Certifications | UL 1703, IEC 61215 2nd Edition, IEC 61730 |
| Fire rating | Type 2, 5 & 8 |
Drawings and Dimensions Unit: mm (inch)

Electrical Characteristics




















