POTTER IPA-100 Fire Alarm Control Panel

Features
- 127 addresses available on this analog addressable system
- Additional system capacity achieved via multi-point SLC modules
- 99 software zones
- NFPA 72 Compliant Smoke Sensitivity Test Built-In
- System Operates as Class A or Class B for SLC, P-Link and NACs
- 5 Amp Power Supply, Expandable to 310 amps
- 2 NACS, Regulated, Rated at 3 Amps each, expandable to 188
- 2 Input/ Output (I/O) Circuits for system flexibility rated at 1 Amp each, ideal for manual release and abort
- Strobe Synchronization and System Wide Sync for Potter/AMSECO®, Gentex®, Cooper Wheelock® and System Sensor® strobes
- Dedicated Alarm, Supervisory and Trouble Relays
- 4,000 Event History Buffer
- Cabinet will house up to 18 AH batteries
- Optional two line DACT with UD-2000 that can report General, Zone or Point Information
- Built in IP Communicator
- Ethernet Port for Programming and Network Connectivity
- E-Mail System Status, Reports and Event Information
- Product includes 5 year warranty
- UUKL Listed for Smoke Control
Description
The IPA-100 is an analog/addressable releasing fire alarm system with a total system capacity of 127 addresses. Additional capacity on the system is achieved using multi-point SLC modules. The control panel utilizes the exclusive Potter protocol that includes a complete line of sensors and modules. Each SLC may be comprised of any combination of smoke sensor, heat detectors or modules and allows for a total of 50 ohms of impedance and may use any wire compliant with the National Electrical Code (NEC).
The IPA-100 has a 5 Amp power supply with two Notification Appliance Circuits (NACs) and two Input/output (I/O) circuits. The NACs are rated at 3 Amps each and the I/So are rated at 1 Amp each. Each output is regulated and power limited. In addition, each output is uniquely programmable and may be configured for steady signal, strobe synchronization, constant power, door holder power, or releasing. The strobe synchronization includes Potter/AMSECO, Gentex, System Sensor and Cooper/Wheelock and with the exclusive Quadra sync each output may have a unique brand and all strobes will flash together. The I/Os are designed for inputs such as manual release stations and abort switches that will not require polling and react nearly instantaneously.
The IPA-100 is listed for releasing of fire suppression systems. The software allows cross zones, counting zones, and timers for suppression. The system is capable of multiple release outputs across multiple hazards. In addition, the PSN-1000 may be used to extend releasing capability. The NACs may be expanded using the PSN-1000 series intelligent power supplies. Each PSN-1000 adds another 10 Amps of power, 2 additional input circuits and the IPA-100 will support up to 31 power supplies. The system will synchronize the strobes system wide. In addition, the PSN1000E has space to allow the installation of up to six loop expansion cards. The cards mount on a stacker bracket that allows access to all SLC circuit connections.
Technical Specifications
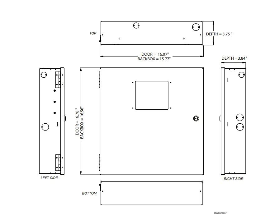
| Dimensions | 16”W x 17”H x 3 7/8”D |
| AC Mains | 3.0 Amps @ 120 VAC 50/60 HZ 2.0 Amps @ 240 VAC 50/60 HZ |
| Enclosure | 16 gauge cold rolled steel with removable locked door with Lexan viewing window |
| Battery | Standby Current-130 mA Alarm Current-200 mA
|
| Temperature and Humidity Range | 32° to 120° (0°C to 49°C) with a maximum humidity of 93% non-condensing. |
| Standards |
|
SLC Loop Accessories
The control panel may be connected with up to 127 addressable devices or modules in any combination. The SLC is not restricted by any special wire requirements and may be wired with any wire that complies with the NEC.
SLC Loop Devices
| Device | Description |
| PAD200-PD | Analog Photoelectric Smoke Detector is a smoke detector with a listed obscuration of 1.0 to 3.7%/foot. UL 268 7th Edition. |
| PAD200-PHD | Combination Analog Photoelectric Smoke/Heat Detector – a smoke detector with a listed obscuration of 1.0 to 3.5%/foot obscuration and a fixed temperature range of 135° F to 185° F heat detector. Smoke detection compliant with UL 268 7th Edition. |
| PAD200-PCD | Combination Photoelectric Smoke/Carbon Monoxide Detector. Smoke detection compliant with UL 268 7th Edition. Carbon Monoxide detection compliant with UL 2075. |
| PAD200-PCHD | Combination Photoelectric Smoke/Heat/Carbon Monoxide Detector. Smoke detection compliant with UL 268 7th Edition. Heat detection with a fixed temperature range of 135° to 185° F and is UL 268 and UL 521 7th Edition compliant. Carbon Monoxide detection compliant with UL 2075. |
| PAD100-HD | Analog Fixed Temperature (135° – 185°F) or Rate-of-Rise Heat Detector (software selectable). |
| PAD200-DUCTR | Addressable Duct Smoke Detector with Form C Relay rate at 10Amps @ 250/120VAC or 8 Amps at 30VDC. |
| PAD200-DUCT | Addressable Duct Smoke Detector. |
| PAD100-6B | 6” round base that is mounted to an electrical box and wired for connection of one of the above sensors. |
| PAD100-4B | 4” round base that may be mounted to an electrical box and wired for connection to the above sensors. |
| PAD100-IB | Isolator base that interrupts a short in a SLC and prevents the short from affecting protected devices on the loop. |
| PAD100-RB | Addressable Relay Base that contains one relay controlled by the SLC. Relay is rated at rated at 2 amps at 30 VDC or 0.5A at 125VAC. |
| PAD100-SB | Addressable Sounder Base that contains an addressable sounder module that may be configured for local, group and all call. |
| PAD100-CD | Addressable CO gas detector. |
| PAD100-DD | Addressable photoelectric smoke detector for use in DUCT/DUCTR enclosure. |
| PAD100-LFSB | Addressable Low Frequency Sounder Base that contains an addressable sounder module that may be configured for local, group and all call. The LFSB complies with the Low Frequency Signal Requirements (520 Hz) |
| PAD100-SPKB | Speaker base is a wall or ceiling mount speaker capable of 25 or 70.7 VRMS and is field selectable from 1/8W to 4W. |
Modules
| Device | Description |
| PAD100-MIM | Micro Input Module provides a small foot print contact module for mounting inside an enclosure. |
| PAD100-PSSA | Single Action Addressable Pull Station. |
| PAD100-PSDA | Dual Action Addressable Pull Station. |
| PAD100-SIM | Single Input Module is a standard contact module with an LED that mounts into a 4” square electrical box. |
| PAD100-DIM | Dual Input Module is a device that can monitor two distinct inputs with a single device or in a Class A mode. |
| PAD100-TRTI | Two Relay Two Input module provides two form C relays that are individually controlled by the control panel. Each relay is rated for 2 amps at 30VDC or 0.5 amps at 125VAC. Also provides two contact inputs. |
| PAD100-NAC | Notification Appliance Circuit module is an addressable remote appliance circuit controlled by the panel. |
| PAD100-ZM | Zone Module is used to connect conventional 2-wire smoke detectors to the system. |
| PAD100-IM | Isolater Module interrupts a short on the SLC and prevents the short from affecting protected devices on the loop. |
| PAD100-RM | Relay Module that provides one form C relay controlled by the control panel. Relay is rated for 2 amps at 30VDC or 0.5 amps at 125VAC. |
| PAD100-LED | Module provides a single addressable LED that is controlled by the control panel. |
| PAD100-SM | Speaker Module provides switching for two audio channels. |
| PAD100-LEDK | Addressable LED and key switch that mounts in a single gang box. |
| PAD100-DRTS | DUCTR Remote Test Switch that mounts in a single gang box and optionally supervised. |
| PAD100-OROI | One Relay One Input Module provides one form C relay and one input. The relay is rated at 2 amps at 30VDC or 0.5 amps at 125VAC. |
SLC Features
The Potter protocol is a digital protocol with a proven design for reliability and noise immunity. The system does not require special cable or conductors for connection of the Signaling Line Circuit as long as the cable is compliant with NFPA 70 and NFPA 72. The system allows for Class A or Class B installations as well as “T-Taps”, with a max wiring distance of 10,000 Ft.
Sensor Features
The sensors through the fire alarm control panel provide a real time status as to the condition of the system. The smoke detector sensitivity, heat detector temperature level and drift compensation are all programmable options. The system also allows for a day/night mode where the panel automatically adjusts the sensitivity depending on the time of day. To assist in the reduction of false alarms, the smoke detectors also have a maintenance warning that sends a trouble signal when a detector is dirty to the point that it can no longer maintain the programmed sensitivity.
User Interface
The fire alarm control panel has a 2 x 16 LCD display to provide information to the system status. The keypad has navigation keys to allow manipulation of the Menu on board the panel. The panel is shipped standard with the following LEDs:
- AC Power – Green
- Alarm – Red
- Earth Fault – Amber
- Supervisory – Amber
- Silenced – Amber
- Trouble – Amber
- Pre-Release – Amber
- Release – Red
The common buttons include a Silence, Reset, Acknowledge, and Drill. All of the buttons are accessible once the locked door is opened.
P-Link
The IPA-100 has a proprietary communication protocol that communicates through a RS-485 connection to field devices. Up to 64 devices may be connected to a single P-Link connection. The P-Link includes the communication terminals and regulated 24 VDC connection for the field devices. The field devices may be any of the following:
RA-6075R – 2 x 16 LCD annunciator with a key pad in a locked metal enclosure.
RA-6500R(F) – 4 x 40 LCD annunciator with a key pad in a locked metal enclosure. Flush mount version available.
LED-16(F) – 16 LED annunciator with common indicators in a locked metal enclosure. Flush mount version available.
PSN-1000(E) – 10 amp, remote intelligent power supply with 6 NACs, 2 Inputs and a P-Link repeater. This panel is listed in conjunction with the IPA-100 as releasing circuits.
CA-6075 – Class A convertor that converts the SLC, NACs and P-Link connection
UD-2000 – UL listed, Dual line telephone alarm communicator
DRV-50 – LED driver expander, used to connect up to 50 LEDs in a graphic display
FCB-1000 – Fire communication bridge, provides remote mounting of the Ethernet connection
FIB-1000 – Fiber interface module, used to extend P-Link to multimode fiber (2 required)
RLY-5 – Relay module, provides 5 form C relay contacts rated at 3.0 amps 24VDC/125AC
SPG-1000 – Serial parallel gateway, allows for the connection to a serial or parallel printer
The FIB-1000, FCB-1000 and the SPG-1000 may be installed in the stacker bracket or ordered with the optional rack mount enclosure.
MC-1000 Multi-Connect allows up to sixty-three IPA series panels to share a single reporting technology.
IDC-6 – Initiating device circuit provides 6 programmable inputs
AE-2 – Two card expansion cabinet
AE-8 – Eight card expansion cabinet
AE-14 – Fourteen card expansion cabinet
Ethernet/I.P. Connection
The IPA-100 is shipped standard with an Ethernet connection. This connection is the programming port and may be connected to a building Wide Area Network (WAN) or Local Area Network (LAN). Once connected to the Internet, the panel may be selectively programmed to e-mail alarm conditions, trouble conditions, supervisory conditions, test, Event History and detector status. An e-mail may be sent to the panel and the panel will e-mail the event history, detector status, configuration file or server status to an authorized E-mail account. In addition, reminders may be set to send an e-mail for service, testing or other conditions.
In addition, the Ethernet connection is UL listed as an IP communicator. The IP communicator is listed to report to the UL listed Sur-Gard III IP receiver. The IP communicator replaces the traditional less reliable alarm communicator transmitter that utilized telephone lines. The IP communicator is an active method of connection and communication to the monitoring station.
Dimensions

Ordering Information
| Model | Description | Stock No. |
| IPA-100 | Fire Alarm Releasing Control Panel | 3992715 |
| Replacement Board IPA-100 | 3992739 |
Compatible Releasing Devices
Note: For releasing applications please order the Potter EOLD (3005012) for circuits connected to a releasing solenoid or actuator.
| Brand | Description |
| Skinner | 73218BN4UNLVN0C112CZ 73212BN4TNLVN0C322C2 |
| Victaulic | 753-E Series |
| Mini Max | MX123 & MX200 w/ 8876677 & 889323 |
| Viking | 11591, 11601, 11602, 13843, & 13844 |
| TLX | PA0036 |
CUSTOMRT SUPPORT
Potter Electric Signal Company, LLC • St. Louis, MO • Phone: 800-325-3936 • www.pottersignal.com




















