IPA-4000V Fire Alarm Control Panel
Owner’s Manual
Features
- Supports single and dual channel applications
- Flexible programming
- Up to 2 hours of message storage
- Up to 255 customizable audio patterns
- Internal message library of predefined messages and tones
- Ability to record and import message files from a laptop
- Text-to-speech to translate custom text through a variety of natural and fluent sounding voices.
- Expandable up to 104 programmable push buttons for speaker and ECS assignment
- User push buttons for All Call,
- A supervised auxiliary input to interface with low-level audio sources
- Background Music
- Connect up to 31 SCA (single channel) or DCA (dual channel) amplifiers
- Interface with LOC-1000 (Local Operator Console) to control the system from remote areas.
- Optional Fire Fighters Telephone system
- All features of the IPA-4000 included
Description
The IPA-4000V is an enhanced version of the IPA-4000 addressable fire alarm system, now with voice integration. The panel features all preexisting fire highlights and shares new innovative voice functionalities to provide reliability and safety with the panel. The panel introduces the VM-1000 voice module and digital message repeater to deliver audio to designated remote amplifiers. The VM-1000 contains two V-Link channels (audio riser outputs) to support single and dual channel amplifiers. The voice module also includes a supervised low level auxiliary nput to interface with external audio sources and supports applications requiring background music. The IPA-4000V is equipped with an ECS user interface providing 8 programmable push buttons for speaker and ECS zone assignment, LED indicators to display activity and trouble conditions, and common user function buttons for All Call and CTRL. The optional SB-24 (Switch Board w/24 Programmable Switches) will offer 24 additional programmable push buttons. A maximum of four (4) SB-24’s can be installed, offering up to 96 programmable push buttons. The IPA-4000V can link up to thirty-one (31) SCA (single channel amplifier) or DCA (dual channel amplifier) amplifiers, thirty (30) LOC1000 (local operator console) and one (1) FFT-1000 (Firefighter Telephone System).
The Potter Panel Programmer introduces Audio Patterns which allows users to select and create audio files easily and effectively from the user’s laptop. The programmer offers an internal library of predefined message and tones for common emergency conditions. Audio Patterns provides the ability to conveniently record and import audio files directly from a laptop. The exclusive Text-To-Speech feature translates custom digital text into fluent and natural sounding voices. Offering multiple voices and languages to accommodate customer preferences.
Technical Specifications
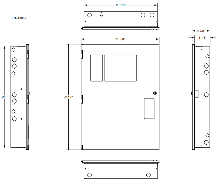
| Dimensions | 21 3/8”W x 29 1/8”H x 4 7/8”D |
| AC Mains | 5.0 Amps @ 120 VAC 50/60 HZ 3.0 Amps @ 240 VAC 50/60 HZ |
| Enclosure | 16 gauge cold rolled steel with removable locked door with Lexan viewing window |
| Battery | Standby Current-130 mA Alarm Current-220 mA • 10 Amps power for NACs, I/O, and P-Link • 3 Amps per NAC, regulated • 1 Amp per I/O circuit, regulated • Battery Charger range 8-55 Ah • Battery Charger voltage 27.3 VDC • P-Link maximum current of 1 Amp |
| Temperature and Humidity Range | 32° to 120° (0°C to 49°C) with a maximum humidity of 93% non-condensing. |
| Standards | • NFPA 12, 12A, 13, 15, 16, 17, 17A, 70, 72, 92,750, and 2001 • ANSI/UL 864 – Local (L), Remote Station (RS), Central Station (CS), Propriety (PPU), Auxiliary (AUX), Type of Service: Automatic (A), Manual (M), Water flow (WF), Sprinkler Supervisory (SS), Type of Signaling: Digital Alarm Communicator (DAC), March Time (March), Non Coded (NC), Reverse Polarity (Rev Pol), Other Technologies (OT) • IBC (International Building Code) |
Voice Accessory
SB-24 – Switch bank with 24 programmable push buttons. Maximum of 4 SB-24s.
Voice Interface
The IPA-4000V panel incorporates a SB-8 user interface to specifically display ECS system status. The panel is shipped with the following LEDs:
- Ready to Page
- Trouble
- Control Requested
- Remotely Controlled
- Locally Controlled
The common push buttons include All Call, Reset and Ctrl.
P-Link
The IPA-4000V has a proprietary communication protocol that communicates through a RS-485 connection to field devices. Up to 64 devices may be connected to a single P-Link connection. The P-Link includes the communication terminals and regulated 24 VDC connection for the field devices. The field devices may be any of the following:
- SCA-2525 – Single channel, 25W, 25V amplifier
- SCA-2570 – Single Channel, 25W, 25V or 70V selectable amplifier
- SCA-5025 – Single channel, 50W, 25V amplifier
- SCA-5070 – Single Channel, 50W, 25V or 70V selectable amplifier
- SCA-10070 – Single Channel, 100W, 25V or 70V selectable amplifier
- DCA-5025 – Dual channel, 50W, 25V amplifier
- DCA-10025 – Dual channel, 100W, 25V amplifier
- LOC-1000 – Local operator console
- FFT-1000 – Fire fighter telephone system
- FFT-1000R – Firefighter’s Telephone System, Right Hinge Door
- FFT-1000L – Firefighter’s Telephone System, Left Hinge Door
Compatible Releasing Devices
Note: For releasing applications please order the Potter EOLD (3005012) for circuits connected to a releasing solenoid or actuator.
| Brand | Description |
| Skinner | 73218BN4UNLVN0C112CZ 73212BN4TNLVN0C322C2 |
| Victaulic | 753-E Series |
| Mini Max | MX123 & MX200 w/ 8876677 & 889323 |
| Viking | 11591, 11601, 11602, 13843, & 13844 |
| TLX | PA0036 |
Dimensions
Ordering Information
| Model | Description | Stock No. |
| IPA-4000V | Fire Alarm Releasing Control Panel | 3992717 |
Potter Electric Signal Company, LLC
St. Louis, MO
Phone: 800-325-3936
www.pottersignal.com
firealarmresources.com![]()



















