ARC 13 Original Shower corner
Installation Guide
monteringsanvisning 2016:1 | INR SVERIGE ABKosterögatan 15 SE-211 24 Malmö 13 EN 14428:2005+A1:2008 | ICONICNORDIC ROOMS |
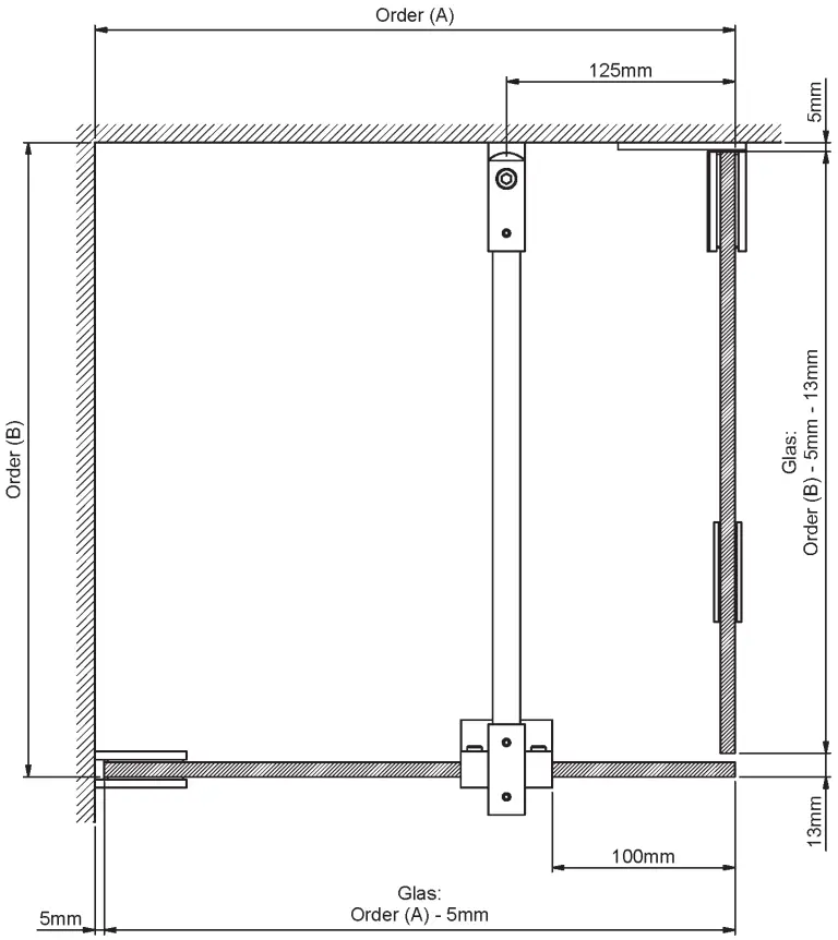
COMPONENTS

SAFETY REGULATIONS
| This product complies with standard EN 14428. All glass is tempered safety glass according to EN12150. | |
| Goggles are recommended to protect your eyes. | |
| Always use non-slip safety gloves. | |
| Use safety shoes during installation. | |
| We recommend that two persons are present at the installation. | |
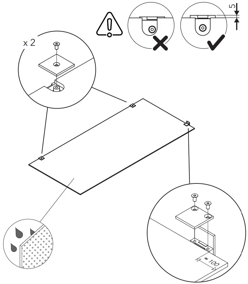
| Note! Always set the glass down on a soft foundation, since the edges and corners are very delicate. |
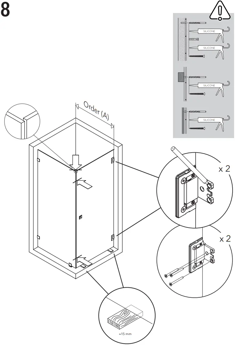
INSTALLATION

Note! Patterned side out

Screw fastenings should be made in concrete or other solid structure (a), wooden studs, wooden noggings (b), or in structures that have been tested and approved for fastenings, for example, sheet construction (c). Requirements for sealing apply in wet zones 1 and 2. See examples of construction at säkervatten.se. Sealing materials must be fixed to the underlying layer and must be waterproof, mold-resistant, and age-resistant.
Note! Patterned side out




WARRANTY
On all shower enclosures in the ARC, EPIC, and LINC series, we leave a 15-year warranty against any manufacturing defects. On BRIC and BASIC models, we leave a 5-year warranty. Sealing strips and magnetic strips are not covered by the warranty but are considered consumables. We recommend that the strips are replaced annually to remain fresh.
CARE ADVICE
Clean daily with water and a squeegee. To combat ingrained dirt, you are recommended to use a detergent intended for the purpose. Remember that sponges and abrasive paste cleaners can scratch both the glass as well as metal.
RECYCLING
- Wear protective goggles and gloves.
• Take glass to the glass recycling facility - Separate the sealing strip from the glass.
• Take aluminum and screws to the metal recycling facility. - Place some form of protection under the glass.
- Strike one corner with a hammer to break the glass.
• Take plastic strips and components to the plastic recycling facility.
| INR Sverige Kosterögatan 15 211 24 Malmö Sverige Tel 0200-38 40 40 [email protected] www.inr.se | INR Norge Fjordgaten 13 A 3125 Tønsberg Norge Tel +47 33 33 02 00 [email protected] www.inr.no | INR Danmark Kosterögatan 15 211 24 Malmö Sverige Tel +45 33 60 31 10 [email protected] www.inr.dk | INR Suomi Itsehallintokuja 4 02 600 Espoo Suomi Tel 010 209 3300 info@inr.fi www.inr.fi |

INR SVERIGE AB


















