
12’x12′ WOOD-LOOKING FINISH
HARDTOP GAZEBO WITH DOUBLE ROOF
ASSEMBLY MANUAL

Missing part?Damaged?Contact us via email at
READ ALL INSTRUCTIONS BEFORE USE
Warning & Attention
-This gazebo is not a toy. Children are not allowed to assemble or disassemble. Please take care of children, do not let them play around when assemble or disassemble.
-Adults only for assemble or disassemble this product.
-This product is constructed with heavy duty frame,please do not lean or climb before it finish assembling.
-Even though our hardtop gazebo is sturdy,please do not stand
-Even though our hardtop gazebo is sturdy,please do not stand under the gazebo during a lightning storm.
-DO NOT use this gazebo if any parts show signs of instability or damage.
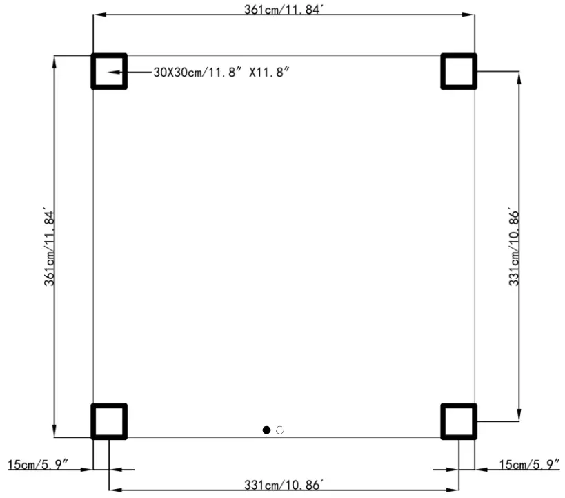
12’×12′ ANCHOR BLUEPRINT



Step 1:
Connect part A and part L using #1 screws.


Step 3:
Connect Part C1(Jointer Bar) and C2(Sidewall Track) to Part C(Beam) with Screws 1#.
Connect Part B1(Jointer Bar) and B2(Sidewall Track) to Part C(Beam) with Screws 1#.

Step 4:
Connect Poles and Beams together with Screws(2# &3#).
Replicate four times.

Step 5:
Connect the frame with part J1& part J2 using screws 1#.

Step 6:
Finish connecting beams with part G using screws 9.
Affix middle beams using part H
with Screws 9# and Screws 8#.



Step 9:
Connect Part N to inside roof connector using screws 1#.
Attach Part P1(Net Frame) toPart P using screws 1# and screws 11#.



Step 12:
Push Part V1,V2,V3,V4 to the top Roof.
Connect Part T1 to the Roof with Part R using Screws 1#.




Step 15:
Affix the roof panels withscrews and Part S.
Note: Before installing the second roof panel, put on one roof panel and fasten it.




RESORT COMFORT IN YONR
OWN BACKYARD
Thanks for your purchase.
At domi outdoor living, we believe in our products. That’s why we provide a 12-month warranty and friendly, easy-to-reach after-sales service.So if you have any questions about our product and assembly-,please feel free to contact us.We will be here for you.
Support: 
email: [email protected] Please tell us your order ID when contact. Attach photos of damaged part for instant reply.
© Copyright 20192023 Domi Outdoor Living LLC. All Rights Reserved.

















