Home Depot Barrington Light Brown Wooden Gazebo with Hip Roof

OWNER’S MANUAL -BASIC SETUP DIMENSIONS & ASSEMBLY NOTES
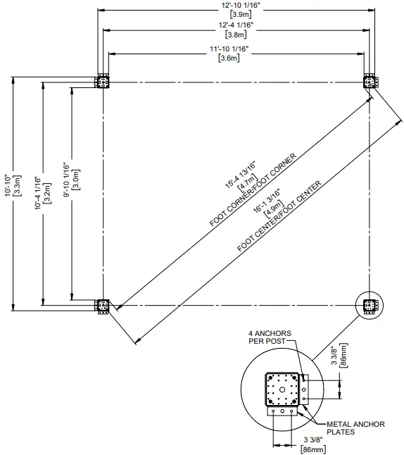
It is critically important that you start with square and level footings, concrete pad or deck to attach your structure
- Pay close attention to the items needed for each step. Make sure you are using the correct hardware for each step.
Using incorrect hardware may result in improper assembly - Remember to double check for underground utilities and overhead electrical lines
Post mounts are provided with your structure which allows you to permanently install your structure to a
pre-existing or new wood or concrete surface. See Anchor Instructions for further details and recommendations.
- The hardware to attach the post mounts to the structure is included,
- The hardware to mount the structure permanentdy to a concrete surface is incjuded.
- The hardware to mount the structure permanently to a wood deck is NOT induded and will need to be purchased separately. You must ensure there is ample structural support under the deck before permanently attaching.



















