Backyard Discovery 2306073COM Arcadia 12 ft x 9 ft 6 Inch Brown Gazebo

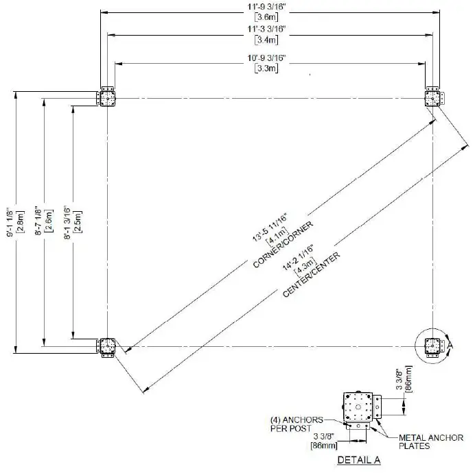
It is critically important that you start with square and level footings, concrete pads, or a deck to attach your structure.
INTRODUCTIONS
- Pay close attention to the items needed for each step. Make sure you are using the correct hardware for each step.
- Using incorrect hardware may result in improper assembly.
- Remember to double-check for underground utilities and overhead electrical lines.
- Poet mounts are provided with your structure which allows you to permanently Install your structure to a pre .. existing or new wood or concrete surface. Sea Anchor Instructions for further details and recommendations.
- The hardware to attach the post mounts to the structure is included.
- The hardware to mount the structure permanently to a concrete surface is included.
- The hardware to mount the structure permanently to a wood deck is NOT included and will need to be purchased separately. You must ensure there is ample structural support under the deck before permanently attaching.
DIMENSIONS

OWNER’S MANUAL – ANCHORING LAYOUT

















