SCHMIDT SCD-1 Tension Indicator Display Unit Instruction Manual
Warranty and Liability
In principle, the supply of the device is subject to our “General Conditions of Sale and Delivery.” These have been provided to the operating company on conclusion of the contract, at the latest.
Warranty:
- SCHMIDT display units are warranted for 12 months.
Parts subject to wear, electronic components and measuring springs are not covered by the warranty. No warranty or liability will be accepted for bodily injury or property damage resulting from one or several of the following causes: - Misuse or abuse of the device.
- Improper mounting, commissioning, operation and maintenance of the device (e.g. verification interval).
- Operation of the device if any safeguards are defective or if any safety and protection precautions are not properly installed or not operative.
- Failure to comply with the notices in the Operating Instructions regarding transport, storage, mounting, commissioning, operation, maintenance and setup of the device.
- Any unauthorized structural alteration of the device.
- Insufficient inspection of device components that are subject to wear.
- Opening the device or improper repair work.
- Disasters caused by the effects of foreign objects or by force majeure.
Notices within the Operating Instructions
The fundamental prerequisite for the safe handling of this device and its troublefree operation is the knowledge of the basic safety notices and safety instructions.
These Operating Instructions contain the most important notices for the safe operation of the device.
These Operating Instructions, in particular the safety notices, must be observed by any person who works with the device. In addition, the local valid rules and regulations for the prevention of accidents must be complied with.
The representations within the Operating Instructions are not true to scale.
The dimensions given are not binding.
General indications of direction, such as FRONT, REAR, RIGHT, LEFT apply when viewing the front of the device.
Responsibilities of the Operating Company
In compliance with the EC Directive 89 / 655 / EEC, the operating company agrees to only permit persons to work with the device who:
- are familiar with the basic regulations on industrial safety and accident prevention and who have been trained in handling the device.
- have read and understood the chapter on safety and the warning notices in these Operating Instructions and have confirmed this with their signatures.
- are examined regularly on their safe and conscientious working method.
Responsibilities of the Personnel
All persons who work with the device agree to perform the following duties before starting work:
- to observe the basic regulations on industrial safety and accident prevention.
- to read the chapter on safety and the warning notices in these Operating Instructions and to confirm with their signatures that they have understood them.
Informal Safety Measures
The Operating Instructions must always be kept on hand where the device is operated.
Apart from the Operating Instructions, the general and local valid regulations on accident prevention and environmental protection must be provided and complied with.
Training of the Personnel
Only trained and instructed personnel is permitted to work with the device. The responsibilities of the personnel must be clearly defined for mounting, commissioning, operation, setup, maintenance, and repair. Trainees may only work with the device under the supervision of experienced personnel.
Intended Use
The device is intended exclusively for displaying tension values measured by the online sensors from HANS SCHMIDT & CO GMBH. Any use with sensors from other manufacturers or any use exceeding this intention will be regarded as misuse.
Under no circumstances shall HANS SCHMIDT & Co GmbH be held liable for damage resulting from misuse.
The intended use also includes:
- Complying with all notices included in the Operating Instructions and observing all inspection and maintenance works.
Dangers in Handling the Device
The device was designed according to the state of the art and the approved safety standards. Nevertheless, its use may cause serious or fatal injury to the user or third persons, and/or an impairment of the device or of other material assets.
The device may only be applied:
- For its intended use in a faultless condition with regard to the safety requirements.
- Malfunctions that could impair safety must be remedied immediately.
- Personal protective equipment must be used according to the EC Directive 89/686/EEC.
The device must not be operated in potential explosive areas and must not come into contact with aggressive substances.
Copyright
The copyright on these Operating Instructions remains with the company HANS SCHMIDT & Co GmbH.
These Operating Instructions are intended for the operating company and its personnel only. They contain instructions and notices that may only be reproduced on the prior written permission of HANS SCHMIDT & Co GmbH and under indication of the complete reference data.
Violations will be prosecuted.
Declaration of Conformity, RoHs II and WEEE Registration
In compliance with the EU Directives 2014/30/EU and 2011/65/EU
HANS SCHMIDT & CO GmbH is registered in compliance with the German Electrical and Electronic Equipment Act (ElektroG) under WEEE Reg. No. DE 48092317.
General Information
Specifications
Digital Display: Dot matrix LCD, height of digit 12 mm with backlight
Units of Measure: cN, daN, g or kg (selectable)
Damping (fg): 16-step adjustable
Analog Output Signal : 0 – 10 V DC / RLoad > 5K Ohm
Alarm Limits: High / Low (selectable), with output signal open collector max. 30 V DC, 10 mA
Digital Output Signal: RS-232 (19200, 8, N, 1) (approx. 80 readings per sec.)
Voltage Output for Sensor: Yes
Power Supply: 15 – 24 V DC, 100 mA
AC adapter 100 – 240 V AC, 50 – 60 Hz with 3 adapters (EU/USA/UK)
Temperature Range: 10 – 45° C
Air Humidity: 85% RH, max
Housing: Aluminium
Dimensions: 182 mm x 85 mm x 34 mm (L x W x D)
Weight, net (gross): Approx. 300 g (approx. 1000 g)
Pin Assignments of the Connectors
The cable connecting the sensor with the display unit must be shielded.
The shield of the connecting cable must be connected to the metal housing of the connecting plug.
Connect only sensors which comply with the specifications given in Chapter 5.
To avoid random noise and malfunctions, make sure the cable connecting the SCD-1 with the sensor is not laid parallel to power lines or highly loaded signal lines, regardless of the type of voltage.
The requirements of the CE specification are only complied with if the SCD-1 is equipped and operated with sensors and connecting cables supplied by HANS SCHMIDT & Co GmbH. Certification to the CE specification does not extend to, and shall be invalid for any other combination. Under no circumstances shall HANS SCHMIDT & Co GmbH be held liable for any resulting damage.
Pin Assignment of the Green Mini-DIN port (Min., Max. and Analog Output)

Pin assignment of the connector when viewed from outside
- Minimum connection
- Minimum connection
- Maximum connection
- Maximum connection
- GND } Analog output
- 0 – 10 V } Analog output
Pin assignment of the connector when viewed from outside
Pin Assignment of the Purple Mini-DIN port (RS-232 and Analog Interface)
- TXD
- RXD
- GND
- NC
- GND } Analog output
- 0 – 10 V } Analog output
Pin assignment of the connector when viewed from outside
Pin Assignment of the Connectors for TS, FS and MZ Sensors
Pin assignment when viewed from outside:
- Ground – analog signal
- Supply voltage +12 V DC regulated
- Ground – supply voltage
- Vcc analog signal
Pins 2 – 3 – 4 – 8 not assigned
Delivery Includes
SCD-1 Tension Indicator
1AC adapter
1Operating Instructions
Optional Accessories:
EK0603 Connecting cable for TS sensor with 2 diode plugs, length 3 m
EK0605 Connecting cable for TS sensor with 2 diode plugs, length 5 m
EK0610 Connecting cable for TS sensor with 2 diode plugs, length 10 m
EK0624 Connecting cable for FS sensor with diode plug and sub-miniatur connector, length 2 m
EK0647: RS-232 connecting cable
EK0648: SCD-1 Min – Max and analog cable
SW-TI3: “TENSION INSPECT 3” Software (Win XP or higher) for viewing and storing the measured data on a PC
EK0648 Pin Assignment and Wire Colors

| Pin No. | Color | Function |
| 1 | RED (C) | Maximum contact |
| 2 | WHITE (C) | Minimum contact |
| 3 | BLUE (E) | Maximum contact |
| 4 | YELLOW (E) | Minimum contact |
| 5 | Black banana plug | GND |
| 6 | Red banana plug | 0 – 10 V |
Unpacking
Unpack the display unit and inspect it for any shipping damage. Notices of defect must be announced immediately, in writing, at the latest within 7 days on receipt of the goods.
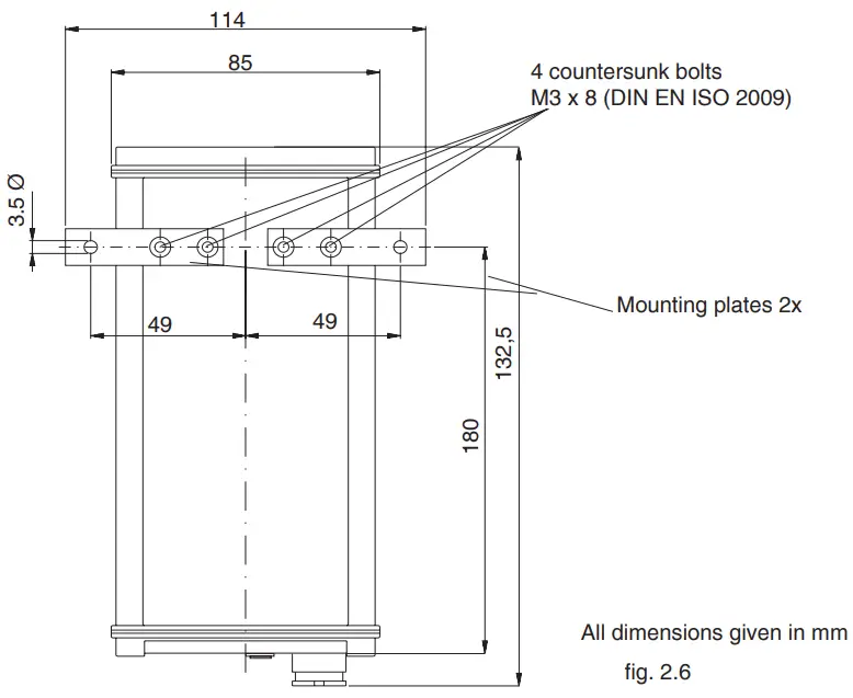
Stationary Mounting of the SCD-1
The SCD-1 can also be used for stationary applications, if required. For this purpose, screw the mounting plates (included) to the back of the unit. Then fix the unit in place at the desired measuring position with two screws.
The dimensions of the threaded holes are given in fig. 2.6.
Be careful not to exceed the maximum depth of thread (8 mm) when mounting the unit.
Operation
Operating Elements 
Switch-On
Requirements:
- AC adapter connected to the SCD-1.
- Sensor connected to the SCD-1.
- Press the
key.
The LCD momentarily shows
the version number and
the selected tension range. It then changes to measuring mode.
The LCD displays
the tension value.
Switch-Off
Manual switch-off:
- Press the
key for approx. five seconds.
The LCD displays
and then switches off immediately.
Operating Procedure
Have you read and understood the Operating Instructions, in particular Chapter 1 “Basic Safety Notices”? You are not permitted to operate the device before doing so.
Before working with the device you must put on your personal protective clothing, if necessary. For example, eye protectors, gloves, etc.
The cable connecting the sensor with the display unit must be shielded.
The shield of the connecting cable must be connected to the metal housing of the connecting plug.
Connect only sensors which comply with the specifications given in Chapter 4.4.
To avoid random noise and malfunctions, make sure the cable connecting the SCD-1 with the sensor is not laid parallel to power lines or highly loaded signal lines, regardless of the type of voltage.
The ID plate with the CE mark and the serial number as well as the calibration label (optional) and the SCHMIDT Quality Seal are provided on the rear side of the instrument.
If a longer connecting cable should be required to connect the sensor with the SCD-1, you will find the pin assignment of the 8-pin connector in the specifications given in Chapter 2.2.3.
- Install the sensor at the desired measuring location.
- Connect the SCD-1 to the supplied sensor.
- Connect the AC adapter.
- Press the
key to switch on the unit. - Select the tension range as described in Chapter 3.3.1. (only necessary when using the unit for the first time or after a sensor change)
- Allow approx. 10 min. for thermal stabilization of the unit.
- If the material path is other than vertical or if the process material deviates significantly from the SCHMIDT calibration material, you need to carry out zero adjustment and gain adjustment as described in Chapter 3.4.1 before starting measurement.
- Thread the process material through the measuring and guide rollers, following the red material path symbol on the front of the sensor.
The LCD now shows
the measured line tension.
If the line tension drops below the low alarm limit set according to Chapter 3.3.1, the MINIMUM LED is lit.
If the line tension exceeds the high alarm limit set according to Chapter 3.3.1, the MAXIMUM LED is lit.
Settings
General information:
The defaults for the display unit have been set to match the supplied sensor.
The following default settings will apply to a TS1 sensor with a tension range up to 200.0 cN, for example:
Damping: 6
Tension range: 200 cN
Unit of measure: cN
Alarm function: OFF
Low alarm limit: 20.0
High alarm limit: 180.0
You can adapt these settings to your specific requirements.
To change the settings: ![]()
![]()
![]()
![]()
![]()
- Unit switched on as described in Chapter 3.1.1.
- Simultaneously press
the
and keys.
The LCD shows
and then
.
By pressing the
key, you can now go to the individual settings for
Damping:
Tension range:
Unit of measure:
Alarm function:
Low alarm limit:
High alarm limit: - Press the
or
key to set the desired value for the selected setting. - Press
to go to a different setting,
The settings you made remain stored in the SCD-1 memory even after the instrument is switched off.
OR
- Press
to save the set value and return to measuring mode.
The settings you made remain stored in the SCD-1 memory even after the instrument is switched off.
Changing the Settings
To change the damping factor:
Requirement:
- Unit switched on as described in Chapter 3.1.1.
The unit is factory-set to a damping factor of
.
The tension values are thereby averaged in the following way for display on the LCD:
9 old values + 6 new values/15
The damping factor can be modified in 15 steps from 01 = low damping:
1 old value + 14 new values/15
to 15 = high damping:
14 old values + 1 new value/15
To change the setting:
- Simultaneously press the
and
keys.
The LCD shows
and then
. - Press the
or
key to set the desired damping factor.
The settings you made remain stored in the SCD-1 memory even after the instrument is switched off.
For example: ![]()
- Press the
key to save the setting and return to measuring mode.
OR
- Press the
key to change the setting for the:
Tension range
The tension range is factory-set for the supplied sensor.
You can also set the tension range for any other sensor that complies with the specifications in Chapter 5.
To change the setting:
The LCD shows
. You can now set the desired tension range.
- Press the
or
key to set the desired tension range.
For example: ![]()
- Press the
key to save the setting and return to measuring mode.
OR
- Press the
key to change the setting for the:
Unit of measure
The display unit is factory-set to the unit of measure
.
You can also select daN, g or kg for the unit of measure.
The settings you made remain stored in the SCD-1 memory even after the instrument is switched off.
To change the setting:
The LCD shows
. You can now set the desired unit of measure.
- Press the
or
key to set the desired tension range.
For example:
- Press the
key to save the setting and return to measuring mode.
OR
- Press the
key to change the setting for the:
Alarm function
The unit is factory-set to
.
To change the setting:
The LCD shows
.
- Press the
or
key to enable or disable the alarm function.
For example: Alarm ON
- Press the
key to save the setting and return to measuring mode.
OR
- Press the
key to set the:
Low alarm limit
The low alarm limit is factory-set to 10% of the tension range of the supplied sensor.
For example: 
When you change the tension range, the low alarm limit is automatically set to 10% of the newly selected tension range.
To change the setting:
The LCD shows
.
- Press the
or
key to set the desired low alarm limit.
For example: ![]()
- Press the
key to save the setting and return to measuring mode.
OR
- Press the
key to set the:
High alarm limit
The high alarm limit is factory-set to 90% of the tension range of the supplied sensor.
For example: ![]()
When you change the tension range, the high alarm limit is automatically set to 90% of the newly selected tension range.
To change the setting:
The LCD shows
.
- Press the
or
key to set the desired high alarm limit.
For example: ![]()
- Press the
key to return to measuring mode.
OR
- Press the
key to return to the damping factor setting.
The settings you made remain stored in the SCD-1 memory even after the instrument is switched off.
Calibration of Sensors of the TS, FS and MZ Series
All tension meters are calibrated with standard materials – such as polyamide monofilament (PA) – according to the SCHMIDT factory procedure; the material path is vertical.
Any difference in process material size and rigidity from the standard material may cause a deviation of the accuracy. In 95% of all industrial applications, the SCHMIDT calibration has been proven to provide the best results and is used for comparative purposes.
If required you can also operate the sensor with a material path other than vertical.
Should the process material differ significantly from the SCHMIDT calibration material in size, rigidity or shape, we recommend special calibration using customer supplied material. If a different material path (e.g. horizontal) or special calibration using customer supplied material is required, you need to carry out static ZERO and GAIN adjustment as described in Chapter 3.4.1.
Since the factory calibration for ZERO and GAIN is always performed statically, the readings may differ under dynamic load.
Zero Adjustment
- The connected sensor must be threatened in measuring position.
- Switch on the SCD-1, according to chapter 3.1.1, DISPLAY shows an value.
- Press and hold the key
. - Set the shown DISPLAY value to zero, by pressing the keys
or
. - Relaese the key

The zero value will be restored
The Zero adjustment must be accomplished after every new activation of the SCD-1
ZERO and GAIN Adjustment
Requirements:
- Two weights, one corresponding to 10% and one to 90% of the selected tension range, must be provided. Pay attention to the selected unit of measure (cN or kg).
- Required tension range set as described in Chapter 3.3.1.
- Sensor mounted at measuring location.
Connect only sensors which comply with the specifications given in Chapter 5.
To avoid random noise and malfunctions, make sure the cable connecting the SCD-1 with the sensor is not laid parallel to power lines or highly loaded signal lines, regardless of the type of voltage.
The requirements of the CE specification are only complied with if the SCD-1 is equipped and operated with sensors and connecting cables supplied by HANS SCHMIDT & Co GmbH. Certification to the CE specification does not extend to, and shall be invalid for any other combination. Under no circumstances shall HANS SCHMIDT & Co GmbH be held liable for any resulting damage.
- Supplied sensor connected to the SCD-1 at the 8-pin connector.
- AC adapter connected.
- Switch on the SCD-1 as described in Chapter 3.1.1.
- Allow approx. 10 minutes for thermal stabilization of the unit.
ZERO adjustment: 
- Thread the process material through the measuring and guide rollers, following the red material path symbol on the front of the sensor.
- Hang a weight that corresponds to 10% of the tension range (pay attention to the correct unit of measure) from the process material, vertically, as shown in fig. 3.4.1. (Always use a fresh portion of the material to be measured.)
- Press and hold the
key . - Press the ZERO
or
key repeatedly until the tension value on the LCD is equal to the value of the suspended weight.
For example: Sensor model TS1 – 200
Weight 20 cN = LCD display
- Release
the key
GAIN adjustment:
Requirement:
ZERO adjustment carried out.
To carry out GAIN adjustment:
- Thread the process material through the measuring and guide rollers.
- Hang a weight that corresponds to 90% of the tension range (pay attention to the correct unit of measure) from the process material, vertically, as shown in fig. 3.4.1.
(Always use a fresh portion of the material to be measured.) - Press and hold the
key. - Press the GAIN
or
key repeatedly until the tension value on the LCD is equal to the value of the suspended weight.
For example: Sensor model TS1 – 200
Weight 180 cN = Display
- Release the
key.
The ZERO and GAIN adjustment values are saved automatically after approx. 10 seconds.
- Check the adjustments with a fresh portion of the process material and repeat the procedure, if required.
If the adjustment range of the display unit is not sufficient for carrying out the ZERO and GAIN adjustments, you can request the relevant calibration instructions from HANS SCHMIDT & CO GMBH.
Restoring the Factory Calibration
- Press and hold the
key. - Simultaneously press the
and
keys.
The factory calibration is restored.
Interfaces
ANALOG Interface
The analog interface in the purple and green Mini-DIN ports is provided for customer signal processing or for connecting a line recorder which conforms to the current industrial standard.
Please refer to Chapters 2.1, 2.2.1, 2.2.3 and 2.3.2 for the specifications.
MIN – MAX Interface
The MIN – MAX interface (OPEN COLLECTOR) in the green Mini-DIN port can be used for connecting external signal devices.
Please refer to Chapter 2.2.1 for the specifications.
DIGITAL Interface
The TENSION INSPECT 3 Program
The Tension Inspect 3 software from SCHMIDT is described in a separate user manual.
WINDOWS Terminal Program
The measured values can be transmitted over the RS-232 interface to a personal computer.
You can connect the computer to the INTERFACE of the SCD-1 by using the EK0647 special cable which is available as an accessory.
The pin assignment of the INTERFACE is described in Chapter 2.2.
Requirement:
A communication program, such as Terminal or HyperTerminal (provided on MS Windows Version 3.0 or later), must be installed and configured on the computer.
Command for communication with a PC (polling)
| ASCII Code | Function | Description |
| d | Send | Transmit current reading to PC once. |
Online Sensor Specifications
TS Series (Models TS1, TSP, TSH, TSL, TSF, TSB1, TSB2)
FS Series (Models FS1, FSP, FSH, FSL, FSB1)
MZ Series
Calibration: According to SCHMIDT factory procedure
Accuracy: For 10% to 100% of range: ± 1% full scale
Remainder of Range and Other Calibration Material: ± 3% full scale or better
Overload Protection: 100% of range
Measuring Principle: Strain gauge bridge
Measuring Roller Deflection: 0.5 mm max.
Signal Processing: Analog
Output Signal: 0 – 1 V DC (standard)
Damping (fg): Standard: 30 Hz (other values on request)
Temperature Coefficient: Gain: less than ± 0.01% full scale / °C
Temperature Range: 10 – 45 °C
Air Humidity: 85% RH, max.
Power Supply: Standard: + 12 to + 24 V DC (21 mA) (regulated)
Further technical details are provided in the Operating Instructions for the sensors.
Service and Maintenance
The tension meter is easy to maintain. Depending on operating time and load, the tension meter should be checked according to the locally valid regulations and conditions.
Cleaning
For cleaning the unit, do not use any
AGGRESSIVE SOLVENTS
such as trichloroethylene or similar chemicals.
NO WARRANTY OR LIABILITY
shall be accepted for damage resulting from improper cleaning.
Verification Intervals
The question of finding the right frequency of calibration accuracy verification depends on several different factors:
- Operating time and load of the SCHMIDT tension meter
- Tolerance band defined by the customer
- Changes of the tolerance band compared to previous verifications of calibration
Therefore, the interval between verifications must be determined by the user`s Quality Assurance Department based on the user`s experience.
Assuming normal operating time and load as well as careful handling of the tension meter, we recommend a verification interval of 1 year.
Correspondence
Should you have any questions regarding the instrument or Operating Instructions, or their use, please indicate above all the following details which are given on the ID plate:
- Model
- Serial number
Repairs
Shipping instructions:
We kindly ask for return free of charge for us, if possible by airmail parcel. All occurring charges, if any (such as freight, customs clearance, duty etc.), will be billed to customer.
For return from foreign countries, we ask you to include a proforma invoice with a low value for customs clearance only, e.g. 50 Euro, each and to advise the shipment in advance by fax or eMail.
To avoid unnecessary follow-up questions, and the resulting loss of time or possible misunderstandings, please return the instrument with a detailed fault description to our service department. Please indicate in your order whether you require an Inspection Certificate 3.1 according to DIN EN 10204.
Service address: HANS SCHMIDT & Co GmbH
Schichtstr. 16
D-84478 Waldkraiburg
Germany
Tension Meter
Force Gauge
Torque Meter
Tachometer
Speed- and Lengthmeter
Electronic Lengthmeter
Stroboscope
Screen Printing Tension Meter
Thickness Gauge
Yarn Package Durometer and Shore Durometer
Sample Cutter
Balance
Moisture Meter
Leak Tester
Softometer
Checkline
175 Vincent Ave, Lynbrook, NY 11563 – USA
www.Checkline.com
[email protected]
516-295-4300
the measured line tension.

.











