Equipment Interface Module (EIM)
Installation and Setup Guide
507240-03
3/2020
Supersedes 1/2020
Shipping and Packing List
| Quantity | Description |
| 1 | Equipment Interface Module. |
| 1 | Installation and setup guide |
| 1 | Warranty certificate |
WARNING
Improper installation, adjustment, alteration, service, or maintenance can cause property damage, personal injury, or loss of life.
Installation and service must be performed by a licensed professional HVAC installer (or equivalent) or a service agency.
Application and Requirements
Indoor Transformer Requirements
The following lists the required indoor unit transformer rating (VA) for specific configurations.
Table 1. System VA Loading Chart
| Configuration | Minimum Transformer Rating (VA) |
| 2-Stage HP, 3-Stage Electric heat | 70 |
| 2-Stage HP, 2-Stage Furnace (with tempering) | 70 |
| 2-Stage HP, 2-Stage Furnace (without tempering) | 50 |
| 2-Stage AC, 2-Stage Furnace | 40 |
Equipment
The Equipment Interface Module (EIM) is used with a Lennox communicating thermostat using the R, i+, i-, and C terminals. The EIM is the interface between non-communicating HVAC equipment and Lennox communicating HVAC equipment.
NOTE: EIM will support single-stage outdoor units with single-stage or variable-stage indoor furnaces.
Figure 1. Terminals and LEDs
CAUTION
Electrostatic discharge can affect electronic components. Take precautions during unit installation and service to protect the unit’s electronic controls.
Precautions will help to avoid control exposure to electrostatic discharge by putting the unit, the control, and the technician at the same electrostatic potential. Neutralize electrostatic charge by touching hand and all tools on an unpainted unit surface before performing any service procedure
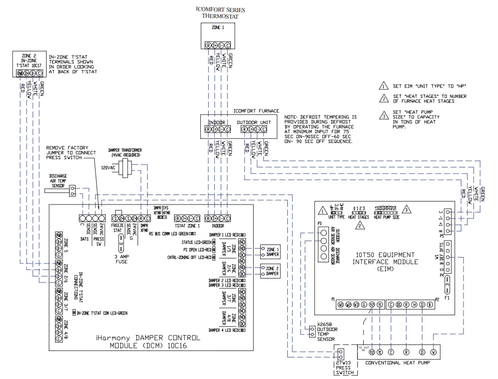
EIM with Air Hander or Furnace (Indoor Unit) and either an Air Conditioner or Heat Pump (Outdoor Unit)
NOTE: For dual-fuel applications, additional components may need to be added.
Figure 2. System View
WARNING
Controls in this module are sensitive to moisture. Do NOT secure this module to the sheet metal cabinet where moisture may condense during periods of high humidity. Secure the module to a nearby wooden stud, if possible.
Installation
IMPORTANT
The Lennox communicating thermostat paired with the Equipment Interface Module (EIM) will work with most 24VAC furnaces, air handlers, air conditioners, and heat pumps (up to 2-stages of cooling and 3-stages of heat).
The Lennox communicating thermostat without the Equipment Interface Module (EIM) will work with Lennox communicating HVAC equipment.
- Remove the module cover.
- Mount the Equipment Interface Module (EIM) near the indoor unit.
- Use the wiring diagrams referenced in the section titled “Field Wiring” on page 10 to complete the wiring connections for the specific application and configuration.
Configuration Setup
How the EIM is configured is determined by the system components.
NOTE: Changing jumper positions after the control has been powered-up requires recommissioning for the change to be recognized.
NOTE: When the Equipment Interface Module is replaced, recommissioning the Lennox communicating thermostat will also need to be re-accomplished. See the Lennox communicating thermostat Setup Guide for recommissioning procedure.
The following examples are two typical configurations used with the EIM.
There are other applications as well and are addressed in the wiring diagrams section titled “Field Wiring” on page 10. Those diagrams will indicate all required jumper settings on the EIM and wiring connections.
EIM, 24VAC Furnace and Lennox Communicating Heat Pumps
See “Figure 12. Dual-Fuel – Conventional Furnace with Lennox secure this Communicating
Heat Pump (1 or 2-Stage)” on page 11 for wiring details.
- Set the EIM Unit Type Jumper to IFC.
- Set the EIM Heat Stage Jumper (see “Table 3. Heat Stage Jumpers” on page 5) to the applicable number of furnace heat stages or a number of electric heat stages.
- Use the Lennox communicating thermostat to complete the commissioning procedure. thermostat paired with the Equipment
EIM, Lennox Communicating Furnace and 24VAC Heat Pump
See “Figure 11. Dual-Fuel – Lennox Communicating Furnace with Conventional Heat Pump (1 or 2-Stage)” on page 11f or wiring details.
- Set the EIM Unit Type Jumper to Heat Pump.
- Set the EIM Heat Stage Jumper (see “Table 3. Heat Stage Jumpers” on page 5) to the applicable number of heat pump heating stages.
- Use the Lennox communicating thermostat to complete the commissioning procedure.
NOTE: For a two-stage heat pump go to the heat pump defrost control, locate P3 – low ambient thermostat pins and disable this function by removing the installed jumper and relocating it to one pin only.
Unit Type Jumpers
Set the unit type jumper for the type of indoor unit being by using the following table and figure. The factory default setting is IFC. If the jumper is missing from the jumper pins, then alarm 130 is activated.
Table 2. Unit Type Jumpers Positions
| Jumper Position | Indoor Unit | Outdoor Unit |
| HP | Lennox Communicating Furnace | Conventional Heat Pump |
| IFC | Conventional Furnace | Conventional Heat Pump or air conditioner |
| THE | Conventional Air Handler |
Figure 3. Unit Type Jumper Positions
Heat Stage Jumper Positions
The factory default setting is position 2 (two heat stages). If the jumper is missing from the jumper pins, then alarm 130 is activated. Depending on the type of equipment and system setup being used:
- Set the number of stages of electric heat (air handler) when jumper pin selection is AHC selection.
- Set the number of stages of gas heat (Furnace) when jumper pin selection is IFC.
- Set the number of stages of the compressor when jumper pin selection is HP.
Figure 4. Heat Stage Jumper Positions
Table 3. Heat Stage Jumpers
| Label (Position) | Air Handler Heat Stages | Furnace Heat Stages | Heat Pump Stages | |||
| Number of Electric Heat Stages | Stage Percentage | Number of Gas Stages | Stage Percentage | Number of Compressors Stages | Stage Percentage | |
| 0 | No Electric Heat | 0 | 1 | 100% | 1 | 100% |
| 1 | 1 | 100% | 1 | 100% | 1 | 100% |
| 2 (default) | 2 | 50%, 100% | 2 | 70%. 100% | 2 | 70%. 100% |
| 3 | 3 | 33.5%, 66.5%, 100% | 2 | 70%, 100% | 2 | 70%. 100% |
| NOTE: If the jumper is missing, the setting defaults to a single stage. Changing jumper position after power-up requires to recommission for the change to be recognized. | ||||||
24VAC Heat Pump Size Setting
Heat pump size must be configured when using a non-communicating heat pump using the Heat Pump Size jumper (see figure 4 and table 5).
The factory default setting is for 3.0 (3-ton). If the jumper is missing from jumper pins then alarm 130 is activated.
Figure 5. Conventional Heap Pump Capacity Jumper Setting
Air Temperature Sensor Connections
Refer to “Figure 1. Terminals and LEDs” on page 3 for various terminal locations.
Table 4. Outdoor Air and Discharge Air Sensors
| Label | Function / Description |
| Outdoor Air Sensor | Show ambient temperatures (optional if weather feed is acceptable or an outdoor unit is a communicating unit; use X2658 Outdoor Sensor – 2 terminals). NOTE: The wiring distance between the EIM and the outdoor temperature sensor can not exceed 150 feet (45 meters) when wired with a minimum 22AWG (Recommend) 18AWG dedicated two-conductor thermostat cable. |
| Discharge Air Sensor | Optional for diagnostics of indoor air; use 88K38 Discharge Air Sensor – 2 terminals. |
Lennox Communicating Terminal Connections and Wiring Recommendations
Table 5. Communicating Terminals
| Table 5. Communicating Terminals | ||
| Label | Function / Description | Thermostat Wiring |
| R | 24VAC communication power Input | 18AWG unshielded |
| i+ | Communication high – data line | 18 – 22AWG shielded (recommended) |
| i- | Communication low – data line | |
| C | 24VAC communication common power Input | 18AWG unshielded |
IMPORTANT
Use 18AWG unshielded thermostat cable (field-provided) for power terminals (R and C) and all non-communicating terminals. Highly recommend using an 18 – 22AWG shielded thermostat cable for communications terminals ( i+ and i-) which will help eliminate any noise interference.
Dual-Fuel Terminal Connections
Table 6. Dual-Fuel Terminals
| Label | Description | Function |
| DFTS | Pre-coil discharge air temperature (2 terminals) | The pre-coil discharge air sensor should be installed downstream of the gas heat exchanger and before the in-door coil when a heat pump is used and defrost tempering is required. It must be placed in free airflow, where other accessories (such as humidifiers, UV lights, etc.) will not interfere with its accuracy. The wiring distance between the EIM and the discharge air sensor should not exceed 10 feet when using an 18AWG thermostat wire. |
| W1-DEF | Defrost signal input | This input is used in systems with non-communicating heat pumps for defrosting indication. The input provides a nominal load of 50 mA, 24 VAC. |
| 0 | Heat Pump Reversing Valve (Powered for cooling) | In systems with communicating IFC, the EIM (HP) O output is connected to a non-communicating heat pump compatible with the O signal for reversing valve operation. A 24VAC signal is generated on O for cooling operation, while the terminal is open for heating operation. |
| B | Heat Pump Reserving Valve (Powered for heating) | In systems with communicating IFC, the EIM (HP) B output is connected to a non-communicating heat pump compatible with the B signal for reversing valve operation. A 24VAC signal is generated on B for heat pump operation, while the terminal is open for cooling operation. |
Conventional Terminal Connections and Wiring Requirements
Table 7. Conventional Terminals
| Label | Description | Function |
| 18AWG unshielded thermostat cable (field-provided) for all non-communicating connections | ||
| W1 | 1st – stage heat output (1st stage gas heat output when configured as IFC and 1st stage electric heat output when configured as AHC. | |
| W2 | 2nd – stage heat output (2nd stage gas heat output when configured as IFC and 2nd stage electric heat output when configured as AHC. | |
| W3 | 3rd – stage heat output (3rd stage electric heat output when configured as AHC) | |
| 18AWG unshielded thermostat cable (field-provided) for all non-communicating connections | ||
| G | Indoor blower control (continuous fan) (monitoring only). G input may be connected to IAQ devices such as LVCS, HRV or ERV to turn the indoor blower on and off. | |
| Y2 | 2nd – stage compressor output | |
| Y1 | 1st – stage compressor output | |
| DS | 24VAC dehumidification signal output. The DS terminal is powered when there is not a dehumidification call. | |
| C | Class II, 24VAC transformer common | R and C terminals are used to receive power from the indoor unit and are capable of providing the power to the EIM and all the associated loads. The R power input uses a 3A fuse (Lennox part number 25J4901. |
| R | Class II. 24VAC transformer power | |
| H | 24VAC humidifier signal output | |
| O | Heat pump reversing valve (24VAC = cool) | Used as reversing valve output for heat pumps. The EIM uses a single-pole dual throw relay to generate O and B signals. Normally the O output is open and B output at 24VAC during heating calls. During cooling calls O is 24VAC and B open. With relay, de-energized 24VAC is present on the O terminal. When power off/ or control reset, 24VAC power shall not be present on the O terminal. |
|
B | Heat pump reversing valve (24 VAC = heat) | |
This control has two green LEDs to indicate status and communication activity One LED is labeled Status and the other is labeled RSBUS.LED Indicators
RSBUS LED
The bus LED flashes when information is being communicated over the bus.
Status LED
The following table lists all status LED information.
Table 8. Status LED (Green)
| Green LED | Function / Description |
| Steady On | Remains steady ON until the device sends its start-up message. |
| Blinks 3 seconds OFF and 1 second ON | Soft disable state |
| Blinks 2 seconds ON and 2 seconds OFF | Service is being provided (W, Y or G relay is ON, or G input ON |
| Blinks 1 second ON and 1 second OFF | When alarms are present, you may review alarm(s) listed either on the homeowner notification screen or the menu/settings> advanced settings > dealer control center > notifications screen. Information will be listed in either location on how to clear the alert code(s). |
Soft Disable
Soft disabling is when the Lennox communicating thermostat detects an unknown control such as an indoor or outdoor unit control, iHarmony® zoning system, or Equipment Interface Module (EIM) on the system communication bus. The thermostat sends the unknown control a message to go into soft disable mode until the component is properly
configured.
The Lennox communicating thermostat will not display any code for a soft disabled control. When soft disabling occurs only the control that has been disabled will display the blinking LED status. In this case, the control blinks three seconds OFF and one second ON.
Use the following procedure if the equipment interface module is displaying the soft disable code.
- Confirm proper wiring between all devices such as a thermostat, EIM, indoor and outdoor units).
- Cycle power to the control that is displaying the soft disable code.
- Touch the Lennox icon on the thermostat home screen and hold until the installer warning screen appears.
- Touch yes to continue.
- Touch Setup and then confirm to continue.
- Use this Thermostat? Touch press here to continue.
- Touch the next button to continue past the next three screens.
- From the System Devices list, touch reset ALL to reset all devices.
- Touch the confirm button.
The thermostat will reboot and start through the setup process again.
IMPORTANT
If any jumpers were set incorrectly AFTER commissioning was completed, then reposition jumpers to correct positions. Re-running the commissioning procedure will be required at the Lennox communicating thermostat.
This completes the configuring of the conventional outdoor unit.
iComfort S30 Commissioning (Conventional Outdoor Unit)
Both unit capacity and a number of compressor stages are required to be configured through the Lennox communicating thermostat. Once the outdoor unit has been installed and connected to the equipment interface module, go to the thermostat and start the configuration process.
- From the equipment found screen, touch the non-communication equipment location to add non-communicating equipment.
- An add/remove equipment screen will appear. Under Outdoor Unit Type, select the applicable 1 or 2-stage unit.
- Touch either the plus or minus buttons to select the applicable Outdoor Unit Capacity. Valid options are 18, 24, 30, 36, 42, 48 and 60.
- Touch Save to continue.
Operating Environment Specifications
The Equipment Interface Module is designed to operate in the following environmental conditions.
- Operating Temperature Range: 40°F to 176°F (40° C to 80°C).
- Shipping and Storage Temperature Range: 40° F to 185°F (40°C to 85°C).
- Operating Humidity Range: 10% to 90% non-condensing at 104°F.
Unit Dimensions
Figure 6. Unit Dimensions
Duel-Fuel Operations
To use the EIM in dual-fuel mode, the following equipment combinations and configuration is required.
Defrost Air Tempering Kit (67M41) will be required. The included DT1 discharge temperature probe is inserted in the furnace air outlet between the furnace and the indoor coil to keep the furnace from overheating the coil which would cause the heat pump to high-pressure tripping during the defrost cycling. The DT1 is only needed with non-communicating furnaces and is not required for air handlers.
The wiring example for the DT1 Discharge Temperature Probe is in “Figure 13. Dual-Fuel – Conventional Furnace with Conventional Heat Pump (1 or 2-Stage)” on page 12.
Figure 7. EIM, Conventional Furnace, and Lennox Communicating Heat Pump
Figure 8. EIM, Conventional Furnace, and Conventional Heat Pump
Field Wiring
Table 9. Wiring Diagrams
| System Type | Indoor Unit | Outdoor Unit | EIM Jumper Settings | Diagrams | |
| Unit Type | Number and Type of Heat Stages | ||||
| Air Conditioner | Conventional Furnace | Conventional Air Conditioner | IFC | Set to a number of furnace stages. | Figure 9 on page 11 |
| Air Conditioner | Conventional Air Handler | Conventional Air Conditioner | THE | Set to a number of air handler electric heat stages. | Figure 9 on page 11 |
| Heat Pump | Conventional Air Handler | Conventional Heat Pump | HP | Set to a number of heat pump compressor stages. | Figure 10 on page 11 |
| Dual Fuel | Conventional Furnace | Lennox Communicating Heat Pump | IFC | Figure 12 on page 11 | |
| Dual Fuel | Lennox Communicating Furnace | Conventional Heat Pump | HP | Figure 11 on page 11 | |
| Dual Fuel | Conventional Furnace | Conventional Heat Pump | IFC | Figure 13 on page 12 | |
| Dual Fuel with harmony | Lennox Communicating Furnace | Conventional Heat Pump | HP | Figure 16 on page 13 | |
| Baseboard Heat | Conventional Air Handler* | Lennox Communicating Air Conditioner or Heat Pump | IFC | Set to the number of heat pump compressor stages or air handler electric heat stages. | Figure 14 on page 12 |
| Hot Water Coil with Aquastat Blower Control | Conventional Air Handler* | Lennox Communicating Air Conditioner or Heat Pump | IFC | Figure 15 on page 12 | |
| Accessories – Dehumidifiers, humidifiers, HEPA Bypass Filter (HRV / ERV) | Conventional Air Handler or Furnace | Conventional Air Conditioner or Heat Pump |
IFC | Figure 17 on page 14 | |
| Accessories – EDA Humiditrol and LVCS Ventilation Control | Conventional Air Handler or Furnace | Conventional Air Conditioner or Heat Pump | IFC | Figure 18 on page 14 | |
| * 24VAC conventional air handler or CBX32MV(-6), CBA38MV, or CBX40UHV used as 24VAC conventional. | |||||
Figure 9. Conventional Furnace or Air Hander with Conventional Air Conditioner (1 or 2-Stage)
Figure 10. Conventional Air Hander with Conventional Heat Pump (1 or 2-Stage)
Figure 11. Dual-Fuel – Lennox Communicating Furnace with Conventional Heat Pump (1 or 2-Stage)
Figure 12. Dual-Fuel – Conventional Furnace with Lennox Communicating Heat Pump (1 or 2-Stage)
Figure 13. Dual-Fuel – Conventional Furnace with Conventional Heat Pump (1 or 2-Stage)
Figure 14. Baseboard Heat – Conventional Air Handler (CBX32MV(-6) or CBX40UHV) with either a Lennox Communicating Air Conditioner or Heat Pump
Figure 15. Hot Water Coil Heat with Aquastat Blower Control – Conventional Air Handler (CBX32MV(-6) or CBX40UHV)
Figure 16. Dual-Fuel – Lennox Communicating Furnace, harmony Zoning, and Conventional Heat Pump
Figure 17. Optional Accessories with Conventional Indoor Unit (HEPA Bypass Filter, ERV/HRV, 24VAC Humidifier, and HCWHD3 Humidifier)
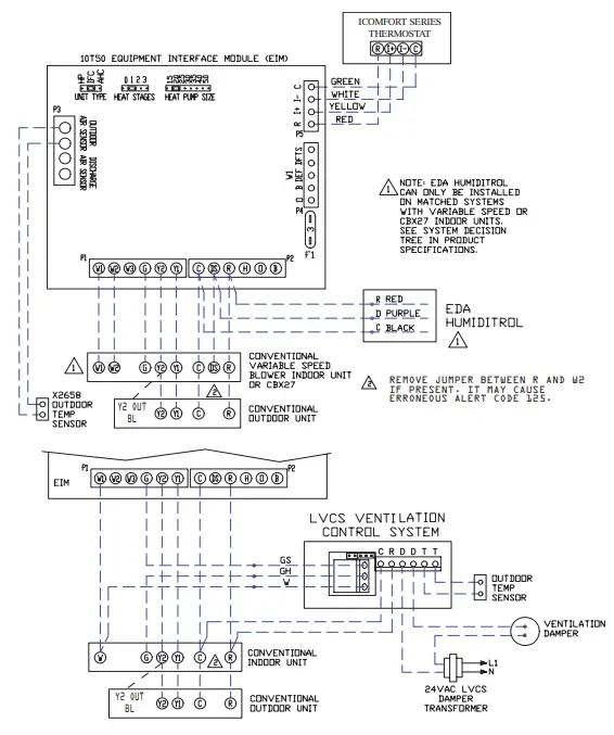
Figure 18. Conventional Indoor and Outdoor Units (EDA Humiditrol and LVCS Ventilation Control System)
Alert Codes and Troubleshooting
Error codes are transmitted to the thermostat. No codes are stored in the EIM.
Table 10. Alert Codes and Troubleshooting
| Alert Code | Priority Condition | Applicable System Component(s) | Alert Text | Component or System Operational State and Troubleshooting Tip | How to clear the alert code |
| 10 | Critical | All Lennox Communicating thermostats. Communicating air handler, furnace, outdoor unit, EIM, and harmony. | The thermostat has found an unknown device on the system. | Lennox communicating thermostat when NOT in configuration mode has detected an unknown device. Typically the thermostat will send a command to the unknown device and place it in a soft disabled state. The soft disable control will indicate as follows: √ On-air handler, furnace, and outdoor controls, the state is displayed by double horizontal lines on a seven-segment display. √ On the damper control module or equipment interface equipment, the green LED will blink three seconds on and one second off. Cycling power to the soft disabled control may clear the condition. If cycling power does not clear the soft disabled state then replace control. | Clear alert code by reconfiguring the system |
| 12 | Critical | All Lennox Communicating thermostats. Lennox Communicating furnace, EIM or air handler | The thermostat cannot find a Lennox communicating indoor unit | Lennox communicating thermostat did not find an indoor unit. Make sure there is a Lennox communicating indoor unit on the system. √ Check R, i+, i- and C connections and voltages. √ Ohm wires and cycle power. √ Check for voltage and missing components. √ Verify that the equipment interface module is configured as an air handler or furnace when used with a non-communicating indoor unit. √ Go to menu > advanced settings > view dealer control center > equipment and press reset all equipment. This will allow the system to auto-detect any Lennox communicating components attached. √ Replace indoor unit control if there is no response. | Automatically clear when the system detects that the issue no longer exists. |
| 105 | Critical |
All Lennox Communicating thermostats. | A system component has lost communication with the system. | The system component (device) is unable to communicate. √ This may indicate the existence of other active alert codes. √ In most cases, errors are related to electrical noise. Verify that high voltage power is separated from the low voltage communication wires. √ Check for incorrectly wired or loose connections between system components (devices). √ Check for a high voltage source of noise close to the system. | Automatically clear when the system detects the issue no longer exists. |
| 114 | Moderate / Critical | Lennox Communicating Furnace, air handler, EIM or harmony | There is a frequency/distortion problem with the power to a specific system component. | √ This alert code may indicate transformer overloading. √ Check the voltage and line power frequency. √ Check the generator operating frequency, if the system is running on backup power. √ Correct voltage and frequency problems. √ The system will resume normal operation five seconds after the fault is recovered. √ All applicable system component outputs are disabled – moderate condition. √ After 10 minutes, the priority condition is escalated – to critical condition. √ The damper control module will operate in central mode only until the proper voltage is restored or frequency distortion is resolved – moderate condition. | Automatically clear when the system detects the issue no longer exists. |
| 115 | Critical | Lennox Communicating Furnace, air handler or EIM | Primary 24VAC power to a system component control is lower than the required range of 18 to 30VAC. | √ Check and correct voltage. √ Check for additional power-robbing system components (devices) connected to the system. √ This alert code may require the installation of an additional or larger VA transformer. | Automatically clear when the system detects the issue no longer exists. |
| 120 | Moderate | All Lennox Communicating thermostats. Lennox communicating furnace, air handler, outdoor unit, EIM or harmony | There is a delay in the system component responding to the system. | Typically this alert code does not cause any operational issues and will clear on its own. √ This alert code is usually caused by a delay in the outdoor unit responding to the thermostat. √ Check all wiring connections. | Automatically clear after an unresponsive system component (device) responds to any inquiry. |
| 124 | Critical | All Lennox Communicating thermostats. Lennox communicating furnace, air handler, outdoor unit, EIM or harmony | The thermostat has lost communication with a system component for more than three minutes. | The system component has lost communication with the thermostat. √ Check the wiring connections. √ Ohm wires. √ Cycle power. √ Check voltage at component. This alert code stops all associated system operations and waits for a heartbeat message from the system component that is not communicating. | Automatically clear after communication is re-established with applicable system component (de- vice). |
| 125 | Critical | All Lennox Communicating thermostats. Lennox communicating furnace, air handler, outdoor unit, EIM or harmony | There is a hardware problem with system component control. | There is a control hardware problem. √ Replace the control if the problem prevents operation and is persistent. √ The damper control module will remain in non-zone mode (all dampers open) for five minutes after priority conditions no longer exist. √ Remove jumper if present on the indoor unit between R and W2 if the equipment interface module is in use. | Automatically clear 300 seconds after the issue no longer exists. |
| 130 | Moderate | AIM | Air handler jumper is missing. | √ Configuration jumper missing on the equipment interface module. √ Install the missing jumper. NOTE: This is applicable in non-communicating applications only). | Automatically clear after the missing or incorrectly installed jumper is installed or corrected. |
| 131 | Critical | All Lennox Communicating thermostats. Lennox communicating furnace, air handler, outdoor unit, EIM or harmony | System component control parameters are corrupted. | √ Replace the system component control if heating or cooling is not available. | Will automatically clear when system component (device) passes memory self-test or system component control is replaced. |
| 132 | Critical | Lennox communicating Air handler, EIM or harmony | System component control software is corrupted | √ Recycle power. √ If failure re-occurs, replace the system component control. | A manual system power reset is required to recover from this alert code. |
| 180 | Critical | Lennox communicating Furnace, air handler or EIM |
The thermostat has found a problem with a system component’s outdoor temperature sensor. | In normal operation after system component control recognizes sensors, the alarm will be sent if the valid temperature reading is lost. √ Compare outdoor sensor resistance to temperature/resistance charts in-unit installation instructions. √ Replace sensor pack if necessary. √ At the beginning of (any) configuration, the furnace, air-handler control, or equipment interface module will detect the presence of the sensor(s). √ If detected (reading in range), the appropriate feature will be set as ‘installed’ and shown in the ‘About’ screen. | Automatically clears upon configuration, or sensing normal values. |
| 310 | Moderate | Lennox communicating Furnace, air handler, EIM or harmony | There is a discharge air temperature sensor issue. | Compare discharge temperature sensor resistance to temperature/resistance charts in system component installation instruction. √ Replace discharge air sensor if failed. √ If applicable, harmony will operate in non-zone mode (all dampers open). NOTE: Confirm there is no short or open circuits in the Lennox communicating thermostat connections to any of the other components in the communication system. | Automatically clears 30 seconds after the condition is detected as recovered or after system restart. |
| 345 | Critical | Lennox communicating Air handler, EIM, or heat pump | The O relay on the system component has failed. Either the pilot relay contacts did not close or the relay coil did not energize. | Possible O relay/stage 1 failure. √ Pilot relay contacts did not close or the relay coil did not energize. √ Replace system component (device) control. √ If an error is applicable to the XC/XP 25, the outdoor control will need to be replaced. | Automatically clears after the fault recovered following reset. |
| 347 | Critical | Lennox communicating Furnace, air handler or EIM | The Y1 relay on the applicable system component has failed. Either the pilot relay contacts did not close or the relay coil did not energize. | √ System operation will stop. | Automatically clears after reset and Y1 input sensed. |
| 380 | Moderate / Critical | EIM | Interlock relay failure (IFC or AHC mode only). | √ The interlock relay is energized, but input is not sensed after three seconds. √ There will be no heating or cooling due to this alert code – moderate condition. √ De-energize interlock relay and energize after five minutes if demand is still present – critical condition. | Automatically clears after fault recovered. |
| 381 | Moderate / Critical | AIM | Interlock relay stuck (IFC or AHC modes only) | √ Interlock relay continuously sensed (with relay off). √ There is no heating and cooling operation – moderate condition. √ After 10 minutes if an event still exists it will be escalated – to critical condition. | Automatically clears 30 seconds after fault clears |
| 382 | Moderate | AIM | Relay W1 failure (IFC and AHC modes only) | W1 relay is energized but input is not sensed after three seconds. | Automatically clear when W1 relay input is sensed. |
| 418 | Moderate | EIM and Lennox communicating outdoor unit | There is a faulty W output circuit. | √ W terminal is energized while in cooling mode. √ A possible cause may be a stuck closed relay on the control, or something external to the control that is energizing the W terminal when it should not be energized. √ Disconnect any wiring from the W terminal. √ If 24VAC is still on the terminal, then it is a stuck relay. √ If 24VAC disappears, then there is a need to check any of the wires hooked up to the W terminal. | Automatically clears after fault signal is removed. |
| 419 | Critical | EIM and Lennox communicating outdoor unit | The W output has reported more than five errors | √ The system will shut down the outdoor unit. √ The W output (alert code 418) on the outdoor unit has reported more than five strikes. √ Disconnect the thermostat wire from W and verify there is no 24VAC on the W. √ If 24VAC is present, replace the outdoor control. | Automatically clear after power is recycled. |
| 420 | Critical | Lennox communicating Air handler or EIM | The heat pump defrost cycle has taken more than 20 minutes to complete | √ Defrost cycle lasts longer than 20 minutes. √ Check heat pump operation. √ This is applicable only in communicating indoor units with non-communicating heat pumps. | Automatically clear when the W1 signal is removed. |
| 421 | Critical | EIM and Lennox communicating outdoor unit | The W output terminal on the outdoor unit is not wired correctly. | The voltage sensed on the W output terminal when Y1 out is deactivated. | Automatically clears once voltage is not sensed on output for power cycled. |
| 594 |
Moderate / | EIM | Pre-coil discharge air temperature sensor problem (DFM mode only). Advances from moderate to critical after ten (10) minutes. | √ Interlock relay energized, but input not sensed after three seconds. | The alarm clears five minutes after the fault clears. |


















