FORTE MAYA 36 Inch Stainless Steel Cabinet Insert Range Hood User Manual
WARNINGS
CAUTION: Automatically Operated Device – To Reduce The Risk Of Injury Disconnect From Power Supply Before Servicing.
WARNING: To Reduce The Risk Of Fire Or Electric Shock, Do Not Use This Fan With Any Solid-State Speed Control Device.
PAY ATTENTION TO:
- A) THE NEED FOR FREQUENT CLEANING OF ALL GREASE FROM THE FAN AND FROM ALL OTHER GREASE-LADEN SURFACES;
- B) THE NEED FOR FREQUENT REMOVAL AND CLEANING OF ANY FILTER UNIT PROVIDED; AND
- C) THE NEED TO EXERCISE CARE WHEN USING CLEANING AGENTS OR DETERGENTS
WARNING: To provide protection against electric shock, connect to properly grounded outlets only.
For Residential Use Only
WARNING: GROUNDING INSTRUCTIONS
This appliance must be grounded. In the event of an electrical short circuit, grounding reduces the risk of electric shock by providing an escape wire for the electric current. This appliance is equipped with a cord having a grounding wire with a grounding plug. The plug must be plugged into an outlet that is properly installed and grounded.
WARNING – Improper grounding can result in a risk of electric shock.
Consult a qualified electrician if the grounding instructions are not completely understood, or if doubt exists as to whether the appliance is properly grounded. Do not use an extension cord. If the power supply cord is too short, have a qualified electrician install an outlet near the appliance.
WARNING – TO REDUCE THE RISK OF FIRE, USE ONLY METAL DUCTWORK.
WARNING – TO REDUCE THE RISK OF A RANGE TOP GREASE FIRE:
- a) Never leave surface units unattended at high settings. Boilovers cause smoking and greasy spillovers that may ignite. Heat oils slowly on low or medium settings.
- b) Always turn hood ON when cooking at high heat or when flambeing food (i.e. Crepes Suzette, Cherries Jubilee, Peppercorn Beef Flambe’).
- c) Clean ventilating fans frequently. Grease should not be allowed to accumulate on fan or filter.
- d) Use proper pan size. Always use cookware appropriate for the size of the surface element.
WARNING – TO REDUCE THE RISK OF INJURY TO PERSONS IN THE EVENT OF A RANGE TOP GREASE FIRE, OBSERVE THE FOLLOWING:
- a) SMOTHER FLAMES with a close-fitting lid, cookie sheet, or metal tray, then turn off the burner. BE CAREFUL TO PREVENT BURNS. If the flames do not go out immediately, EVACUATE AND CALL THE FIRE DEPARTMENT.
- b) NEVER PICK UP A FLAMING PAN – You may be burned.
- c) DO NOT USE WATER, including wet dishcloths or towels – a violent steam explosion will result.
- d) Use an extinguisher ONLY if:
- You know you have a Class ABC extinguisher, and you already know how to operate it.
- The fire is small and contained in the area where it started.
- The fire department is being called.
- You can fight the fire with your back to an exit.
SUITABLE FOR USE IN A HOUSEHOLD COOKING AREA
THE MINIMUM DISTANCE BETWEEN THE SUPPORTING SURFACE OF THE COOKING HOB AND THE LOWEST PART OF THE RANGE HOOD MUST BE NOT LESS THAN 26IN (65 CM) WITH A GAS HOB.
WARNING: TO PROVIDE PROTECTION AGAINST ELECTRIC SHOCK, CONNECT TO PROPERLY GROUNDED OUTLETS ONLY
WARNING: GROUNDING INSTRUCTIONS
This appliance must be grounded. In the event of an electrical short-circuit, grounding reduces the risk of electric shock by providing an escape wire for the electric current. This appliance is equipped with a cord having a grounding wire with a grounding plug. The plug must be plugged into an outlet that is properly installed and grounded.
WARNING – Improper grounding can result in a risk of electric shock. Consult a qualified electrician if the grounding instructions are not completely understood, or if doubt exists as to whether the appliance is properly grounded. Do not use an extension cord. If the power supply cord is too short, have a qualified electrician install an outlet near the appliance.
READ AND SAVE THESE INSTRUCTIONS
Keep these instructions in a safe place and pass them on to any future user. Read these instructions carefully before installing or using the range hood. Before connecting the appliance to the power supply make sure that the voltage (V) and frequency (Hz) listed on the data plate correspond with the household electrical supply. This data must correspond to prevent appliance damage.
Installation work and repairs should only be performed by a qualified te hnician under all applicable codes and standards. Repairs and other work by unqualified persons could be dangerous. In the event of a fault, please contact the Technical Service authorized to provide genuine parts. When contacting the Technical Service, please quote the model and the serial number of your appliance. These are shown on the data plate. Ensure that power to the appliance is OFF while the appliance is not in use.
During thunderstorms switch-off the main switch of the house electrical system or if the device is equipped with a plug, simply unplug it. Use this appliance only in the manner intended by the manufacturer and no other than exhausting cooking fumes on domestic kitchens.
The manufacturer does not accept any liability for damages caused by people, animals, or things, by installation and maintenance mistakes, or by any illegitimate use.
Observe the following essential safety instructions during the use of any electrical appliance:
- This appliance is not intended for use by persons (including children) with reduced physical, sensory or mental capabilities, or lack of experience and knowledge unless they have been given supervision or instruction concerning the use of the appliance by a person responsible for their safety. Children should be supervised to ensure that they do not play with the appliance.
- To prevent the risk of fire it is compulsory to disconnect the appliance from the power supply before cleaning or servicing the hood;
- Do not pull, take off, or twist the cable coming out from the appliance, even though this has been disconnected from the main power supply.
- Do not sprinkle or throw any water directly on the appliance.
- Do not stick any sharp tool inside the exhausting holes and into the air outlet.
- Do not take out the filters to reach the internal sides of the appliance in case the main switch of the house electrical system is not off.
- Do not flambé or grill with an open flame beneath the hood. Flames could be drawn up into the hood by the suction and the filters may ignite.
- Pay particular attention while frying. Heat oils slowly on low or medium settings.
- CAUTION: Accessible parts may become hot when used with cooking appliances.
- It is forbidden to use the hood as a support surface unless it is expressly indicated.
- Only use the fixing screws supplied with the product for installation.
USE
This range hood can be installed in ducted or non-ducted / recirculating mode of operation:
Ducted (external evacuation – Fig. 2A). Remove any charcoal filters if present. Kitchen smokes are vented to the outdoors through a flue (not provided with the hood) joined to the exhaust pipe flue connector.
Never connect an exhaust hood to an active chimney, boiler, burner exhaust pipes, dryer vent, vent flue, or room ventilating ductwork, etc.
The use of pipes and holes on the wall with a smaller diameter than the output of the motor will cause a decrease in suction performance and an increase in the noise level.
Use as short as possible tubes and with few curves. Use pipes with smooth internal surfaces.
Non-ducted / recirculating (Fig. 2B). The cooking fumes pass through activated charcoal filters (available as an accessory) to be purified and recycled into the kitchen.
INSTALLATION
Read the instruction manual before installing and/or using the hood.
The minimum distance between the supporting surface of the cooktop and the bottom of the hood must be not less than 26in (65cm) with a gas hob. If the mounting instructions of the gas hob indicate a larger distance, respect it. Do not install this hood over stoves with an upper radiating plate.
Respect all the air discharge regulations.
The air must not be discharged in a pipe used to discharge exhaust fumes produced by gas-fed equipment or fuel-fed equipment (this does not apply to recirculating hoods).
The room must be adequately ventilated when the hood is used together with other gas or fuel equipment.
The hood placed above an induction hob can cause condensation, this is a normal physical phenomenon and does not mean any malfunctioning of the product. For easy access, it is advisable to move any piece of furniture under the installation area. The hood is equipped with all the necessary fastenings for its installation, which are suitable for most surfaces. Verify that the installation surface is strong. Installation must be carried out by qualified installers according to present regulations. Before proceeding with the installation, turn the main switch of the system to “off”.
Follow the hood assembly instructions indicated below:
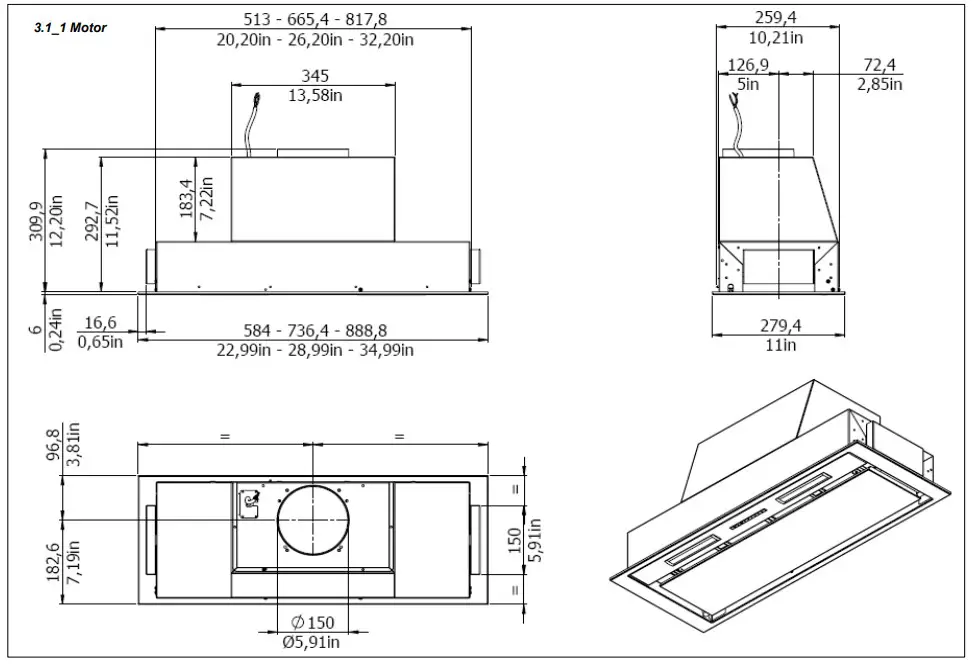
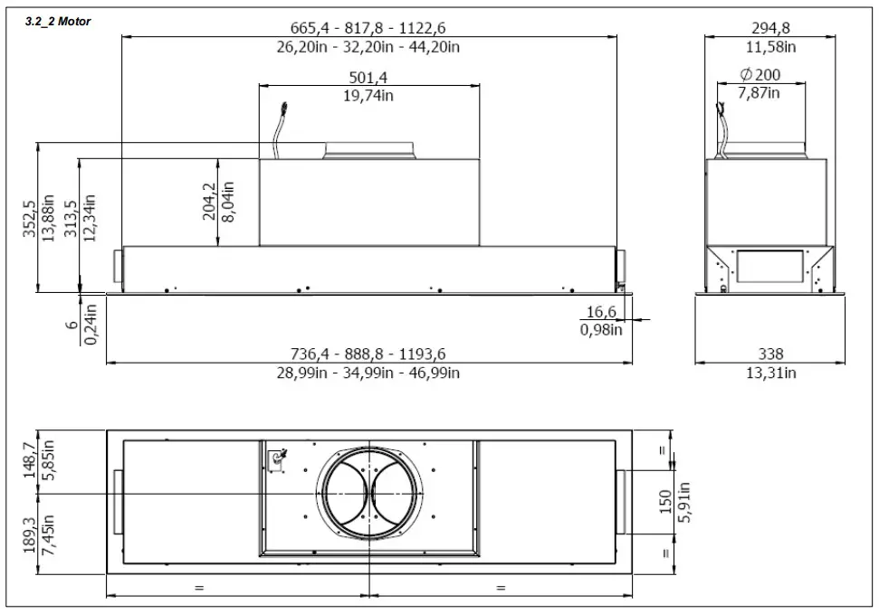
MOD. MAYA
This type of hood must be installed inside a wall unit. Prepare the cabinet to install the hood by drilling a housing hole on the wall unit, as indicated in Fig. 3.1, 3.2 and Fig. 3.3, 3.4. Fix the two anchoring brackets supplied (Fig. 3.6-F) with the screws (Fig. 3.6-G) on the two short sides of the cabinet, aligning them with the cut made (Fig. 3.5). Remove the hooks and their covers on both sides (Fig. 3.6-C). Open the removable panel (Fig. 3.7), push it upwards from the bottom, where the insertion hole is wider. Move the panel to the left so that it can be released from the right. Remove the metal filters (Fig.6.1). Insert the hood, from bottom to top, until you reach the pre-installed anchoring brackets. Insert the supplied bar (Fig. 3.6-A) in the appropriate seat (Fig.3.6-1) to hook the anchoring brackets. Do the same thing on the oppositeshort side of the hood. Slowly lower the hood until it is completely supported by the anchoring brackets. Secure the two bars from the inside with the supplied safety screws (Fig. 3.6-B). Use the screws (Fig. 3.6-E) of the internal clip to align the hood to the cabinet (Fig. 3.6-2). Electrically connect the hood. Refit the right and left covers (Fig. 3.6-C) with the appropriate screws (Fig. 3.6 D), reinstall the metal filters (Fig. 6.1) and the removable panel (Fig. 3.7). Finally, cover the side anchoring brackets by inserting the special protections supplied (Fig. 3.6-H).





ELECTRICAL CONNECTION
This equipment must be connected to a grounding plant.
Two types of electrical connection can be used:
- Using a standard plug to be connected to the power cable and inserted in a mains socket which must be accessible (so that the plug can be disconnected when servicing is carried out). Make sure that the plug is accessible also after the complete installation of the equipment.
- Using a fixed mains connection, fitting a bipolar switch, which ensures the disconnection, with an opening distance of the contacts allowing a complete disconnection on the conditions of the overvoltage III category, according to installation regulations. The ground connection (yellow-green wire) must not be interrupted.
Refer to the data plate inside the hood for the mains voltage and frequency ratings. If the power cable is damaged, it must be replaced by the manufacturer or by its service agent, or a trained professional to avoid any risk.
OPERATION
The hood has a multispeed blower. Select one of the four power levels according to the intensity of the cooking vapors. Typically, levels “1” to “3” are sufficient for normal cooking needs. It is recommended to turn the ventilation on while cooking and leave it after you have finished cooking until fumes have been eliminated.
V.1 Hood controls operation (Fig. 5.1):
- TL button: turning the light on and off.
- T1 button: switching on the hood, set the first blower power level, switching off the blower.
- T2-T3-T4 button: selection of the second, third and fourth blower power levels.
The LED of the key in function remains steady. To turn the blower off when you are not at the first level, press T1 twice.
V.2 Adjustable and delayed self-switching off
With the hood in operation select the desired power level, then keep the TL button pressed for a few seconds until all the LEDs start to flash (T1, T2, T3, T4). By pressing one of the buttons (T1, T2, T3, T4) you can program the delayed auto-off time, as follows: T1 corresponds to 5 minutes; T2 corresponds to 10 minutes; T3 corresponds to 15 minutes; T4 corresponds to 20 minutes. During the auto-off operation, the set speed can be changed. If the selection of the switch-off time corresponds to the speed set, the speed LED flashes; if the choice is different, the speed LED remains fixed. During the auto-off operation, it is possible to deactivate the delayed switch-off by keeping the hood operating, by keeping pressed the button corresponding to the selected delayed time. During the auto power-off function, it is still possible to turn off the hood by pressing T1 twice.
V.3 Maintenance warning for anti-grease filter
Every 30 hours of operation of the hood, when the hood is turned off, all the LEDs of the hood speed buttons light up for 30 seconds to alert the necessary cleaning of the metal anti-grease filter. To reset the timer simply press and hold the T4 button with the blower off. If the timer is not reset, all the LEDs will light up again each time the hood is switched off again.
V.4 Long-Life anti-odor filter (for ductless hoods)
Every 120 hours of operation of the hood, when the hood is switched off, all the LEDs of the speed buttons turn on with a flashing light for 30 sec. as a reminder of the necessity to regenerate the Long-Life filter and the cleaning of the anti-grease filters. To reset the timer, simply keep pressing the T4 button with the blower off, if the reset procedure is not carried out the alarm will keep showing every time the hood is turned on.
MAINTENANCE
Before cleaning or servicing the hood, disconnect it from the power supply
The anti-grease filters in the hood remove solid particles from the vented kitchen air (grease, dust, etc) and prevent soiling of the ventilation system. The anti-grease filters should be cleaned every 3-4 weeks.
The metallic anti-grease filters must be washed with detergent in hot water (or in the dish-washer). The filters may discolor after a few washes. This is normal and does not mean they have to be replaced. To remove the anti grease filters, open the removable panel and pull them from the handle (Fig. 6.1 and Fig. 6.2).
It is recommended to refit the metal grease filters only if they are perfectly dry.
ATTENTION: A dirty filter is a fire hazard! It is, therefore, necessary to regularly clean the filters as per instructions.
The Long-Life anti-odor filter, where present, captures all the odors present in the cooking fumes, guaranteeing pure air in your kitchen. It does not have to be replaced frequently like an ordinary activated charcoal filter, it can be regenerated every 3-4 months, or according to the frequency of use of the hood, by a normal washing cycle in the dishwasher at about 70°C without any detergent, followed by drying in the oven for 30 minutes at 70°C. To keep its efficiency high, it is recommended to replace the Long-Life filter after 6/8 regeneration cycles.
To remove the Long-Life odor filter, simply open the removable panel and remove the metal grease filter using the handle (Fig. 6.1 and Fig. 6.2). Then pull out the Long-Life odor filter from its handle (Fig. 6.1) and regenerate it. To install a new Long-Life filter, open the removable panel, remove the metal filter (Fig. 6.1 and Fig. 6.2), and replace the Long-Life filter, the filter is fixed thanks to its magnets. Reinstall the metal grease filter and close the panel.
The hood features LED light that, in addition to offering good lighting and significant energy savings, are guaranteed to last about 10 times more than traditional lights. Replacement filters and spare-parts are available through your local dealer.
To remove the remaining glue or any impurity, the cooker hood must be cleaned immediately after installation and after having removed the protective film.
The cooker hood must be cleaned frequently both internally and externally (at least once a month).
Do not allow an excessive accumulation of grease on the inner and outer surfaces of the hood.
To clean the exterior of the hood do not use either acid or basic products, or abrasive sponges.
All external surfaces can be cleaned with a mild solution of warm water and liquid dish soap applied with a soft sponge. Rinse with a damp cloth, removing all the detergent carefully, following the satin finish direction on the steel surface.
Drying is very important, especially in areas where water is particularly hard and leaves limestone.
It is not needed to remove the hood from the cabinet for ordinary and extraordinary maintenance.




















