LABOUNTY MHP 150 – 550 Mobile Hydraulic Pulverizer

PREFACE
This manual contains information for the safe operation and maintenance of the LaBounty MHP Mobile Hydraulic Pulverizer. Read the entire manual before the initial start-up of the attachment. It is important to know the correct operating procedures of the attachment and all safety precautions to prevent the possibility of property damage and personal injury. The LaBounty attachment has been designed and manufactured with high quality materials and care in workmanship. The instructions in this manual have been prepared to ensure that, when followed properly, the attachment will provide efficient and reliable service. Continuing product development and improvement may have caused changes in the attachment that are not reflected in this manual. If a question arises regarding the operation or maintenance of the attachment, contact a LaBounty dealer for the most current information available.
IMPORTANT
This operator’s manual must accompany the attachment at all times and be readily available to the operator.
MANUAL REPLACEMENT
Should this manual become damaged, lost or additional copies are required, immediately contact any authorized LaBounty dealer. You may also download a PDF copy at www.stanleyinfrastructure.com.
REGISTRATION FORM
The Warranty Registration Form must be filled out by the dealer or customer and returned to LaBounty indicating the date the machine went into service.
POSSIBLE VARIATIONS
LaBounty cannot anticipate every possible circumstance that might involve a potential hazard, as the owner’s requirements and equipment may vary. Therefore, the warnings in this publication and on the product may not be all-inclusive and you must ensure that the procedure, application, work method and operating technique is safe for you, and others, before operation.
PUBLIC NOTICE
LaBounty reserves the right to make changes and improvements to it’s products and technical literature at any time, without public notice or obligation. LaBounty also reserves the right to discontinue manufacturing any product at it’s discretion, at any time.
WARRANTY
All work or repairs to be considered for warranty reimbursement must be authorized by the LaBounty Service Department before work is started. Any alterations, modifications or repairs performed before authorization by the LaBounty Service Department will render all warranty reimbursement consideration null and void without exception. Improper operation or improperly performed maintenance may render any warranty null and void.
SAFETY
- The Safety Alert Symbol alerts you to potential personal injury hazards. Obey all safety messages that follow to avoid possible injury or death.
- Indicates an imminently hazardous situation which will result in death or serious injury.
- Indicates a potentially hazardous situation which could result in death or serious injury.
- Indicates hazards that could result in damage to the equipment or personal injury
- Indicates important procedures.
Your safety and the safety of others is a direct result of how you operate and maintain your equipment. Read and understand this manual and other safety information provided with the base machine and be sure that you understand all controls and operating instructions before attempting to operate this equipment. Failure to follow the safety precautions can result in personal injury, death or property damage.Carefully read all safety messages in this manual and on your equipment safety signs. Keep safety signs in good condition. Replace missing or damaged safety signs.Because LaBounty cannot foresee all hazardous circumstances, the precautions listed in this manual and on the equipment are not all-inclusive. If a procedure, method, tool or part is not specifically recommended by LaBounty, determine whether it is safe for you and others, and that the equipment will not be damaged or made unsafe as a result of your decision to implement it. The basic rules are summarized in this section of the manual. They also appear throughout the manual along with additional specific rules for safety and operation.
GENERAL
- If the attachment is not functioning properly, shut down the machine, follow proper Lock-out / Tag-out procedures and follow proper repair procedures.
- Remove and replace any damaged or worn parts with parts recommended by LaBounty. Use of parts that are not factory approved may cause damage or unnecessary downtime and may void the warranty.
- NEVER operate equipment without the original safety guards in place.
- DO NOT process material with the attachment over the operator’s cab. Doing so will result in severe personal injury or death from falling debris.
- DO NOT attempt to process brittle materials, such as axles and railroad rail. DO NOT process any material in a position that may propel it toward the operator, other workers, buildings or equipment.
- Clear all persons and equipment from the area of operation and machine movement. NEVER move loads over people or equipment. When viewing the operation of the attachment, maintain a safe distance of at least 75 feet (23 meters).
- NEVER approach power lines with any part of the machine. Keep clear at a minimum of 15 feet (5 meters).
- DO NOT close the attachment on a structure and reverse the excavator in an attempt to pull down material.
- Use of this tool on certain materials could generate dust potentially containing a variety of hazardous substances, such as, asbestos, silica or lead. Inhalation of dust containing these, or other hazardous substances could result in serious injury, cancer or death. Protect yourself and those around you. Research and understand the materials you are processing. Follow safety procedures and comply with all applicable national, state or provisional health and safety regulations relating to them. If appropriate, arrange for the safe disposal of the materials by a qualified person.
- Disassembly of any pin-connected attachment can be hazardous. NEVER remove any pin unless the attachment is on the ground and blocked up. Serious injury or death could result. Metal chips or debris may fly when a connecting pin is struck. Use a brass drift when striking pins and always wear protective clothing and proper eye protection. Pins may fly when struck with force to drive them in or out. Always keep people clear when removing or installing pins.
- Do not operate this, or any other equipment, under the influence of drugs or alcohol.
- DO NOT modify LaBounty equipment without factory authorization. This equipment is designed to do a specific job and alterations could result in injury.
- ALWAYS lower the boom to the ground before leaving the cab. If it is necessary to work on an attachment off the ground, securely support the machine and attachment. DO NOT support the machine on cinder blocks, hollow tiles or props that may crumble under continuous load. DO NOT rely on a cylinder to hold the attachment in the air. If a control is moved or hydraulic pressure is otherwise released, the attachment may drop. DO NOT work under a machine that is supported only by a jack.
- DO NOT weld on any structural member unless specifically authorized by LaBounty. Unauthorized welding will void the warranty, may cause structural failure and could result in personal injury.
- Keep clear of potential pinch points, including the moving upper jaw, cylinder connections, bucket linkages and other moving parts.
- Before operating the attachment, read and observe all safety instructions in the Operation & Maintenance manual. If you are unfamiliar with any operation or maintenance procedure, seek instruction before proceeding.
- Inspect the attachment daily. Do not operate a poorly maintained or damaged attachment.
- Never operate a machine if an unsafe condition exists. Attach a “Do Not Operate” tag to the machine.
BASE MACHINE
- Ensure that the cab is equipped with the proper safety guards for LaBounty applications. The cab MUST be equipped with an approved Falling Object Protection Structure (FOPS) and cab guarding. The FOPS must meet the requirements of SAE standard J1356. A transparent, shatter-resistant shield covering the front of the cab, is also required. Contact your base machine equipment dealer or manufacturer for more information on the availability of FOPS and cab guarding. Lack of proper FOPS and guards may result in injury or death.
- Avoid tipping. The attachment will alter the lift capacities of the base machine. DO NOT overload the excavator or serious injury could result. Lift capacities will vary if the base machine is not on level ground. Lifting incorrectly can cause severe injury or machine damage. Use the recommended excavator counterweight. Use short slings and lift the load only as high as necessary.
- DO NOT allow riders on the machine. Riders are subject to serious injuries, such as being struck by foreign objects or being thrown off the machine. Riders also distract and obstruct the operator, resulting in the machine being operated in an unsafe manner. NEVER use the attachment as a work platform or personnel carrier.
- Check ground conditions before operating. Avoid unstable or slippery areas and position the base machine on firm, level ground. If level ground is not possible, position the base machine to use the attachment to the front or back of the carrier. Avoid working over the side of the base machine.
HYDRAULIC
- Hydraulic oil becomes hot during operation. DO NOT come in contact with hot hydraulic oil as it could cause severe burns. Wear adequate protective clothing and safety equipment.
- DO NOT tamper with hydraulic lines or components while they are pressurized. Escaping fluid under pressure can penetrate the skin, causing serious injury. Keep hands and body away from pinholes and nozzles which eject fluids under high pressure. Use a piece of cardboard to search for leaks. If ANY fluid is injected into the skin, seek immediate medical assistance.
PPE
ALWAYS wear close-fitting clothing and safety equipment appropriate to the job. Safety equipment should be worn at all times when viewing, operating or maintaining the attachment. Safety equipment includes eye protection, hard hat, steel toe shoes, gloves, hearing protection and respirator.
DECALS

TERMS

INSTALLATION
ATTACH TO EXCAVATOR
WARNING Use only approved rigging hardware rated for loads greater than the weight of the attachment. Lifting points are for moving the attachment only. Do not lift other objects or use the attachment in a cable-hung application.

- 1. Locate flat, hard ground (e.g., concrete floor) for installation. Lift and place the attachment on the ground using the lifting points.
- Ensure the attachment bracket is positioned vertically.
- Remove the excavator bucket. Follow the manufacturer’s recommended procedure
- Clean the inside surface of the attachment bracket and all attachment pins. Remove all dirt and debris.
- Bring the excavator in position, carefully lining up the stick tip with the stick connection on the attachment bracket.
- Pin the excavator stick to the stick connection.
- Carefully extend the excavator bucket cylinder to move the bucket linkage. Position the link into the attachment bracket linkage connection.
- Pin the linkage connection to the attachment bracket.

HYDRAULIC INSTALLATION
| Model Jaw Cycle Circuit (Max) Connection | ||
| MHP80 | 47 GPM (180 LPM) 4060 PSI (280 Bar) | -12 FFORX |
| MHP150 | 52 GPM (200 LPM) 4495 PSI (310 BAR) |
1” SAE 6000 |
| MHP220 | 74 GPM (280 LPM) 5075 PSI (350 BAR) | |
| MHP300 | 79 GPM (300 LPM) 5075 PSI (350 BAR) | |
| MHP390 | 92 GPM (350 LPM) 5075 PSI (350 BAR) | |
| MHP550 | 105.5 GPM (500 LPM) 5075 PSI (350 BAR) | 1 1/4” SAE |
- Turn off the excavator and relieve any trapped pressure in the hydraulic system. Lock-out / Tag-out the hydraulic power source.
- Clean the excavator hydraulic hose fittings.
- Route each hydraulic hose so that they will not rub on the attachment bracket or will otherwise become damaged.
- Connect the excavator hoses to the hydraulic connections located on each side of the attachment head. Each hydraulic port is labeled.|
Label Function EXT Cylinder extend. Closes the jaw. RET Cylinder retract. Opens the jaw. 
- Torque all hydraulic fittings to values shown in “Inspect / Torque Bolts” on page 25.
WARNING Do not check for hydraulic leaks with your hands. Hydraulic oil could inject into the skin. Seek immediate medical attention if an injection injury occurs. - Visually check for hydraulic oil leaks or hydraulic hose interference.
STORING THE ATTACHMENT
- Lubricate all parts. See “Lubrication” on page 15.
- Secure the attachment on two wooden supports on the ground, orienting it horizontally.
- Turn off the excavator and relieve any trapped pressure in the hydraulic system. Lock-out / Tag-out the hydraulic power source.
- Remove and plug all hydraulic lines.
- Store the attachment in a protected place where they will be isolated from shock, stress, damage and corrosive substances.
Note: Do not store the attachment in a high humidity environment or in an environment with extreme temperature shifts.
OPERATION
BEFORE YOU START
Know Your Safety Program
- Read and understand this manual and the base machine manual.
- Know the employer’s safety rules. Consult your foreman for instructions and safety equipment.
- Learn the traffic rules at the work site. Know the hand signals used on the job and who is responsible for signaling. Take signals from only ONE person.
- Wear personal protection equipment. This includes eye protection, hard hat, steel toe shoes, gloves, hearing protection and respirator.
- Learn and test the function of all controls. If malfunctions are found, shut the machine down and report the malfunction for repair.
- Be familiar with safety devices, indicators, warning devices and caution instructions. They will alert you to conditions that are hazardous.
- Know the clearances in the work area. Daily Safety Checks
- Ensure all decals are installed and legible. Contact LaBounty for replacements as required.
- Have a DAILY safety dialog with all workers. Inform them of any abnormal work that is planned. Remind them of the safe working distance.
- Clear the area. ALWAYS look out for others. In any work area, people constitute a serious safety hazard. Before operating, walk around the machine to ensure no workers are next to, under or on it. Warn nearby workers that you are starting up. DO NOT start up until they are out of danger.
- Check the location of cables, gas lines and water mains before operation. Ensure work site footing has sufficient strength to support the machine. When working close to an excavation, position machine with the propel motors at the rear.
- Keep bystanders clear, especially before moving the boom, swinging the upper structure, or traveling. ALWAYS be alert for bystanders in or near the operating area.
SAFETY DEVICES
- Seat belts
- Safety decals
- Flags and flares
- Signs and other markings
- Falling Objects Protective Structures (FOPS)
- Canopies
- Shields and guards
- Barricades
- Warning lights
- Visual or audible warning devices
General Rules For Safe Operation
- KNOW the capacity of the excavator and it’s attachments. DO NOT overload or serious injury could result. The attachment may have altered the machine’s lift capabilities.
- This attachment is for processing materials. DO NOT use for unapproved purposes.
- DO NOT continuously process oversized materials by forcing them into the jaw. This will shorten the life of the attachment.
- If attachment stalls, scale back the amount of material being processed at one time. Overloading can cause overheating or damage to the hydraulic system.
- Cycle the cylinder completely when processing. Fully cycling will allow hydraulic fluid to circulate and prevents overheating.
- Maintain a safe distance.
- NEVER leave the attachment suspended or pass it over people, occupied vehicles or buildings.
- When working in confined spaces, keep watch on exposed parts, such as cylinder rods and hoses, to avoid damage.
- Maintain at least 50 feet (15 meters) between the attachment and any nearby power lines.
- ALWAYS lower the attachment to the ground and turn the base machine off when leaving the machine unattended.
- DO NOT close the jaws on a structure and reverse the excavator in an attempt to pull down material. This is dangerous and will damage the excavator and the attachment.
- Avoid collision of the boom or jaws, especially when working with limited visibility or inside buildings. Know the height and reach of the attachment during operation, transport and when swinging the excavator.
- DO NOT alter factory preset hydraulics. This may void the warranty.
- DO NOT shear high tensile steel, such as railroad rail, spring steel, axles and some types of wire. Jaw damage will result. This type of material breaks when processed and can become a projectile which could cause injury or death. MHP 150 – 550 Mobile Hydraulic Pulverizer Operation & Maintenance Manual | 11
- Use attachment rotation for positioning only. Do not use if for bending, breaking or prying.
- DO NOT use attachment as a jack hammer or wrecking ball.
- DO NOT attempt to shear material stuck through the lower jaw.
- Before shearing thin material, ensure the blades are sharp and properly adjusted. Thin material may jam the blades.
- DO NOT apply excavator force at the ends of the upper shear in an attempt to un-jam the jaws or cut material that is too large for the shear.
TECHNICAL SPECIFICATIONS
| Model Weight Jaw Opening Jaw Width Reach Minimum Excavator Weight – 3rd Member | |||||
| MHP80 | 1,750 Lbs 800 Kg | 20.9 In 530 mm | 14.4 In 370 mm | 5.2 ft 1.6 m | 13,200 Lbs 6 mTons |
| MHP150 | 3,000 Lbs 1,400 Kg | 27.6 In 700 mm | 18.1 In 460 mm | 6.1 ft 1.8 m | 28,600 Lbs 13 mTons |
| MHP220 | 4,680 Lbs 2,100 Kg | 32.5 In 830 mm | 21.3 In 540 mm | 7.1 ft 2.2 m | 39,600 Lbs 18 mTons |
| MHP300 | 6,330 Lbs 2,900 Kg | 34.3 In 870 mm | 26.4 In 670 mm | 7.4 ft 2.3 m | 55,000 Lbs 25 mTons |
| MHP390 | 7,740 Lbs 3,500 Kg | 37.4 In 950 mm | 29.1 In 740 mm | 7.9 ft 2.4 m | 72,600 Lbs 33 mTons |
| MHP550 | 10,680 Lbs 4,800 Kg | 44.5 In 1130 mm | 30 In 760 mm | 8.9 ft 2.7 m | 99,000 Lbs 45 mTons |
CONTROLS
| Control Attachment Function | |
| Bucket Curl | Attachment Curl |
| Bucket Dump | Attachment Out |
| Auxiliary Cylinder Circuit | Jaw Open/Close |
BLEED THE ATTACHMENT HYDRAULIC CIRCUIT
Air must be bled out of the hydraulic circuit prior to operation. Air in the hydraulic system leads to cavitation, oxidation of the oil and excessive heat. These conditions promote hydraulic oil break-down, contamination, noise, sluggish operation, reduced component life and potential cylinder damage.
- Start with the attachment in the vertical position.
- Set the excavator at idle speed.
- Slowly open the jaws until a noticeable change in tone of the excavator is heard, indicating a full cylinder. Release the controls and do not continue to apply full operating pressure to the cylinder.
- Slowly close the jaws until the cylinder rod is extended approximately 1/4 stroke.
- Open the jaws to retract the cylinder all the way.
- Repeat steps 3 and 4. Extend the cylinder a quarter stroke more each time, until you reach full stroke.
- Slowly cycle back and forth, at least five times, to full stroke. Be careful not to apply full operating pressure to the cylinder at this time.
- Check the base machine hydraulic fluid level and fill if necessary.
- Slowly extend and retract the excavator cylinder to it’s limits. Check for interference between the attachment and the excavator boom or stick. Check the hydraulic lines that connect to the attachment. Ensure they are not rubbing or becoming damaged in any way. Contact your dealer immediately if interference occurs.
MAINTENANCE
8 HOURS INSPECTION CHECKLIST
Lubrication
- Lubricate as shown on page 15.
- Inspect the grease fittings and replace if damaged.
Inspect Hardware
- Inspect all hardware on the attachment. Ensure they are properly torqued and are not damaged (See “Inspect / Torque Bolts” on page 16).
- Inspect the teeth and blade bolts. Ensure they are properly torqued and are not damaged (See “Inspect / Torque Bolts” on page 16).
Inspect Blades
Inspect blade wear. Rotate or replace if rounded more than 0.25” (See “Blade Maintenance” on page 16).
DAILY INSPECTION CHECKLIST
Visual Inspection
- Ensure the identification plate is present and legible. Replace if necessary.
- Inspect all tool decals and ensure they are legible. Replace if missing or illegible. Contact LaBounty customer service for replacements.
- Visually inspect the structure of the attachment for damage. If damage is found, do not use the attachment and repair immediately.
- Inspect the anti-wear material and replace if necessary. See “Build up & Hardsurfacing” on page 17.
- Inspect all welds and ensure there are no cracks or damage. If damage is found, do not use the attachment and repair immediately.
- Visually inspect all hydraulic hoses and connections. Ensure they are not damaged.
Inspect Hardware
- Check the play between the pins and bushings on the attachment bracket. If the play is greater than 0.6 mm, replace the bushings and pins.
- Check all hydraulic connection hardware. Ensure they are properly torqued and are not damaged (see “Inspect / Torque Bolts” on page 16).
LUBRICATION
Recommended Grease Types
Only use grease that is acid-free, does not contain resins, is not hygroscopic, resists aging and has a temperature range suitable for the application. After underwater use carefully clean the pins and bushings. Eliminate all trace of oxidation before lubricating again.
| Recommended Grease | ||
| Brand Grease Name Operating Temperature | ||
| BP | Energrease LS-EP 2 | -4°F – 248°F (-20°C – 120°C) |
| Castrol | Spheerol EPL 2 | -22°F – 266°F (-30° C – 130° C) |
| ELF | EPEXA 2 | -22°F – 266°F (-30° C – 130° C) |
| ESSO | Beacon EP2 | -22°F – 266°F (-30° C – 130° C) |
| IP | Athesia EP 2 | -13°F – 212°F (-25° C – 100° C) |
| Mobil | Mobilux EP 2 | -22°F – 266°F (-30° C – 130° C) |
| Kluber | Centoplex 2 EP | -22°F – 266°F (-30° C – 130° C) |
| Shell | Shell Alvania EP (LF) 2 | -22°F – 266°F (-30° C – 130° C) |
Grease Fitting Locations
Note: Grease fittings are indicated by a yellow “Grease” sticker on the attachment.

INSPECT / TORQUE BOLTS
| General Fastener Torque Table | ||||
| Size 6S 8.8 – (8G) Class 10.9 Class 12.9 | ||||
| M5 | 4 Ft. Lbs. (5.10 Nm) | 4 Ft. Lbs. (5.98 Nm) | 6 Ft. Lbs. (8.5 Nm) | 8 Ft. Lbs. (10.2 Nm) |
| M6 | 6 Ft. Lbs. (8.73 Nm) | 8 Ft. Lbs. (10.3 Nm) | 11 Ft. Lbs. (14.7 Nm) | 13 Ft. Lbs. (17.6 Nm) |
| M8 | 16 Ft. Lbs. (21.58 Nm) | 19 Ft. Lbs. (25.5 Nm) | 26 Ft. Lbs. (35.3 Nm) | 31 Ft. Lbs. (42 Nm) |
| M10 | 31 Ft. Lbs. (42.2 Nm) | 37 Ft. Lbs. (50 Nm) | 52 Ft. Lbs. (70.6 Nm) | 63 Ft. Lbs. (85.5 Nm) |
| M12 | 54 Ft. Lbs. (73.6 Nm) | 64 Ft. Lbs. (87.3 Nm) | 90 Ft. Lbs. (122.6 Nm) | 108 Ft. Lbs. (147 Nm) |
| M14 | 86 Ft. Lbs. (116.7Nm) | 102 Ft. Lbs. (138.3 Nm) | 143 Ft. Lbs. (194.2 Nm) | 174 Ft. Lbs. (235.5 Nm) |
| M16 | 132 Ft. Lbs. (178.5 Nm) | 156 Ft. Lbs. (210.9 Nm) | 221 Ft. Lbs. (299.2 Nm) | 264 Ft. Lbs. (358 Nm) |
| M18 | 181 Ft. Lbs. (245 Nm) | 213 Ft. Lbs. (289.4 Nm) | 304 Ft. Lbs. (412 Nm) | 362 Ft. Lbs. (490.5 Nm) |
| M20 | 257 Ft. Lbs. (348.5 Nm) | 304 Ft. Lbs. (412 Nm) | 427 Ft. Lbs. (578.8 Nm) | 514 Ft. Lbs. (696.5 Nm) |
| M22 | 347 Ft. Lbs. (471 Nm) | 412 Ft. Lbs. (559.2 Nm) | 579 Ft. Lbs. (784.8 Nm) | 695 Ft. Lbs. (942 Nm) |
| M24 | 441 Ft. Lbs. (598.5 Nm) | 525 Ft. Lbs. (711.2 Nm) | 738 Ft. Lbs. (1000.5 Nm) | 883 Ft. Lbs. (1197 Nm) |
| M27 | 655 Ft. Lbs. (888 Nm) | 774 Ft. Lbs. (1049.7 Nm) | 1092 Ft. Lbs. (1481 Nm) | 1310 Ft. Lbs. (1776 Nm) |
| M30 | 890 Ft. Lbs. (1206.5 Nm) | 1049 Ft. Lbs. (1422.4 Nm) | 1483 Ft. Lbs. (2011 Nm) | 1772 Ft. Lbs. (2403 Nm) |
| M33 | 1201 Ft. Lbs. (1628.5 Nm) | 1425 Ft. Lbs. (1932.6 Nm) | 2004 Ft. Lbs. (2717 Nm) | 2410 Ft. Lbs. (3267 Nm) |
BLADE MAINTENANCE
Before performing blade maintenance, place the attachment on the ground, so that the part being maintained is closest to the ground. When performing maintenance on the upper jaw curl the attachment under the stick so that the upper jaw is on the ground.
Blade Rotation
Each rebar blade has two edges. Flip the blade when the cutting edge is worn to a .25” radius. Replace when both edges are worn.

- Remove the blade bolts and remove the blade from the blade seat.
Note: Bolts may need to be removed by metal arc gouging. - Ensure the blade seat is clean.
- Flip the blade or install a new blade.
- Insert the blade bolts and torque as specified in “Inspect / Torque Bolts” on page 16.
TOOTH MAINTENANCE
When the jaw teeth are worn or cracking, performance is decreased and the teeth need to be replaced.

- Locate flat, hard ground and place the attachment on the ground.
Note: Work only on the jaw closest to the ground, with the tooth facing up. - Remove the hardware that holds the tooth in the jaw.
- Remove the tooth from the receptacle.
- Insert a new tooth into the receptacle.
- Insert hardware to secure the tooth. Torque as specified in “Inspect / Torque Bolts” on page 16.
BUILD UP & HARDSURFACING
Choose a build up material that meets the following classifications.
Shielded Metal Arc Welding – Stick Electrodes
- E7018
- E8018-C3
Gas Metal Arc Welding – Solid Wire Electrodes
ER70S-6
Gas Metal Arc Welding – Flux Cored Electrodes
- E71T-1
- E71T-1M
- E80T1-Ni1
- E80T1-Ni1M
Gas Metal Arc Welding – Metal Powder Cored Electrodes
- E70C-6M
- E80C-Ni1
Hardsurfacing Recommendations
Hardsurfacing must be inspected and maintained. For hardsurfacing, LaBounty recommends;
Guidelines
- Turn off the carrier before performing hardsurfacing.
- Connect the ground pole of the welder to the part to be welded, as close as possible to the welding area. The ground pole must be connected so that the current does not cross the hinges or the hydraulic cylinder. If the attachment is mounted on the operation machine during welding, follow the instructions in the base machine manual to avoid damaging it’s battery or electronics.
- Carefully clean the area where material is to be added.
- Preheat to 302°F – 392°F (150°C – 200°C) and check the temperature frequently.
- Do not place more than two layers.
- Apply material with the grain of the parent material.
- Grind the ends of the fill material beads.
- After welding, cover the area with a heat blanket and allow to cool slowly.
- Carefully follow the application standards recommended by the man manufacturer of the fill wire.
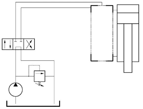
HYDRAULIC SCHEMATIC

Additional copies of this manual are available by contacting your dealer or the LaBounty parts department, and requesting a CE Operation & Maintenance manual. You must include the attachment model number and serial number.
LaBounty | 1538 Hwy 2 | Two Harbors, MN 55616 | 1-800-522-5059 | www.stanleyinfrastructure.com/brands/labounty



















