FORNO FFFFD1948-24S 11.1 CU.FT Bottom Mount Refrigerator Stainless Steel with Side Grip Handle
Instruction Manual

Model
FFFFD1948-24S
To ensure proper use of this appliance and your safety, please read the following instructions before operating this appliance.
Customer Care
Thank you for purchasing a FORNO product. Please read the entire instruction manual before operating your new appliance for the first time. Whether you are an occasional user or an expert, it will be beneficial to familiarize yourself with the safety practices, features, operation, and care recommendations of your appliance. Both the model and serial number are listed on the product. For warranty purposes, you will also need the date of purchase. Record this information below for future reference.
SERVICE INFORMATION
Model Number:
Use these numbers in any correspondence
or service calls concerning your appliance.
Serial Number:
If you received a damaged appliance, immediately contact the dealer (or builder) that sold you the appliance
Date of Purchase:
Purchase Address & Phone:
Save time and money. Before you call for service, check the Troubleshoong Guide. It lists the causes of minor operating problems that you can correct yourself.
SERVICE IN CANADA:
Keep the instruction manual handy to answer your questions. If you don’t understand something
If you need more assistance, please call our Customer Service: at 1-800-561-7265 Or email: [email protected]
Digital instruction manual can be downloaded from www.forno.ca
This product is for household use only!
Please read these instructions carefully before the first use of this product and save this manual for your future reference.
IMPORTANT SAFETY INSTRUCTIONS
- This appliance can be used by children aged 8 years or older and persons with reduced physical, sensory or mental capabilities or lack of experience and knowledge they have been given instructions concerning the use of the appliance and understand the hazards involved.
Children shall not play with the appliance. Cleaning and user maintenance should never be performed by children without supervision. - This appliance is intended for use in household and similar applications such as:
– Staff kitchen areas in shops, offices, and other working environments
– Farmhouses and by clients in hotels, motels, and other residential type environments
– Bed and breakfast type environments
– Catering and similar non-retail applications - Warning: Do not use mechanical devices or other means to accelerate the defrosting process
- Warning: DO NOT use any electrical appliances in the unit.
- Warning: Never try to use this appliance for applications or in a way that is not described in the instructions, otherwise severe hazards may occur.
- Warning: If the supply cord is damaged, or if the appliance malfunctions or has been damaged in any manner, please return the unit to the manufacturer, its authorized service center for examination, repair, or adjustment in order to avoid a hazard.
- WARNING: Keep ventilation openings, (in the appliance enclosure or in the built-in structure), clear of obstruction.
- WARNING: Do not damage the refrigerant circuit.
- WARNING: Do not use electrical appliances inside the food storage compartments of the appliance.
- Do not use the appliance in a dusty environment or in an explosive and inflammable atmosphere (inflammable gases, vapors, vapors from organic solvents, etc.)
- Do not store explosive substances such as aerosol cans with a flammable propellant in this appliance.
- Do not pour water directly into the freezer, as this may cause corrosion or deterioration of the insulation.
- Insert the plug into a single grounded socket. Make sure to place the plug all the way into the socket when connecting your appliance.
- To prevent possible harm to the environment or human health from uncontrolled waste disposal, recycle this appliance responsibly to promote the sustainable reuse of material resources. Disposal should only be done at public collection points.
- The appliance should be placed on a horizontal floor kept freely ventilated. Do not try to replace or repair any components by yourself, ask the repair service for help if necessary.
- Always handle the appliance to avoid any damage.
- Caution: Do not connect the grounding wire to a water or gas pipe.
- Absolutely never store strong bases, strong acids, organic solvents, and corrosive goods together with food.
- Please refer to the “Troubleshooting” section when having problems with the unit. Do not attempt to solve the problem on your own, please refer to certified technicians only.
- For information on installation, operation, maintenance, and disposal of the appliance refer to the following parts of the manual.
- Do not look directly into the LED light located in the refrigerator compartment with optical instruments to avoid eye injuries.
DESCRIPTION OF THE APPLIANCE

| 1. Control panel | 10. Lower freezer drawer |
| 2. LED light | 11. Leg front (left) |
| 3. Glass shelf | 12. Refrigerator gasket |
| 4. Chiller box cover | 13. Upper rack |
| 5. Chiller box | 14. Lower rack |
| 6. Vegetable box cover | 15. Door refrigerator |
| 7. Vegetable box | 16. Freezer gasket |
| 8. Upper freezer drawer | 17. Freezer door |
| 9. Middle freezer drawer | 18. Front leg (right) |
TRANSPORTATION AND HANDLING
When transportation, hold the base and lift the refrigerator carefully at an angle of fewer than 45 degrees. Never hold the door handle as support. Never place it upside down or horizontally. Push the refrigerator onto its back and put it in place with the roller feet.
INSTALLATION
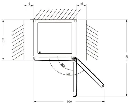
To fix stably, the appliance must be placed on a flat and solid surface. It should not be laid on any soft material. It is necessary to maintain good ventilation around the appliance for the dissipation of heat. For this reason, sufficient clear space should be available around the refrigerator. Suggest: It is recommended to maintain at least 15mm of pace for both sides of the wall and clear space in front to allow the doors to open at 135°.

Choose a location where there is no heat source. Keep the refrigerator away from direct sunlight or any other heat-producing appliance. Choose a dry and well-ventilated space where there is no corrosive air.
TEST
Clean the parts of the refrigerator with lukewarm water on a soft cloth or with a neutral detergent and with clear water, then wipe them dry. Notes: Electrical parts of the refrigerator can only be wiped with a dry cloth. Close the door and wait 30 minutes. If the temperature in the freezer compartment decreases significantly, this indicates that the refrigerator system works well. When the refrigerator operates for a certain amount of time, the temperature controller will automatically set the temperature in conditions where the door is opened too often. If the above steps are properly followed, the trial operations have been completed. The refrigerator works normally.
DISPLAY CONTROLS
Use your appliance with the following controls, your appliance has the corresponding functions and modes as the control panels shown in the pictures below. When the appliance is powered on for the first time, the backlight of the icons on the display panel starts working. If no buttons have been pressed and the doors are closed, the backlight will turn off.

Sabbath control mode steps:
- When powering on for the first time, after running the refrigerator for 10 minutes, press and hold the freezer and fridge keys at the same time for 5 seconds to enter Sabbath mode.
- At any other time, press and hold the freezer and fridge keys at the same time for 5 seconds to enter Sabbath mode.
- After entering Sabbath control mode, press and hold the freezer and fridge key at the same time for 5 seconds to exit and return to normal control mode.

controlling the temperature
We recommend that when you start your refrigerator for the first time, the temperature for the refrigerator is set to 4°C and the freezer to -18°C. If you want to change the temperature, follow the instructions below.
Caution! When you set a temperature, you set an average temperature for the whole refrigerator cabinet. The temperature inside each compartment may vary from the temperature values displayed on the panel, depending on how much food you store and where you place them. Ambient temperature may also affect the actual temperature inside the appliance.
Fridge

Press “Fridge” to set the fridge temperature between 2°C and 8°C as needed, and the control panel will display corresponding values according to the following sequence.
Freezer

Press “Freezer” to set the freezer temperature between -16°C and -24°C as needed, and the control panel will display the corresponding value according to the following sequence.
Mode selection
Press
or
for 3 seconds to set the function of Super Freeze or Holiday, and the control panel will display the corresponding value accordingly.
Super Freeze
Super Freeze will quickly lower the temperature within the freezer so food will freeze the vitamins and nutrients inside fresh foods and keep food fresh longer.
- If the maximum amount of food is to be frozen, please wait approximately 24 hours.
- Super Freeze automatically switches off after 26 hours and the freezer temperature setting displays -25°C.
- When the Super Freeze function is on, you can switch off the Super Freeze function by pressing “
” or “Freezer” button, and the freezer temperature setting will revert back to the previous setting.
Holiday
If you are going to be away for a long period of time, you can activate this function by pressing a
button to set the function
.
When the holiday function is activated, the temperature of the refrigerator is automatically switched to 15°C to minimize energy consumption.
Important! Do not store any food in the fridge during this time.
When the holiday function is on, you can switch it off by pressing “
” ” or “Fridge” button, and the refrigerator temperature setting will revert back to the previous setting.
Door Alarm
When the door of the fridge or freezer is open for over 2 minutes, the door alarm will sound. In the case of a door alarm, the buzzer will sound 1 time every 1 minute and will stop sounding automatically after 10 minutes.
To save energy, please avoid keeping the door open for a long time when using the appliance. The door alarm can also be cleared by closing the fridge door.
FOOD STORAGE
How to Use the Freezer Compartment?
- Put fresh food, such as fish or meat, into the freezer to preserve their taste and nutrient content.
- Wrapped food has to be frozen in aluminum or cellophane sheet or in airtight plastic boxes.
- Do not put fresh food directly in contact with already-frozen food.
- If you buy frozen food, bring it home and place it in the freezer as quickly as possible.
- Never re-freeze a defrosted product.
- Do not store liquids in bottles or cans (besides high-percentage spirits), especially carbonated beverages in the freezer, as these will burst during freezing
- The storage time for the respective food (especially for commercially frozen food) is recommended by the food manufacturer should not be exceeded. Only take the required amount of food out of the freezer.
- During defrosting or maintenance and care, the temperature of frozen food could rise and the storage life could reduce
How to Use the Refrigerator Compartment?
- Eggs have to be placed in the egg compartment, bottles in the bottle compartment, etc.
- Fruits and vegetables have to be placed in the salad crisper.
- Jars have to be placed in the tubs inside the door of the refrigerator.
- Other perishable foods, or foods that can release odors into the refrigerator, must be packed separately.
Placement of Food
- Do not store too much food in the refrigerator, this would result in a loss of cold air.
- Food has to be wrapped separately in aluminum sheets, cellophane sheets, or in airtight plastic boxes.
- Hot food cannot be put in the refrigerator or in the freezer until they have reached the ambient temperature, or this will increase electrical consumption.
- Never place vegetables and fruits into freezer compartments as they will be unfit for consumption once defrosted.
GENERAL INSTRUCTIONS FOR CARE AND MAINTENANCE
The refrigerator should be cleaned once a month. Before cleaning, the electrical plug must be removed from the power supply.
Wipe the inside and the outside of the refrigerator with a wet soft cloth.
If it’s too dirty, clean with a soft cloth with neutral detergent and then remove the moisture with a dry cloth.
If you leave the refrigerator idle for a long time, proceed as follows:
- Disconnect the refrigerator from the electrical power supply.
- Remove all food.
- Clean and dry the inside as instructed in the directions given above for cleaning.
- Leave the doors open to prevent any unpleasant smells while the refrigerator is not being used.
Cleaning
When cleaning the refrigerator, the electrical plug must be removed from the power supply.
Use water or a non-abrasive detergent on a soft cloth and remove the moisture with a dry soft cloth. Remember to clear the defrost drain at the back just above the glass cover.
Replacing the LED light:
Warning: The LED light must not be replaced by the user! If the LED light is damaged, contact the customer helpline for assistance.
REVERSING THE DOOR
The side on which the door opens can be changed, from the right side (as supplied) to the left side, if needed for the installation site.
Warning! When reversing the door, the appliance must not be connected to the main. Ensure that the plug is removed from the main socket.
Tools you will need

Parts you will need
![]() | ![]() | ![]() |
| left upper hinge cover | doorstop left ref | left ref door stop, |
Note: Before you start, lay the refrigerator on its back in order to gain access to the base, you should rest it on soft foam packaging or similar material to avoid damaging the backboard of the refrigerator. To reverse the door, the following steps are generally recommended:
- Stand the refrigerator upright.
Open the upper door to take out all door racks (to avoid damaging the racks) and then close the door. - Open part 1 on top of the upper door and then disconnect the electrical connector.
take down part 2 and put it back into the plastic bag.
- Remove part 1, then remove the screws 2 and put them back into the plastic bag.
Note: Please hold the upper door by hand during step 2 to prevent the door from dropping. - Remove the upper door and place it on a smooth surface with its panel upwards. Loose screws3, detach part 2 and part 1 then install part 1 and another part 2 (in the plastic bag) to the left side with screws 3. Put part 2 detached back into the plastic bag.

- Switch the wire from the slot of the refrigerator body.

- Loose screws are used to attach and remove the middle hinge. Then remove the lower door.

- Place the lower door on a smooth surface with its panel upwards. Loosen screws3, detach part CD and part 2 Turn part 1 by180° and then install part 1 and part 2 to the corresponding position on the left side together with screws 3.

- Change screw hole covers on a middle cover plate from left to right (as shown in figure below).

- Place refrigerator flat, remove part 2 and then loose screws 4 Remove part 1 and part 3.

- Screw out the lower hinge, change it to the nearest hole site, and then screw in and mount the washer.
- Remount in step 9, change part 1 and part 2 to the left and then attach them with screws 4. Change part 3 to the right, and install it.

- Move the lower door and adjust its position to align the lower hole site and upper hinge axis. Turn the middle hinge by 180°, change the washer on the axis to the upper side, adjust the middle hinge to the appropriate position and then install it.

- Screw out the upper hinge axis, turn the upper hinge over and fix axis on it. Then place it on the side for use.

- Move the upper door to the appropriate position, adjust part 2 and upper door, Move the connecting wire 3 in the slot of the upper hinge (left) and install part 1 onto the upper hinge, and then fix part 2 with screws 4 Lastly, mount part 3. (Please hold the upper door by hand when installing)
1. left upper hinge cover (which is in the plastic bag)
2. upper hinge part
3. connecting wire
4. Self-tapping-screws
5. top cover B - Connect the electrical connector 1 in accordance with step 1.

- Reverse part 1 by 180°and install it onto the right corner of the upper door and then mount part 2. (both of which are removed in step 1)


Door handle installation
TROUBLESHOOTING
If your appliance shows other symptoms than those described below, please call your local authorized service center.
| Symptom | Cause | Solution |
| The appliance does not work | There is no power supply | Check the plug connecting it to other appliances, or verify that the appliance is connected to the plug |
| The fuse doesn’t work | Replace the fuse | |
| The appliance makes a lot of noise | The appliance is too close to the wall, or it is not stable, or the accessories inside the The refrigerator is placed in the wrong position | Stabilize the base of the refrigerator by adjusting the position of the feet, taking away the appliance from the wall, correctly placing the accessories inside the refrigerator |
| The appliance doesn’t cool enough | The door is opened too often or was left open for a long time | Close the door and do not open it too frequently |
| The refrigerator is too close to the wall | Pull the appliance away from the wall to encourage ventilation | |
| The refrigerator is too full | Remove food from the appliance | |
| The temperature is badly adjusted | Turn the temperature regulation knob temperature to “3” or more | |
| There are smells in the appliance | Expired food inside the refrigerator | Throw away expired food and wrapping |
| The inside of the appliance needs to be cleaned | Clean the inside of the refrigerator |
The following symptoms are not indicative of a breakdown:
- The noise produced by the cooling liquid circulating inside pipes can be heard, this is normal.
- Condensation on the outside surface of the appliance during wet seasons does not indicate a problem with the appliance; you just need to wipe it with a dry soft cloth.
- The compressor and the condenser can warm more during periods of strong heat.
- The frame of the door is a bit hot; it means that the condenser is working to evacuate the humidity in the air.
In the event of a power outage, food should remain safely cold for about 16 hours. Follow these tips during a prolonged power interruption, especially in summer:
- Open the door/drawer as few times as possible.
- Do not put additional food into the appliance during a power interruption.
- If prior notice of a power interruption is given and the interruption duration is longer than 16 hours, make some ice and put it in a container at the top of the refrigerator compartment.
- An inspection of the food is required immediately after the interruption.
- As the temperature in the refrigerator will rise during a power interruption or other failure, the storage period and edible quality of food will be reduced. Any food that defrosts should be either consumed or cooked and refrozen (where suitable) soon afterward in order to prevent health risks.
We decline liability for any damage or accident derived from any use of this product that is not compliant with the instructions contained in this booklet.
| DISPOSAL | |
| Help protect the environment and humans health. Put the packaging in applicable containers to recycle it. Help to recycle waste from electrical and electronic appliances. Do not dispose of appliances marked with this symbol with the household waste. Return the product to your local recycling facility or contact your municipal office. | |
WARNING!
Risk of injury or suffocation!
Refrigerants and gases must be disposed of professionally. Ensure that the tubing of the refrigerant circuit is not damaged before being properly disposed of. Disconnect the appliance from the main supply. Cut off the main cable and dispose of it. Remove the trays and drawers as well as the door catch and seals, to prevent children and pets from getting trapped inside the appliance.
WARRANTY INFORMATION
Your appliance is covered by a one-year limited warranty. For one year from your original date of delivery, FORNO will repair or replace any parts of this appliance that prove to be defective in materials or workmanship when such appliance is installed, used, and maintained in accordance with the provided instructions. Furthermore, the sealed refrigeration system (compressor, condenser, etc.) of your appliance is covered by a (2) one-year limited warranty.
EXCLUSIONS
This warranty does not cover the following:
- Products with original serial numbers that have been removed altered or cannot be readily determined.
- Rust on the interior or exterior of the unit.
- Food loss due to a power failure and/or freezer failure.
- Products used commercially.
- Service Calls that do not involve malfunction or defects in materials or workmanship, or for appliances not in ordinary household use or used other than in accordance with the provided instructions.
- Expenses for making the appliance accessible for servicing, such as removal of trim, cupboards, shelves, etc., which are not a part of the appliance.
- Service Calls to repair or replace appliance consumables, knobs, handles, or other cosmetic parts.
- Pickup and delivery costs; your appliance will be repaired at home.
- Damages to the finish of appliance or home incurred during transportation or installation, including but not limited to floors, cabinets, walls, etc.
- Damages caused by: services performed by unauthorized Service Centers; use of parts other than genuine parts or parts obtained from persons other than Authorized Service Centers; or external causes such as abuse, misuse, inadequate power supply, accidents, fires, or acts of God.
DISCLAIMER OF IMPLIED WARRANTIES; LIMITATION OF REMEDIES
THE CUSTOMER’S SOLE AND DER THIS LIMITED WAR D EXCLUSIVE REMEDY UN RANTY SHALL BE REPAIR OR REPLACEMENTS AS PROVIDED HERE. CLAIMS BASED ON IMPLIED WARRANTIES, INCLUDING WARRANTIES OF MERCHANTABILITY OR FITNESS FOR A PARTICULAR PURPOSE, ARE LIMITED TO ONE YEAR OR THE SHORTEST PERIOD ALLOWED BY LAW, EXCEPT THOSE LESS THAN ONE YEAR.
CORBEIL APPLIANCES SHALL NOT BE LIABLE FOR CONSEQUENTIAL OR INCIDENTAL DAMAGES SUCH AS PROPERTY DAMAGE AND INCIDENTAL EXPENSES RESULTING FROM ANY BREACH OF THIS WRITTEN LIMITED WARRANTY OR ANY IMPLIED WARRANTY. SOME PROVINCES DO NOT ALLOW THE EXCLUSION OR LIMITATION OF INCIDENTAL OR CONSEQUENTIAL DAMAGES. OR LIMITATIONS ON THE DURATION OF IMPLIED WARRANTIES, SO THESE LIMITATIONS OR EXCLUSIONS MAY NOT APPLY TO YOU. THIS WRITTEN WARRANTY GIVES YOU SPECIFIC LEGAL RIGHTS. YOU MAY ALSO HAVE OTHER RIGHTS THAT VARY FROM PROVINCE TO PROVINCE.




Note: Please hold the upper door by hand during step 2 to prevent the door from dropping.








1. left upper hinge cover (which is in the plastic bag)



















