Chevrolet C10
Installation Guide
C10 Electric Power Steering Kit
Pictures may vary per application
WARNING
Please read and understand this manual before installing your EPAS kit.
The installation of this system should be done by a professional mechanic or a very knowledgeable amateur. You will be cutting and splicing your steering column, therefore EPAS Performance will not be held responsible for any malpractice. Caution should be taken when installing the electric motor: no impacts, shocks or hammering should be done to the unit. For aesthetic reason, you may choose to paint the assembly either in black or the color of your steering column to conserve the original look.
For a complete understanding, we strongly suggest to read this owner’s manual prior to any installation.
Should you have any questions or concerns feel free to contact us at (941) 893-5427 or visit our website for installation videos.
EPAS Performance wishes you thousands of enjoyable miles with your new Electric Power Steering!


The Electric Rack & Pinion System allows rotation of up to 180° for the electric motor portion allowing a more adaptable fit in your vehicle

Here are all of the parts that will be removed from your vehicle prior to installing your new kit.
![]() | ![]() |
| The side of the mounting hardware that has TWO notches goes to the drivers side. | The side of the mounting hardware that has ONE notch goes to the passenger side. |

There are no additional bolts required, and typically no additional holes will need to be drilled.



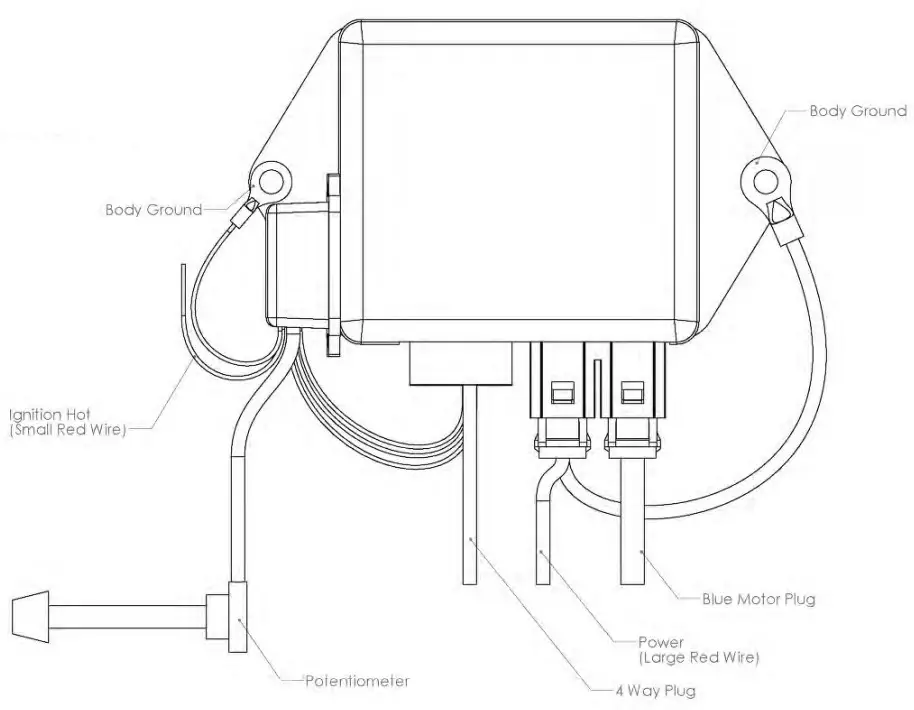
Module Wiring Diagram


Control Module Installation:
Install the pre-wired control module and its wiring. Location inside the vehicle is at builders discretion.
*If you choose to mount the control module externally the #20 red wire and potentiometer need to be rerouted inside of the vehicle*
TERMS AND CONDITIONS
LIABILITY LIMITATION AND RELEASE
We are pleased you have chosen to purchase one of our automotive specialty equipment items. Our products are carefully designed to combine performance, durability and safety, and to work in concert with the vehicle’s original equipment. As they are specialty products, however, and as both performance and safety are paramount concerns, we urge our customers to consider having the products professionally installed.
We caution the purchaser that the enhancement provided by the specialty equipment item may change the handling characteristics of the vehicle. We urge the purchaser to carefully familiarize him/herself with the vehicle’s performance characteristics with the new equipment. This should be done in a safe environment and in a safe manner.
We have no control over the quality or correctness of equipment installations performed by others, nor can we control the uses (in manner or environment) products are subjected to. Accordingly, liability on the part of EPAS Performance LLC is limited to the terms of its Express Limited Warranty.
A decision by the purchaser to retain and install the item purchased will be deemed acceptance of the specific terms of this Liability Limitation and Release.
The purchaser expressly releases and waives any claim against us for any consequential damages or injury that may arise from the use, or any malfunction, of its product. This Liability Limitation and Release binds the original purchaser, all successors in interest, and all persons to whom the product may subsequently be transferred; and the purchaser agrees to make this limitation known to all such persons. This Liability Limitation and Release is part of the consideration for the sale of the product.
This Liability Limitation and Release is governed by the laws of the State of Florida, United States of America. Any dispute regarding its terms or application is subject to arbitration in the State of Florida at the request of either party to the sale.
WARRANTY
This warranty is limited to the repair or replacement of the defective part only; the warranty specifically excludes labor or consequential damages or injury. The decision as to whether the defective part will be repaired or replaced will rest solely with the manufacturer. The warranty period begins on the date the product is shipped to you.
Full 5-year warranty nontransferable.
This warranty is void if the product is or was improperly installed, abused in any manner. Road or accident damage is not covered.
To make a claim under this warranty, call EPAS Performance to return the defective product, shipping or postage prepaid.
Please include a copy of the original purchase invoice and a note describing the circumstances of the failure or malfunction.
This warranty is governed by the laws of the State of Florida, United States of America. Any dispute regarding the coverage of this warranty, its application or terms is subject to arbitration in the State of Florida.
If the purchaser disagrees with any of the terms of this warranty, please return the purchased item within three (3) business days of receipt. A decision by the purchaser to retain and install the item purchased will be deemed acceptance of the specific terms of this warranty.
Thank you for purchasing the EPAS Performance electric power system.
We do hope you enjoy your vehicle for many miles to come.



















