SCHMERSAL BP408 Safety Circuit
General
Thank you!
Dear Customer!
Thank you for the trust that you have shown in Böhnke + Partner GmbH by purchasing a “bp408” system.
Please take the time to read these descriptions carefully. Improper handling may cause a high risk of injury.
Please observe any and all instructions and notes. This will save you a lot of time during commissioning and will avoid the need for further inquiries.
The term “manual” is used to refer to our entire set of documentation, which we use to inform our customers of our company and its products. To improve clarity and structuring, the manual was divided into multiple parts. The “Instruction Manual of the bp408 Safety Circuit” also considers the dangers and risks, which may lead to severe health-related as well as economic damage in case of misuse. Additionally, you are also provided with the information required in order to commission the safety circuit and to check its functions.
Should you still have any questions, you can reach us via:
Böhnke + Partner GmbH
Steuerungssysteme
Heinz-Fröling-Str. 12
51429 Bergisch Gladbach
Germany
Phone: +49 – 22 04 – 95 53 – 0
Fax: +49 – 22 04 – 95 53 – 555
Hotline: +49 – 22 04 – 95 53 – 444
www.boehnkepartner.de
[email protected]
The “bp408” control system comprises the safety circuit on circuit board SPL-01.
Intended use
The safety circuit is an operating resource for use in industrial high-voltage systems and is used exclusively for the processing of information as part of an elevator control system.
Notes on documentation
This manual does not provide exhaustive information on our entire set of delivery options. All information is provided for the purposes of describing the product and cannot be regarded as warranted properties in the legal sense. Any claims for damages against us – for whatever legal reason – are excluded, unless intent or gross negligence were concerned. No warranty is assumed that the specified circuits or processes are free of third party copyrights. Reprinting -even in excerpts – is only permitted given the consent of Böhnke + Partner GmbH and under the inclusion of a precise indication of source.
Böhnke + Partner GmbH, its logo and the company designated are protected trademarks. The information in this manual is checked regularly. Required corrections will be included in the subsequent editions. Hazard warnings and special information are highlighted in this technical manual in the following manner and provided with a corresponding symbol.
ATTENTION: This warning is used when inaccurate observation of or non-compliance with instructions or procedures can lead to the device being damaged, injuries or lethal accidents.
WARNING: This warning is used when inaccurate observation of or non-compliance with instructions or procedures can lead to injuries or lethal accidents due to electrical current.
NOTE: This highlight is used to draw the reader’s attention to a certain special circumstance.
EC Type Examination SPL-01
EC Type Examination
The bp408 system module contains an electronic query unit for the safety circuit and pilot controls for the trip contactors. The circuit board also contains a safety circuit. The safety circuit can be used in the following cases in accordance with EN 81-20/50:
- Preparatory measures with opened elevator cabin door and elevator shaft door
- Approach with opened elevator cabin door and elevator shaft door
- Adjustment with opened elevator cabin door and eleva-tor shaft door
- Recognition of an unintended movement of the elevator cabin with the doors opened (UCM).

Declaration of conformity
The declarations of conformity of the control components used can be found in the latest versions in our online catalogue in the Lift Technology section at the documents of the respective component:
https://products.schmersal.com/en_IO/bp408-806.html
Document area in online catalogue for the bp408
UCM requirements
Requirements regarding certified safety devices
The safety precautions against unintended car movements have been developed further and are required as UCM as part of EN 81-20/-50.
This standard applies for all new installations and moderni-zations from end of 2014.
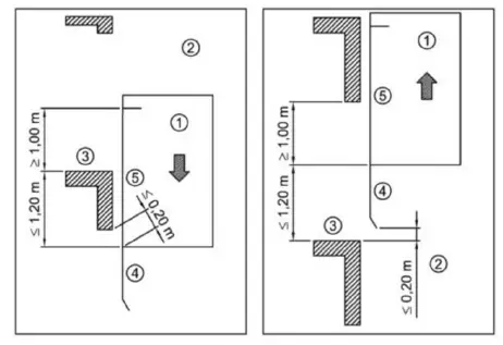
In accordance with the new requirements, all elevators must be fitted with a certified safety device, which prevents uncontrolled movements of the car/cabin with the door opened at a level, but which brings the car/cabin to a stop within a designated area as shown in the figure in any case.
Fig. 1: Cabin moving downward
The cabin floor must come to a stop max. 1.2 m beneath the level position. There must be a residual space of at least 1.0 m between the up-per edge of the cabin and the stepping edge of the shaft.
Fig. 2: Cabin moving upward
The cabin floor must come to a stop max. 1.2 m above the level position. There must be a resid-ual space of at least 1.0 m between the cabin floor and the upper edge of the shaft access. The apron fitted beneath the cabin may only al-low for a gap of max. 200 mm.
Observation of the situation
In order to satisfy this requirement in accordance with EN 81-20/50, a sensor module must detect the unintended movement with the car/shaft doors open and trigger a pre-sent and certified “braking and arresting device”.
The possible danger area is the door area. This area is lim-ited by the safety circuit on “SPL-01”. If the door area is left, the circuit detects this condition within a max. of 10 ms, de-activates all driving signals and the “braking and arresting device” immediately stops the car.
This faulty movement is detected by the control system and the installation is blocked from further use. This block is also active after a power failure and restoration of power and can only be reset from directly within the control system. The error is also entered into a fault stack memory including its date and time.
General information on UCM function
Storage, transport and operating conditions
CAUTION
Improper storage, transport or operating conditions can result in destruction of the system and danger to persons.
- Storage and transport conditions
- Ambient temperature: -20 °C to 70 °C,
- relative humidity up to max. 90% (non-condensing)
- Operating conditions
- Ambient temperature: 0 °C to 60 °C,
- relative humidity up to max. 90% (non-condensing),
Max. height - Types 230 VAC and 110 VAC: 2000 m
- Type 48 VAC/VDC: 4000 m
- The ambient temperature of the control cabinet must not ex-ceed +40 °C and its average value over a period of 24 h must not exceed +35 °C. If the operating temperature is be-low 5°C, disturbance of visible characters on the LCD is ex-pected. At ambient temperatures >40 °C, the control cabinet must be cooled with a cooling unit. Existing inlets and outlets for air conditioning must be kept free.
- Aggressive mediums, dust, fog, water or humidity must not reach the assemblies. The control cabinet should hence fulfil at least protection class IP2xD.
- Condensation must be avoided on all components.
Example: Water condensation in damp machine room after the control system is switched off - In critical environments, please ensure there is enough sound insulation to the building.
- Out system controls are designed for primary voltage 230 V AC 50 Hz.
- When using residual current-protective circuits in control sys-tems having frequency converters, it must be ensured that these RCD circuit breakers must be sensitive to universal current. Other RCD circuit breakers must not be used in accordance with DIN VDE 0160, 5.5.3.4.2 because the DC re-sidual current generated through the input circuit of the frequency converter could increase the minimum triggering level of RCD circuit breaker culminating in non-triggering. The maximum permissible release current of these selective RCD circuit breakers that are sensitive to universal current must not exceed value IΔN=0.3 A.
Notes on installation
- The UCM components must be used as intended and in accordance with requirements. The operating instructions for the entire system (acquisition by the elevator installing company) must be available.
- The certificate containing the correct combination of the subsystems used with the elevator system must be pro-vided in order to satisfy UCM requirements.
- The elevator installing company must present the docu-mentation on the installed UCM components.
- The test instruction for the specialist must be provided with the elevator system.
Notes on function
- Zone monitoring (max. +/- 350 mm = zone area for shaft and cabin door jointly power-operated, otherwise+/-200 mm = zone area) controlled by a sensor, which detects unintended movements of the cabin out of the door zone area with the door opened.
- If the speed in the zone area is exceeded by >0,3 m/s the safety circuit will switch off.
- The safety circuit detects this condition and switches off the drive unit safely. The brake certified in accordance with UCM, the valve, the rope brake or a suitable safety gear then arrest the cabin in a secure location.
- The zone circuit (SMZ) on SPL-01 is used for UCM control. A magnetic switch is sufficient for channel 1 and a position signal from the lift controller for channel 2.
- The reaction times of all components must be de-scribed.
- The required UCM distances (Fig. 1+2) must be main-tained as described in standards EN 81-20 (5.6.7) in the event of an unintended movement with open cabin/shaft door in the zone area.
- If the braking system cannot bring the cabin to a stop within the required UCM distances, then the door zone may be reduced in size. The maximum acceleration for relevelling must be considered.
- The level position of the cabin is monitored by the lift controller.
Notes on test
- The specialist must check the installed safety components for their conformity with UCM.
- The “UCM” test instruction must be supplied with the elevator system (see UCM testing program).
- The specialist’s test requirements for the SPL-01 safety circuit must be clearly described and be comprehensible for new and recurring inspections and acceptance testing of the system.
- he specialist must follow the described instructions step by step.
- A testing program is integrated with the bp408 system module for support purposes.
- The specialists check the provided acceptable limit val-ues of EN 81-20/50 and/or EN 81-1/2+A3 (for example distances) on the elevator system by measuring.
- The specialist must confirm the measured values in his testing protocol.
bp408 testing program
The tests for the following variants are described herein:
- the gearless drive unit with UCM braking system on the traction sheave
- the drive unit with gear (without UCM braking system on the traction sheave) and with UCM speed limiter and UCM safety gear
- the hydraulic elevator (UCM valve)
- The testing sequence must be observed.
General testing sequence
During the test the overspeed monitoring of the lift controller is disabled.
Step 1
- In order to check this function prior to commissioning, the bp408 system module contains a test program The test pro-gram is activated by a password in the maintenance menu.

- The password can be assigned by the user in the setup menu and may amount to a maximum of 8 digits. The default code upon delivery is “8103”.

- After entering of the test code, a warning note is provided on the display of the control system.

- The hazard warning “Caution! Refer to the testing instructions!” appears in the display of the control system after activating the testing mode.
- In order to perform the UCM test (A3) with the door opened or closed, this can be configured using the following parameter.

- If the setting for open doors is selected, the following note appears:

- After confirming with “OK”, the user can then navigate to the next point by pressing the di-rectional key in the downward direction. This is described in the following chapter.
If a testing sequence with closed doors is selected, it is checked whether the safety circuit has been interrupted prior to starting the test movement. If not, the testing sequence is not started and a corresponding note is dis-played. - In order to manually open the safety circuit, the control sys-tem may contain a switch designated “UCM Test I – 0” (2S300) if ordered by the customer.
Step 2
Two test variants may be selected:
UCM-test with drive support
Here, the elevator moves out of the zone at high speed with the door open and the safety circuit activated until the safety circuit triggers and terminates the process.
UCM-test with brake
Attention: Here, several manipulations are required on the frequency inverter in order to directly switch possibly applicable short circuit contactors and internal brake contactors using the control system. A corresponding description pertaining to each inverter is provided on request.
Here, the brake and trip contactors are actuated with the door opened and the safety circuit activated until the safety circuit triggers and terminates the process.
Step 3
Testing sequence – Determination of distance
The elevator is level at a certain floor with the door closed. This access must be secured (closed off) so that no third party may enter the elevator during the test.
The doors are opened when the test is executed with the “with doors opened” option.
The light barrier input as well as the “Open door” pushbutton and the shaft are monitored.
Should one of these signals be registered, the test will not be started.
Warning: If the parameter for the closed door is active, the afore-mentioned section is omitted and the doors remain closed. In this case, the safety circuit can be opened manually us-ing an integrated switch (UCM Test, 2S300), which is provided with the control system if ordered by the customer.
The test is started by selecting the directional key in the upward or downward position.
The safety circuit for bypassing the door lock switch is activated. The elevator will now move with the maximum rated speed or only by opening the brake. A braking system tested in accordance with UCM engages and brings the cabin to a stop. The traveled distance is shown on the display.
Display of initial point prior to start of test:
After the test, the traveled distance can be read off using the display.
If this distance is outside of the permissible range, the zone area must be reduced accordingly, and the test be repeated until a permissible distance is reached.
By acknowledging the “OK” button, the elevator moves back to the initial position (after closing the doors).
Another test in the opposite direction can now be performed.
After successful completion, the zones must be adapted accordingly.
To this end, the “up” and “down” zone areas must be adapted in the “absolute distance measurement” menu. Furthermore, the zone magnets on the floors must be set to the tested value.
If the testing program is terminated, the control system automatically switches to blocked mode.
The landing control is automatically deactivated when the test is begun. It must be activated again manually using the menu after completion of the work in order to ready the installation for operation again.
If the test is not executed within 5 minutes after activation and/or no button is pressed, the testing program is automatically terminated and the control system is blocked.
Extra requirements for UCM testing of traction elevators with gears
For traction elevators with gears and without a brake on the traction sheave certified in accordance with UCM, suitable braking or arresting systems are prescribed in order to satisfy EN 81-20.
Usually, a suitable ” speed limiter” with magnetic coil and locking bolt as well as a suitable “safety gear” are sufficient for this purpose.
If the cabin starts to slide because it is overloaded or be-cause of other reasons, such as shaft or gear rupturing, the pull bar of the magnet of the speed limiter (GB) keeps the arresting pendulum in the trigger position. The cam wheel is blocked and the governor rope immediately engages the ” safety gear”. The power supply of the safety circuit is interrupted directly by the switch on the movement interruption system (governor).
Contingent on the respective position of the safety cog to the arresting pendulum the triggering distance can be between 10 cm and 20 cm.
The safety circuit on “SPL-01”, which is part of the control system, checks the movement within the zone. The control system detects an erroneous sequence of signals in normal operation and blocks while displaying a corresponding error message.
Extra requirements for UCM testing of hydraulic elevators
Hydraulic elevators use special valves to satisfy EN 81-2+A3. These can only be checked for proper functioning using the “with drive unit” setting in the testing program. The used valves are monitored during normal operation. Depending on the manufacturer, there are one or two out-puts which are monitored by the control system. In order to check these for flawless operation, the inputs on the control system must be disconnected and/or provided with a continuous signal (24 V). The system module detects an erroneous sequence of signals in normal operation and blocks while displaying a corresponding error message.
Entries in stack memory
The maintenance stack shows two entries after every test “UCM test (A3) starting” and “UCM test (A3) terminated”, so that both processes are documented. The release of blocking conditions is documented in the message stack. In this regard, it is differentiated whether the block was lifted via terminal or menu.
SPL-01 circuit board

Assembly
The designated area on the circuit board contains an electronic query unit as well as pilot controls for the trip contactors. The circuit board also contains a safety circuit.
Installation requirements
The bp408 system module (SPL-01 circuit board) may only be installed in control cabinets, which satisfy at least protection class IP 43.
Query circuit on SPL-01
Area of application
The query unit controls the passive safety circuit, the emer-gency stop switch, the shaft door contact, the cabin door contacts and the bolt contact in control systems for hydrau-lic and traction elevators. A sequence control system pro-cesses these signals further.
The clearance and creepage distances in the area of termi-nals 9, 10, 11, 12, 12A, 12B, 13, 14 correspond to DIN EN 60664 and/or DIN EN 60950.
The safety circuit with query unit on bp408 is secured up to a maximum of 2 A.
The connection of neutral conductor, mains potential “NN”, is made using terminal 9 of the bp408 module. The joint connection of trip contactors, potential “NF”, may only be made using terminal 14 of the bp408 module.
Testing of wiring for query circuit
The correct wiring in the area of the trip contactors and SPL-01 with terminals 9, 14, K1, K2, K3 as well as the neutral mains conductor (NN) and the neutral trip contactor con-ductor (NF) is to be checked.
ATTENTION! DANGEROUS VOLTAGES!
The following tests are performed on live conductors and terminals.
- Start up the elevator by calling it to the next stop. The pilot control relays of the trip contactors are actuated.
- The safety circuit is closed (COM connection of SPL-01 has safety circuit potential) and the trip contactors are actuated.
- Disconnect the conductor on terminal 9 of SPL-01, thereby deactivating the sequence control and interrupting the electric circuit of the trip contactors.
- The trip contactors are disengaged and disconnect the power supply of the drive unit.
- Then connect the conductor to terminal 9 again.
- Repeat the testing process by also disconnecting the conductor on terminal 14 of SPL-01 (conductor NF) and repeat the previous process.
- Then connect the wire to terminal 14 again.
- If the trip contactors disengaged during every testing pro-cess, the wiring was made correctly and no changes must be implemented.
- The elevator is now operational again.
Safety circuit on SPL-01
Functional description of safety circuit
The single channel safety circuit monitors the synchronous operation of the external and internal zone signal. The out-put circuit remains open in case of a fault or asynchronous operation. The external encoder element is connected to terminal ZS. If the release signal (speed limit + bypass) is set by the processor unit, the release signal of the control relay K552 may engage first, but only if relays K551, K553 and K554 have disengaged. By engaging K552, K553 is al-lowed to engage, which causes the engagement of K554 in turn. If relays K553 and K554 have engaged, relay K551 is started. This causes relay K552 to disengage and only after that will the output circuit be closed. Due to the closing of the output circuit, it is only possible to bypass the door and bolt elements of the safety circuit. It must be ensured that the SSZ terminal is only connected to terminal 11 of the query unit.
This sequence can only be verified if the external encoder element works correctly and the assembly movement to configure the internal signal has been performed correctly. If the input signals are present, the same switching sequence generally applies irrespective of the timing. K552 is engaged first and prepares the activation of relay K553, which is responsible for activating relay K554 in turn. This causes relay K551 to be activated, which causes relay K552 to disengage, thereby closing the output circuit of the safety circuit (SSZ connection/pilot controls of COM connection). In parallel to this process, the condition of the zone and/or the safety circuit is monitored by a sequence control circuit. If the input signal were to no longer apply, the associated relay would disengage and therefore open the output circuit.
Reactivation of the relay can only be performed after the initial switching state is reached. To this end, the relay as-signed to the other channel must be disengaged. Only after that can the prescribed switching sequence of relays take place. In normal operation, the described sequence is al-ways executed in a cyclic fashion. If an error occurs, the output circuit is opened and the circuit prohibits reactivation even if additional errors or faults occur.
A dangerous operating condition can therefore not exist at any time with virtual certainty.
Error analysis of safety circuit
If, for example, a defective encoder element on channel 1 were to cause a continuous signal on connection ZS or the anchor of relay K553 would no longer disengage, this error would lead to relay K552 staying disengaged. This would mean that relay K554 could no longer be engaged and that the output circuit would remain open continuously. During approach and readjustment with the cabin door opened, an error therefore causes no bypassing of the door and door lock switch. This means that the unlocking zone can only be approached with the door closed and the door lock switch engaged. When using the safety circuit as a a sub-stitute for safety switches, for example for door or door lock switch, the safety circuit remains open in the event of an error and further trips are prevented.
Testing option
- Start up the elevator by calling it to the next stop. All relays of the safety circuit are disengaged after leaving the zone. The state of the relays can be read off using the display.
- Disconnect the wire on connection ZS, which causes the encoder element to no longer be active as the signal encoder (channel 1).
- The release signal is internally activated by the bp408 system module and relay K552 engages.
- If the zone is reached, relay K553 engages, but relay K554 cannot engage due to the circuit.
- The circuit now does not work correctly and the by-pass of the SSZ connection and pilot controls of the COM connection did not switch.
- The elevator will stop by means of the level switch and will be blocked from further use by the sequence control circuit.
- Now connect the wire to terminal ZS again and un-block the control system using the menu. The eleva-tor is now operational again.
Connection of SPL-01
Circuit diagram of query and safety circuit on SPL-01 circuit board

Safety circuit status bar on display
| Pos. | Meaning | Terminal |
| 1 | Passive Safety Circuit | 10 |
| 2 | Emergency Stop | 11 |
| 3 | Shaft Door | 12 |
| 4 | Car Door A | 12A |
| 5 | Car Door B | 12B |
| 6 | Door Lock | 13 |
The safety circuit status bar is provided on the right side of the display. It is shown in all menus. The safety circuit status bar provides the following information:
Technical data
| Safety circuit monitoring SPL-01A/SMZ: SPL-01A/110V/SMZ: SPL-01A/48V/SMZ: | max. 230 VAC max. 110 VAC max. 48 VAC/VDC |
| Safety cicuit bypass: | max. 230 VAC, max. 2 A; max. 48 VDC, max. 2 A |
| Fuse safety circuit: | max. 2 A |
| Control power supply: | 24 VDC, +10/-15 % |
| Reaction time UCM detection: | max. 10 ms |
| Protection degree: | Modul: IP20 Housing: ≥ IP43 |
| Operating temperature: | 0 °C bis 60 °C |
| Storage/transport temperature: | -20 °C bis 70 °C |
| Rel. humidity: | 5 % bis 85 % (no frost and non-condensing) |
| Altitude above see level: | max. 2000 m at max. 230 VAC; max. 4000 m at max. 48 VAC/VDC |
| Measures: | 315 mm x 100 mm x 80 mm |

















