
User Manual
ECT9750S
ECT9750S Cooker Hood
WE’RE THINKING OF YOU
Thank you for purchasing an Electrolux appliance.
You’ve chosen a product that brings with it decades of professional experience and innovation. Ingenious and stylish, it has been designed with you in mind. So whenever you use it, you can be safe in the knowledge that you’ll get great results every time. Welcome to Electrolux.
BEFORE USING YOUR APPLIANCE
Before you use the rangehood, we recommend that you read through the whole user manual which provides the description of the rangehood and its functions. To avoid the risks that are always present when you use an electrical appliance, it Is important that the rangehood is installed correctly and that you read the safety instructions carefully to avoid misuse and hazards.
For future reference, please store this booklet in a safe place.
CONDITIONS OF USE
This appliance is intended to be used in household and similar applications such as
- Staff kitchen areas in shops, offices, and other working environments
- Farmhouses
- By clients in hotels, motels, and other residential type environments
- Bed and breakfast type environments
BEFORE YOU CALL
Please ensure you read the instruction manual fully before you call for service, or a full-service fee could be applicable.
RECORD MODEL AND SERIAL NUMBER HERE:
Model:
Serial NO:
LEGEND
WARNING!
This symbol indicates information concerning your personal safety
CAUTIONS,
This symbol indicates information on how to avoid damaging the range hood.
IMPORTANT!
This symbol indicates tips and information about the use of the range hood.
ENVIRONMENT,
This symbol indicates tips and information about the economical and ecological use of the range hood.
RoHS Compliant.
If at any time in the future you need to dispose of this product please do not dispose of this product with household waste, please send this product to collecting points where available
This product is RoHS compliant.
SAFETY INFORMATION
This manual explains the proper use of your new Electrolux canopy rangehood. Please read this manual carefully before using the product. This manual should be kept in a safe place for handy reference.
This range hood is a domestic appliance that has been manufactured and tested to comply with International Standard IEC 60335.2.31.
Read the following carefully to avoid damage or injury.
This symbol indicates never to do this
This symbol indicates always do this
| Young children should be supervised to ensure they do not play with the range hood. | |
| This appliance is not intended for use by persons (including children) with reduced physical, sensory or mental capabilities, or lack of experience and knowledge unless they have been given supervision or instruction concerning the use of the appliance by a person responsible for their safety. | |
| Ensure the rangehood is switched off before carrying out maintenance, to avoid any possibility of electric shock. | |
| Never carry out flambe cooking under the range hood. | |
| This range hood is not recommended for barbecues. | |
| This rangehood cannot be installed for external use | |
| Grease filters must be removed every four weeks (maximum) for cleaning to reduce the risk of fire. | |
| The exhaust from the rangehood must not be discharged into any heating flue, which may carry combustion products from other sources.(Fig.1) | |
| The exhaust air must not be discharged into a wall cavity unless the cavity is designed for the purpose. | |
| There must be adequate ventilation in the room when the rangehood is used at the same time as appliances burning gas or other fuels. | |
| Always cover lit gas burners with pots or pans when the range hood is in use. | |
| Always switch off gas burners before you remove pots or pans. | |
| Do not leave lit gas burners exposed due to the risk c of fire. (Fig.2) |
Electrical connection
Check that the mains voltage matches with the voltage on the data plate inside the range hood. Check that the installation complies with the standards of local building, gas, and electrical authorities. Before connecting to the mains supply ensure that the mains voltage corresponds to the voltage on the rating plate inside the rangehood.|f the supply cord is damaged, it must be replaced by the manufacturer or its service agent or a similarly qualified person in order to avoid a hazard.
Safety warnings For the installer
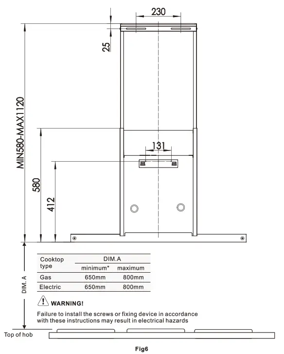
When installing the rangehood, make sure you adhere to the minimum and maximum distances from the rangehood base to the hob surface (as per the table on page 6).
Exhaust flue installation: The following rules must be strictly followed to obtain optimal air extraction.
- Keep exhaust flue short and straight
- Do not reduce the size or restrict exhaust flue.
- Keep bends in the exhaust flue to a minimum.
- When using flexible flue always install duct with helix p u l l e d taut to minimize pressure loss.
- Failure to observe these basic instructions will drastically reduce the performance and increase the noise levels of the range hood.
Exhaust air must not be discharged into a wall cavity unless the cavity is designed for the purpose. The exhaust from the cooker hood must not be discharged into any heating flue, which may carry combustion products from other sources.
NOTE: Some installations may require the teles Copic exhaust cover to be cut to length. Cut with sharp tin snips or a fine-tooth hack saw blade, taking care not to distort or dent the exhaust cover.

PRODUCT DESCRIPTION

COMPONENTS
| Ref Q’ty | Product Components | |
| 1 | 1 | Hood Body |
| 2-1 | 1 | Outer Flu Cover |
| 2-2 | 1 | Inner Flu Cover |
| 3 | 1 | Charcoal Filter |
| 4 | 3 | All Filter |
| 5 | 1 | Hanger |
| 6 | 1 | Flu Cover Mounting Bracket |
| 7 | 2 | Damper(flaps) |
| 8 | 1 | Aluminum Exhaust Transition Duct |
| 9 | 1 | Reducing Adapter Tube |
| 10 | 2 | Aluminum Foil |
| 11 | 1 | Duct Sleeve(Connet the duct with recirculating T-pieces) |
| 12 | 1 | Recirculating T-pieces |
| 13 | 2 | Sponge ring |
| 14-1 | 7 | Plastic Expansion Plug |
| 14-2 | 7 | Mounting Screws(ST 5X5OMM) |
| 14-3 | 2 | Flu Cover Mounting Bracket Screws ( M4x10 ) |
| 14-4 | 4 | T-pieces fixing screws ( ST4x10 ) |
| 15 | 3 | Sponge strip |
DIMENSIONS

RANGEHOOD INSATLLATION
warning!
Refer to the “Safety information” chapter
before INSTALLATION
Before the installation of the appliance, record the information below from the rating plate. The rating plate is on the bottom of the appliance casing.
Model ——————-
PNG———————
Serial number.———–
- Using a spirit level mark a vertical center line on the wall where the cooker hood is to be positioned, and a horizontal line at the cooker hood base position {refer to the diagram below).
NOTE: The height of the underside of the hood body must be a minimum of 650mm* to a maximum height of 800mm
* If the instructions of the hob specify a greater distance than the minimum above, ‘then that shall be the minimum height for Installation. - Mark the location for f l u e cover wall mounting brackets and cooker hood mounting points above the hood base as the reference point ( Fig . 6).

- Install the flue cover mounting and wall brackets with screws to the wall as marked(Fig.7). Please mounted recirculating T pieces together with the flue cover bracket if the recirculating mode is used. {Fig.9)

- Remove protective plastic film, if present, from the hood body and hang it on the wall bracket.

Depending on the preferred installation/ducting mode, follow steps 5a or 5b below.
5a. Recirculating mode (Fig. 9).
According to the flue cover dimension, fix the T-piece with 4 screws Supplied Adhesive two sponges to the outlet of the T-piece as shown(Fig.9)
Using the center line, secure the recirculating T-piece and Chimney mounting bracket to the wall.
Connect the T-Piece and flue transition duct with a duct sleeve. Use fixing rings to secure them. (Fig.11)
NOTE: When installed in recirculating mode, itis recommended to use a carbon filter to prevent odors from being emitted back into the room.
5b. Ducted mode (Fig 1 0 . )
Fit the flexible flue to the duct transition(Fig.10).
Use fixing tapes to secure flexible pipe to the duct transition.
NOTE: For ducted mode, we recommend extending the flue pipe through the roof to the external” roof cap” to vent the exhaust externally. We do not recommend venting into the ceiling cavity.
NOTE: To ensure optimum performance of the rangehood, the use of rigid ducting is recommended. the use of bends should be avoided. All ducting must be fire retardant. 

6. Electrical connection
- Electrical wiring must be done by a qualified person(s) in accordance with all applicable codes and standards. Turn off electrical power at the service entrance before wiring.
- If the power cord is damaged, it must be replaced by the manufacturer, its agent, or similarly qualified persons in order to avoid hazards.
- Do not use the plug and an extension cord other than the ones initially supplied with the hoods.
- The earthing of this hood is compulsory. Do not remove the ground prong of the plug.
Installation of telescope flue covers
Separate the flue covers section. Carefully reassemble the upper and lower flue covers sections by sliding the inner into the outer flue cover. Carefully lower assembled upper and lower flue covers onto the top of the cooker hood body. Fix upper fluecoverte the mounting bracket with screws supplied. Ensure that the upper section is extended (Fig.12).
NOTE: Carefully remove the plastic protective coating, if present, from the flue covers. Pay particular attention when removing the protective plastic coating from decals.

USING THE RANGEHOOD

Fan= select speed to suit cooking conditions
– Fanon/off
– light frying/boiling
2 —frying/work cooking/heavy boiling
3 grilling, intensive frying, and work cooking
– Boost
– Light
MAINTENANCE AND CLEANING
- Before maintenance or cleaning is carried out, the rangehood should be disconnected from the main power supply. Ensure that the rangehood is switched off at the wall socket and the plug removed if fitted.
- External surface are susceptible to scratches and abrasions, so please follow the cleaning instructions to ensure the best possible result is achieved without damage.
- These instructions must be followed to avoid fire risk.
Stainless steel surface
Clean stainless steel surface using non-abrasive cleaning products that are specifically for use on stainless steel. To ensure the best results also use even pressure and follow the grain of the stainless steel. The use of a soft cloth reduces the risk of scratching. If the cloth is wet ensure that a dry soft cloth is used to wipe down the surface again reducing the risk of any surface rust appearing.
Control panel surface The control panel can be cleaned using warm soapy water. Ensure the cloth is well wrung before cleaning. Use a dry soft cloth to remove any excess moisture left after cleaning.
Removing the metal grease filters
Push the grease filter towards the left side of the unit and then pull it down.
Hand washing
The mesh filters can be cleaned by hand in warm soapy water. Soak in warm water and some washing-up liquid. For stubborn grease stains use a soft nylon brush to help remove these stains. After cleaning ensure that the filters are completely dry before refitting.
Dishwasher
Place grease filters in the dishwasher. Select the most powerful washing grogram and highest temperature, at least 65 Refit the grease filters when they are dry. When washing the metal grease filter In the dishwasher a slight discoloration of the filter can occur, but this does not have any impact on its performance.
Changing the lamps
Lamps are long-life LED lamps and should not require service. If there is an issue with the lamp please contact the Service Center, Service contact details are shown on page 12.
Charcoal filter
- The charcoal filter should only be used if you want to use the cooker hood in the recirculating mode.
- This filter cannot be cleaned or re-used end as a general rule, the activated charcoal filter should be changed once every 3 months.

To fit the filter, lock it until a stop click is heard Pulling out each latch, tilt the filter down, and remove - Always specify the cooker hood model code number and serial number when ordering replacement filters. This information is shown on the registration plate located on the inside of this unit.
- Replacement charcoal filters can be ordered from your local spare parts center, contact details are shown on page 12.
TROUBLESHOOTING
| Problem | Remedy |
| The cooker hood will not start | Check that the hood is connected to an electrical supply Check that a fan speed has been selected |
| The Rangehood is not working | Check that the fan speed is set high enough for the task The grease filters are clean The kitchen is adequately vented to allow the entry of fresh air If set up for recirculation, check that the charcoal filter is still effective If set up for extraction, check that the duct and outlets are not blocked Do not operate the cooktop without pots/pans Do not flambe under cooktop |
| The range hood has switched off during the operation k. | The safety cut-out device has been tripped-turn off the hob and waits for the device to reset. If the hood has been installed below the heights indicated in the installation instructions the motor will cut out frequently which will damage the hood |
If you have completed all the above checks and are still experiencing difficulty, please contact your local Electrolux Service Centre.
Note: This product is fitted with a safety cutout device.
- If the rangehood is installed too close to the cooker top, flambe cooking, operating the cooktop without cooking utensils and blocked filters may activate the safety cutout device. If the hood stops during operation, correct the faults and allow time for the safety cutout device to reset. Then the rangehood will function correctly.
- Do not operate the cooktop without pots/pans
- Do not flambe under cooktop
CONSUMER CARE CENTER
| Thailand Consumer Care Tel : (+66 2) 725 9000 Electrolux Thailand Co., Ltd. Electrolux Building 14th Floor 1910 New Phetchaburi Road, Bangkapi, Huai Khwang, Bangkok 10310 Office Tel : (+66 2) 7259100 Office Fax : (+66 2) 7259299 Email: [email protected] | Singapore Consumer Care Center Tel: (+65) 6727 3699 Electrolux S.E.A. Pte Ltd. 351 Braddell Road #01-04, 351 On Braddell Singapore 579713 Email: [email protected] |
| Indonesia Hotline service: 08041119999 PT. Electrolux Indonesia Electrolux Building JI.Abdul Muis No.34, Petojo Selatan, Gambir Jakarta Pusat 10160 Email:[email protected] SMS & WA : 0812.8088.8863 | Philippines Consumer Care Center Toll-Free: 1-800-10-845-CARE(2273) Consumer Care Hotline:(+63 2)845-CARE(2273) Electrolux Philippines,Inc. Unit B 12F Cyber Sigma Bldg, Lawton Avenue, McKinley West, Taguig, Philippines 1634 Trunkline:+63 2 737-4757 Website:www.electrolux.com.ph Email:[email protected] |
| Vietnam Consumer Care Center Toll-Free 1800-58-88-99 Tel: (+84 28) 39105465 Electrolux Vietnam Ltd. Unit 1&2, 1OF Sofic Tower, #10 Mai Chi Tho Street, Thu Thiem Ward, Thu Duc City, Ho Chi Minh City, Vietnam | Malaysia Consumer Care Center Tel: 1300-88-11-22 Electrolux Home Appliances Sdn. Bhd. Corporate Office Address: Unit T2-7, 7th Floor, Tower 2, PJ33, No. 3, Jalan Semangat, Seksyen 13,46200 Petaling Jaya, Selangor. Office Tel : (+60 3) 7843 5999 Office Fax : (+60 3) 7955 5511 Consumer Care Center Address: Lot C6, No. 28, Jalan 15/22, Taman Perindustrian Tiong Nam, 40200 Shah Alam, Selangor Consumer Care Center Fax : (+60 3) 5524 2521 Email: [email protected] |
| HONG KONG SERVICE HOTLINE: (+852) 3193 9888 DCH ELECTRICAL APPLIANCES SERVICE CENTRE 4/F, DCH BUILDING, 20 KAI CHEUNG ROAD, KOWLOON BAY, HONG KONG EMAIL: [email protected] WEBSITE: www.electrolux.com.hk |
www.electrolux.com
The Thoughtful Design Innovator.
Do you remember the last time you opened a gift that made you say, “Oh! How did you know? That’s exactly what | wanted!” That’s the kind of feeling that we at Electrolux seek to evoke in everyone who chooses or uses one of our products. We devote time, knowledge, and a great deal of thought to anticipating and creating the kind of appliances that our customers really need and want.
This kind of thoughtful care means innovating with insight. Not design for design’s sake, but design for the user’s sake. For us, thoughtful design means making appliances easier to use and tasks more enjoyable to perform, freeing our customers to experience the ultimate 21st-century luxury: ease of mind. Our aim is to make this ease of mind more available to more people in more parts of their everyday lives, all over the world. The “Thinking of you” promise from Electrolux goes beyond meeting the needs of today’s consumers. It also means we’re committed to making appliances safe for the environment—now and for future generations. Electrolux. Thinking of you.
Share more of our thinking at
www.electrolux.com
![]()
![]()



















