Electrolux ECS6691G Cooker Hood

ECS9691G
WE’RE THINKING OF YOU
Thank you for purchasing an Electrolux appliance. You’ve chosen a product that brings with ii decades of professional experience and innovation. Ingenious and stylish, it has been designed with you in mind. So whenever you use it, you can be safe in the knowledge that you’ll get great results every time. Welcome to Electrolux.
BEFORE USING YOUR APPLIANCE
Before you use the rangehood, we recommend that you read through the whole user manual which provides the description of the range hood and its functions. To avoid the risks that are always present when you use an electrical appliance, it is important that the range hood is installed correctly and that you read the safety instructions carefully to avoid misuse and hazards. For future reference, please store this booklet in a safe place.
CONDITIONS OF USE
This appliance is intended to be used in household and similar applications such as.
- Staff kitchen areas in shops, offices and other working environments
- Farm houses
- By clients in hotels, motels and other residential type environments
- Bed and breakfast type environments
BEFORE YOU CALL
Please ensure you read the instruction manual fully before you call for service, or a full service fee could be applicable.
LEGEND
WARNING!
This symbol indicates information concerning your personal safety
CAUTIONS!
This symbol indicates information on how to avoid damaging the rangehood.
MPORTANT!
This symbol indicates tips and information about use of the rangehood.
ENVIRONMENT!
This symbol indicates tips and information about economical and ecological use of the rangehood.
ROHS compliant.
If at any time in future you need to dispose of this product please do Not dispose of this product with household waste, please send this product to collecting points where available .
SAFETY INFORMATION
This manual explains the proper use of your new Electrolux canopy rangehood. Please read this manual carefully before using the product. This manual should be kept in a safe place for handy reference.
This range hood is a domestic appliance which has been manufactured and tested to comply with International Standard IEC 60335.2.31.
Read the following carefully to avoid damage or injury.
This symbol indicates never to do this
This symbol indicates always do this
WARNING!
Follow these instructions carefully to avoid an electric shock or fire.
Young children should be supervised to ensure they do not play with the rangehood.
This appliance is not intended for use by persons (including children) with reduced physical, sensory or mental capabilities, or lack of experience and knowledge, unless they have been given supervision or instruction concerning the use of the appliance bya person responsible for their safety
Ensure the range hood is switched off before carrying out maintenance, to avoid any possibility of electric shock.
Never carry out flam be cooking under the rangehood.
This rangehood is not recommended for barbecues.
This rangehood cannot be installed for external use.
Grease fillers must be removed every four weeks (maximum) for cleaning to reduce the risk of fire.
The exhaust from the range hood must not be discharged into any heating flue, which may carry combustion products from other sources.(Fig.1)
The exhaust air must not be discharged into a wall cavity, unless the cavity if designed for the purpose.
There must be adequate ventilation of the room when the range hood is used at the same time as appliances burning gas or other fuels.
Always cover lit gas burners with pots or pans when rangehood is in use.
Always switch off gas burners before you remove pots or pans.
Do not leave lit gas burners exposed due to the risk of fire.(Fig.2)
Electrical connection
Check that the mains voltage matches with the voltage on the data plate inside the rangehood. Check that the installation complies with standards of local building, gas and electrical authorities. Before connecting to the mains supply ensure that the mains voltage corresponds to the voltage on the rating plate inside the rangehood.lfthe supply cord is damaged, it must be replaced by the manufacturer or its service agent or similarly qualified person in order to avoid a hazard.
Safety warnings For the installer
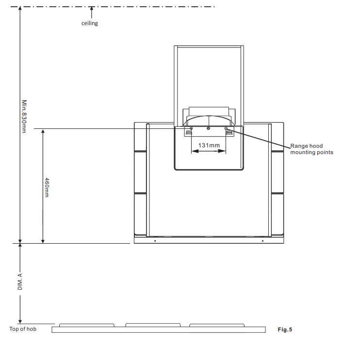
When installing the rangehood, make sure you adhere to the minimum and maximum distances from the rangehood base to the hob surface (as per table on page 6).
Exhaust flue installation: The following rules must be strictly followed to obtain optimal air extraction.
- Keep exhaust flue short and straight
- Do not reduce the size or restrict exhaust flue.
- Keep bends in the exhaust flue to a minimum.
- When using flexible flue always install duct with helix pulled taut to minimise pressure loss. Failure to observe these basic instructions will drastically reduce the performance and increase the noise levels of the range hood. Exhaust air must not be discharged into a wall cavity, unless the cavity is designed for the purpose. The exhaust from the cooker hood must not be discharged into any heating flue, which may carry combustion products from other sources.
NOTE: Some installations may require the telescopic exhaust cover to be cut to length. Cut with sharp tin snips or a fine-tooth hack saw blade, taking are not to distort or dent the exhaust cover.

PRODUCT DESCRIPTION

| Ref | Q ‘ty | Product Components |
| 1 | 1pc | Hood body, complete with: controls, lights, blower |
| 2 | 1pc | Chimney |
| 3 | 1pc | Oil cup |
| 4 | 1pc | Aluminum pipe |
| 5 | 1pc | Hood mounting bracket |
| 6 | 5pcs | Mounting screws(ST 5X 50MM) |
| 7 | 5pcs | Drywall Anchors |
| 8 | 1set | Damper |
| 9 | 1pc | Duct fixing tape |
| 10 | 1pc | User manual |
DIMENSIONS

RANGEHOOD INSATLLATION
WARNINGI
Refer to “Safety information” chapter.
BEFORE INSTALLATION
Before the installation of the appliance, record the information below from the rating plate. The rating plate is on the bottom of the appliance casing.

| Cooktop type | DIM.A |
| minimum* maximum | |
| Gas | 700 mm 800mm |
| Electric | 650mm 800mm |
WARNINGI
Failure to install the screws or fixing device in accordance with these instructions may result in electrical hazards.
- Using a spirit level mark a vertical center line on the wall where the cooker hood is to be positioned, and a horizontal line at the cooker hood base position (refer diagram below).
NOTE: The height of the underside of the hood body must be a minimum of 650mm’ to a maximum height of 800mm If the instructions of the hob specify a grea1er distance than the minimum above, then that shan be the minimum height for installation. Marik the location for cooker hood mounting points above the hood base as the reference point (fig-5)
RANGEHOOD INSATLLATION
- Install the wall bracket with screws to the wall as marked(Fig.6) .

- Hang the hood on the wall bracket(Fig.7).

- Fit the flexible flue to the duct transition Use fixing to secure flexible pipe to the duct transition.
NOTE: For ducted mode, we recommend extanding flue pipe through the roof to external” roof cap” to vent exhaust externally. We do not recommend venting into ceiling cavity.
- Electrical connection
● Electrical wring must be done by a qualified person(s) in accordance with all applicable codes and standards. Turn off electrical power at service entrance before wiring.
● If the power cord is damaged, it must be replaced by manufacturer, its agent or similarly qualified persons in order to avoid hazard.
● Do not use the plug and an extension cord other than the ones initially supplied with the hoods.
● The earthing of this hood is compulsory. Do not remove the ground prong of the plug. - Installation of telescopic flue covers(fig.9)
Assemble the flue cover onto the hood body make sure it on the correct position.
USING THE RANGEHOOD

Fan – select speed to suit cooking conditions
-Fan on/off
-light frying/boiling2-frying/work cooking/heavy boiling3-grilling, intensive frying and work cooking
-Self-clean
-Light
Self-clean instruction
This product is equipped with self-clean technology. The self-clean icon will start glowing after the motor works for 15hours. User can tap the self-clean button to active the self-clean function.
The red indicator will start glowing during the cleaning process.
The time period for Self-clean is 10 to 15 minutes. The product can be used during self-clean.
Your Electrolux range hood is now ready to use
CAUTION!
- Before maintenance or cleaning is carried out, the range hood should be disconnected from the main power supply. Ensure that the rangehood is switched off at the wall socket and the plug removed if fitted.
- External surface are susceptible to scratches and abrasions, so please follow the cleaning instructions to ensure the best possible result is achieved without damage.
- These instructions must be followed to avoid a fire risk.
Glass
- Glass should be cleaned every week in order to keep the shiny
Grease filter
- The grease filter should be cleaned frequently (every two months of operation, or more frequently for heavy use). Use a warm detergent solution.
- Grease filter is washable
- Remove the grease filter by unscrewing the screw on the rotation support and releasing the glass panel from two hinges . Tilt the filter downward and remove(Fig.10)
- Wash the filter , taking care not to bend them. Allow them to be dried before refitting.
- To install the grease filter , push filter into position and release . Fix the glass panel to the two hinges and refix one screw .
Note: To replace the filter, please let the hood on suction mode before cutting off the electrical supplier and don’t open the glass panel by hand.
Replacing the lamp
Dismantle the lower glass by removing the two rubber columns and unscrewing the two screws on glass(Fig.11).
Replace the damaged LED, only use LED DC 12V,2W Max
Note:
- To replace the LED, please let the hood on suction mode before cutting off the electrical supplier and don’t open the glass panel by hand.
- We recommend only using lamps of the same specification as the ones being replaced.
WARNING:
- Always switch off the electrical supply before carrying out any operation on the appliance.
- Only a qualified and trained service technician can undertake the work of bulbs replacement and servicing.

Changing the lamp
Lamps are long life LED lamps and should not require service. If there is an issue with lamp please contact the Service Center.
TEOUBLESHOOTING
| Problem | Remedy |
| The cooker hood will not start | Check that the hood is connected to an electrical supply Check that a fan speed has been selected |
| The Rangehood is not working | Check that the fan speed is set high enough for the task The grease filters are clean The kitchen is adequately vented to allow the entry of fresh air If set up for recirculation, check that the charcoal filter is still effective If set up for extraction, check that the duct and outlets are not blocked Do not operate cooktop without pots/pans Do not flambel under cooktop |
| The rangehood has switched off during operation | If the hood has been installed below the heights indicated in the installation instructions the motor will cut out frequently which will damage the hood |
If you have completed all the above checks and are still experiencing difficulty, please contact your local Electrolux Service Centre.
Note: This product is fitted with a safety cutout device.
- If the rangehood is installed too close to the cooker top, flam be cooking, operating the cook lop without cooking utensils and blocked fillers may activate the safety cutout device. If the hood slops during operation, correct the faults and allow lime for the safety cutout device to reset. Then the rangehood will function correctly.
- Do not operate cooktop without pots/pans
- Do not flam be under cooktop
CONSUMER CARE CENTER
| Thailand Consumer Care Tel : (+66 2) 725 9000 Electrolux Thailand Co., Ltd. Electrolux Building 14th Floor 1910 New Phetchaburi Road, Bangkapi, Huai Khwang, Bangkok 10310 Office Tel: (+66 2) 7259100 Office Fax: (+66 2) 7259299 Email : [email protected] | Singapore Consumer Care Center Tel: (+65) 6727 3699 Electrolux S.E.A Pie Ltd. 351 Braddell Road #01-04, 351 On Braddell Singapore 579713 Email : [email protected] |
| Indonesia Hotline service: 08041119999 PT. Electrolux Indonesia Electrolux Building JI.Abdul Muis No.34, Petojo Selatan, Gambir Jakarta Pusat 10160 Email: [email protected] SMS & WA: 0812.8088.8863 | Philippines Consumer Care Center Toll Free: 1-800-10-845-CARE(2273) Consumer Care Hotline:(+63 2)845-CARE(2273) Electrolux Philippines,lnc. Unit B 12F Cyber Sigma Bldg, Lawton Avenue, McKinley West,Taguig, Philippines 1634 Trunkline:+63 2 737-4757 Website:www.electrolux.com.ph Email:[email protected] |
| Vietnam Consumer Care Center Toll Free 1800-58-88-99 Tel: (+84 28) 39105465 Electrolux Vietnam Ltd. Unit 1&2, 10F Sofic Tower, #10 Mai Chi Tho Street, Thu Thiem Ward, Thu Duc City, Ho Chi Minh City, Vietnam | Malaysia Consumer Care Center Tel: 1300-88-11-22 Electrolux Home Appliances Sdn. Bhd. Corporate Office Address: Unit T2-7, 7th Floor, Tower 2, PJ33, No. 3, Jalan Semangat, Seksyen 13, 46200 Petaling Jaya, Selangor. Office Tel : (+60 3) 7843 5999 Office Fax: (+60 3) 7955 5511 Consumer Care Center Address: Lot C6, No. 28, Jalan 15/22, Taman Perindustrian Tiong Nam, 40200 Shah Alam, Selangor Consumer Care Center Fax: (+60 3) 5524 2521 Email : [email protected] |
| HONG KONG SERVICE HOTLINE: (+852) 3193 9888 OCH ELECTRICAL APPLIANCES SERVICE CENTRE 4/F, OCH BUILDING, 20 KAI CHEUNG ROAD, KOWLOON BAY, HONG KONG EMAIL: [email protected] WEBSITE: www.electrolux.com.hk |
www.electrolux.com
The Thoughtful Design Innovator.
Do you remember the last time you opened a gift that made you say, “Oh! How did you know? That’s exactly what I wanted!” That’s the kind of feeling that we at Electrolux seek to evoke in everyone who chooses or uses one of our products. We devote time, knowledge, and a great deal of thought to anticipating and creating the kind of appliances that our customers really need and want.
This kind of thoughtful care means innovating with insight. Not design for design’s sake, but design for the user’s sake. For us, thoughtful design means making appliances easier to use and tasks more enjoyable to perform, freeing our customers to experience the ultimate 21st century luxury: ease of mind. Our aim is to make this ease of mind more available to more people in more parts of their everyday lives, all over the world. The “Thinking of you” promise from Electrolux goes beyond meeting the needs of today’s consumers. It also means we’re committed to making appliances safe for the environment-now and for future generations. Electrolux. Thinking of you. Share more of our thinking at www.electrolux.com

























