COSMO COS-QS48 Under Cabinet Range Hood User Guide
THANK YOU FOR YOUR PURCHASE
Thank you for your purchase. We know that you have many brands and products to choose from and we are honored to know that you have decided to take one of our products into your home and hope that you enjoy it.
COSMO appliances are designed according to the strictest safety and performance standard for the North American market. We follow the most advanced manufacturing philosophy. Each appliance leaves the factory after thorough quality inspection and testing. Our distributors and our service partners are ready to answer any questions you may have regarding how to install, use and care for your products. We hope that this manual will help you learn to use the product in the safest and most effective manner .
If you have any questions or concerns, please contact the dealer from whom you purchased it, or contact our Customer Support at: 1-888-784-3108
IMPORTANT SAFETY INSTRUCTIONS
Read all instructions before using this appliance. Save these instructions for future references.
Approved for residential appliances. For residential use only. Due to the weight and size of these vent hoods and to reduce the risk of personal injury or damage to the product
TWO PEOPLE ARE REQUIRED FOR PROPER INSTALLATION
CAUTION
FOR GENERAL VENTILATING USE ONLY. DO NOT USE TO EXHAUST HAZARDOUS OR EXPLOSIVE MATERIALS OR VAPORS.
CAUTION
To reduce risk of fire and to properly exhaust air, do not vent exhaust air into spaces within walls, ceilings, attics, crawl spaces, or garages.
WARNING
TO REDUCE THE RISK OF FIRE, USE ONLY METAL DUCT WORK. Install this hood in accordance with all requirements specified
WARNING
TO REDUCE THE RISK OF FIRE, ELECTRIC SHOCK, OR INJURY TO PERSONS, OBSERVE THE FOLLOWING:
- Use this unit only in the manner intended by the manufacturer. If you have questions, contact the manufacturer.
- Before servicing or cleaning the unit, switch power off at service panel and lock service panel disconnecting means to prevent power from being switched on accidentally. When the service disconnecting means cannot be locked, securely fasten a prominent warning device, such as a tag, to the service panel.
- Installation Work and Electrical Wiring Must Be Done By Qualied Person(s) In Accordance With all Aplicable Codes & Standards, Including Fire-rated Construction.
- Suficient air is needed for proper combustion and exhausting of gases through the flue (Chimney) of fuel burning equipment to prevent back- drafting. Follow the heating equipment manufacturers guideline and safety standards such as those published by the National Fire Protection Association (NFPA), the American Society for Heating, Refrigeration and Air Conditioning Engineers (ASHRAE), and the local code authorities.
- When cutting or drilling into wall or ceiling, do not damage electrical wiring and other hidden utilities.
- Ducted systems must always be vented to the outdoors.
WARNING
To Reduce The Risk Of Fire Or Electric Shock, Do Not Use This Hood With Any External Solid State Speed Control Device.
WARNING
Unplug or disconnect the appliance from the power supply before servicing.
WARNING
GROUNDING INSTRUCTIONS
This appliance must be grounded. In the event of an electrical short circuit, grounding reduces the risk of electric shock by providing an escape wire for the electric current. This appliance is equipped with a cord having a grounding wire with a grounding plug. The plug must be plugged into an outlet that is properly installed and grounded.
WARNING – IMPROPER GROUNDING CAN
RESULT IN A RISK OF ELECTRIC SHOCK.
Consult a qualified electrician if the grounding instructions are not completely understood, or if doubt exists as to whether the appliance is properly grounded.
Do not use an extension cord. If the power supply cord is too short, have a qualified electrician install an outlet near the appliance.
WARNING
TO REDUCE THE RISK OF INJURY TO PERSONS, IN THE EVENT OF A RANGE TOP GREASE FIRE, OBSERVE THE FOLLOWING:
- SMOTHER FLAMES with a close-fitting lid, cookie sheet, or metal tray, then turn off the burner. BE CAREFUL TO PREVENT BURNS. If the flames do not go out immediately,
EVACUATE AND CALL THE FIRE DEPARTMENT. - NEVER PICK UP A FLAMING PAN – You may be burned.
- DO NOT USE WATER, including wet dishcloths or towels a violent steam ex-plosion will result.
- Use an extinguisher ONLY if:
- You know you have a Class ABC extinguisher, and you already know how to operate it.
- The fire is small and contained in the area where it started.
- The fire department is being called.
- You can fight the fire with your back to an exi
Always leave safety grills and lters in place. Without these components, operating blowers could catch onto hair, ngers and loose clothing.
The manufacturer declines all responsibility in the event of failure to observe the instructions given here for installation, maintenance and suitable use of the product. The manufacturer further declines all responsability for injury due to negligence and the warranty of the unit automatically expires due to improper maintenance.
WARNING
WARNING – TO REDUCE THE RISK OF A RANGE TOP GREASE FIRE:
A. Never leave surface units unattended at high settings. Boilovers cause smoking and greasy spillovers that may ignite. Heat oils slowly on low or medium settings.
B. Always turn hood ON when cooking at high heat or when flaming food (i.e. Crepes Suzette, Cherries Jubilee Peppercorn Beef Flambe).
C. Clean ventilating fans frequently. Grease should not be allowed to accumulate on fan or filte .
D. Use proper pan size. Always use cookware appropriate for the size of the surface element.
STAINLESS STEEL PERMANENT FILTERS

About Your New Filters
Stainless Steel Permanent Filters do not need linings or mesh inside of the filters and are completely constructed out of stainless steel.
The stainless steel construction allows them to be used again and again after being cleaned or going through the dishwasher.
How do Permanent Filters work?
They function by forcing the grease filled air to quickly and continuously change direction as it passes through the filter.
The grease is unable to change direction as fast as the air carrying them, they end up getting caught on the metal blades and then trapped into the filter tray.
These filters are both efficient and require less maintenance.
Additional Aluminum or Charcoal Filters can be purchased from: www.cosmoappliances.com
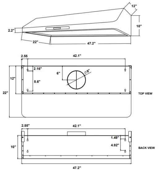
DIMENSIONS DIAGRAM



PARTS DIAGRAM
Range Hood


INSTALLATION REQUIREMENTS
Sufficient air is needed for proper combustion and exhausting of gases through the chimney of fuel burning equipment to prevent back drafting. Follow the cooking equipment manufacturers guideline and safety standards such as those published by the National Fire Protection Association (NFPA), the American Society for Heating, Refrigeration and Air Conditioning Engineers (ASHRAE), and local code.
When cutting or drilling into wall or ceiling, do not damage electrical wiring and other hidden utilities. Ducted systems must always be vented outdoors.
BEFORE YOU BEGIN
Read these instructions completely and carefully.
- IMPORTANT – Save these instructions for local inspector’s usage.
- Note to installer – Be sure to leave these instructions with the Consumer.
- Note to Consumer – Keep these instructions for future reference.
- Skill Level – Installation of this vent hood requires basic mechanical and electrical skills. Proper installation is the responsibility of the installer.
CAUTION
Due to the weight and size of these vent hoods and to reduce the risk of personal injury or dam-age to the product, TWO PEOPLE ARE REQUIRED FOR PROPER INSTALLATION.
WARNING
To reduce the risk of the fire or electrical shock, do not use this range hood with any external solid-state speed control device. Any such alteration from original factory wiring could result in damage to the unit and/or create an electrical safety hazard. TO REDUCE THE RISK OF THE FIRE, USE ONLY METAL DUCTWORK. These vent hoods are designed to be installed onto a wall or beneath a cabinet.
PARTS INCLUDED

PARTS LIST
A) Metal anchors (concrete installations) – 4 pcs
B) Damper Flap – 1
C) Plastic Anchors (drywall installations)- 10 pcs
D) ST4*4×35 mm wood screws – 10 pcs
E) ST4*4×12 mm metal screws – 6 pcs
F) Metal Hinges – 2 pcs
G) Beveled Washers – 10 pcs
H) Remote Control – 1
I) 7.5 in. round duct – 1
J) Metal Duct Clamp – 1
PARTS NEEDED
Measuring tape
Level
Safety Gloves
Pencil
Tape
Safety Goggles
Phillips screwdriver
Hammer
Drill
Flathead screwdriver
PRE-INSTALLATION REQUIREMENTS
- Please read the instructions carefully. Unpack the Range Hood and check that all functions are working before installing.
- Ensure that the voltage (V) and the frequency (Hz) indicated on the sticker match the voltage and frequency at the installation site.
- Check that the area behind the installation surface to be drilled is clear of any electrical cables or pipes, etc.
- The stainless steel surfaces of the Range Hood are very easily damaged during installation if scratched or bumped by tools. Please take care to protect the surfaces during installation.
- Protect the cooktop surface below with cardboard, or the like, to prevent damage occurring during installation.
- The manufacturer shall not be held liable for consumer’s failure to observe and follow all pre-installation procedures and safety regulations.
- The vertical distance from the cooking surface to the bottom of the range hood should be at least 24 in. to 36 in. for best performance.
- Determine if your installation will be top venting or back venting, and ensure that the openings in the cabinet or wall are in the appropriate locations and appropriate size.
- If this is a new installation, choose the venting method that suits your needs. Cut out openings for the damper and for power access in the cabinet bottom or exterior wall, depending on the installation method chosen.
DUCTWORK PLANNING
- These vent hoods are equipped for 8″ round ductwork. This hood may be vented vertically through upper cabinet or ceiling. A duct transition piece is supplied for vertical exhaust. You may use elbows (sold separately) to vent horizontally through the rear wall.
- Determine the exact location of the vent hood.
- Plan the route for venting exhaust to the outdoors.
- Use the shortest and straightest duct route possible. For satisfactory performance, duct run should not exceed 12.5 feet. equivalent length for any duct configurations.
- Use metal ductwork only.
WALL FRAMING FOR ADEQUATE SUPPORT
These vent hoods are heavy. Adequate structural support must be provided.
- Actual length of straight duct plus duct fitting must equivalent. Equivalent lengths of duct pieces are based on actual tests conducted by Evaluation Engineering and reflect requirements for good venting performance with any ventilation hood.
IMPORTANT:
Plug the Unit in and Test all Functions Before Installing
INSTALLATION INSTRUCTIONS
CAUTION: HOOD MAY HAVE VERY SHARP EDGES; PLEASE WEAR PROTECTIVE GLOVES WHENEVER IT IS NECESSARY TO REMOVE ANY PARTS FOR INSTALLING, CLEANING OR SERVICING.
Step 1:
Connect the Duct into the Damper
Secure Duct around Damper with Duct Clamp (included)
Step 2:
Clearance above stovetop ranging from 24′ to 36″ is recommended for optimal performance.
Please measure accordingly before mounting this unit.
Top /Rear Mounted Installation
* Due to the weight of the unit, we recommend mounting the Range Hood to the bottom of the cabinet above first and then secure it to wall to avoid a gap. Before starting, locate the included template to line up at your install location.
- Find the key holes at the back and top of the Range Hood. Mark their locations at the installation location using the included templates (Wall / Bottom of Cabinet) with a pencil or marker.
- Drill (4) 5/16″ (8mm) holes into wall at each of the marked locations. Insert included drywall anchors into wall holes. Firmly tap them into place. Insert screws into anchors and leave 1/4″ out for Range Hood to hang on.
- Drill an electrical access hole into cabinet above as shown on template.
- Locate the top key holes and line up Range Hood with protruding wall screws while also lining up to holes above and insert wood screws through top holes and fasten the Range Hood to the bottom of the cabinet by tightening screws with a drill or screwdriver. (this step requires you to Lift and Hang at the same time / requires two people)
- Tighten up screws to secure the Range Hood to the wall once it is fastened to the cabinet.
- Run attached ducting through cabinet as required and electrical wires through electrical access hole.


Step 2: Clearance above stovetop ranging from 24′ to 36″ is recommended for optimal performance.
Please measure accordingly before mounting this unit.
Step 4:
A. Install the Drip Tray inside the bottom rear of the range hood.
B. Install the baffle filters by inserting at an angle towards the rear of the range hood. Push the filter up and insert front of filter into front recess. Slightly lower the filter then slide back until it is in proper position.
CHARCOAL FILTERS INSTALLATION
Skip this page if you are installing a Ducted Range Hood.
Charcoal Filters are only included with Ductless Models
Before installing make sure the unit is powered off and unplugged.

AFTER CARBON FILTER INSTALLATION

Note: This is a top venting unit and a hole must be cut into the cabinet for proper installation.
Installing Recirculating Filters (For Ductless Model Only)
- Remove the permanent filters from the Range Hood
- Locate fig.1, unscrew the 6 screws along the Motor Ring (metal circle).
- Take your Filter Ring and align the holes on the Motor Ring to the holes of the Filter Ring.
- Screw the Filter Ring into Motor Ring.
- Take the Carbon Filter and lock into Filter Ring by aligning the two tabs and twisting.
- Repeat Steps 1-5 on the other side.
- Reattach the Permanent Filters.
The carbon filter must be replaced every 4-6 months depending on use.
Additional Aluminum or Permanent Filters can be purchased from
OPERATING INSTRUCTIONS
Soft Touch Controls
A. Timer Button – Only works when the range hood fan is running; touch once. The timer has a default setting of 1 minute.
Use (+) plus or (-) minus to increase or decrease time duration up to 15 minutes depending on how much time you require.
Setting The Time:
Press the Clock symbol (A) when the range hood fan is not running, the time will light up and blink.
Immediately use the (+) and (-) signs to adjust the hours.
Press the clock symbol again and immediately use the (+) and (-) signs to adjust the minutes.
After 3 seconds of no buttons being pushed, the time will save.
The clock is in standard 12-hr format.
B. Light. Press to turn light on / off.
C. Minus Button – Used to decrease settings.
(Quick High Speed On) With the unit OFF, press once as a shortcut to turn on with high speed setting.
D. Plus Button. Used to increase settings.
(Quick Low Speed On) With the unit OFF, press once as a shortcut to turn on with low speed setting.
E. Power. Press to turn control panel on / off.
MAINTENANCE
CAUTION
NEVER PUT YOUR HAND INSIDE OF THE UNIT WHILE ITS OPERATING.
FOR THE BEST PERFORMANCE CLEAN YOUR RANGE HOOD REGULARLY.
CLEANING
- Use only mild soap or cleaning solutions to clean the range hoods outer surface. Dry surfaces using a soft cloth.
- Stainless Steel cleaner may be used on the external surface.
- Cleaning the Baffle Filters: For daily cleaning, use hot, soapy water and a soft cloth. Wipe dry and finish with a damp micro-fiber cloth. Baffle filters can also be cleaned in the dishwasher.
- Clean the Range Hood assembly once every 6 months.
- DO NOT clean the motor or electrical components with water or any other liquid.
REPLACING LIGHT BULBS
CAUTION: LED LAMP UNIT IS HOT! WAIT BEFORE ATTEMPTING BEFORE ATTEMPTING TO REPLACE LED LAMPS. PLEASE BE SURE THE UNIT IS POWERED OFF 8 UNPLUGGED.
NOTE: INDIVIDUAL LED BULBS CANNOT BE REPLACED. ONLY LED LAMPS.
- Remove the baffle filters
- Find the wire connection of the lamp and unplug.
- Remove old LED lamp.
- Plug in new LED lamp.
- Reinstall the baffle filters.

TROUBLESHOOTING
CAUTION: ALWAYS UNPLUG UNIT FROM POWER BEFORE SERVICING
| PROBLEM | SOLUTION | TOOLS |
| My range hood is noisy | A. Check inside the range hood for any loose debris and remove. | Phillips Screwdriver |
| My range hood has poor performance.. | A. The range hood and cook top are too far away from each other. Optimal distance is 2C to 36′ B. There are too many open windows or doors in the area. Close some doors or windows. C. The motor performance has decreased due to wear. Replace motor. D. Check and make sure the tape holding down the damper flaps at the vent hole are removed before use. | Phillips Screwdriver |
| My range hood shakes. | A. The installation is not secure. Check again and make sure the installation hardware is securely mounted. B. The fan is broken or not balanced. Realign or replace fan. C. The motor is loose. Check and make sure the motor is solidly mounted to the unit. | Phillips Screwdriver |
| The motor no longer runs. | A. Replace control panel or circuit board. B. Replace with new motor assembly. | Phillips Screwdriver |
| Light bulbs went out. | A. Replace with a new LED lamp assembly. | Phillips Screwdriver |
WARRANTY AND SERVICE
For full warranty details on this product please visit: http://www.cosmoappliances.com/warranty
TO RECEIVE WARRANTY SERVICE, YOUR PRODUCT MUST BE REGISTERED. TO REGISTER, VISIT: WWW.COSMOAPPLIANCES.COM/WARRANTY
SCAN TO REGISTER
IMPORTANT
Do Not Return This Product To The Store If you have a problem with this product, please contact Cosmo Customer Support at +1(888)784-3108
DATED PROOF OF PURCHASE, MODEL #, AND SERIAL # REQUIRED FOR WARRANTY SERVICE IMPORTANT
Correct Disposal of this product:
This marking indicates that this appliance should not be disposed with other household wastes. To prevent possible harm to the environment or human health from uncontrolled waste disposal, recycle it responsibly to promote the sustainable reuse of material resources.
Cosmo is constantly making efforts to improve the quality and performance of our products, so we may make changes to our appliances without updating this manual.
Electronic version of this manual is available at: www.cosmoappliances.com























