Eltako FDG14 DALI Gateway Instruction

Only skilled electricians may install this electrical equipment otherwise there is the risk of fire or electric shock!
The temperature at mounting location: -20°C up to +50°C.Storage temperature: -25°C up to +70°C. Relative humidity: annual average value <75%.
valid for devices from production week 30/19 (see the bottom side of housing)
DALI gateway, bidirectional. Only 1-watt standby loss. Modular device for DIN-EN 60715 TH35 rail mounting. 2 modules = 36 mm wide, 58 mm deep.
Connection to the Eltako-RS485 bus. Bus cross-wiring and power supply with jump-er. Operation in conjunction with FAM14.
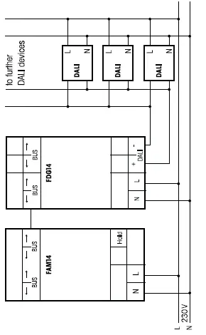
Power supply 230 V at terminals N and L. Supply 16 V DC/130mA to the DALI +/- terminals for up to 64 pcs DALI devices. The gateway FDG14 controls DALI devices with Enocean wireless transmitters.
Groups 0-15 can be controlled and the broadcast command can be sent. In addition, DALI scenes 0-15 can be controlled.DALI installations, which are to be fully controlled with the FDG14, must be configured in groups 0-15. The DALI components can be configured with the configuration software DALI-Cockpit or DALI-Monitor and the DALI interfaces DL-USB mini or DL-Flash-USB. The FDG14 internally saves the dimming value for each of the groups 0-15 and supplies this value as feedback. The same feedback telegrams are generated as for a FUD14. The FDG14 occupies 16 BR14 device addresses. The feedbacks of the device addresses correspond to the dimming values of the DALI groups 0-15 in ascending order. Feedback signals can be converted by PCT14 for every single group from a dimming value telegram (%) to pushbutton telegram (ON/OFF). BR14 actuators can then be activated by the feedback signals. The FDG14 fulfills the function of the DALI master and the DALI power supply.
The rotary switches can only teach in push-buttons for groups 0-8 and DALI scenes 0-9. Activation telegrams for groups 9-15 and scenes 10-15 are only possible by entries in PCT14. As of Production Week 30/19, the FDG14 can be used as a single-channel device ‘FDG14-Broadcast’. This is defined when the device address is issued.
Important: Wireless pushbuttons always need to be double-clicked when they are taught manually in the FDG14. CLR only needs a single click.
A direction pushbutton or universal push-button with identical ID and identical push-button can be taught several times in different groups. The group last selected is always valid. Therefore, a pushbutton can either switch only one group or broadcast to all groups. One FBH per group can also be taught. With a manual teach-in, this always acts dependent on brightness. With PCT14 you can also set the brightness threshold.
The delay time for switch-off after no motion is detected can be set together in minutes (1 … 60) for the FBH devices of all groups. The default is 3 minutes.
Function rotary switches
Operation:
After switching on the power supply, the complete DALI bus is scanned after the RS485 bus scan of the FAM14. The green LED of the FDG14 then flickers for sev-eral seconds. All DALI devices present will be recognized with their short address and fol-lowing adjustments will be read: MIN Level, Dimmspeed (fade rate & fade time) and group affiliation. The least possible minimum brightness is determined from this data and the dimming speed for groups 0…15. All DALI devices in a group must have the same dim-ming speed, so each group can be dimmed at an individual speed. The allowable range for the FADE RATE is 16 to 179 steps per second. The FADE TIME must be set to a value higher than 0.7s. The DALI scan must be performed each time a change of the settings has been made. For this, the lower rotary switch of the FDG14 must be set to AUTO again.
Universal pushbutton:
Switch on and off or dim up and down, the direction change is made by a short release of the pushbutton.
Direction pushbutton:
‘Switch on and dim up’ on one side and ‘Switch off and dim down’ on the other side. Double-click on the switch-on side activates automatic dim-up to full brightness at dim speed.
ZE: Switches on at maximum brightness (100%). A dimming value in % can be defined with PCT14.
ZA: Switches off. ‘Soft OFF’ can be deactivated with PCT14.
Rotary switch: press or turn to switch on. Dim up by turning to the right or turning to the left to DIMM done. Press to switch off. A broadcast is not possible.
White tone and intensity double rocker switch (selectable with PCT14)The left-hand rocker changes the color temperature. Press top for cool white and bottom for warm white. The right-hand rocker changes the intensity: top for brighter, bottom for darker.
FBH: A wireless motion detector and bright-ness sensor FBH can be taught-in. It is only evaluated as a motion detector. A brightness threshold at which the lighting is switched on dependent on the brightness (in addition to motion) can be defined with PCT14. If no motion is detected, switch-off takes place after 3 minutes. The switch-off delay can be set between 1 and 60 minutes. Via PCT14, it´s possible to set a time which the FBH is blocked for a selected time after a manual switching action via pushbutton. With a short press on the on side of a direction pushbutton, the FBH will be activated again. Constant lighting control with
FHD65SB: The automatic brightness control switches on automatically once the FHD65SB is taught in. The required brightness is set using a push-button and the first brightness value then received from the FHD65SB becomes the target brightness. This is kept constant automatically by the FDG by incoming brightness values from the FHD65SB. After every change in brightness (dimming) by the pushbutton, the brightness value then received from the FHD65SB becomes the new target brightness. If the target brightness is set by the PCT14 or saved with a ‘direction pushbutton for target brightness’, it then becomes permanent. A change in brightness by pushbutton is then overridden by the permanently set target brightness. If an FBH is also taught in, the light is switched on in case of motion detection and undershot target brightness and switched off in case of no motion detection or exceeded target brightness. Switching off by pushbutton deactivates automatic control by FBH or FHD65SB. Central pushbutton, scene push-button and dimming values by PC also result in deactivation. Automatic control is reactivated by briefly pressing the pushbutton on the switch-on side of the direction pushbutton. Save target brightness: Press top of direction pushbutton for target brightness. The current brightness sent by FIH65B is saved. Clear target brightness: Press bottom of direction pushbutton for target brightness.
FTK: When the window is opened, the light switches on. When the window is closed, the light switches off.
GFVS: With a dimming value telegram for one group, the blocking bit only acts on the group pushbutton for this group. With Broadcast, you can still change the group. With a dimming value telegram for all groups (Broadcast), the blocking bit only acts on the Broadcast push-button. You can still change the groups using group pushbuttons.
The yellow LED lights up permanently when the power supply is applied. The red LED lights up when a wireless signal is received.
The green LED lights up when data is sent to DALI operating units or is received from DALI operating units.
Typical connection
Teaching-in wireless sensors in
All sensors must be taught-in in the actuators so that they can detect and execute commands.
Teaching-in FDG14
The teach-in memory is clear on delivery from the factory. To ensure that a device was not previously taught-in, clear the complete memory:
Turn the lower rotary switch to CLR.
The red LED flashes at a high rate. Within 10 seconds, turn the upper rotary switch three times to right stop (turn clockwise) and back again. The LED stops flashing and goes out after 2 seconds. All taught-in sensors are cleared. Clear single taught-in sensors in the same way as in the teach-in procedure, except that you set the lower rotary switch to CLR. The LED previously flash-ing at a high rate goes out.
Teaching-in sensors:
- Set the upper rotary switch to the required group:
- 0..8 = Group 0..8
- 9 = Broadcast
- Set the lower rotary switch to the required teach-in function. The red LED flickers at a low rate.
UT = Teach in universal pushbutton
RT = Teach in direction pushbutton, direction pushbuttons are automatically taught-in fully when pressed. Depending on where the button is pressed, the functions for switch on and dim-up are defined on one side and switch-off and dim-down on the other side.
ZE = teach in ‘central on’
ZA = teach in ‘central off’
Scene = pushbutton for DALI scene recall (with the upper rotary switch, the required DALI Scene 0..9 is selected); teach in FBH, FHD65SB and FTK.
GFVS =
- Teach in GFVS and rotary switch. During the teach-in process, the actuator automatically sends a confirmation tele-gram if it has a device address and the upper rotary switch on FAM14 is turned to Pos.
- Teach in 4-way light scene push-button (only on the FDG14-Broadcast white tone and intensity double rocker switch). A complete switch with double rocker is automatically assigned.
- 3. Quickly confirm the pushbutton to be taught-in by pressing it 2x in a row
(‘double-click’). The LED goes out.
A pushbutton (rocker end) can not be taught in several groups.
To teach-in further sensors, turn the low-er rotary switch briefly away from its position. Continue the procedure from pos 1.
After teach-in, the lower rotary switch is set to AUTO.
Saving light scenes
Up to four brightness values can be saved using a 4-way light scene pushbutton.
- Set the required brightness value using a previously taught-in pushbutton or the GFVS.
- Within 60 seconds, press one of the four rocker ends of the previously taught-in light scene pushbutton for longer than 3 seconds but less than 5 seconds to save the brightness value.
- To save other light scenes, repeat from point 1.
Retrieving light scenes
Up to four brightness values are retrievable using a 4-way light scene pushbutton: pushbutton with double rocker;
- top left = light scene 1 (ex factory 30%), top
- right = light scene 2 (60%),
- bottom left = light scene 3 (100%) and bottom
- right = light scene 4 (0%).
With PCT14, the brightness value of the 4 light scenes for groups 0-15 can be changed. If MASK is chosen for a scene then this group stays unchanged at the scene´s call.
Issue device address for the FDG14: Turn the rotary switch on the FDG14 to Pos. 1. The bottom LED lights up red.
FDG14 with 16 groups: The upper rotar switch on the FDG14 must be turned to Pos. 0. FDG14-Broadcast: The upper rotary switch on the FDG14 must be turned to Pos. 9. Turn the lower rotary switch on the FDG14 to ADR. The red LED flashes at a slow rate. After the FAM14 issues the address, the lower LED of the FAM14 lights up green for 5 seconds and the LED on the FDG14 goes out.
FDG14 with 16 groups: When the address is issued by the FAM14, 2 virtual FDG14 are created each with 8 consecutive device addresses. Make sure that there is an address gap of at least 16 consecutive addresses before issuing addresses in the bus. Address gaps between 9 and 15 cause address conflicts. The best solution for issuing new addresses is therefore to start with the FDG14. This condition does not exist when the PCT14 is used to issue addresses since the device with 16 device addresses is detected and displayed.
FDG14-Broadcast: Only 1 device address is generated when addresses are issued.
Clear device configuration:
Set the lower rotary switch to CLR. The LED flashes at a high rate. Within the next 10 seconds, turn the upper rotary switch three times to left stop (turn anticlockwise) and away again. The LED stops flashing and goes out after 5 seconds. The factory settings are restored.
The following points can be configured using the PC PCT14 tool (ab Version 8.1):
- Parameters for FBH
- Parameters for FIH65B or FHD65SB
- Light scenes in %
- Dimming value in % for one push button
- Dimming value in % for Central ‘ON’ (DIRECT ARC POWER)
- Central ‘ON’ without ‘soft ON’ (RECAL MAX LEVEL)
- Central ‘OFF’ without ‘soft OFF’ (OFF)
- White tone and intensity double rocker switch (DT8 Tuneable White)
- Issue or clear device address
Caution: Do not forget the ‘Disconnect link to FAM’ in the PC Tool. No wireless commands are executed while there is a link between the PC Tool and the FAM14.
DALI-System
In the system, the DALI Gateway acts as a central control component (master controller), which also ensures the power supply of the DALI interface. The DALI devices, eg. DALI ballasts, operate as command receivers (slave), which only return states or status messages to the master upon request. It is solely the task of the DALI Gateway to send commands received via wireless control to the DALI line and to control the devices. The use of other DALI control components in multi-master mode, eg an additional DALI center, a DALI potentiometer or mains voltage pushbuttons, are unnecessary and may lead to malfunctions in the DALI system I some cases. For this reason, it is necessary to remove other components of the system – especially when retrofitting existing DALI installations.
Hereby, Eltako GmbH declares that the radio equipment type FDG14 is in com pliance with Directive 2014/53/EU. The full text of the EU declaration of conformity is available at the following internet address: eltako.com
Must be kept for later use!
We recommend the housing for operating instructions GBA14.
Eltako GmbH
D-70736 Fellbach
Technical Support English: +49 711 94350025
[email protected]
eltako.com




















