Eltako BGW14 Bus Gateway

Bus-Gateway BGW14
Only skilled electricians may install this electrical equipment otherwise there is the risk of fi re or electric shock!
Temperature at mounting location: -20°C up to +50°C. Storage temperature: -25°C up to +70°C. Relative humidity: annual average value <75%.
valid for devices from production week 06/23 (see bottom side of housing)
RS485 bus gateway. Bidirectional. Bidirectional. Only 0.3 watt standby loss. Modular device for DIN-EN 60715 TH35 rail mounting. 1 module = 18mm wide, 58mm deep.
Connection to the Eltako-RS485 bus. Bus cross wiring and power supply with jumper. Operation in conjunction with FAM14 or FTS14KS.
The Hold terminal is connected to the FAM14 or the FTS14KS.
Up to 16 sensors, e.g. BUTH55ED/12V DC, BBH55E/12V DC, BTR55EH/12V DC and BTF55E/12V DC can be connected to the RSA/ RSB terminals. Data transmission and power supply takes place over the 4-wire bus with a 12V DC power supply unit. Standard telephone wire is suffi cient as connecting lead: (J-Y (ST) Y 2x2x0,8mm2 ) or equivalent. The permitted maximum line length is 1000m. The second 120Ω terminal resistor must also be connected to the RSA/RSB terminals of the remotest sensor. With up to 8 BGW14 devices, the data of up to 128 sensors can be fed to the RS485 bus.
The operating mode rotary switch BA of each
BGW14 device must be set to a different position. Bus output ID at Pos. 1 = 0x1900+sensor address
Bus output ID at Pos. 2 = 0x1920+sensor address.
Bus output ID at Pos. 3 = 0x1940+sensor address.
Bus output ID at Pos. 8 = 0x19E0+sensor address
The BGW14 queries all connected sensors cyclically and the sensors reply with a data telegram. The data is compared with the previous data and the data is only output to the RS485 bus if there is a change. If data is recurring, the connected sensors output status telegrams cyclically every 5 minutes.
The green LED lights up continuously when a connection to the FAM14 or FTS14KS is set up with PCT14 and lights up briefl y when data is output to the RS485 bus. If a default setpoint is sent to a connected
BUTH by wireless, e.g. from a Smart Home controller, the BGW14 must receive a device address from the FAM14.
The transmitting wireless ID can be entered in the PCT14 Version 8.1 and higher for every BUTH connected in the BGW14.
From version 8.11, in the new confi guration area, the time and date can be transferred from the PC to all connected BUTH.
Issue device address for the BGW14
Turn the upper rotary switch on the FAM14 to Pos. 1. The lower LED lights up red. Turn the rotary switch of the BGW14 to Pos. 10. The green LED on the BGW14 fl ickers slowly.
After the address is issued by the FAM14, its lower LED lights up green for 5 seconds and the LED on the BGW14 goes out.
Clear all wireless IDs
Turn the rotary switch to right stop and back 5 times within 10 seconds (turn clockwise). The green LED lights up for 10 seconds and goes out. All wireless IDs are cleared.
Clear all wireless IDs and the device address in the BGW14
Turn the rotary switch to right stop and back 8 times within 10 seconds (turn clockwise). The green LED lights up for 10 seconds and goes out. All wireless IDs and the device address in the BGW14 are cleared.
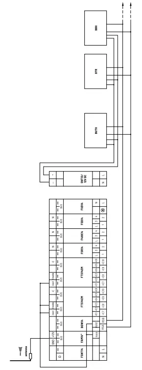
Typical connection

* alternatively FTS14KS without bidirectional wireless
The second terminating resistor supplied with the FAM14 or FTS14KS must be plugged into the last RS485-bus user. Use the PCT14 PC tool to make additional actuator setting options for conventional push buttons. Up to 16 sensors BUTH55ED, BBH55E, BTR55EH and BTF55E can be connected to the BUS gateway. A single 4-wire line supplies the The second terminating resistor supplied with the FAM14 or FTS14KS must be plugged into the last RS485-bus user. Use the PCT14 PC tool to make additional actuator setting options for conventional push buttons. Up to 16 sensors BUTH55ED, BBH55E, BTR55EH and BTF55E can be connected to the BUS gateway. A single 4-wire line supplies the.
Manuals and documents in further languages
http://eltako.com/redirect/BGW14

Must be kept for later use!
We recommend the housing for operating instructions GBA14.
Eltako GmbH
D-70736 Fellbach
Technical Support English:
+49 711 94350025
[email protected]





















