POTTER INS-QFC Quick Fill Compressor

Features
- 2HP quiet oil-less air compressor
- Meets NFPA 13 required 30 minutes fill for 500 gallon system at 40 PSI
- Pressure switch provided
- Skid mounted
Description
The INS-QFC is an air compressor designed for quick filling a sprinkler system to the desired sprinkler system supervisory pressure. The INS-QFC adds up to 500 gallons of bypass fill capacity at 40 PSI to any Potter IntelliGen™ Nitrogen Generator. The INS-QFC is designed to be used in addition to a Potter IntelliGen™ Nitrogen Generator only on the initial fill. Once the system reaches the supervisory pressure, the nitrogen generator will provide 98% or greater nitrogen for the maintenance make-up gas.
Technical Specifications
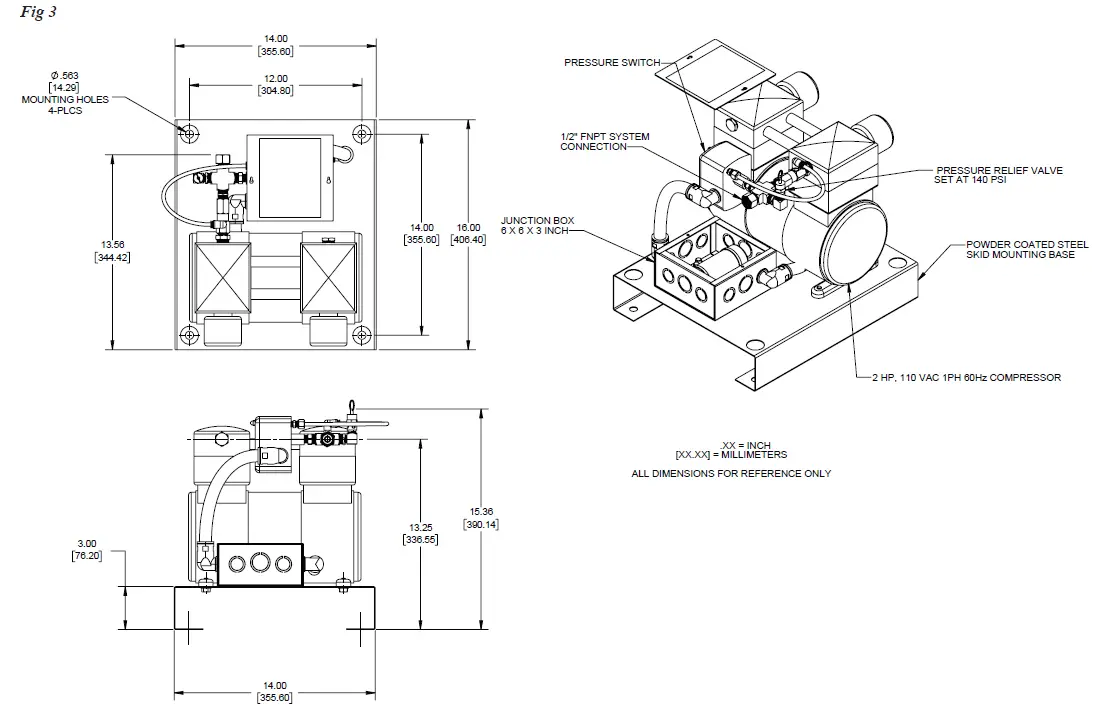
| Dimensions | See Fig 3 |
| Weight | 40 lbs |
| Power Supply | 110V (14.5 A) single phase 60HZ |
| Fire Sprinkler System Connection | ½” Female NPT |
| Operating pressure | Up to 55 pSI |
| Temperature Range | 50°F (10°C) to 110°F (43°C) |
Installation
- Near the nitrogen storage tank, mount the INS-QFC using the (4) Ø 9/16” holes on the skid.
- Plumb ½” piping from the air compressor outlet to a customer supplied ½” tee on the outlet of the nitrogen storage tank. See Fig 1.
Note: The air compressor must be plumbed upstream of the air maintenance device. - Run 110V single phase power from a dedicated 20 Amp breaker. See Fig 2.
- When there is no pressure in the sprinkler system, the air compressor will turn on, filling the system to the desired supervisory pressure as set by the air maintenance device. Once the pressure in the tank reaches approximately 50 PSI, the air compressor will turn off.
- The Potter IntelliGen™ Nitrogen Generator will continue running in Bypass Mode, filling the nitrogen storage tank to the desired 80 PSI.
- The Potter IntelliGen™ Nitrogen Generator will automatically switch to nitrogen mode and provide 98%+ nitrogen to the fire sprinkler system. Fig 1

Wiring

Dimensions

Ordering Information
| Part Number | Model | Description |
| 1119661 | INS-QFC | Quick Fill Compressor |















