Installation & Operation Manual
Direct Steam Table Mounted Jacketed
“Oyster Cooker”
TOC-2
Model TOC-2
TOC-2 Direct Steam Table Mounted Jacketed Oyster Cooker
IMPORTANT FOR FUTURE REFERENCE
Please complete this information and retain this manual for the life of the equipment:
Model #: ___________________________
Serial #: ___________________________
Date Purchased: _____________________
WARNING
Improper installation, adjustment, alteration, service or maintenance can cause property damage, injury or death. Read the installation, operating and maintenance instructions thoroughly before installing or servicing this equipment.
SAFETY PRECAUTIONS
Before installing and operating this equipment, be sure everyone involved in its operation is fully trained and aware of precautions. Accidents and problems can be caused by failure to follow fundamental rules and precautions.
The following symbols, found throughout this manual, alert you to potentially dangerous conditions to the operator, service personnel, or to the equipment.
DANGER: This symbol warns of immediate hazards that will result in severe injury or death.
WARNING: This symbol refers to a potential hazard or unsafe practice that could result in injury or death.
CAUTION: This symbol refers to a potential hazard or unsafe practice that could result in injury, product damage, or property damage.
NOTICE: This symbol refers to information that needs special attention or must be fully understood, even though not dangerous.
IMPORTANT NOTES FOR INSTALLATION AND OPERATION
WARNING
This is the safety alert symbol. It is used to alert you to potential personal injury hazards. Obey all safety messages that follow this symbol to avoid possible injury or death.
WARNING
Improper installation, operation, adjustment, alteration, service or maintenance can cause property damage, injury or death. Read the installation, operating and maintenance instructions thoroughly before installing, operating or servicing this equipment.
CAUTION
Operating, testing, and servicing should only be performed by qualified personnel.
NOTICE
This product is intended for commercial use only. NOT FOR HOUSEHOLD USE.
NOTICE
This manual should be retained for future reference.
Service Connections
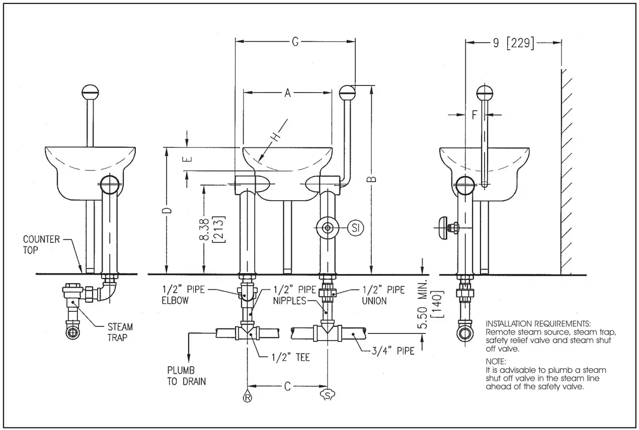
SERVICE CONNECTIONS
–STEAM SUPPLY: 1/2” IPS for incoming steam at a minimum of 5 PSI (34 kPa) and a maximum of 11 PSI (76 kPa).
–CONDENSATE RETURN: 1/2” IPS condensate return from cooker may be connected to condensate return line.
SI –STEAM CONTROL VALVE: REgulates flow of steam into cooker jacket.
DIMENSIONS
| Model | Capacity | Units | A | B | C | D | E | F | G |
| TOC-2 | 2-Quart (1.9 liters) | inches (mm) | 10” (254) | 17.88 (454) | 8.5” (216) | 12.12” (308) | 2.63” (67) | 2.375” (60) | 12.38” (314) |
Introduction
General
The direct connected steam jacketed “Oyster Cooker” is a direct steam operated pressure vessel of a double-wall stainless steel construction forming a steam chamber (jacket), tilting and counter top mounted in fixed positions on legs.
Installation Instructions
Unpacking
IMMEDIATELY INSPECT FOR SHIPPING DAMAGE
Immediately after unpacking, check for possible shipping damage. If the appliance is found to be damaged, save the packaging material and contact the carrier within 15 days of delivery.
We cannot assume responsibility for damage or loss incurred in transit.
Installation Instructions
- This appliance must be installed on a suitable table or counter top.
- On counter top make 7/8” holes at 8.5” (216 mm) centres. Provide sufficient space from rear wall to allow for tilting of appliance.
- From bottom of leg remove mounting lockouts and washers. Apply Silastic to flared edge of leg. Insert threaded portion of legs through holes. Replace washers and locknuts and tighten. Wipe off excess sealant.
- Install a safety relief valve in the steam line set at the maximum operating pressure of the appliance.
Note that one valve will handle a series of appliances. - Connect steam supply line (1/2” pipe size) to steam inlet fitting on right leg.
- Install a steam shutoff valve in steam supply line, preferably near the appliance for convenience.
- A pressure reducing valve will be required if the steam supply pressure is greater than the maximum appliance working pressure.
- If large amounts of water are in the steam line it will be necessary to install one or more ball float traps in the line to eliminate the water.
- A steam line pressure gauge is also recommended to determine the actual amount of steam coming to the appliance.
- Install a suitable steam trap in condensate line (left leg) near the appliance and run condensate return line to drain. If the condensate return line will be directed to the boiler, then it must have a check valve and gate shutoff valve near the appliance.
OPERATION
Operating Instructions
WARNING
The “Oyster Cooker” and its parts are hot. Use care when operating, cleaning and servicing the appliance.
- Fill “Oyster Cooker” kettle with product to desired level.
- Slowly turn the steam control valve ON to full open position.
- The water or food should boil 2 – 3 minutes. If it does not, then incoming pressure should be checked to determine that it is adequate to operate the kettle efficiently.
- Regulate steam control valve depending on type of food being prepared.
- When food is cooked, turn off steam, remove food and clean a cooker immediately to prevent residue from drying on cooker bowl surface.
Cleaning
Your appliance should be cleaned immediately after each use.
- Ensure that steam supply is OFF.
- Pre-rinse inside cooker thoroughly and tilt to remove any food particles.
- Using a nylon brush, clean kettle with a mild detergent and warm water rinse. Never use steel wool or scouring powder as it will scratch stainless steel.
- Tilt cooker and rinse thoroughly draining out detergent solution.
WARNING
Do not use cleaning agents that are corrosive.
Use of cleaning agents that contain chloride, acids or salts are corrosive and may cause pitting and corrosion when used over a period of time; this will reduce the life of the appliances.
Should pitting or corrosion occur this is not covered by warranty.
Follow the recommended cleaning instructions. Use a mild detergent, warm water and rinse thoroughly.
Preventive Maintenance
No preventive maintenance is required other than adhering to the Cleaning Procedure instructions.
Safety Valve Maintenance and Testing
CAUTION
Under normal operating conditions a “try lever test” should be performed every two months. Under severe service conditions, or if corrosion and/or deposits are noticed within the valve body, testing must be performed more often. A “try lever test” should also be performed at the end of any non-service period.
CAUTION
Hot, high pressure fluid may be discharged from body drain and vent during “try lever” test. Care must be taken to avoid any bodily contact.
CAUTION
High sound levels may be experienced during “try lever” test. Wear proper safety equipment and exercise extreme care! Test at, or near, half of the operating pressure by holding the test lever fully open for at least two seconds to flush the valve seat free of sediment and debris. Then release lever and permit the valve to snap shut.
If lift lever does not activate, or there is no evidence of discharge, turn off equipment immediately and contact a licensed contractor or qualified service personnel.
A product with the Crown name incorporates the best in durability and low maintenance. We all recognize, however, that replacement parts and occasional professional service may be necessary to extend the useful life of this appliance. When service is needed, contact a Crown Authorized Service Agency, or your dealer. To avoid confusion, always refer to the model number, serial number, and type of your appliance.
CROWN FOOD SERVICE EQUIPMENT
A Middleby Company
70 Oakdale Road, Downsview (Toronto) Ontario, Canada, M3N 1V9
Telephone: 919-762-1000
www.crownsteamgroup.com
MANUAL 10320 REV 1 (08/22)
$21.00
Copyright © 2022 by Crown. All rights reserved. Published in the United States of America.
INSTALLATION & OPERATION MANUAL 10320 REV 1 (08/22)

















