
STL-6-S
Street Light Series
User Manual

Special Features:
Monocrystalline Solar Panel Li-ion Rechargeable Battery
Highly Efficient Operation Mode
Material: Aluminum alloy & PC
![]()
Installation Instructions

Operation Instructions
Power On/Off: Press switch for 1.5 Sec, approx.

Operation Mode: 100%x5Hrs + 20% Untill dawn
Battery Power Indication:
| 4 LEDs On:100% | ![]() |
| 3 LEDs On: 80% to 100% | |
| 2 LEDs On: 60% to 80% | |
| 1 LED On: 30% to 60% | |
| LED 1 Flashing Slowly: <30% |
Internal Fault Indication:
| LED 4 On: Controls Fault | ![]() |
| LED 3 On: LED Panel Fault | |
| LED 2 On: Solar Panel Fault | |
| LED 1 On: Battery Fault |

When adjusting Vertical Angle, keep indicator facing down to assure indicator can be seen from below.
TECHNICAL SPECIFICATIONS
| TECHNICAL SPECIFICATIONS | |||||||
| STL-6-S | 04 | 06 | 08 | 10 | 12 | 15 | |
| Luminosity (LM) | 4.000 | 6.000 | 8.000 | 10.000 | 12.000 | 15.000 | |
| SOLAR PANEL / PANEL SOLAR | |||||||
| Type / | Monocrystalline | ||||||
| Capacity | 48.75 | 48.75 | 133.34 | 133.34 | 200 | 200 | |
| Li-Ion BATTERY (14.8 Vdc / 2.6 AH Pc) | |||||||
| Capacity | 288.6 | 384.8 | 481 | 625.3 | 769.6 | 962 | |
| Operation Temperature / | -20 to / a 60 °C | ||||||
| Recharge Time / Tiempo de Recarga (Hrs) | 6.7 | 9 | 4.2 | 5.5 | 4.5 | 5.6 | |
| ILLUMINATION | |||||||
| LED (OSRAM) | 3030 72pcs | 3030 72pcs | 3030 288pcs | 3030 288pcs | 3030 288pcs | 3030 288pcs | |
| Light Color Temp. | 4000K, Ra 70+ | ||||||
| Efficiency | 190 lm/W | ||||||
| OPERATION | |||||||
| Backup (Cloudy days) | Up to 10 nights | ||||||
| Operation Modes / Modos de Operación | 100% x 5H + 20% Until Dawn | ||||||
| Capacity Indication / | 4 LEDs On 100% 3 LEDs On 100% to / a 80% 2 LEDs On 80% to / a 60% 1 LED On / 60% to / a 30% LED 1 Flashing Low Batt / Bat. | ||||||
| Alarm Indication LED / | Built-In | ||||||
| IP/IK Codes | IP65 | / IK08 | |||||
| Directives / Normativas | CE (IEC60598-1 EN55015 / EN61547) | ||||||
| Inst. Height & Spacing / | 2 / 20 m | 6 / 25 m | 8 / 30 m | 10 / 35 m | 12 / 42m | 12 / 50m | |
WARNING
- Keep the device away from fire and fire risk
- There are no replaceable parts in the lamp. If disassembled warranty will be void.
- Do not remove battery for any other use. If backup time is too short, battery pack needs to be recharged under bright sunlight
- Clean solar panel regularly for more efficient operation and longer backup (Suggestion: At least every 6 months)
- Long term storage might cause battery damage and leakage. Leakage might cause battery spontaneous combustion
- Operation temperature for this lamp must comply with Technical Specifications
IMPORTANT NOTES:
- Solar Panel must be oriented toward sun and avoiding any shade for battery charging efficiency
- Use standard installation accessories
- If stored, charge the lamp every 3 months, to avoid battery damage
- If stored for more than 1 year without charging, make a charge & discharge process to assure battery is in good condition, otherwise it is not allowed to use
Detailed View

Parts ID
- Solar Panel
- Switch
- Indicator LEDs
- LED Lamp
- Battery Pack
- Bracket
Packing Information
| For All Models | Packing Type | Packed Units | Dimensions (mm) | Weight (Kg) Net / Neto |
| Lamp | Inner Box Carton | 1 4 | 610 x 290 x 155 625 x 595 x 325 | 1.75/2.30 7.00/10.50 |
| Model | Item | Pcs x Box | Boxes x Carton | Dimensions /Carton | Carton Weight (Kg) | |
| I Net / Neto / Bruto | ||||||
| Bracket / Soporte Solar Panel | 1 1 | 8 1 | ||||
| 7.08 7.49 | 8.00 8.45 | |||||
| STL-6-S-04 / STL-6-S-06 | 426 x 210 x 165 678 x 175 x 617 | |||||
| STL-6-S-08 / STL-6-S-10 | Bracket / Soporte Solar Panel | 1 1 | 1 1 | 220 x 145 x 715 1215 x 110 x 765 | 6.10 8.50 | 6.60 10.00 |
| STL-6-S-12 / STL-6-S-15 | Bracket / Soporte Solar Panel | 1 1 | 1 1 | 220 x 145 x 860 1438x 110 x 940 | 8.50 13.00 | 9.00 15.00 |
Net and Gross weight information is for reference purposes only
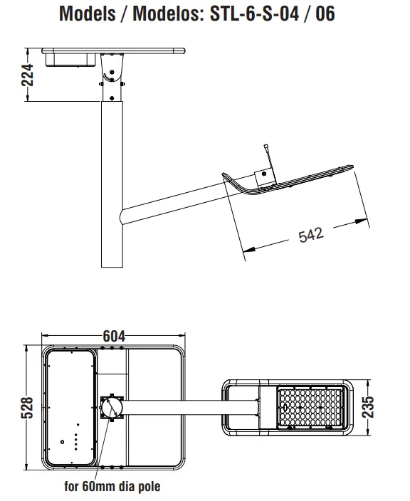
Dimensions


![]()


















