RANGEmaster TRE1SLPOCM Chrome Single Lever Pull Out Kitchen Mixer Tap Installation Guide
Installation
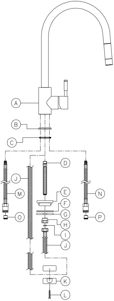
- Screw in the fixing stud (D) into the base of the tap (A).
- Place the base plinth (B) then upper seal (C) onto the base of the tap (A).
- Screw the hot & cold water flexi pipes (M & N) into the base of the tap.
- Place the mixertap (A) onto the sink or worktop; pass the flexi pipes (M & N), nylon hose (J) and fixing stud (D) through the taphole. With the tap inplace check that the flexi pipes (M &N) meet the hot and cold water feeds. If further adjustment to the plumbing is required do this now.
- Pass the rubber and then metal horseshoe (F & G) over the fixing stud (D) and around the tail pipes (M & N) and nylon hose (J). Position the tap central to the tap hole the tighten fixing nut ((H) onto the fixing stud (D). If fitting the tap to a stainless steel sinks the white triangular stabilizer (E) can be placed where shown to help to stabilize the weight of the tap.
- Place the fibre washer (I) in the end of nylon hose (J) and then tighten the nylon hose (J) onto the fixing nut (H). Note ensure the hose is not twisted and has free space in the cabinet to move.
- Fasten the hose weight (K) around the lowest point of the nylon hose (J) using hose weight screws (L).
- Connect the flexi tails pipe (M & N) to the water supply using ½” BSPx15mm compression fittings.
Note: the hose weight is designed to pull the hose straight after use; it will not pull the spout head automatically back into the spout and may have to be returned by hand.

| Key: | Description: | Qty |
| A | Tap body | 1 |
| B | Base plinth | 1 |
| C | Upper seal | 1 |
| D | Hollow fixing stud | 1 |
| E | White triangular stabilizer(for stainless steel sinks only) | 1 |
| F | Rubber horseshoe | 1 |
| G | Metal horseshoe | 1 |
| H | Fixing nut | 1 |
| I | Fibre washer | 1 |
| J | Nylon Hose | 1 |
| K | Hose weight | 1 |
| L | Hose weight screws | 2 |
| M | Hot flexi tail | 1 |
| N | Cold flexi tail | 1 |
After installation:
Once you have visually checked the installation of the new tap and all connections, ensure that all other fittings are closed except the new tap which should be left open.
Turn on your water heating system and ensure that your mains stopcock is open. Reconnect both the hot and cold water supplies to this fitting. Check the function of flow and function of hot, cold and mixed water.
Turn off the tap and check carefully for any leaks around all connections on the fitting and adjoining plumbing. If possible return to the installation after a longer period to double check for slower leaks. If pressure testing equipment is available check the installation to the maximum recommended pressure.
Clean the tap to remove any marks created during installation as instructed then place a bag over the product to protect the tap until it is ready for use.
The installation should be periodically checked for damage, if the property is left unattended for a prolonged period we recommend isolating water supplies.
5 Year warranty Terms and Conditions:
In the unlikely event that you should experience any defect in the materials or workmanship of your new Rangemaster mixer within FIVE years of purchase, the purchaser’s sole remedy shall be the replacement (at the manufacturer’s discretion) of all or any part of the product that is defective. All working parts and valves are guaranteed for a period of FIVE years from purchase. Decorative surface finishes and O-rings are guaranteed for FIVE year from the date of purchase provided that our advice concerning care has been observed and no scouring agents have been used. This is provided that the mixer has been used for normal domestic purposes in the UK or Eire and that the care, installation and maintenance instructions have been observed. The warranty extends to the original purchaser only. You should retain a copy of your dated invoice as proof of purchase to validate any claims under this guarantee. Marks, scuffs and scratches caused by improper installation or accidental damage are not covered by this guarantee. Neither are shade variations or any damage or defect caused by incorrect installation or abuse of the fitting. As we are continuously improving and developing our range of products, finishes & colours, in the event of a valid claim, we may not be able to provide an identical replacement for the defective product throughout the guarantee period. Where an identical product is no longer available, we will supply the nearest equivalent from our then current product range. In assessing your claim, we must be given the opportunity to inspect the product as installed prior to removal. Any product returns must be packaged as received and complete. No other warranties, express or implied, are made, including merchantability or fitness for a particular purpose. Under no circumstances shall the manufacturer be liable for any loss or damage arising from the purchase, use or inability to use this product, or for any special, indirect, incidental or consequential damages. No liability is accepted for consequential damage to other household fixtures, fittings or furnishings arising from this claim, even if attached to the product. No installer, dealer, agent or employee of Aga Rangemaster Limited has the authority to modify the obligations or limitations of this warranty.
Care Instructions for your Kitchen Sink Mixer:
To maintain the appearance of this tap, ensure that it is regularly cleaned only using a clean, soft damp cloth. A solution of warm water and a mild liquid detergent may be used where necessary, and then the fitting rinsed thoroughly and wiped dry. Any other cleaning action will invalidate your warranty. Abrasive cleaners, scouring cleaners and acidic cleaners must not be used under any circumstances. Avoid contact with all solvents (including chlorinated solvents, ketones or acetones as these may result in surface deterioration or etching). Also avoid contact with any harsh household chemicals such as oven cleaners, drain cleaners, rust removers, paint strippers, bar keepers friend or Brasso.
Where the tap has a removable aerator on the spout exit it can be removed and cleaned periodically to maintain optimum flow performance.
Important Technical Data:
| Min / Max operating pressure: 1.5 / 5.5 bar* |
| Tap hole size and centres: Æ35mm |
| Flow characteristics: Single flow |
This product is either WRAS approved or manufactured in accordance with recognised European standards. Please ensure that your Kitchen mixer is fitted in accordance with Local Water Byelaws. Where hot and cold water mix within the mixertap (single flow), then suitable non-return (check) valves should be installed to the hot and cold supplies to prevent backflow (can be factory fitted – see parts list). Hot and cold supply pressures should be as closely balanced as possible for best results. Supply pipes should maintain the maximum diameter until immediately before the fitting. Always use the tail pipes provided. The differential between the hot and cold water supply temperatures should be sufficient to allow correct mixing function. These installation guidelines have been prepared for your direction and you must exercise due care at all times. We do not accept responsibility for problems that may occur through improper installation. Whilst assembling the tap take care not to accidentally loosen any factory fixed assemblies. This tap has been 100% assembly tested; therefore you may expect a small residual amount of water to remain in the tap when delivered. Any water marks can be removed using the above care advice.
Installation Preparation:
All parts should be removed from their packaging and inspected for completeness and transport damage prior to installation. Before installing the new mixer it is essential that you thoroughly flush through the supply pipes in order to remove any remaining solder, swarf or impurities from your system. Failure to carry out this simple procedure could cause damage to the workings of the mixertap, reduce flow rates and invalidate the warranty. We recommend installing isolation valves to both the hot and cold feed pipes in an accessible position. This will help to ease any future required maintenance to the product. Shut off the water heating system and ensure that the mains stopcock is closed. Ensure both the hot and cold water supplies are isolated before commencing installation. If replacing an existing tap, remove the tap & clean the end of the feed pipes using wire wool, the tap hole areas should be free from dirt and sealant. You should ensure that the product will both fit into the depth of the mounting surface available and reach the required outlet positions before installation. Loosely position the tap to check if any alteration to the existing pipework is required, if this is the case do this now



















