Carrier CRPWREXH068A00 Power Exhaust Accessory Single Package Rooftop Units Instruction Manual
IMPORTANT: Read these instructions completely before attempting to install this accessory.
SAFETY CONSIDERATIONS
Installation and servicing of air-conditioning equipment can be hazardous due to system pressure and electrical components. Only trained and qualified service personnel should install, repair, or service air-conditioning equipment.
Untrained personnel can perform basic maintenance functions of cleaning coils and filters and replacing filters. All other operations should be performed by trained service personnel. When working on air-conditioning equipment, observe precautions in the literature, tags and labels attached to the unit, and other safety precautions that may apply.
Follow all safety codes. Wear safety glasses and work gloves. Use quenching cloth for unbrazing operations. Have fire extinguisher available for all brazing operations.
It is important to recognize safety information. This is the safetyalert symbol
. When you see this symbol on the unit and in instructions or manuals, be alert to the potential for personal injury.
Understand the signal words DANGER, WARNING, CAUTION, and NOTE. These words are used with the safety-alert symbol. DANGER identifies the most serious hazards which will result in severe personal injury or death. WARNING signifies hazards which could result in personal injury or death. CAUTION is used to identify unsafe practices, which may result in minor personal injury or product and property damage. NOTE is used to highlight suggestions which will result in enhanced installation, reliability, or operation.
WARNING
ELECTRICAL SHOCK HAZARD
Failure to follow this warning could result in personal injury and/or death.
Before beginning any modification, disconnect power supply and install lockout tag before attempting to install the accessory. All wiring must comply with applicable national and local codes.
CAUTION
EQUIPMENT DAMAGE HAZARD
Failure to follow this caution may result in damage to equipment.
When removing panels from the unit, be careful not to damage the roof or other surfaces with the panels.
GENERAL
IMPORTANT: The power exhaust accessory requires the use of the economizer. Power Exhaust will not operate without the use of an economizer.
The power exhaust accessory is for use in both vertical and horizontal return air duct applications.
Confirm that the power exhaust package part number on the crate matches the unit size and voltage of the unit per Tables 1 and 2.
Consult product literature for the economizer accessory if the unit is not already equipped.
Refer to Table 3 for a complete list of parts contained in each pow- er exhaust kit.
The power exhaust hood assembly has 2 power exhaust blowers. Return block-off panels, support bracket, screws, relay and wiring harness are also included in the package.
Table 1 — Power Exhaust Accessory Usage (Vane Axial Fan Units)
| UNIT MODEL | NOMINAL TONS | UNIT NAMEPLATE V-Ph-Hz | POWER EXHAUST PART NUMBER | NUMBER REQUIRED | |
| 48/50FC, 50FCQ 582K/559K/547K RAV/RGV/RHV | 17.5 | 208/230-3-60 | CRPWREXH068A00 | 1 | |
| 460-3-60 | CRPWREXH069A00 | 1 | |||
| 575-3-60 | CRPWREXH070A00 | 1 | |||
| 20 | 208/230-3-60 | CRPWREXH068A00 | 1 | ||
| 460-3-60 | CRPWREXH069A00 | 1 | |||
| 575-3-60 | CRPWREXH070A00 | 1 | |||
| 208/230-3-60 | CRPWREXH068A00 | 1 | |||
| 25 | |||||
| 460-3-60 | CRPWREXH069A00 | 1 | |||
| 575-3-60 | CRPWREXH070A00 | 1 | |||
| 27.5 | 208/230-3-60 | CRPWREXH068A00 | 1 | ||
| 460-3-60 | CRPWREXH069A00 | 1 | |||
| 575-3-60 | CRPWREXH070A00 | 1 |
NOTE: Not all sizes may be available at this time.
Table 2 — Power Exhaust Accessory Usage (Belt Drive Fan Units)
| UNIT MODEL | NOMINAL TONS | UNIT NAMEPLATE V-Ph-Hz | POWER EXHAUST PART NUMBER | NUMBER REQUIRED | |
| 48/50HC, 50HCQ 581J/551J/549J RGH/RAH/RHH 48/50TC, 50TCQ 580J/558J/548J RAS/RGS/RHS 48/50LC | 12.5 | 208/230-3-60 | CRPWREXH068A00 | 1 | |
| 460-3-60 | CRPWREXH069A00 | 1 | |||
| 575-3-60 | CRPWREXH070A00 | 1 | |||
| 15 | 208/230-3-60 | CRPWREXH068A00 | 1 | ||
| 460-3-60 | CRPWREXH069A00 | 1 | |||
| 575-3-60 | CRPWREXH070A00 | 1 | |||
| 17.5 | 208/230-3-60 | CRPWREXH068A00 | 1 | ||
| 460-3-60 | CRPWREXH069A00 | 1 | |||
| 575-3-60 | CRPWREXH070A00 | 1 | |||
| 208/230-3-60 | CRPWREXH068A00 | 1 | |||
| 20 | |||||
| 460-3-60 | CRPWREXH069A00 | 1 | |||
| 575-3-60 | CRPWREXH070A00 | 1 | |||
| 25 | 208/230-3-60 | CRPWREXH068A00 | 1 | ||
| 460-3-60 | CRPWREXH069A00 | 1 | |||
| 575-3-60 | CRPWREXH070A00 | 1 |
Table 3 — Power Exhaust Package Parts List
| ITEM | DESCRIPTION (QTY) | ||
| CRPWREXH068A00 | CRPWREXH069A00 | CRPWREXH070A00 | |
| Power Exhaust Fan Assembly | 50HE400972 (1) | 50HE400973 (1) | 50HE400974 (1) |
| Right Block– Off Panel* | 50HE400965 (1) | 50HE400965 (1) | 50HE400965 (1) |
| Left Block–off Panel* | 50HE400966 (1) | 50HE400966 (1) | 50HE400966 (1) |
| Support Bracket | 50HE500728 (1) | 50HE500728 (1) | 50HE500728 (1) |
| Harness Assembly | 50HEHMRAX—A00 (1) | 50HEHMRAX—A00 (1) | 50HEHMRAX—A00 (1) |
| Harness Assembly† | 50HE401639 (1) | 50HE401639 (1) | 50HE401639 (1) |
| Power Exhaust Relay | HN61PC005 (1) | HN61PC005 (1) | HN61PC005 (1) |
| Screw (AL31AZ219) | #10 x 7/8 in. Gasket Head (8) | #10 x 7/8 in. Gasket Head (8) | #10 x 7/8 in. Gasket Head (8) |
| Screw (AL48AM217) | #10 x 5/8 in. Serrated Head (7) | #10 x 5/8 in.Serrated Head (7) | #10 x 5/8 in. Serrated Head (7) |
| Screw (AL31AZ308) | 1/4 -14 x 3/4 in. (15) | 1/4 -14 x 3/4 in. (15) | 1/4 -14 x 3/4 in. (15) |
| Screw (AL56AU166) | 8-18 x 1/2 in. Pan Head (2) | 8-18 x 1/2 in. Pan Head (2) | 8-18 x 1/2 in. Pan Head (2) |
| Wire Tie | HY76TB110 (8) | HY76TB110 (8) | HY76TB110 (8) |
For use in Vertical Return Air Applications
† For use in Horizontal Return Air Applications only.
INSTALLATION
Power and Control Wiring
- Unpack the contents of the crate. Use Table 3 to confirm that the kit contains all of its parts.
- The power exhaust motor is factory wired to the high speed tap (terminal 1). To change the motor speed move the black wire to the desired speed tap on the motor per Table 4.
NOTE: When using the power exhaust in a horizontal application, some wiring may have to be field lengthened. - Remove the control box access panel.
- Install the Power Exhaust Relay (PER) in the control box, at the position shown in Fig. 1 for vane axial units and Fig. 2 for belt drive fan units, using two 8-18 in. x 1/2 in. pan head screws (AL56AU166).
Table 4 — Motor Speed Tap Configuration
MOTOR TERMINAL NUMBERPOWER EXHAUST MOTOR 1 2 3 PEM1 High Medium Low PEM2 High Medium Low LEGEND
PEM — Power Exhaust Motor
NOTE: The power exhaust motor closest to the control box is PEM1.
The motor furthest from the control box is PEM2.
Fig. 1 — Power Exhaust Relay Installation (Vane Axial Fan Units)
Fig. 2 — Power Exhaust Relay Installation (Belt Drive Fan Units) - Install wiring harness (50HEMRAX-A00) in the control box as shown in Fig. 3. Refer to Fig. 4 for point to point connections. Wiring harness label near terminals should match connection point in control box.
- Connect violet wire in unit wiring harness from PL6-11 to the Power Exhaust Relay (PER) coil terminal 1.
- Bundle the power exhaust wiring harness to existing control box wiring harness with 6 of the supplied wire ties.

Fig. 3 — Power Exhaust Wiring Installation

LEGEND
OFC – Outdoor Fan Connector
PEM – Power Exhaust Motor
PER – Power Exhaust Relay
PLx-y – Plug x–Pin y
CAP – Capacitor
Fig. 4 — Power Exhaust Wiring Diagram
Power Exhaust Installation for Vertical Return Air Application
On vertical return air duct applications the power exhaust fan assembly is attached at the unit return air panel location.
- Remove existing return air panel on unit, located below the economizer hood as shown in Fig. 5. Discard the panel and screws.
- Install support bracket (50HE400966) to holes in the base rail, as shown in Fig. 6, using four No. 10 x 5/8 in. serrated head screws (AL48AM217).

Fig. 5 — Unit Return Air Panel Removal for Vertical Return Air Applications - Install three No. 10 x 5/8 in. serrated head screws (AL48AM217) in the three locations shown in Fig. 7. The screws should be installed very loose.
- Place power exhaust fan assembly on lower flange of power exhaust opening as shown in Fig. 8. Make sure that all three screws line up in the slots in the power exhaust bottom flange.

Fig. 6 — Install Support Bracket to Base Rail for Vertical Return Air Applications
Fig. 7 — Install Screws to Locate Power Exhaust Fan Assembly for Vertical Return Air Applications
Fig. 8 — Install Power Exhaust Fan Assembly on Vertical Return Air Applications
NOTE: Figures 8 and 9 are shown with the economizer hood removed to provide a clear view of the flange at the top of the power exhaust fan assembly (Fig. 8) and the tops of the block off panels (Fig. 9). - Install three 1/4-14 x 3/4 in. gasket head screws (AL31AZ308) in the three locations at the top flange of the power exhaust fan assembly. (See Fig. 8.)
- Tighten the three screws at the bottom of the power exhaust fan assembly, installed in Step 3 above. (See Fig. 8.)
- Install the left block-off panel with two No. 10 x 5/8 in. serrated head screws (AL48M217) at the bottom edge. Make sure the top edge of left block-off panel is behind the flange of the upper economizer panel. Install three 1/4-14 x 3/4 in. gasket head screws (AL31AZ308) to secure the left block-off panel to the flange on the power exhaust fan assembly. Install four No.10 x 7/8 in. gasket head screws (AL31AZ219) to secure the left block-off plate to the unit corner post and the upper economizer panel. (See Fig. 9.)
- Remove two small plug access plates located in the economizer motor compartment. The economizer motor compartment is accessible by removing the control box side economizer hood screen, if the economizer hood is already installed on the unit.
- Route the PL-9 plug, supplied with the power exhaust fan assembly, through the bottom plug access hole in the economizer motor compartment and through the top plug access hole. Route the PL-9 through the grommet located in the top left corner of the control box.
- Connect the 6 pin plug PL-9 from the wiring harness into the 6 pin plug of the power exhaust fan assembly. Make sure that the PL-9 connection is made inside the control box

Fig. 9 — Power Exhaust Block-Off Panels Installed for Vertical Return Air Applications - Bundle up excess wire of the motor harness and secure with wire ties. When bundling wires, be sure to gather wires as close as possible so that the wires cannot contact moving parts for the power exhaust fans or the economizer mechanisms.
- Replace plug access plates in economizer motor compartment.
- Install the right block-off panel with two No. 10 x 5/8 in. serrated head screws (AL48AM217) at the bottom edge.
Make sure the top edge of the right block-off panel is behind the flange of the upper economizer panel. Install three 1/4 -14 x 3/4 in. gasket head screws (AL31AZ308) to secure the right block-off panel to the flange of the power exhaust fan assembly. Install four No. 10 x 7/8 in. gasket head screws (AL31AZ219) to secure the right block-off panel to the unit corner post and upper economizer panel. (See Fig. 9.) - Install six 1/4-14 x 3/4 in. gasket head screws (AL31AZ308) in three holes in the left and right side block-off panels to prevent water leakage into the unit. These holes are for mounting the power exhaust in the shipping position but are not needed for accessory power exhaust applications. (See Fig. 9.)
- Apply silicone caulking to corners and flanges of power exhaust fan assembly at the block-off panels to prevent water leakage.
- Replace control box access panel.
Power Exhaust Installation for Horizontal Return Air Applications
CAUTION
CUT HAZARD
Failure to follow this caution may result in personal injury.
Sheet metal parts may have sharp edges or burrs. Use care and wear appropriate protective clothing, safety glasses and gloves when handling parts and servicing air conditioning equipment.
Use the following instructions for horizontal return air duct applications of the power exhaust fan assembly. (See Fig. 10.)
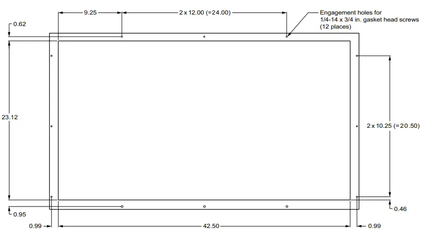
- A transition in the duct height is required. To assure that the transition required will accommodate the exhaust opening size begin at least 5 ft away from the back of the outside air hood. Provide a 42.5 in. W x 23.2 in. H opening in the side of the return air duct, as shown in Fig. 11.
NOTE: Any obstruction closer than 5 ft will interfere with airflow and result in rain entering the hood through the filters. - Provide engagement holes (12) for 1/4-14 x 3/4 in. gasket head screws (AL31AZ308) around the opening as shown in Fig. 11.
- Apply silicone caulking to corners and back side of mating flanges of the power exhaust fan assembly.
- Set the power exhaust hood assembly into the opening in the duct, bottom lip first as shown in Fig. 12.
- Lift the assembly to allow the bottom corner tabs to hook over the opening in the duct work. (See Fig. 12.)

Fig. 10 — Typical Horizontal Air Return Application
Fig. 11 — Horizontal Discharge Mounting Opening
Fig. 12 — Hood Assembly Placed in Duct Work - Install three 1/4-14 x 3/4 in. gasket head screws (AL31AZ308) along the top of the hood.
- Install three 1/4-14 x 3/4 in. gasket head screws (AL31AZ308) along the bottom of the hood.
- Install 3 more 1/4-14 x 3/4 screws om right and left side of hood assembly.
- Remove shipping tape from damper blades.
- Remove two small plug access plates located in the economizer motor compartment. The economizer motor compartment is accessible by removing the economizer hood screen, if the economizer hood is already installed on the unit.
- Connect wiring harness (50HE401639) to power exhaust assembly PL-9 to extend harness if needed.
- Route the PL-9 plug, supplied with the power exhaust fan assembly, through the bottom plug access hole in the economizer motor compartment and through the top plug access hole. Route the PL-9 through the grommet located in the top left corner of the control box.
- Connect the 6 pin plug PL-9 from the wiring harness into the 6 pin plug of the power exhaust fan assembly. Ensure that the PL-9 connection is made inside the control box.
- Bundle up excess wire of the motor harness and secure with wire ties. When bundling wires, be sure to gather wires as close as possible so that the wires can not contact moving parts for the power exhaust fans or the economizer mechanisms.
- Replace plug access plates in economizer motor compartment.
- Replace the control box access panel.
POWER EXHAUST FUNCTIONAL CHECK
For Units with EconoMi$er IV Controls
(HH63AW001-W7212 Honeywell Controller)
- With main power shut off, mark minimum position on EconoMi$er® IV controller. (See Fig.13.)

Fig. 13 — EconoMi$er IV Controller (HH63AW001-W7212 Honeywell Controller) - The controller must be in occupied mode to energize the power exhaust fans. To set the controller to occupied mode, check the “CUT FOR OCCUPANCY” jumper on the central terminal board. (See Fig. 14).

Fig. 14 — Central Terminal Board- If the jumper has not been cut, proceed to Step 3.
- If the jumper has been cut, place a jumper wire across the OCCUPANCY terminal.
- Place jumper wire on thermostat inputs across terminals R and G to activate a call for indoor fan to energize. (See Fig. 14.)
- Energize main power to the unit.
- Turn the minimum position potentiometer (MIN POS) on the Economizer IV controller clockwise to open until the exhaust LED (EXH) lights up. (See Fig. 13.)
- Dry contacts on the Economizer IV controller should close and energize the Power Exhaust Relay (PER). The power exhaust should turn on.
- If the power exhaust fan does not turn on, de-energize main power to the unit and then check the power exhaust installation wiring.
- Set the unit back to its original configuration by turning the minimum position potentiometer (MIN POS) counter-clockwise, back to the marked setting and remove the jumpers placed in Steps 2 and 3 of this procedure.
NOTE: For units with DDC control see Service and Maintenance Manual for power exhaust functional check instructions.
For Units with W7220 Economizer
The economizer controller used on electro mechanical units is a Honeywell W7220 which is to be located in the RTU base unit’s control box. See the Installation Instruction for your base unit for the location of the control box access panel.
NOTE: W7220 control is able to run the check-up routine for economizer/exhaust directly. This routine can be accessed and ran using the keypad and navigating through menus.
The W7220 controller provides the following:
- 2-line LCD interface screen for setup, configuration and troubleshooting
- On-board fault detection and diagnostics
- Sensor failure loss of communications identification
- Automatic sensor detection
- Capabilities for use with multiple-speed indoor fan systems
USER INTERFACE
The user interface consists of a LCD display and a 4-button keypad on the front of the economizer controller.
KEYPAD
The four navigation buttons (see Fig. 15) are used to scroll through the menus/menu items, select menu items, and to change parameter and configuration settings.
USING THE KEYPAD WITH MENUS
To use the keypad when working with menus:
- Press the ▲ Up (arrow) button to move to the previous menu.
- Press the ▼ (Down arrow) button to move to the next menu.
- Press the
(Enter) button to display the first item in the currently displayed menu. - Press the
(Menu Up/Exit) button to exit a menu’s item and return to the list of menus.
MENU STRUCTURE
The Menus in display order are:
- STATUS
- SETPOINTS
- SYSTEM SETUP
- ADVANCED SETUP
- CHECKOUT
- ALARMS

CHECKOUT TEST
NOTE: See User Interface for information about menu navigation and use of the keypad.
To perform a Checkout test:
- Scroll to DAMPER OPEN in the Checkout menu using the ▲ and ▼ buttons.
- Press the
button to select the item. - RUN appears.
- Press the
button to start the test. - The unit pauses and then displays IN PROGRESS.
- Exhaust fan contacts enable during the DAMPER OPEN test. Make sure you pause in the mode to allow exhaust contacts to energize due the delay in the system.
- When the test is complete, DONE appears.
- When all desired parameters have been tested, press the
(Menu up) button to end the test.
NOTE: Checkout test can be performed at any time during the operation of the system as a test that the system is operable.
CAUTION
EQUIPMENT DAMAGE HAZARD
Failure to follow this caution may result in equipment damage.
Be sure to allow enough time for compressor startup and shutdown between checkout tests so that you do not shortcycle the compressors.
START-UP
Refer to the base unit’s Service and Maintenance Manual for de- tailed Start-up instructions.






























