4PXCBU36BS3HAC American Standard/Trane
Installation Guidejkljkljkl
Installer’s Guide
4PXCBU36BS3HAC American Standard/Trane
Cased Aluminum Coil “Dedicated Upflow/Downflow”
Convertible to horizontal with separately purchased kit
Upflow model:
4PXCDU60BS3HAC
4PXCDD60BS3HDC
4PXCBU36BS3HAC
4PXCBD36BS3HDC
ALL phases of this installation must comply with NATIONAL, STATE AND LOCAL CODES
IMPORTANT — This Document is customer property and is to remain with this unit. Please return to service information pack upon completion of work.
WARNING
WARNING (Medium/high pressure)
Contains Refrigerant!
System contains oil and refrigerant under high pressure. Recover refrigerant to relieve pressure before opening the system. See unit nameplate for refrigerant type. Do not use non-approved refrigerants, refrigerant substitutes, or refrigerant additives.
Failure to follow proper procedures or the use of nonapproved refrigerants, substitutes, or refrigerant additives could result in death, serious injury, or equipment damage.
WARNING
This product can expose you to chemicals including lead, which are known to the State of California to cause cancer and birth defects or other reproductive harm. For more information go to www.P65Warnings.ca.gov
GENERAL
This coil is designed for use in combination with a heat pump or cooling outdoor section using R-410A REFRIGERANT.
The 4PXC equipment has been evaluated in accordance with the Code of Federal Regulations, Chapter XX, Part 3280 or the equivalent. “Suitable for Mobile Home use” The height of the Furnace, Coil and discharge duct work must be 7 ft. or less. Inspect the coil for shipping damage. Notify the transportation company immediately if the coil is damaged.
APPLICATION INFORMATION
NOTE:
4PXC upflow coils may be installed in Upflow, Downflow, Horizontal Right with kit, and Horizontal Left with kit. 4PXC downflow coils may be installed in Downflow and
Horizontal Right with kit.
1. FURNACE AND COIL
The coil MUST BE installed downstream (in the outlet air) of the furnace.
NOTE:
OPTIONAL DOWNFLOW GASKET INSTALLATION: For unusually humid applications that expect prolonged operation above 70% RH, it is recommended to use the
BAYGSKT001A0 gasket kit to prevent water from forming on the bottom of the drain pan and dripping into the supply ductwork.
2. INDOOR UNIT AIRFLOW
Indoor unit must provide the required airflow for the heat pump or cooling combinations approved for this coil.
IMPORTANT:
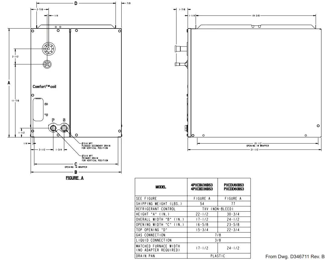
Review your installation requirements. Check the table on the outline drawing and note all dimensions for your coil before beginning the installation.
RECOMMENDATION
If a coil is part of the total system installation, use the Installer’s Guide packaged with the furnaces, outdoor sections, andthermostat for physically installing those components.
IMPORTANT:
If installing the coil in the horizontal position, you MUST use the horizontal kit listed below for this coil model number and follow the instructions in the installation guide provided with the conversion kit.
| Model Number | Horizontal Kit No. |
| 4PXCBU36BS3HAC | BAYCONV23B |
| 4PXCBD36BS3HDC | |
| 4PXCDU60BS3HAC | BAYCONV30C |
| 4PXCDD60BS3HDC |
FURNACE IN UPFLOW POSITION
APPLICATION USES UPFLOW COIL MODEL ONLY
CAUTION
This coil is pressurized with 8-12 psig of dry air. Do not stand directly in front of the coil connections when removing sealing plugs. If no pressure is released, check for leaks.
1. UPFLOW GAS FURNACE
a. Apply gasket material (duct seal field supplied) to ALL mating surfaces between the furnace and the coil case.
b. Set the coil case on top of the furnace. Connect the ductwork to the coil case using field supplied screws. See Figure 2.
c. Secure the coil case to the furnace and seal for air leaks as required.
FURNACE IN DOWNFLOW POSITION
CAUTION
This coil is pressurized with 8-12 psig of dry air. Do not stand directly in front of the coil connections when removing sealing plugs. If no pressure is released, check for leaks.
- DOWNFLOW COIL CONVERSION
On 4PXCDD60BS and 4PXCDU60BS, installing the water diverter baffles is required for water management in downflow installations. Install the two outer water baffles closest to the drain pan using the provided 5/16″ hex screws. See Figure 3. - DOWNFLOW GAS FURNACE
When a coil is used with a downflow furnace, a subbase is not required between the coil case and combustible flooring
a. Place the coil case on the furnace supply air plenum.
b. Secure the coil case to the plenum.
c. Set the furnace on top of the coil case, making sure that the back side of the discharge opening is snug up against the duct flange at the top rear of the coil case.
d. Secure the coil case to the furnace and seal for air leaks as required. - DOWNFLOW GASKET INSTALLATION (OPTIONAL):
For unusually humid applications that expect prolonged operation above 70% RH, it is recommended to use the BAYGSKT001A0 gasket kit to prevent water from forming on the bottom of the drain pan and dripping into the supply ductwork.
a. Lay the coil on its back side.
b. Locate the 4″ wide gasket material found in BAYGSKT001A0.
c. Attach the 4″ gasket material to three sides of the bottom of the drain pan as shown. Make sure to start by matching up the edge of the gasket material to the inner edge of the drain pan by the coil fins and working outwards.
d. The gasket material can be cut or ripped easily so that it can be tailored to fit. The gasket material must cover the three sides along the entire length of the coil as shown in Figure 4.
Note: For S-series furnaces, bend outlet flanges inward or outward to suit installation. Coil and furnace will nest together.
MAXIMUM AIRFLOW SETTING (CFM)
NOTE:
Water blow-off could occur in certain installation positions if the airflow setting exceeds the maximum values listed.
| Maximum airflow settings (CFM) | ||||
| Coil | Upflow | Downflow | Horizontal Left | Horizontal Right |
| 4PXCBU36BS3HAC | 1350 | 1100 | 1200 | 1350 |
| 4PXCBD36BS3HDC | N/A | 1100 | N/A | 1350 |
| 4PXCDU6OBS3HAC | 2250 | 1850 | 2000 | 2250 |
| 4PXCDD6OBS3HDC | N/A | 1850 | N/A | 2250 |
INSTALLING / BRAZING REFRIGERANT LINES
CAUTION
Do NOT open refrigerant valve at the outdoor unit until the refrigerant lines and coil have been brazed, evacuated, and leak checked. This would cause contamination of the refrigerant or possible discharge of refrigerant to the atmosphere.
- The following steps are to be considered when installing the refrigerant lines:
a. Determine the most practical way to run the lines.
b. Consider types of bends to be made and space limitations.
c. Route the tubing making all required bends and properly secure the tubing before making final connections.
NOTE:
Refrigerant lines must be isolated from the structure and the holes must be sealed weather tight after installation.
IMPORTANT:
Do not unseal refrigerant tubing until ready to fit refrigerant lines.
There is only a holding charge of dry air in the indoor coil, therefore no loss of operating refrigerant charge occurs when the sealing plugs are removed.
NOTE:
TXV bulb MUST be protected (wrapped with wet rag) or removed, while brazing the tubing. Overheating of the sensing bulb will affect the functional characteristics and performance of the comfort coil.
- Remove both rubber plugs from the indoor coil.
- Field supplied tubing should be cut square, round and free of burrs at the connecting end. Clean the tubing to prevent contaminants from entering the system.
- Run the refrigerant tubing into the stub tube sockets of the indoor unit coil.
PAINTED AREAS OF THE UNIT MUST BE SHIELDED DURING BRAZING. - Flow a small amount of nitrogen through the tubing while brazing.
- Use good brazing technique to make leakproof joints.
- Minimize the use of sharp 90 degree bends.
- Insulate the suction line and its fittings.
- Do NOT allow un-insulated lines to come into contact with each other.
NOTE:
When replacing the TXV bulb, reinstall the bulb in the proper orientation using the spring clip provided. - Rewrap the TXV bulb, spring clip, and suction line with insulation after spring clip is reinstalled.
NOTE:
The TXV setting may run high superheat when measured at the outdoor unit (15-25 °F) for upflow and horizontal left installations. - For optimal performance, the TXV bulb may be relocated outside the coil cabinet after the field line brazing is complete.
a. Remove the bulb insulation and bulb clip.
b. Lace the TXV bulb through the large coil panel grommet.
c. Assemble the TXV bulb to the field provided suction line outside the unit. Ensure the bulb is mounted on a straight, smooth section of 7/8″ O.D. copper line.
The bulb should be clear of any field braze joints and located away from any bends in the pipe.
d. The recommend installation position for the TXV bulb is parallel to the ground (on a horizontal plane). The bulb position should be at 2 o’clock or 10 o’clock. See Figure 7.
e. Wrap the bulb and suction with field provided insulation after the spring clip is reinstalled.
H. LEAK CHECK
- Using a manifold gauge, connect an external supply of dry nitrogen to the gauge port on the liquid line.
- Pressurize the connecting lines and indoor coil to 150 PSIG aximum.
- Leak check brazed line connections using soap bubbles. Repair leaks (if any) after relieving pressure.
- Evacuate and charge the system per the instructions packaged with the outdoor unit.
I. CONDENSATE DRAIN PIPING
Condensate drain connections are located in the drain pan at the bottom of the coil/enclosure assembly. The female threaded fitting protrudes outside of the enclosure for external connection. A field fabricated trap is not required for proper drainage due to the positive pressure of the furnace; however, it is recommended to prevent efficiency loss of conditioned air.
- The drain hole in the drain pan must be cleared of all insulation.
- Insulate the primary drain line to prevent sweating where dew point temperatures may be met. (Optional depending on climate and application needs)
- Connect the secondary drain line to a separate drain line (no trap is needed in this line).
J. CLEANING THE COIL
The two piece door allows removal of the outer casing doors without interference from refrigerant or condensate lines.The foil covered insulation on 4PXC coils should be wiped down and residual dirt and dust should be vacuumed up to maintain good air quality. See Figure 8.
The manufacturer’s recommendation for coil cleaning is to initially use only water to wash away debris that may have collected on and in the coil fin surface. Removing an evaporator coil is the best way to effectively clean a coil that is heavily contaminated. This is accomplished by removing the coil from the cabinet, sealing the liquid and vapor line and using a strong water stream such as from a garden hose, being careful to prevent fin damage. Use chemical cleaners, only when necessary.
NOTE:
Refer to Service Guideline, UN-SVG001C-EN, Evaporator Coil Cleaning and Condensate Drain Maintenance Guidelines for important information on cleaning coils with chemical treatments.
Outline Drawing for Upflow model: 4PXCBU36BS3HAC, 4PXCBD36BS3HDC, 4PXCDU60BS3HAC, 4PXCDD60BS3HDC
Before starting, insure the blower wheel, indoor and outdoor coils are clean.
Troubleshooting Indoor TXV / Cooling Mode
About Trane and American Standard Heating and Air Conditioning Trane and American Standard create comfortable, energy efficient indoor environments for residential applications. For more information, please visit www.trane.com or www.americanstandardair.com
The manufacturer has a policy of continuous data improvement and it reserves the right to change design and specifications without notice. We are committed to using environmentally conscious print practices.
18-AD43D1-1C-EN 14 Nov 2022
Supersedes 18-AD43D1-1B-EN (Aug 2022)

d. The recommend installation position for the TXV bulb is parallel to the ground (on a horizontal plane). The bulb position should be at 2 o’clock or 10 o’clock. See Figure 7.


















