

Installer’s Guide
Horizontal, Flat “Cased” Coils
Copper/Aluminum Coils: 4PXFH001BC3HHA, 4PXFH003BZ3HHA, 4PXFH004BC3HHA, 4PXFH005BZ3HHA, 4PXFH007BC3HHA, 4PXFH009BZ3HHA
4PXFH004BC3HHA Horizontal Flat Evaporator Coil
ALL phases of this installation must comply with NATIONAL, STATE AND LOCAL CODES
IMPORTANT — This Document is customer property and is to remain with this unit. Please return to service information pack upon completion of work.
WARNING
WARNING (Medium/high pressure) Contains Refrigerant!
System contains oil and refrigerant under high pressure. Recover refrigerant to relieve pressure before opening the system. See unit nameplate for refrigerant type. Do not use non-approved refrigerants, refrigerant substitutes, or refrigerant additives.
Failure to follow proper procedures or the use of nonapproved refrigerants, substitutes, or refrigerant additives could result in death, serious injury, or equipment damage.
WARNING
This product can expose you to chemicals including lead, which are known to the State of California to case cancer and birth defects or other reproductive harm. For more information go to www. P65Warnings.ca.gov
GENERAL
These coils are designed for use as cooling only or in combination with a Heat Pump outdoor section.
APPLICATION INFORMATION
- FURNACE AND COIL Coil MUST BE installed downstream (discharge air) of the furnace.
- INDOOR UNIT AIRFLOW Indoor unit must provide the required airflow for Cooling only or Heat Pump System Combination.
INSPECTION
Check carefully for any shipping damage. This must be reported to and claims made against the transportation com pany immediately. Check to be sure all major components are in the unit. Any missing parts should be reported to your supplier at once, and replaced with authorized parts only.
RECOMMENDATIONS
CAUTION
This coil is pressurized with 8-12 psig of dry air. Do not stand directly in front of the coil connections when removing sealing plugs. If no pressure is released, check for leaks.
- If this coil is a part of the total system installation, then use the Installer’s Guide packaged with the furnaces, Heat Pump outdoor sections, and Control Center for physically installing those components.
- It is recommended that the outline drawing (page 2) be studied and dimensions properly noted and checked against selected installation site. By noting in advance proper clearance allowances for installation and possible future service of the coil.
INSTALLING 4PXFH COIL / ENCLOSURE
Coil/enclosure assembly can be used for all horizontal furnaces (gas and electric) applications (Figure 1), and for applications of vertical upflow furnaces (Figure 2), where the top clearance is insufficient for installing an “A” coil and enclosure, and there is access to a run of horizontal duct.

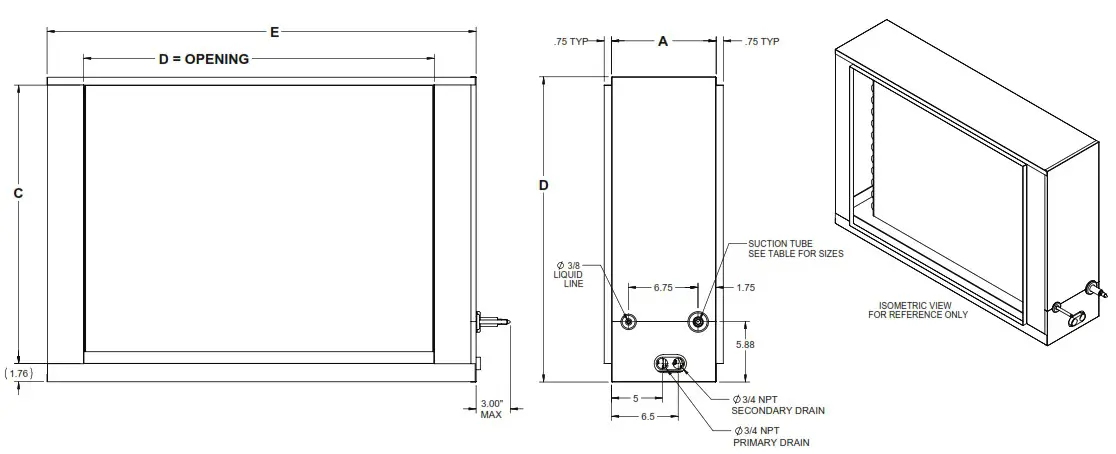
OUTLINE DRAWING – 4PXFH001BC3HHA, 4PXFH004BC3HHA, 4PXFH007BC3HHA, 4PXFH003BZ3HHA, 4PXFH005BZ3HHA, 4PXFH009BZ3HHA
All dimensions are in inches

| TRANE MODEL# | A | B | C | D | E | SUCTION SIZED Ø |
| 4PXFH003BZ3HHA | 10 | 23.50 | 21 | 30 | 35.50 | 3/4 |
| 4PXFHOO1BC3HHA | 10 | 23.50 | 21 | 24 | 29.50 | 3/4 |
| 4PXFHOO5BZ3H HA | 10 | 23.50 | 21 | 30 | 35.50 | 3/4 |
| 4PXFH004 BC3HHA | 10 | 23.50 | 21 | 30 | 35.50 | 7/8 |
| 4PXFHOO7BC3HHA | 10 | 23.50 | 21 | 30 | 35.50 | 7/8 |
| 4PXFHOO9BZ3H HA | 10 | 29.50 | 27 | 34 | 41.50 | 7/8 |

Since coil/ enclosure assembly must be installed within the horizontal run of duct, a transition duct must be fabricated to mate with the furnace supply outlet duct flange on one end and the duct flange connection on the coil/ enclosure assembly on the other end. For maximum performance, it is recommended that the transition duct be at least 2 feet in length.
- Secure the transition duct to the furnace with the furnace in position.
- The refrigerant lines and condensate connections of cased coils may be on either side of the supply air duct. The air may be directed through the coil from either side of the coil.
- Attach the coil/ enclosure assembly to the transition from the furnace, providing proper support for coil/ enclosure assembly’s weight. Keep the coil level. Extra pitch is not required for coil to drain properly.
- Secure the downstream side of coil/ enclosure assembly to the supply air duct.
NOTE: Secure properly so there will be no air leakage. - When hanging the coil for ceiling mounted applications, do not assemble screws in the cabinet in areas that may puncture the coil or drainpan. Areas to be avoided include the back, bottom, front, top center, and lower 3″ of the left and right sides of the coil cabinet.
- The indoor coil must be evacuated through the refrigerant lines at the outdoor unit before opening the service valves. See evacuation procedure in Field Fabricated Refrigerant Lines section of the Installer’s Guide for the outdoor unit.
- Complete the installation of the unit per installation instructions.
INSTALLING/BRAZING REFRIGERANT LINES
CAUTION
Do NOT open refrigerant valve at the outdoor unit until the refrigerant lines and coil have been brazed, evacuated, and leak checked. This would cause contamination of the refrigerant or possible discharge of refrigerant to the atmosphere.
- The following steps are to be considered when installing the refrigerant lines:
a. Determine the most practical way to run the lines.
b. Consider types of bends to be made and space limitations.
c. Route the tubing making all required bends and properly secure the tubing before making final connections.
NOTE: Refrigerant lines must be isolated from the structure and the holes must be sealed weather tight after installation.
IMPORTANT: Do not unseal refrigerant tubing until ready to fit refrigerant lines.
There is only a holding charge of dry air in the indoor coil, therefore no loss of operating refrigerant charge occurs when the sealing plugs are removed.
- Remove sealing plugs and use pipe cutter to remove spun closed ends.
- Field supplied tubing should be cut square, round and free of burrs at the connecting end. Clean the tubing to prevent contaminants from entering the system.
- Swedge using approved industry practices, or use field supplied coupler, on indoor unit coil connections.
Connect field supplied refrigerant tubing to coil connections. - Flow a small amount of nitrogen through the tubing while brazing.
- Use good brazing technique to make leakproof joints.
- Minimize the use of sharp 90 degree bends.
- Insulate the suction line and its fittings.
- Do NOT allow un-insulated lines to come into contact with each other.
LEAK CHECK
- Using a manifold gauge, connect an external supply of dry nitrogen to the gauge port on the liquid line.
- Pressurize the connecting lines and indoor coil to 150 PSIG maximum.
- Leak check brazed line connections using soap bubbles. Repair leaks (if any) after relieving pressure.
- Evacuate and charge the system per the instructions packaged with the outdoor unit.
CONDENSATE DRAIN PIPING (SEE FIGURE 3)
NOTE: When coils are installed above ceilings or in other locations where damage from condensate overflow may occur, a field fabricated auxiliary drain pan shall be installed under the coil enclosure. Drain lines from this pan must be installed, but should NOT be connected to the primary pan. These drain lines should terminate in an area easily seen by the homeowner, but not located to drip on sidewalks or other slip hazard areas.
Condensate drain connections are located in the drain pan at the bottom of the coil/enclosure assembly. The female threaded fitting protrudes outside of the enclosure for external connection. A field fabricated trap is not required for proper drainage due to the positive pressure of the furnace; however, it is recommended to prevent efficiency loss of conditioned air.
- The drain hole in the drain pan must be cleared of all insulation.
- Insulate the primary drain line to prevent sweating where dew point temperatures may be met. (Optional depending on climate and application needs).
- Connect the secondary drain to a separate drain line (no trap is needed in this line). The secondary drain should terminate in an area easily seen by the homeowner, but not located to drip on sidewalks or other slip hazard areas.
- Test drainage of all condensate lines prior to completing installation.
- Install coils with the drain pan and/or casing on a flat, level surface. Slope the coil 1/4” towards the drain. Condensate lines must be installed in
accordance with building codes. It is the contractor’s responsibility to ensure proper condesate drainage at the time of the installation.
IMPORTANT: Plug all drain line connection(s) not used. Do NOT use heat or torch near drain fittings.

DUCT CONNECTIONS
The supply and return air duct should be connected to the unit with a flame retardant duct connectors.
Duct flange connections are provided at both supply and discharge openings of the coil.
TXV BULB HORIZONTAL MOUNTING
CAUTION
TXV sensing bulb is sensitive to heat. Do not assemble to suction/vapor line until after field brazing is complete and line is cool to touch.
The orientation and location of the TXV bulb has a major influence on the system performance.
It is recommended that the TXV bulb be installed parallel to the ground (on a horizontal plane). The bulb position should be at 2 o-clock or 10 o-clock. See Figure 4 for recommended position of TXV bulb in the horizontal plane.

The TXV sensing bulb should be mounted away from any bends on a clean smooth section of suction/vapor line, using the metal clamp provided. In order to obtain a good temperature reading and correct superheat control, the TXV sensing bulb must conform to the following criteria:
- The sensing bulb must be in direct and continuous contact with the suction line.
- The sensing bulb should be mounted horizontally on the suction line.
- The sensing bulb should be mounted at the 2 o’clock or 10 o’clock position on the circumference of the suction line.
- The sensing bulb must be insulated from outside air.
A properly mounted sensing bulb will prevent false readings caused by liquid refrigerant that may have formed inside the suction/vapor line. Insulation will protect the sensing bulb from false readings due to contact with warm air.
TXV BULB VERTICAL MOUNTING
While it is recommended that the TXV sensing bulb is mounted in the horizontal plane, some installation configurations may require that the sensing bulb be mounted vertically. In this instance, place the bulb such that the capillary tubes are directed upwards as shown in Figure 5.

Before starting, insure the blower wheel, indoor and outdoor coils are clean.
Troubleshooting Indoor TXV / Cooling Mode


Inlet screen located in liquid line. Check, clean, & replace if necessary.

Wrap TXV with wet cloth before brazing. Direct torch away from wrapped valve.
About Trane and American Standard Heating and Air Conditioning
Trane and American Standard create comfortable, energy efficient indoor environments for residential applications.
For more information, please visit www.trane.com or www.americanstandardair.com
![]()
The manufacturer has a policy of continuous data improvement and it reserves the right to change design and specifications without notice.
We are committed to using environmentally conscious print practices.
18-AD40D1-1C-EN 31 Mar 2022
Supersedes 18-AD40D1-1B-EN (January 2022)
© 2022



















