TRANE 4AXAA001BS3HAA Uncased Vertical Aluminum

Product Information
Uncased Vertical Aluminum Up flow Coils
The Uncased Vertical Aluminum Up flow Coils are designed to be used in combination with a heat pump or cooling outdoor section using R-410A refrigerant. These coils can also be combined with a gas or electric furnace for a complete system that provides maximum comfort and energy efficiency throughout the year. The coil comes equipped with a high-temperature composite drain pan and does not require a heat shield when installed with Trane, American Standard, Run Tru, or Ameristar gas or electric furnaces. However, it should not be installed with oil or drum type furnaces.
It is important to note that the height of the furnace, coil, and discharge ductwork must be 7 ft. or less. The *4AXA equipment has been evaluated in accordance with the Code of Federal Regulations, Chapter XX, Part 3280 or the equivalent, and is suitable for mobile home use.
The coil is pressurized with 35 psi (+/- 5 psi) of nitrogen and must be inspected for shipping damages before installation. It is recommended to review the installation requirements and check the table on the outline drawings before beginning the installation.
Additionally, this product can expose you to chemicals including lead, which are known to the State of California to cause cancer and birth defects or other reproductive harm.
Product Usage Instructions
It is essential to comply with national, state, and local codes during all phases of installation. Make sure that the system contains oil and refrigerant under high pressure. Recover refrigerant to relieve pressure before opening the system. For refrigerant type, refer to the unit nameplate and do not use non-approved refrigerants, substitutes, or additives. Failure to follow proper procedures or the use of non-approved refrigerants, substitutes, or refrigerant additives could result in death, serious injury, or equipment damage.
The coil must be installed downstream (in the outlet air) of the furnace. The indoor unit must provide the required airflow for the heat pump or cooling combinations approved for these coils. If a coil is part of the total system installation, use the Installer’s Guide packaged with the furnaces, outdoor sections, and thermostat for physically installing those components.
For downflow installation, install the two 3 wide by 16 long galvanized metal plates on the outside of the coil against the fins on each side of the coil. Make sure to follow the instructions to avoid condensate water blow-off in downflow installations in high humidity applications. Do not exceed 350 cfm/ton of airflow for downflow applications 3 ton or greater.
ALL phases of this installation must comply with NATIONAL, STATE AND LOCAL CODES
IMPORTANT – This Document is customer property and is to remain with this unit. Please return to service information pack upon completion of work.
WARNING
WARNING (Medium/high pressure)
Contains Refrigerant!
System contains oil and refrigerant under high pressure. Recover refrigerant to relieve pressure before opening the system. See unit nameplate for refrigerant type. Do not use non-approved refrigerants, refrigerant substitutes, or refrigerant additives.
Failure to follow proper procedures or the use of non-approved refrigerants, substitutes, or refrigerant additives could result in death, serious injury, or equipment damage.
WARNING
This product can expose you to chemicals including lead, which are known to the State of California to case cancer and birth defects or other reproductive harm. For more information go to www.P65Warnings.ca.gov
GENERAL
These coils are designed for use in combination with a heat pump or cooling outdoor section using R-410A REFRIGERANT. They may be combined with a Gas or Electric Furnace for a complete system that will provide maximum comfort and energy efficiency during the entire year.
The *4AXA equipment has been evaluated in accordance with the Code of Federal Regulations, Chapter XX, Part 3280 or the equivalent. “Suitable for Mobile Home use” The height of the Furnace, Coil and discharge duct work must be 7 ft. or less.
Inspect the coil for shipping damaged. Notify the transportation company immediately if the coil is damaged.
CAUTION
This coil is pressurized with 35 psi (+/- 5 psi) of nitrogen. If no pressure is released, check for leaks.
APPLICATION INFORMATION
FURNACE AND COIL
The coil MUST BE installed downstream (in the outlet air) of the furnace.
These coils fit the 14½”, 17½”, 21, and 24½” width furnaces in vertical up flow and downflow applications.
Coils are equipped with a high temperature composite drain pan and do not require a heat shield when installed with Trane, American Standard, RunTru or Ameristar gas or electric furnaces. Do NOT install with OIL or DRUM type furnaces.
IMPORTANT:
Review your installation requirements. Check the table on the outline drawings and note all dimensions for your coil before beginning the installation.
INDOOR UNIT AIRFLOW
Indoor unit must provide the required airflow for the heat pump or cooling combinations approved for these coils.
RECOMMENDATION
If a coil is part of the total system installation, use the Installer’s Guide packaged with the furnaces, and outdoor sections, and thermostat for physically installing those components.
DOWNFLOW INSTALLATION
CAUTION
Condensate water blow-off could occur in downflow installations in high humidity applications. Please ensure that the following instructions are followed to ensure proper operation.
To set up coils for downflow application, install the two 3” wide by 16” long galvanized metal plates on the outside of the coil, against the fins on each side of the coil. These plates are supplied with the coil.
Do NOT exceed 350 cfm/ton of airflow for downflow applications 3 ton or greater.
CAUTION
Do NOT install coils with any OIL or DRUM type furnaces.
- UPFLOW APPLICATIONS

- DOWNFLOW APPLICATIONS

NOTE: Cabinet will be field provided.
INSTALLING / BRAZING REFRIGERANT LINES
CAUTION
Do NOT open refrigerant valve at the outdoor unit until the refrigerant lines and coil have been brazed, evacuated, and leak checked.
- The following steps are to be considered when installing the refrigerant lines:
- Determine the most practical way to run the lines.
- Consider types of bends to be made and space limitations.
- Route the tubing making all required bends and properly secure the tubing before making final connections.
IMPORTANT:
Do not unseal refrigerant tubing until ready to fit refrigerant lines.
- Release the entire holding pressure by depressing the Schrader core.
- Using tubing cutters, remove the least amount of the refrigerant stub tubes as possible.
- Ream and deburr both liquid and vapor tubes.
- Run the refrigerant tubing into the vapor stub tube. Connect the liquid lines using a 3/8″ copper coupling.
- Make sure copper equalizer lines do NOT touch aluminum.
TXV BULB HORIZONTAL MOUNTING
The orientation and location of the TXV bulb has a major influence on the system performance.
It is recommended that the TXV bulb be installed parallel to the ground (on a horizontal plane). The bulb position must be at 2 o’clock or 10 o’clock. Figure 4 shows the recommended position for the TXV bulb installation in the horizontal plane.
The TXV sensing bulb SHOULD be mounted on the suction line approximately 6″ away from outlet tubes of the circuit using the metal clamp provided. Should NOT be placed near any bends. In order to obtain a good temperature reading and correct superheat control, the TXV sensing bulb must conform to ALL the following criteria:
- The sensing bulb MUST be in direct and continuous contact with the suction line.
- The sensing bulb MUST be mounted at the 2 o’clock or 10 o’clock position.

- The sensing bulb MUST be insulated from surrounding air.
A properly mounted sensing bulb will prevent false readings caused by liquid refrigerant that may have formed inside the suction/vapor line. Insulation will protect the sensing bulb from false readings due to contact with warm air.
TXV BULB VERTICAL MOUNTING
As recommended in Section F, the TXV sensing bulb should be mounted in a horizontal plane in relation to the suction/vapor line. However, some installation configurations may require that the sensing bulb be mounted vertically. In this instance, place the bulb opposite the piping wall being hit by refrigerant and oil leaving the distributor tubes, and with capillary tubes directed upwards.
CAUTION
If the TXV sensing bulb is mounted vertically; the capillary MUST be directed upwards. The bulb must be mounted on the wall opposite to that being directly hit by the refrigerant and oil leaving the distributor tubes.
LEAK CHECK
- Using a manifold gauge, connect an external supply of dry nitrogen to the gauge port on the liquid line.
- Pressurize the connecting lines and indoor coil to 150 PSIG maximum.
- Leak check brazed line connections using soap bubbles. Repair leaks (if any) after relieving pressure.
- Evacuate and charge the system per the instructions packaged with the outdoor unit.
CONDENSATE DRAIN PIPING
Condensate drain connections are located in the drain pan at the bottom of the coil assembly. The female threaded fitting protrudes outside of the assembly for external connection. A field fabricated trap is not required for proper drainage due to the positive pressure of the furnace; however, it is recommended to prevent efficiency loss of conditioned air.
- The drain hole in the drain pan must be cleared of all insulation.
- Insulate the primary drain line to prevent sweating where dew point temperatures may be met. (Optional depending on climate and application needs)
- Connect the secondary drain line to a separate drain line (no trap is needed in this line).
- Install coils with the drain pan and/or casing on a flat, level surface. Slope the coil 1/4” towards the drain. Condensate lines must be installed in accordance with building codes.
CLEANING THE COIL
The inside and outside of the coil can be easily cleaned with a brush and vacuum.
PRESSURE DROP TABLE
| PRESSURE DROP CHARACTERISTICS FOR 4AXA COOLING AND HEAT PUMP COILS | |||||||||
| WET COIL STATIC PRESSURE DROP (INCHES OF WATER COLUMN) @ VARIOUS CFM | |||||||||
| 600 | 800 | 1000 | 1200 | 1400 | 1600 | 1800 | 2000 | 2200 | |
| 4AXAA001BS3HAA 4AXAB002BS3HAA | 0.24 | 0.3 | 0.54 | ||||||
| 4AXAA003BS3HAA 4AXAB004BS3HAA | 0.22 | 0.3 | 0.44 | ||||||
| 4AXAA005BS3HAA 4AXAB006BS3HAA | 0.26 | 0.4 | 0.46 | ||||||
| 4AXAB007BS3HAA | 0.23 | 0.29 | 0.4 | ||||||
| 4AXAB008BS3HAA 4AXAC009BS3HAA | 0.3 | 0.35 | 0.45 | ||||||
| 4AXAB010BS3HAA 4AXAC011BS3HAA 4AXAD012BS3HAA | 0.29 | 0.29 | 0.3 | 0.37 | 0.34 | ||||
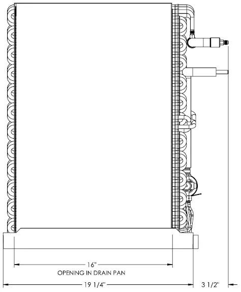
Dimensions
Outline Drawing for 4AXAA001BS3HAA, 4AXAB002BS3HAA, 4AXAA003BS3HAA, 4AXAB004BS3HAA, 4AXAA005BS3HAA, 4AXAB006BS3HAA, 4AXAB007BS3HAA, 4AXAB008BS3HAA, 4AXAC009BS3HAA, 4AXAB010BS3HAA, 4AXAC011BS3HAA, 4AXAD012BS3HAA (All dimensions are in inches)


Before starting, insure the blower wheel, indoor and outdoor coils are clean.
Troubleshooting Indoor TXV/Cooling Mode
About Trane and American Standard Heating and Air Conditioning
Trane and American Standard create comfortable, energy efficient indoor environments for residential applications. For more information, please visit www.trane.com or www.americanstandardair.com
The manufacturer has a policy of continuous data improvement and it reserves the right to change design and specifications without notice. We are committed to using environmentally conscious print practices.
18-AD44D1-1B-EN 14 Mar 2023
Supersedes 18-AD44D1-1A-EN (November 2022)





















