IMMERGAS 3.023960 VICTRIX PRO 100 2 ErP

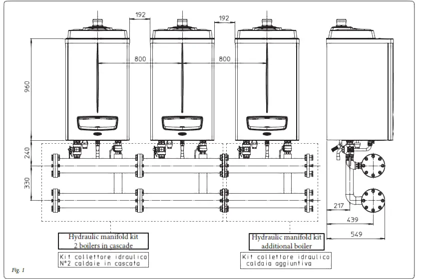
KIT COLLETTORE IDRAULICO CALDAIA AGGIUNTIVA VICTRIX PRO 80-100-120 COD. 3.023960
THIS SHEET MUST BE LEFT WITH THE USER ALONG WITH THE BOILER INSTRUCTION BOOKLET
General warnings
All products are protected with suitable transport packaging. The material must be stored in dry environments and protected against weathering.
This instruction manual provides technical information for installing the kit. As for the other issues related to kit installation (e.g. safety in the work site, environment protection, injury prevention), it is necessary to comply with the provisions specified in the regulations in force and principles of good practice.
Improper installation or assembly of the appliance and/or components, accessories, kit and devices can cause unexpected problems to people, animals and objects. Read the instructions provided with the product carefully to ensure a proper installation.
Installation and maintenance must be performed in compliance with the regulations in force, according to the manufacturer’s instructions and by authorized professionally qualified staff, intending staff with specific technical skills in the plant sector, as envisioned by the Law.
Kit Assembly
Pre-assemble the fitting (14) and the nipple (4) on the 3-way valve (13) by interposing suitable sealing material such as oakum or similar.
Pre-assemble the fitting (14) on the system shut-off valve (11) by interposing suitable sealing material such as oakum or similar.
Pre-assemble the nipple (4) on the check valve (3) by interposing suitable sealing material such as oakum or similar.
Connect the check valve (3) to the manifold (9).
Attention: when installing the check valve (3) make sure that the arrow on the casing faces the hydraulic manifold kit as shown in figure 2. Also make sure to interpose suitable sealing material such as oakum or similar on the connection thread.
Connect the 3-way valves (13), pre-assembled earlier, on the sup-ply (M) of the boiler (12) and interpose the gasket (1). Connect the shut-off valve (11), pre-assembled earlier, on the return (R) of the boiler (12) and interpose the gasket (1).
N.B.: assemble the valves (11 and 13) as shown in fig. 2.
Connect the insulated pipe (2) on the valve (13) and the insulated pipe (5) on the valve (11) and interpose the gasket (1).
Connect the supply manifold (9) equipped with the check valve to the insulated pipe (2) and the return manifold (9) to the insulated pipe (5). Make the connection respecting the arrangement shown in figure 2 and interposing the gaskets (1) and (6).
After the 1st temperature test, check the tightness of all the pipes.
N.B.: the components downstream of the system, such as the expansion tank, must be sized according to the flow rate of the system.
If assembling the kit with free outputs on the left side, perform the installation as shown in figure 3.
Attention: the modular generators, i.e. installed in cascade (set) with an original connection kit, must be considered a unique appliance, which assumes the serial number (factory number) of the generator nearest to the INAIL safety devices. Attention: the VICTRIX PRO boilers have an IPX5D electric insulation rating and can also be installed outdoors, without ad-ditional protections. However, if installed outdoors, the relevant piping should be insulated and the kit protected from the elements.
The boilers must be installed in the configurations and with their own original set and safety kits. The factory declines all liability whenever the installer does not use the devices and INAIL-approved original kits or uses them improperly.
N.B.: before closing the system cut-off cocks or the 3-way valves (3), the boiler must be switched off.
N.B.: the additional hydraulic manifold kit must not be connected to an individual boiler.
LEFT OUTLET
| Ref. | Kit components description | Qty |
| 1 | 44x34x2 gasket | 6 |
| 2 | Short 90° bend for the insulated supply connection | 1 |
| 3 | Check valve | 1 |
| 4 | Nipple | 2 |
| 5 | Long 90° bend for the insulated return connection | 1 |
| 6 | Flange gasket DN100 | 2 |
| 7 | Washer | 16 |
| 8 | Screw M16x65 | 16 |
| 9 | Insulated manifold DN100 | 2 |
| 10 | Nut M16 | 16 |
| 11 | Ball valve | 1 |
| 13 | 3-way valve casing | 1 |
| 14 | Valve fixing fitting | 2 |
M – System flow
R – System return


















