MONOGRAM ZWE23NSTSS 36 Inch Free-Standing French-Door Refrigerator Instruction Manual
STATEMENT AND MINIMALIST COLLECTION REFRIGERATOR HANDLES (SOLD SEPARATELY)
Designed to enhance choice and customization, Statement and Minimalist Collection refrigerators do not come with handles. Handles must be chosen separately and ordered through a Monogram representative
TWINCHILL™ EVAPORATORS
Separate climates in the fresh food and freezer sections help keep foods fresh
SHOWCASE LED LIGHTING
Positioned throughout the interior and under fresh food doors to spotlight foods inside the refrigerator and in the freezer
FULL-WIDTH ELECTRONIC TEMPERATURECONTROLLED DRAWER WITH LED LIGHTS
3 accurate settings deliver the optimal temperature for your favorite foods, while lights indicate the chosen setting
DROP-DOWN TRAY
Allows for extra door storage when you need it and tucks away when you don’t
QUICK SPACE SHELF
Functions as a normal full-sized shelf when needed and easily slides down for instant storage flexibility
ADVANCED WATER FILTRATION USES RPWF REPLACEMENT FILTER
Reduces trace pharmaceuticals from water and ice Removes 98% of ibuprofen, atenolol, fluoxetine, progesterone and trimethoprim. These pharmaceuticals are not necessarily in all users’ water
SPECIFICATIONS
Overall Width 36″ (91.4 cm)
Overall Height 70 1/2″ (179.1 cm)
Cutout Width 36 1/4″ (92.1 cm)
Cutout Height 71″ (180.3 cm)
Cutout Depth 26 3/8″ (67 cm)
Plumbing Requirements 1/4″ OD copper tubing or GE SmartConnect kit
Shipping Weight 400 lb (181.4 kg
ATTENTION ELECTRICIAN:
A 115 volt 60Hz., 15 or 20 amp power supply is required. An individual properly grounded branch circuit or circuit breaker is recommended. Install a properly grounded 3-prong electrical receptacle recessed into the back wall.
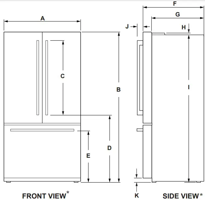
OVERALL DIMENSIONS*

| Minimalist | Statement | |
| A | 36″ (91.4) | 36″ (91.4) |
| B | 70 1/2″ (179.1) | 70 1/2″ (179.1) |
| C | 37 1/2″ (95.25) | 37 1/4″ (94.6) |
| D | 30 7/16″ (77.3) | 30 1/2″ (77.5) |
| E | 24 3/8″ (61.9) | 23 3/4″ (60.3) |
| F | 28 11/16″ (72.9) | 28 11/16″ (72.9) |
| G | 24 3/8″ (61.9) | 24 3/8″ (61.9) |
| H | 13/16″ (2.1) | 13/16″ (2.1) |
| I | 69 1/8″ (175.6) | 69 1/8″ (175.6) |
| J | 2″ (5.1) | 2 13/16″ (7.1) |
| K | 2″ (5.1) | 2″ (5.1) |

| Minimalist | Statement | |
| A | 36″ (91.4) | 36″ (91.4) |
| B | 11 11/16 (29.7) | 12 7/16″ (31.6) |
| C | 18″ (45.7) | 18″ (45.7) |
| D | 21 1/4″ (53.9) | 22 1/8″ (56.2) |
Measurement indicates Statement Handle type, handles are not included, must be purchased separately
Dimensions in parentheses are in centimeters unless otherwise noted. Actual product dimensions may vary due to manufacturing tolerances.
Attachment to Wall and Floor

AIR GAP INSTALLATION DIMENSIONS
Each Side 1/8″ (.3 cm)
Top 1″ (2.5 cm)
Back 2″ (5.1 cm)
HELPFUL TIPS
The refrigerator is top heavy and must be secured to prevent the possibility of tilting forward.
WARNING: Wood Wall and Floor Construction:
- Drill the appropriate number of 1/8″ (3 mm) pilot holes in the center of each floor bracket hole being used (a nail or awl may be used if a drill is not available) AND remove the locator template from the floor.
- Mount the anti-tip floor bracket by fastening the 2 , or recommended 4, #10-16 hex-head screws tightly into place as illustrated in figure 3.
- Stainless steel handle options:
ZKLB3H3CTSS: Minimalist handle kit
ZKLB3H3PTSS: Statement handle kit


















