MONOGRAM ZIC360NNRH 36 Inch Built-In Bottom-Freezer Refrigerator

FLUSH INSET INSTALLATION
Allows the refrigerator to be installed flush with adjacent cabinetry
CUSTOM APPEARANCE
Allows personalization with cabinet-compatible panels and custom handles
UPFRONT ELECTRONIC CONTROLS WITH DIGITAL READOUT
Allows precise temperature settings and are positioned for maximum ease of use
HUMIDITY CONTROLLED VEGETABLE COMPARTMENTS AND SEALED SNACK PANS
Help maintain freshness and help preserve foods longer
ADJUSTABLE, SPILL PROOF GLASS SHELVES
- Make it easy to customize storage to handle foods and containers of various sizes
- 2 SEALED DELI PANS WITH FULL EXTENSION SLIDES
- SIX ADJUSTABLE DOOR BINS Offer added storage flexibility
- GE WATER™ FILTRATION SYSTEM Delivers clean, great tasting ice
SECTION 1
STANDARD INSTALLATION

SECTION 2
FLUSH INSET INSTALLATION
REQUIRES ADDITIONAL TRIM KIT ZKFN

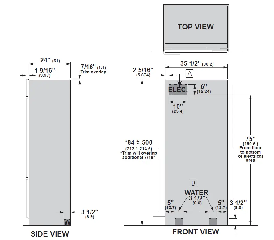
SPECIFICATIONS
- Overall Width 36″ (91.4 cm)
- Overall Height 84″ (213.4 cm)
- Overall Depth 25 1/4″ (64.1cm)
- Door Clearance 36 1/2″ (92.7 cm)
- Cutout Width 35 1/2″ (90.2 cm)
- Cutout Height 83 1/2″ – 84 1/2″ (212.1 – 214.6 cm)
- Cutout Depth 24″ (61 cm)
- Plumbing Requirements 1/4″ OD copper tubing or
- GE SmartConnect kit
- Shipping Weight 640 lb (290 kg)
ATTENTION ELECTRICIAN
A 115 volt 60Hz., 15 or 20 amp power supply is required. An individual properly grounded branch circuit or circuit breaker is recommended. Install a properly grounded 3-prong electrical receptacle recessed into the back wall.
OVERALL DIMENSIONS
STANDARD INSTALLATION

Shipping height. Use leveling legs and wheels for maximum 1″ height adjustment from shipping height.

- Dimensions based on custom handle height of 2 9/16″ (6.5).
- These refrigerators are equipped with a 3-position door stop. The factory-set 130° door swing can be adjusted to 90° or 130° for standard installation if clearances to adjacent cabinets or walls is restricted. Allow a 15″ minimum clearance to wall for pan removal. If the 90° door stop position is used, pan access is maintained, but pan removal is restricted.
- Dimensions in parentheses are in centimeters unless otherwise noted.
- Actual product dimensions may vary due to manufacturing tolerances.

ANTI-TIP BRACKET

HELPFUL TIPS
- Mounting the junction box in this location will also allow for front accessibility through access panel.
- Water supply area.
WARNING
The refrigerator is top heavy and must be secured to prevent the possibility of tipping forward. Failure to do so may result in death or serious injury. The information below is for cabinet design only. When installing the anti-tip system you must use the product installation instructions.
The information below applies to all installation constructions
- A wall bracket, bolts and toggles will be supplied with the unit.
- The bolts will be used to attach bracket to wall in 4 locations. Two of the locations must penetrate the center of the wall studs.
- The toggles are used for stability in drywall and when metal studs are encountered. Lag bolts are used in wood studs.
- In installation opening, measure 81-1/2″ from floor and draw a horizontal line.
- Locate and mark the wall studs on horizontal line. Verify at least two studs have their centerlines within the center 32-1/2″ of installation opening to ensure 2 wall studs are penetrated.
- The bracket will be centered left to right in opening with bottom of bracket on the horizontal line.
- When unit is placed in opening, the bracket tabs will align with openings in back of the unit. The unit will be secured to the bracket using supplied “L” bolts. See Installation Instructions for detailed instructions.
STANDARD 1/4″ FRAMED PANEL DIMENSIONS SINGLE INSTALLATION

PANEL ASSEMBLY CROSS SECTION

PANEL DIMENSIONS
A B C D
- 1/4″ Framed Panel 33 7/8″ 8 7/8″ 46 1/16″ 21 7/8″
STANDARD 3/4″ OVERLAY PANEL DIMENSIONS SINGLE INSTALLATION

PANEL ASSEMBLY CROSS SECTION

PANEL DIMENSIONS
A B C D
- 1/4″ Backer Panel 33 7/8″ 8 7/8″ 46 1/16″ 21 7/8″
- .10″ Spacer Panel 32 1/2″ 7 5/8″ 44 11/16″ 20 1/2″
- 3/4″ Overlay Panel 34 1/8″ 9″ 46 5/16″ 22″
- .25″ + .10″ + .75″ = 1.10″ Total Panel Thickness
HELPFUL TIPS
Trimmed refrigerators are designed to be customized with decorative panels. Field-installed custom door and grille panels are required.
1/4″ FRAMED PANELS
For 1/4″ thick custom panels ordered from your cabinet maker. The decorative panels slide into the trim.
MAXIMUM TOTAL PANEL WEIGHT
- Fresh food door panel – 58 lbs.
- Freezer drawer panel – 28 lbs.
- Grille panel – 11 lbs.
3/4″ OVERLAY PANELS
The decorative panels slide into the trim. The overlay panel must be secured to a 1/4″-thick backer panel which slides into the trim. A spacer panel 0.10″ thick must be placed between the overlay and backer panels. Center each panel over the other. Assemble the panels with glue and screws. Screws must be countersunk into the backer panel.
NOTE: Left-to-right offset is not always equal to top-to-bottom offset.
MAXIMUM TOTAL PANEL WEIGHT
- Fresh food door panel – 58 lbs.
- Freezer drawer panel – 28 lbs.
- Grille panel – 11 lbs.
DOOR HANDLES
Door panels not included. Custom handles supplied by your cabinet maker may be used Optional visor handle kit ZKLN available.
CUSTOM SIDE PANELS

HELPFUL TIPS
Side panels must be used whenever the sides of the refrigerator will be exposed. The 1/4″ side panels will slip into the side case trim. Secure the panels to the refrigerator with stick-on hook and loop fastener strips. Order the side panels from the cabinet manufacturer.
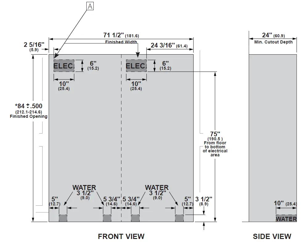
DUAL INSTALLATIONS

STANDARD 1/4″ FRAMED PANEL DIMENSIONS DUAL INSTALLATION

PANEL ASSEMBLY CROSS SECTION
PANEL DIMENSIONS
- 1/4″ Framed Panel 69 7/8″ 8 7/8″ 46 1/16″ 21 7/8″ 33 7/8″
- A separate 115V, 60Hz, 15- or 20-amp power supply is recommended for each product. Additional cutout width may be required when side panels are used.
- Trimmed refrigerators are designed to be customized with decorative panels. Field-installed custom door and grille panels are required.
1/4″ FRAMED PANELS
For 1/4″ thick custom panels ordered from your cabinet maker. The decorative panels slide into the trim.
MAXIMUM TOTAL PANEL WEIGHT
- Fresh food door panel – 58 lbs.
- Freezer drawer panel – 28 lbs.
- Grille panel – 25 lbs.
Order ZKBFN720NII unification kit for an integrated appearance on 2 custom panel models installed side-by-side.
STANDARD 3/4″ OVERLAY PANEL DIMENSIONS DUAL INSTALLATION

PANEL DIMENSIONS
- 1/4″ Backer Panel
- .10″ Spacer Panel 3/4″
- Overlay Panel
- A 69 7/8″ 68 1/2″ 70 1/8″
- B 8 7/8″ 7 5/8″ 9″
- C 46 1/16″ 44 11/16″ 46 5/16″
- D 21 7/8″ 20 1/2″ 22″
- E 33 7/8″ 32 1/2″ 34 1/8″
- .25″ + .10″ + .75″ = 1.10″ Total Panel
PANEL ASSEMBLY CROSS SECTION

DUAL PRODUCT CLEARANCES

3/4″ OVERLAY PANELS
The decorative panels slide into the trim. The overlay panel must be secured to a 1/4″-thick backer panel which slides into the trim. A spacer panel 0.10″ thick must be placed between the overlay and backer panels. Center each panel over the other. Assemble the panels with glue and screws. Screws must be countersunk into the backer panel.
NOTE: Left-to-right offset is not always equal to top-to-bottom offset.
MAXIMUM TOTAL PANEL WEIGHT
- Fresh food door panel – 58 lbs.
- Freezer drawer panel – 28 lbs.
- Grille panel – 25 lbs.
Order ZKBFN720NII unification kit for an integrated appearance on 2 custom panel models installed side-by-side.
DOOR HANDLES
Door handle not included. Custom handles supplied by your cabinet maker may be used. Optional visor handle kit ZKLNavailable.
In a side-by-side installation of a left-and-right-hand door swing product, 1″ clearance between the units is required.
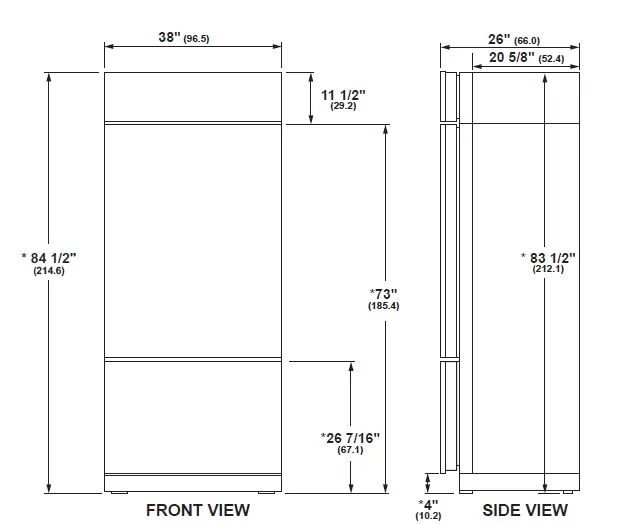
SPECIFICATIONS
- Overall Width 38″ (96.5 cm)†
- Overall Height 84 1/2″ (214.6 cm)†
- Overall Depth 25 15/16″ (65.9 cm)†
- Door Clearance 38 3/4″ (98.4 cm)
- Cutout Width 39″ (99.1 cm)
- Cutout Height 85″ (215.9 cm)
- Cutout Depth 26 3/16″ (66.5 cm)
- Plumbing Requirements 1/4″ OD copper tubing or GE SmartConnect kit
- Shipping Weight 640 lb (290 kg)
ATTENTION ELECTRICIAN
A 115 volt 60Hz., 15 or 20 amp power supply is required. An individual properly grounded branch circuit or circuit breaker is recommended. Install a properly grounded 3-prong electrical receptacle recessed into the back wall.
OVERALL DIMENSIONS AFTER PANEL INSTALL

Shipping height. Use leveling legs and wheels for maximum 1″ height adjustment from shipping height. Nominal installation height is 84”
- Dimensions based on custom handle height of 2 9/16″ (6.5).
- Dimensions in parentheses are in centimeters unless otherwise noted.
- Actual product dimensions may vary due to manufacturing tolerances.

ANTI-TIP BRACKET

Mounting the junction box in this location will also allow for front accessibility through access panel.
WARNING
The refrigerator is top heavy and must be secured to prevent the possibility of tipping forward. Failure to do so may result in death or serious injury. The information below is for cabinet design only. When installing the antitip system you must use the product installation instructions.
The information below applies to all installation constructions
- A wall bracket, bolts and toggles will be supplied with the unit.
- The bolts will be used to attach bracket to wall in 4 locations. Two of the locations must penetrate the center of the wall studs.
- The toggles are used for stability in drywall and when metal studs are encountered. Lag bolts are used in wood studs.
- In installation opening, measure 82″ from floor and draw a horizontal line.
- Locate and mark the wall studs on horizontal line. Verify at least two studs have their centerlines within the center 32-1/2″ of installation opening to ensure 2 wall studs are penetrated.
- The bracket will be centered left to right in opening with bottom of bracket on the horizontal line.
- When unit is placed in opening, the bracket tabs will align with openings in back of the unit. The unit will be secured to the bracket using supplied “L” bolts. See Installation Instructions for detailed instructions.
WARNING
Door Trim Pinch Point Hazard Improper installation can lead to a finger pinch point hazard between the side door trim and the cabinets when operating the door, especially with children. To minimize this risk you must follow the installation instructions for cabinet dimensions, trim assembly and door stop angle.
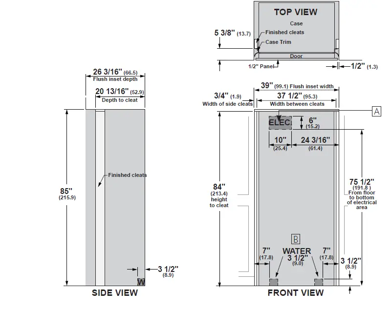
FLUSH INSET 3/4″ PANEL DIMENSIONS SINGLE INSTALLATION

3/4″ RAISED DOOR PANEL ROUTING

Trimmed refrigerators are designed to be customized with decorative panels. Field-installed 1/2″ or 3/4″ custom door, drawer and grille panels are required. For 3/4″ raised panels, routing is required. The router depth is 1/4″ all the way around the panel’s backs. Additional panel width reductions are required per the diagrams shown. This will create “picture frame’ routing allowing the panels to slide into the attached door, drawer and grille trims.
MAXIMUM TOTAL PANEL WEIGHT
- Fresh food door panels – 58 lbs.
- Freezer drawer panel – 28 lbs.
- Grille panel – 11 lbs
NOTE: For panels constructed with rails and stiles (5-panel), the rails must be a minimum of 3″ wide and stiles must be a minimum of 4″ wide.
DOOR HANDLES
Door handles not included. Custom handles supplied by your cabinet maker may be used.Order ZKBFN720NII unification kit for an integrated appearance on 2 custom panel models installed side-by-side.
3/4″ RAISED GRILL PANEL ROUTING

3/4″ RAISED DRAWER PANEL ROUTING

Trimmed refrigerators are designed to be customized with decorative panels. Field-installed 1/2″ or 3/4″ custom door, drawer and grille panels are required. For 3/4″ raised panels, routing is required. The router depth is 1/4″ all the way around the panel’s backs. Additional panel width reductions are required per the diagrams shown. This will create “picture frame’ routing allowing the panels to slide into the attached door, drawer and grille trims.
MAXIMUM TOTAL PANEL WEIGHT
- Fresh food door panels – 58 lbs.
- Freezer drawer panel – 28 lbs.
- Grille panel – 11 lbs
NOTE: For panels constructed with rails and stiles (5-panel), the rails must be a minimum of 3″ wide and stiles must be a minimum of 4″ wide.
DOOR HANDLES
Door handles not included. Custom handles supplied by your cabinet maker may be used. Order ZKBFN720NII unification kit for an integrated appearance on 2 custom panel models installed side-by-side.
- FLUSH INSET INSTALLATION 1/2″ PANELS
- FLUSH INSET KIT ZKFN REQUIRED

ANTI-TIP BRACKET

- Mounting the junction box in this location will also allow for front accessibility through access panel.
- Water supply area.
WARNING
The refrigerator is top heavy and must be secured to prevent the possibility of tipping forward. Failure to do so may result in death or serious injury. The information below is for cabinet design only. When installing the anti-tip system you must use the product installation instructions.
The information below applies to all installation constructions
- A wall bracket, bolts and toggles will be supplied with the unit.
- The bolts will be used to attach bracket to wall in 4 locations. Two of the locations must penetrate the center of the wall studs.
- The toggles are used for stability in drywall and when metal studs are encountered. Lag bolts are used in wood studs.
- In installation opening, measure 82″ from floor and draw a horizontal line.
- Locate and mark the wall studs on horizontal line. Verify at least two studs have their centerlines within the center 32-1/2″ of installation opening to ensure 2 wall studs are penetrated.
- The bracket will be centered left to right in opening with bottom of bracket on the horizontal line.
- When unit is placed in opening, the bracket tabs will align with openings in back of the unit. The unit will be secured to the bracket using supplied “L” bolts. See Installation Instructions for detailed instructions.
FLUSH INSET 1/2″ PANEL DIMENSIONS

PANEL DIMENSIONS
- 1/4″ Backer Panel
- 33 7/8″
- 8 7/8″
- 46 1/16″
- 21 7/8″
- .10″ Space Panel
- 32 1/2″
- 7 5/8″
- 44 11/16″
- 20 1/2″
- 1/2″ Overlay Panel
- 38″
- 10 11/16″
- 46 9/16″
- 22 7/16″
1/2″ OVERLAY PANEL ROUTING DIMENSIONS


PANEL DIMENSIONS
- Fresh Food Panel
- 2 1/16″ 2 1/16″ 5/16″ 3/16″
- Freezer Panel
- 2 1/16″ 2 1/16″ 5/16″ 3/16″
- Grille Panel
- 2 1/16″ 2 1/16″ 1 11/16″ 3/16″
The 1/2″ overlay panel must be secured to a .10″ spacer panel and a 1/4″ thick backer panel, which slides into the trim.
ASSEMBLE THE PANELS WITH GLUE AND SCREWS
- Center the spacer panel on the backer panel, left to right and top to bottom. Secure the panels with glue.
- Refer to the chart for locating
the backer panel to the overlay panel. Secure the overlay panel to the backer panel with glue and screws. Screws must be countersunk into the backer panel - Order ZKBFN720NII unification kit for an integrated appearance on 2 custom panel models installed side-by-side.
NOTE: For panels constructed with rails and stiles (5-panel), the rails must be a minimum of 3″ wide and stiles must be a minimum of 4″ wide.
3/4″ OR 1/2″ DUAL INSTALLATIONS

FLUSH INSET 1/2″ PANEL DIMENSIONS DUAL INSTALLATION

PANEL DIMENSIONS
- 1/4″ Backer Panel 69 7/8″ 8 7/8″ 46 1/16″ 21 7/8″ 33 7/8″
- .10″ Space Panel 68 1/2″ 7 5/8″ 44 11/16″ 20 1/2″ 32 1/2″
- 1/2″ Overlay Panel 74 1/2″ 10 11/16″ 46 9/16″ 22 7/16″ 36 7/8″
HELPFUL TIPS
Trimmed refrigerators are designed to be customized with decorative panels. Field-installed 1/2″ or 3/4″ custom door, drawer and grille panels are required. For 3/4″ raised panels, routing is required. The router depth is 1/4″ all the way around the panel’s backs. Additional panel width reductions are required per the diagrams shown. This will create “picture frame’ routing allowing the panels to slide into the attached door, drawer and grille trims.
MAXIMUM TOTAL PANEL WEIGHT
- Fresh food door panels – 58 lbs.
- Freezer drawer panel – 28 lbs.
- Unified grille panel – 25 lbs
DOOR HANDLES
Door handles not included. Custom handles supplied by your cabinet maker may be used.
Order ZKBFN720NII unification kit for an integrated appearance on 2 custom panel models installed side-by-side. The 1/2″ overlay panel must be secured to a .10″ spacer panel and a 1/4″ thick backer panel, which slides into the trim.
ASSEMBLE THE PANELS WITH GLUE AND SCREWS
• Center the spacer panel on the backer panel, left to right and top to bottom. Secure the panels with glue.
• Refer to the chart for locating the backer panel to the overlay panel. Secure the overlay panel to the backer panel with glue and screws. Screws must be countersunk into the backer panel
FLUSH INSET 3/4″ PANEL DIMENSIONS DUAL INSTALLATION

3/4″ RAISED DOOR AND DRAWER PANEL ROUTING – (SEE PAGE 11 FOR 3/4″ GRILLE PANEL ROUTING DIAGRAMS)

HELPFUL TIPS
Trimmed refrigerators are designed to be customized with decorative panels. Field-installed 1/2″ or 3/4″ custom door, drawer and grille panels are required. For 3/4″ raised panels, routing is required. The router depth is 1/4″ all the way around the panel’s backs. Additional panel width reductions are required per the diagrams shown. This will create “picture frame’ routing allowing the panels to slide into the attached door, drawer and grille trims.
MAXIMUM TOTAL PANEL WEIGHT
- Fresh food door panels – 58 lbs.
- Freezer drawer panel – 28 lbs.
- Unified grille panel – 25 lbs
DOOR HANDLES
Door handles not included. Custom handles supplied by your cabinet maker may be used. Order ZKBFN720NII unification kit for an integrated appearance on 2 custom panel models installed sideby- side.
3/4″ OR 1/2″ DUAL PRODUCT CLEARANCES

I n a side-by-side installation of a left-and-right-hand door swing product, 1″ clearance between the units is required. Order ZKBFN720NII unification kit for an integrated appearance on 2 custom panel models installed side-by-side.
For questions about your appliance, please call 1-800-626-2000.



















