Installation
Instructions
Refrigerator
Questions? Visit our Website at: cafeappliances.com In Canada, visit cafeappliances.ca
BEFORE YOU BEGIN
Read these instructions completely and carefully.
WARNING
Tip Over Hazard.
If an anti-tip floor bracket was included with your refrigerator, install it to prevent the refrigerator from tipping forward, which could result in death or serious injury. Read and follow the entire installation instructions for installing the anti-tip floor bracket packed with your refrigerator.
- IMPORTANT – Observe all governing codes and ordinances. Save these instructions for local inspector’s use.
- Note to Installer — Be sure to leave these instructions with the Consumer.
- Note to Consumer — Keep these instructions for future reference.
- Skill level — Installation of this appliance requires basic mechanical skills.
- Completion time — Refrigerator Installation can vary Water Line Installation 30 minutes
- Proper installation is the responsibility of the installer.
- Product failure due to improper installation is not covered under the Warranty.
PREPARATION
MOVING THE REFRIGERATOR INDOORS
If the refrigerator will not fit through a doorway, the refrigerator doors and freezer drawer can be removed.
- To remove the refrigerator doors, see the Installing the Refrigerator section.
- To remove the freezer drawer, see the Removing the Freezer Drawer section.
WATER SUPPLY TO THE ICEMAKER AND DISPENSER
If the refrigerator has an icemaker, it will have to be connected to a cold water line. A GE Appliances water supply kit (containing tubing, shutoff valve, fittings and instructions) is available at extra cost from your dealer, by visiting our website at cafeappliances.com/parts (in Canada at cafeappliances.ca/parts).
TOOLS YOU MAY NEED

TOOLS YOU MAY NEED

CLEARANCES
Allow the following clearances for ease of installation, proper air circulation and plumbing and electrical connections. Sides 1/8″ (3 mm) Top 1″ (25 mm) Back 2″ (50 mm)
- Using the chart below to determine if passageways can accommodate the width of the refrigerator.
- Use a padded hand truck or moving straps to move this refrigerator. Place the hand truck to the side of the refrigerator.
- We strongly recommend the refrigerator be moved by two people.
- Leave tape, film, and other packaging on the refrigerator until in it’s final location.
- Refer to sections 2 through 5 for handle, door, and drawer removal if needed. Otherwise, skip to section 6.
- Consider recycling options for your appliance packaging material.
NOTE: It is recommended that the floor be protected with a plastic covering throughout the installation process.
NOTE: Not recommended for installation on carpeted flooring.

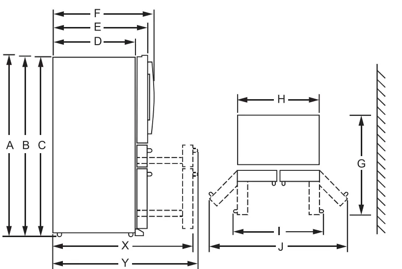
| Full Depth unit dimensions | Full Depth Glass door unit dimensions |
| A = 70″ (1775mm) | A = 70″ (1775mm) |
| B = 69-13/16″ (1773mm) | B = 69-13/16″ (1772mm) |
| C = 68-5/8″ (1743mm) | C = 68-5/8″ (1743mm) |
| D = 29-1/2″ (749 mm) | D = 29-1/2″ (749 mm) |
| E = 34-1/4″ (870m) | E = 34.0″ (864mm) |
| F = 36-1/2″ (927mm) | F = 34.0″ (864mm) |
| G = 48-3/8″ (1229mm) | G = 48-3/8″ (1229mm) |
| H = 35-5/8″ (905mm) | H = 35-5/8″ (905mm) |
| = 44-3/8″ (1127mm) | I = 39-1/2″ (1003mm) |
| J = 60-3/8″ (1534mm) | J = 59-1/4″ (1505mm) |
| X = 53-17/32″ (1360mm) | X = 53-9/32″ (1353mm) |
| Y = 55-3/4″ (1416mm) | Y = 53-9/32″ (1353mm) |
| Counter Depth unit dimensions | Counter Depth Glass door unit dimensions |
| A = 70″ (1775mm) | A = 70″ (1775mm) |
| B = 69-13/16″ (1773mm) | B = 69-13/16″ (1773mm) |
| C = 68-5/8″ (1743mm) | C = 68-5/8″ (1743mm) |
| D = 24-7/16″ (621 mm) | D = 24-7/16″ (621 mm) |
| E = 29-1/4″ (743mm) | E = 29.0″ (737mm) |
| F = 31-1/2″ (800mm) | F = 29.0″ (737mm) |
| G = 43-3/8″ (1102mm) | G = 43-3/8″ (1102mm) |
| H = 35-5/8″ (905mm) | H = 35-5/8″ (905mm) |
| I = 44-3/8″ (1127mm) | I = 39-1/2″ (1003mm) |
| J = 60-3/8″ (1534mm) | J = 59-1/4″ (1505mm) |
| X = 46.0″ (1168mm) | X = 46-9/64″ (1172mm) |
| Y = 48-5/32″ (1223mm) | Y = 46-9/64″ (1172mm) |
DIMENSIONS – CQE Models
NOTE: It is recommended that the floor be protected with a plastic covering throughout the installation process
NOTE: Not recommended for installation on carpeted flooring.

| Overall Height to Top of the Door (A) | 70″ (1775 mm) |
| Height to Top of Hinge Cover (B) | 69-13/16″ (1772 mm) |
| Height to Top of Case (C) | 68-5/8″ (1742 mm) |
| Case Depth without Door (D) | 29-3/4″ (755 mm) |
| Case Depth with Door (E) | 34-3/8″ (872 mm) |
| Depth with Refrigerator Door Open 90° (F) | 48-11/16″ (1236 mm) |
| Width (G) | 35-3/4″ (908 mm) |
| Width with Door Open 90° (H) | 39-9/16″ (1005 mm) |
| Width with Doors Fully Open (I) | 60-1/8″ (1527 mm) |
| Min. Distance Between Case and Wall to Allow Doors to Fully Open (J) | 13″ (330 mm) |
Doors must be fully open to get full access to the Freezer and Temp Select Zone drawers.
MOVING THE REFRIGERATOR
- Using the chart below determine if the width of your passageway can accommodate the depth of the refrigerator. Ensure you have clearance to prevent damage to the refrigerator before safely moving it to the final location.
- If passageways are large enough to accommodate the refrigerator without removing the handles skip to Step 6. Leave tape, film and all packaging on doors until the refrigerator is in the final location.
- NOTE: Use a padded hand truck or moving straps to move this refrigerator. Place the refrigerator on the hand truck with a side against the truck. We strongly recommend that two people move and complete this installation.
| If your opening is less than the following dimensions, remove door parts in order until dimension is less than the opening. | ||
| CVE28DM | CQE | |
| Fully Assembled | 37-1/8″ (943 mm) | 34-7/8″ (872 mm) |
| Remove Handles | 34-9/16″ (878 mm) | |
| Remove Doors | 32-1/4″ (819 mm) | 32-1/4″ (819 mm) |
| Remove Center Hinge | 29-3/4″ (755 mm) | 29-3/4″ (755 mm) |
INSTALLING THE REFRIGERATOR
REFRIGERATOR LOCATION
- Do not install the refrigerator where the temperature will go below 60°F (16°C) because it will not run often enough to maintain proper temperatures.
- Do not install the refrigerator where the temperature will go above 100°F (37°C) because it will not perform properly.
- Do not install the refrigerator in a location exposed to water (rain, etc.) or direct sunlight.
- Install it on a floor strong enough to support it fully loaded.
CLEARANCES
Allow the following clearances for ease of installation, proper air circulation and plumbing and electrical connections.
Sides 1/8″ (3 mm)
Top 1″ (25 mm) Cabinet/Hinge Cover
Back 2″ (50 mm)
REMOVING THE REFRIGERATOR DOORS
- IMPORTANT NOTE: This refrigerator is 37-1/8″ (943 mm) deep (refer to chart on previous page). Doors and passageways leading to the installation location must be at least 37-1/8″ (943 mm) wide in order to leave the doors and handles attached to the refrigerator while transporting it into the installation location. If passageways are less than 37-1/8″ (943 mm), the refrigerator doors and handles can easily be scratched and damaged. The top cap and doors can be removed to allow the refrigerator to be safely moved indoors. If passageways are less than 34-9/16″ (878 mm), start with Step 1.
- If it is not necessary to remove doors, skip to Step 11. Leave tape and all packaging on doors until the refrigerator is in the final location.
- NOTE: Use a padded hand truck to move this refrigerator. Place the refrigerator on the hand truck with a side against the truck. We strongly recommend that TWO PEOPLE move and complete this installation.
- REFRIGERATOR AND FREEZER HANDLE INSTALLATION (on some models)
Before You Start . . . .
• To avoid injury, wear closed-toe shoes when installing the handles.
• While installing the handle, grasp the handle firmly to ensure it does not fall or scratch the appliance’s finish.
• IMPORTANT: To make sure the handles are accurately installed, please review the instructions and graphics before you begin installation.
• IMPORTANT: Do not use power tools to tighten set screws.
Tools Provided:
• g 1/8” hex key
Handle appearance may vary based on model; however, the installation process is the same.
- Remove any protective film from the door or drawer fronts before installing handles (if applicable).
- Remove handle from packaging and locate the provided 1/8″ hex key.
- Place the handle over the mounting fasteners until it is flush against the surface of the door.
- Tighten both set screws in the handle end caps by turning the 1/8″ hex key clockwise until the handle will not hang loose or fall from its mounting. Do not fully tighten yet.
- IMPORTANT: Hold the handle firmly against the door, make sure there are no gaps between the handle end caps and the door, and fully tighten the set screws.

To remove the handles, reverse the installation process.
INSTALLING THE REFRIGERATOR (Cont.)
2 REMOVE LEFT-HAND DOOR
WARNING Follow all steps for removing and reinstalling the door. Failure to follow these instructions, leaving off parts, or overtightening screws, can lead to the door falling off and result in injury and property damage.
- Loosen the icemaker water supply tube.

• Loosen and remove the tubing clamp which holds the water supply tube to the back of the refrigerator.
• Remove the black collar from water supply tube connector at the top right back of the refrigerator.
• Press the white flange down and separate the water supply line from the connector. - Remove the left hinge cover by removing 2 hinge cover screws with a Phillips head screwdriver and lifting from the left side. Disconnect electrical connectors and pull the water supply tube through the case.

- Securely tape the door s hut with masking tape or have a second person support the door.
- Remove screws holding hinge with a 5/16” socket. Lift hinge from refrigerat or and door.
2 REMOVE LEFT-HAND DOOR (cont.)
For proper installation later, please follow these next steps carefully:
- Remove the tape keeping the door as straight as possible, then lift up to remove.
CAUTION Lifting Hazard.
A single person lift could cause injury. Gain assistance when handling, moving, or lifting refrigerator doors.
3 REMOVE RIGHT-HAND DOOR
- Remove right hinge cover.
- Securely tape the door s h u t with masking tape or have a second person support the door.
- Remove screws holding hinge with a 5/16” socket. Lift hinge from refrigerator and door.
For proper installation later, please follow these next steps carefully:
- Remove the tape keeping the door as straight as possible, then lift up to remove.
CAUTION Lifting Hazard.
A single person lift could cause injury. Gain assistance when handling, moving, or lifting refrigerator doors.
To reassemble doors, reverse removal steps.
[ 4 ] REMOVE CENTER HINGE (if necessary)
Remove screws that secure hinge to the cabinet.
Inner screws need a 5/16” socket. Outer screw needs a Phillips #2.
[5] REMOVING CONVERTIBLE DRAWER (on some models)
- Remove the convertible drawer basket by lifting while rotating the basket upward.

- Disconnect the wiring control connection for the convertible drawer.
• Using a flat-head screwdriver, remove cover over electric connectors on inside right of the drawer frame. The cover hooks through the drawer frame toward the in side of the refrigerator.
• Press the tab in the center of the connector to separate.
- Remove 2 screws from each side of the frame with a 5/16” socket.
- Remove door by lifting off hooks.
[6] REMOVE PIZZA TRAY AND LOWER FREEZER BASKET (on some models)
- Push the top freezer drawer basket all the way inside the freezer compartment.
- Pull the pizza tray all the way out and lift up until the pizza tray is free to remove.

- Press the tab on the right side bracket to remove the freezer drawer bin.

- Lift the bottom freezer drawer basket slightly back, then up and out of the drawer.
- Pull the lower basket and slide mechanism to full extension using both hands.
- Remove the basket resting on the slides.
[7] REMOVE THE FREEZER DRAWER (on some models)
- Pull the freezer drawer open to full extension.
- Remove two screw from each side of the frame with a 5/16” socket.

CAUTION
Lifting Hazard Freezer door is heavy Use both hands to secure the door before lifting.
[7] REMOVE THE FREEZER DRAWER (on some models) (Cont.) - Remove the door by lifting off hooks.

- Push the bottom basket slides back until the slide mechanism self retracts.
[8] REMOVE LOWER LEFT-HAND DOOR (on some models)
WARNING
Follow all steps for removing and reinstalling the door. Failure to follow these instructions, leaving off parts, or overtightening screws, can lead to the door falling off and result in injury and property damage.
- Securely tape the door shut with masking tape or have a second person support the door.
- Remove the center hinge with a 5/16” socket and Phillips head screwdriver.

- Remove the tape keeping the door as straight as possible, then lift up to remove.
CAUTION Lifting Hazard .
A single person lift could cause injury. Gain assistance when handling, moving, or lifting refrigerator doors.
[9] REMOVE LOWER RIGHT-HAND DOOR (on some models)
- Open lower right-hand door 90°.
- Remove lower hinge cover by removing Phillips head screw and unsnapping cover from hinge.

- Disconnect 2 harnesses.
- Securely tape the door shut with masking tape or have a second person support the door.
- Remove the center hinge with a 5/16” socket and Phillips head screwdriver.

- Remove the tape keeping the door as straight as possible, then lift up to remove.
CAUTION Lifting Hazard
Freezer door is heavy Use both hands to secure the door before lifting.
- Pull the lower basket slide mechanism to full extension with both hands.
- Lift the freezer door and align the hooks with the notches on the slide mechanisms.
NOTE: Place one side in first, then align the other side. - Replace the attachment screws and torque the screws to 65 in-lb (7.34 N-m).
To reassemble doors, reverse removal steps. Be careful wires pass through bottom hight-hand hinge.
10 REMOVE LOWER HINGE (if necessary) (on some models)
Remove screws that secure hinge to the cabinet. Inner screws need a 5/16” socket. Outer screw needs a Phillips #2.”
11 RE-INSTALL CONVERTIBLE DRAWER (on some models)
To reassemble doors, reverse removal steps. Convertible drawer basket will be loose if re-installed backwards. Look for “FRONT” emboss to help with re-installation.

12 REPLACE FREEZER DRAWER (on some models)
CAUTION Lifting Hazard
Freezer door is heavy Use both hands to secure the door before lifting.
- Pull the lower basket slide mechanism to full extension with both hands.
- Lift the freezer door and align the hooks with the notches on the slide mechanisms.
NOTE: Place one side in first, then align the other side.
- Replace the attachment screws and torque the screws to 65 in-lb (7.34 N-m).
13 RE-INSTALL PIZZA TRAY AND LOWER FREEZER BASKET (on some models)
- Re-install lower freezer basket first, then re-install pizza drawer.

- Check f or smooth operation of baskets.
- Re-install freezer drawer by placing the drawer wheels onto the top of the track mounted to the side of the freezer walls. The wheels on the freezer drawer should be on top of the bottom basket sides.
14 REINSTALL LOWER LEFT AND RIGHT-HAND DOORS (on some models)
WARNING
Follow all steps for removing and reinstalling the door. Failure to follow these instructions, leaving off parts , or overtightening screws, can lead to the door falling off and result in injury and property damage.
CAUTION Lifting Hazard
A single person lift could cause injury. Gain assistance when handling, moving, or lifting refrigerator doors.
- Reinstall lower hinges first (if necessary) and torque the 5/16” screws t o 65 in – l b (7.35 N-m) and small screw t o 25 i n – l b s (2.82 N-m). Rotating the screw
by 1/3 turn after it is flush with mating surface will achieve these torques. - With the door at 90° to the front o f the case, lower the refrigerator door onto the lower hinge, carefully pulling the harness through the right-hand hinge.
Close the door and tape closed. - Reinstall the center hinge per step #1 above.
- Remove the tape.
- Open the lower right-hand door 90 ° .
- Connect the two harnesses.
- Replace both lower hinge covers (if necessary).
REINSTALLING THE UPPER LEFT AND RIGHT-HAND DOORS
WARNING Follow all steps for removing and reinstalling the door. Failure to follow these instructions, leaving off parts , or overtightening screws, can lead to the door falling off and result injury and property damage.
CAUTION Lifting Hazard
A single person lift could cause injury. Gain assistance when handling, moving, or lifting refrigerator doors.
- Reinstall center hinge first and torque the 4” screw t o 65 in-lbs (7.34 N-m) and small screw t o 25 in-lbs (2.82 N-m). Rotating the screw by 1/3 turn afte ritis flush with mating surface will achieve these torques.
- Lower the refrigerator door onto the center hinge.
- Securely tape the door shut with masking tape or have a second person support the door .
- Reinstallation is the reverse of the removal instructions.
- Be sure to reinstall the ground wire and strain relief to the top hinge.
- Reinstall hinge cover. NOTE: Ensure wires are not pinched or under screw bosses before tightening screws.

16 CONNECTING REFRIGERATOR TO THE HOUSE WATER LINE
A cold water supply is required for automatic icemaker operation. If there is not a cold water supply, you will need to provide one. See Installing the Water Line section. NOTES:
• Before making the connection to the refrigerator, be sure the refrigerator power cord is not plugged into the wall outlet.
• If your refrigerator does not have a water filter, we recommend installing one if your water supply has sand or particles that could clog the screen of the refrigerator’s water valve. Install it in the water line near the refrigerator. If using SmartConnecr Refrigerator Tubing Kit, you will need an additional tube (WX08X10002) to connect the filter. Do not cut plastic tube to install filter.
• Before connecting the water line to the house, purge the house line for at least 2 minutes.
- If you are using copper tubing, place a compression nut and ferrule (sleeve) onto the end of the tubing coming from the house cold water supply. If you are using the SmartConnectn’ tubing, the nuts are already assembled to the tubing.
WARNING
Electrical Shock Hazard.
Attach tubing clamp using existing hole only. DO NOT drill into the refrigerator. - If you are using copper tubing, insert the end of the tubing into the refrigerator connection, at the back of the refrigerator, as far as possible. While holding the tubing, tighten the fitting. If you are using SmartConnectrm tubing, insert the molded end of the tubing into the refrigerator connection, at the back of the refrigerator, and tighten the compression nut until it is hand tight. Then tighten one additional turn with a wrench. Over tightening may cause leaks.
- Fasten the tubing into the clamp provided to hold it in position. You may need to pry open the clamp.
WARNING
Connect to potable water supply only. A cold water supply is required for automatic icemaker operation. The water pressure must be between 40 and 120 psi (275-827 kilopascals)

17 TURN ON THE WATER SUPPLY

Turn the water on at the shutoff valve (house water supply) and check for any leaks.
18 PLUG IN THE REFRIGERATOR

See the grounding information attached to the power cord.
19 LEVEL THE REFRIGERATOR
The leveling legs have 2 purposes:
- Leveling legs adjust so the refrigerator is firmly positioned on the floor and does not wobble.
- Leveling legs serve as a stabilizing brake to hold the refrigerator securely in position during operation and cleaning. The leveling legs also prevent the refrigerator from tipping.
• Turn the leveling legs clockwise to raise the refrigerator, counterclockwise to lower it.
NOTICE: To avoid possible property damage, the leveling legs must be firmly touching the floor.

20 LEVEL THE REFRIGERATOR DOORS
Remember a level refrigerator is necessary for getting the doors perfectly even. If you need help, review the previous section on leveling the refrigerator.
For 2 drawer models:
- Access the hinge screws by opening the convertible drawer.
- Insert 1/4″ Allen wrench into the shaft of the center hinge.

- Adjust the height by turning clockwise or counterclockwise. When you turn counterclockwise, the door will move up.
For 4 door models: Using a 1/4″ open end wrench or flat-head screwdriver, turn the slotted wheel to adjust doors up or down.
To adjust the height of the lower doors:
■ Remove the left-hand and right-hand hinge covers with a Phillips head screwdriver, then use a 9/16″ open end wrench to adjust the doors 
CVE and CXE Models
To place bins into doors:
- Match your bin with the letter shown. Position the bins over the bin locator and push forward until inserted fully.
- Push bin down until locked into position.


To place bins into doors:
- Match your bin with the letter shown. Position the bins over the bin locator and push forward until inserted fully.
- Push bin down until locked into position.

INSTALLING THE WATER LINE
BEFORE YOU BEGIN Recommended copper water supply kits are WX8X2, WX8X3 or WX8X4, depending on the amount of tubing you need. Approved plastic water supply lines are Smart Connect’ Refrigerator Tubing (WX08X10006, WX08X10015 and WX08X10025). When connecting your refrigerator to a GE Appliances Reverse Osmosis Water System, the only approved installation is with a GE Appliances RVKit. For other reverse osmosis water systems, follow the manufacturer’s recommendations. If the water supply to the refrigerator is from a Reverse Osmosis (RO) Water Filtration System AND the refrigerator also has a water filter, use the refrigerator’s filter bypass plug. Using the refrigerator’s water filtration cartridge in conjunction with the RO water filter can result in hollow ice cubes. Some models do not come equipped with the filter bypass plug. To obtain a free bypass plug, call 800.692.6630 and request WR17X33825 filter bypass plug. In Canada, call 800.561.3344. This water line installation is not warranted by the refrigerator or icemaker manufacturer. Follow these instructions carefully to minimize the risk of expensive water damage. Water hammer (water banging in the pipes) in house plumbing can cause damage to refrigerator parts and lead to water leakage or flooding. Call a qualified plumber to correct water hammer before installing the water supply line to the refrigerator. To prevent bums and product damage, do not hook up the water line to the hot water line. If the refrigerator is operated before the water connection is made to the icemaker, see Controls section on page 9 to turn icemaker off. Do not install the icemaker tubing in areas where temperatures fall below freezing. When using any electrical device (such as a power drill) during installation, be sure the device is double insulated or grounded in a manner to prevent the hazard of electric shock, or is battery powered. All installations must be in accordance with local plumbing code requirements.
WHAT YOU WILL NEED
Copper or SmartConnect’ Refrigerator Tubing kit, vc outer diameter to connect the refrigerator to the water supply. If using copper, be sure both ends of the tubing are cut square. To determine how much tubing you need: measure the distance from the water valve on the back of the refrigerator to the water supply pipe. Be sure there is sufficient extra tubing to allow the refrigerator to move out from the wall after installation. SmartConnect- Refrigerator Tubing Kits are available in the following lengths: 8′ (2.4 m) – WX08X10006 15′ (4.6 m) – WX08X10015 25′ (7.6 m) – WX08X10025
WARNING
Connect to potable water supply only. A cold water supply is required for automatic icemaker operation. The water pressure must be between 40 and 120 psi (275-827 kilopascals)
NOTE: The only Cafe approved plastic tubing is that supplied in SmartConnect’ Refrigerator Tubing kits. Do not use any other plastic water supply line because the line is under pressure at all times. Certain types of plastic MI crack or rupture with age and cause water damage to your home.
- A GE Appliances water supply kit (containing tubing, shutoff valve and fittings listed below) Is available at extra cost from your dealer or by visiting eafsappllances.com (in Canada. cateappilances.ca).
- A cold water supply. The water pressure must be between 20 and 120 psi (1.4-8.1 bar).

- Power drill.
- 112″ or adjustable wrench.
- Straight and Phillips blade screwdriver.

- Two 114* outer diameter compression nuts and 2 ferrules (sleeves)—to connect the copper tubing to the shutoff valve and the refrigerator water valve. OR
- 11 you are using a SmartConnect” Refrigerator Tubing kit. the necessary fittings are preassernbled to the tubing.

- II your existing copper water line has a flared fitting at the end, you will need an adapter (available at plumbing supply stores) to connect the water line to the refrigerator OR you can cut off the flared fitting with a tube cutter and then use a compression fitting. Do not cut formed end from SmartConnect” Refrigerator tubing.

- Shutoff valve to connect to the cold water line. The shutoff valve should have a water Inlet with a minimum inside diameter of 5132at the point of connection to the COLD WATER LINE. Saddle type shutoff valves are Included In many water supply kits. Before purchasing. make sure a saddle-type valve complies with your local plumbing codes.
nstall the shutoff valve on the nearest frequently used drinking water line.
- SHUT OFF THE MAIN WATER SUPPLY Turn on the nearest faucet long enough to dear the line of water.
- CHOOSE THE VALVE LOCATION
Choose a location for the valve that is easily accessible. It is best to connect into the side of a vertical water pipe. When it is necessary to connect into a horizontal water pipe. make the connection to the top or side, rather than at the bottom, to avoid drawing off any sediment from the water pipe. - DRILL THE HOLE FOR THE VALVE Drill a 1/4″ hole in the water pipe (even if using a seplercing valve). using a sharp bit. Remove any burrs resulting from drilling the hole in the pipe. Take care not to allow water to drain into the drill. Failure to dril a 11 hole may result in reduced ice production or smaller cubes.

- FASTEN THE SHUTOFF VALVE
1. Fasten the shutoff valve to the cold water pipe with the pipe clamp.
NOTE: Commonwealth of Massachusetts Plumbing Codes 248CMR shall be adhered to. Saddle valves are illegal and use is not permitted in Massachusetts. Consult with your licensed plumber. - TIGHTEN THE PIPE CLAMP Tighten the clamp screws until the sealing washer begins to swell. NOTE: Do not over tighten or you may crush the tubing.

- ROUTE THE TUBING
Route the tubing between the cold water line and the refrigerator. Route the tubing through a hole drilled in the wall or floor (behind the refrigerator or adjacent base cabinet) as close to the wall as possible. - CONNECT THE TUBING TO THE VALVE
Place the compression nut and ferrule (sleeve) for copper tubing onto the end of the tubing and connect it to the shutoff valve.
Make sure the tubing is fully inserted into the valve. Tighten the compression nut securely. For plastic tubing from a SmartConnectTM Refrigerator Tubing kit, insert the molded end of the tubing into the shutoff valve and tighten compression nut until it is hand tight, then tighten one additional turn with a wrench.
NOTE: Commonwealth of Massachusetts Plumbing Codes 248CMR shall be adhered to. Saddle valves are illegal and use is not permitted in Massachusetts. Consult with your licensed plumber. - FLUSH OUT THE TUBING
Turn the main water supply on and flush out the tubing until the water is clear. Shut the water off at the water valve after about one quart (1 liter), or 2 minutes, of water has been flushed through the tubing.
To complete the installation of the refrigerator, go back to Step 12 in Installing the Refrigerator.
Newer refrigerators sound different from older refrigerators. Modem refrigerators have more features and use newer technology.
Do you hear what I hear? These conditions are normal.
HUMMM..
WHOOSH…
- The new high efficiency compressor may run faster and longer than your old refrigerator and you may hear a high-pitched hum or pulsating sound while it is operating.
- You may hear a whooshing sound when the doors close. This is due to pressure equalizing within the refrigerator.
- After dispensing ice, a motor will close the ice chute to keep warn room air from entering the ice bucket, maintaining ice at a freezing temperature. The hum of the motor closing the ice chute is normal, shortly after dispensing ice.
CLICKS, POPS, CRACKS and SNAPS
- You may hear cracking or popping sounds when the refrigerator is first plugged in. This happens as the refrigerator cools to the correct temperature.
- The compressor may cause a clicking or chirping sound when attempting to restart (this could take up to 5 minutes).
- Expansion and contraction of cooling coils during and after defrost can cause a cracking or popping sound.
- On models with an icemaker, after an ice making cycle, you may hear the ice cubes dropping into the ice bucket.
- After dispensing ice, a motor will close the ice chute to keep warm room air from entering the ice bucket, maintaining ice at a freezing temperature.
START UP COOLING It can take up to 24 hours for the refrigerator temperatures to reach the set temperatures. During that time refrigerator and freezer door openings should be minimized.
WAIR
- You may hear the fans spinning at high speeds. This happens when the refrigerator is first plugged in, when the doors are opened frequently or when a large amount of food is added to the refrigerator or freezer compartments. The fans are helping to maintain the correct temperatures.
- The fans change speeds in order to provide optimal cooling and energy savings.
WATER SOUNDS ![]()
- The flow of refrigerant through the cooling coils may make a gurgling noise like boiling water.
- Water dropping on the defrost heater can cause a sizzling, popping or buzzing sound during the defrost cycle.
- A water dripping noise may occur during the defrost cycle as ice melts from the evaporator and flows into the drain pan.
- Closing the door may cause a gurgling sound due to pressure equalization.
Troubleshooting Tips…
Before you call for service Save time and money! Review the charts on the following pages first and you may not need to schedule service.
| Problem | Possible Causes | What to Do |
| Not filtering | Filter bypass installed | Install correct water filter |
| Reset Water Filter Water Filter Expired | Water filter leaking or needs replacing | Replace water filter, or install filter bypass . To reset filter timer, press the Settings ) button until icemaker” is highlighted, then hold down the Water and Ice buttons simultaneously for 3 seconds.” |
| Water filter indicator light is not lit | This is normal. This indicator will turn on to tell you that you need to replace the filter soon. | See Water Filter for more information. |
| Handle is loose/handle has a gap. | Handle needs adjusting | See Installing the Refrigerator section for detailed instructions. |
| Refrigerator beeping | The door alarm is beeping | -Turn off or disable with door closed -If door open and alarm is sounding, you can only snooze the alarm |
| Refrigerator lights off and “SA” shown in display | Unit is in Sabbath mode | Simultaneously hold the Settings ( ) button, Water, and Light buttons for three seconds to exit Sabbath mode |
| Not cooling | The cooling system is off | See Controls. |
| Water has poor taste/odor | Water dispenser has not been used for a long time | Dispense water, until all water in system is replenished. |
| Water in glass is warm | Normal when refrigerator is first installed | Wait 24 hours for the refrigerator to completely cool down. |
| Water dispenser has not been used for a long time | Dispense water, until all water in system is replenished | |
| Water system has drained | Allow several hours for replenished supply to chill | |
| Water dispenser does not work | Water supply line turned off or not connected | See Installing the Water Line |
| Water filter clogged or filter/bypass plug not installed | Replace filter cartridge or remove filter and install bypass plug* | |
| Air may be trapped in the water system | Press the dispenser arm for at least 5 minutes. | |
| Water in reservoir is frozen because the controls are set too cold | Set the refrigerator control to a warmer setting and wait 24 hours. If the water does not dispense after 24 hours, call for service | |
| Water spurting from dispenser | Newly installed filter cartridge | Run water from the dispenser for 5 minutes (about 2 gallons) |
| No water or ice cube production | Supply line or shutoff valve is clogged | Call a plumber |
| Water filter is clogged | Replace filter cartridge or remove filter and install bypass plug* | |
| Filter cartridge not properly installed | Remove and reinstall filter cartridge, being certain that it locks in place. | |
| Icemaker is tumed off | Check that the icemaker is turned on. See Controls |
Some models do not come equipped with the filler bypass plug. To obtain a free bypass plug, call 800.692.6630 and request WR17X33825 filter bypass plug. In Canada, call 800.561.3344.
| Problem | Possible Causes | What to Do |
| Water is leaking from dispenser | Air may be present in the water line system, causing water to drip after being dispensed | Dispense water for at least 5 minutes to remove air from system |
| AUTO FILL under fill/no fill | Not all containers work with AutoFill | Try different container |
| Error message | See page 12 | |
| Clean sensor. See page 12 | ||
| AUTO FILL overfills | Not all containers work with AutoFill | Try different container Use less ice Ensure hands are away from the cup prior to pressing the AutoFill key |
| Freezer cooling, refrigerator not cooling | Normal, when refrigerator first plugged in or after extended power outage | Wait 24 hours for temperature in both compartments to reach selected temperatures. |
| Ice dispenser opens after closing freezer drawer | Normal | The ice dispenser door may open after closing freezer door to allow access |
| My refrigerator door squeaks | Diminished lubricant because of accidental cleaning of the lubricant on the hinge | It is best to order GEA lubricant service part number WR97X166 and apply on the hinge at specified location. It is possible to spray some non-toxic lubricant such as silicone based nonstick cooking spray, petroleum jelly or NSF approved food grade lubricants. IMPORTANT: Do not use WD-40 as it will remove any remaining grease in or around the hinge |
| Improper leveling | Make sure the unit is leveled | |
| If doors were removed and re- assembled during installation process, waterline and/hamess under Top Hinge cover may get out of position and rub against door while door swivels. | Remove the Top Hinge cover and make sure the waterline and harness that passes through the hinge pin has been properly seated and does not touch the any of the door parts during rotation. Applying some food grade lubricant around door thimble area will also help. |
Truth or Myth
SERVICE
Save time and money! Review the charts on the following pages first and you may not need to schedule service.
Truth or Myth
| Truth or Myth? | Answer | Explanation |
| The refrigerator water filter may require replacement, even though the filter indicator has not turned red, or reads ‘Filter Expired.” | TRUE | The water filter indicator will indicate the need to replace the water filter every six months. Water quality varies from city to city; if water flow from the dispenser slows, or ice production decreases, the water filter should be replaced, even though the filter indicator may not indicate the need for replacement. |
| The automatic ice maker in my refrigerator will produce ice when the refrigerator is plugged in to a power receptacle. | MYTH | The refrigerator must be connected to water, and the ice maker must be turned on. Make sure the ice maker is turned on, only after the water line is connected and water is turned on. The ice maker can be turned on/off from the controls and ensure the ice maker is on, as indicated on the refrigerator control panel. See Automatic Ice Maker section in the full owner’s manual available online. |
| After the refrigerator has been plugged in and connected to water, I will immediately have unlimited chilled water available from the water dispenser. | MYTH | The water dispenser tank located inside the refrigerator stores water for dispensing. The water in this tank requires 24 hours to chill after installation. High usage conditions will not allow time for the water to chill. |
| After water dispenses, a few drops of water are normal. | TRUE | A few drops of water may fall from the dispenser, after the dispenser paddle has been released. To minimize the drops, remove the glass slowly from the dispenser. |
| I will never see frost inside the freezer compartment. | MYTH | Frost inside the freezer typically indicates that the door is not properly sealed, or has been left open. If frost is found, clear the frost using a plastic spatula and towel, then check to ensure that no food packages or containers are preventing the freezer door from closing. Check the refrigerator control panel to ensure the door alarm is on. |
| When the refrigerator is installed, or after replacing the water filter, I must dispense water for five minutes. | TRUE | A newly installed refrigerator or water filter contains air in the water lines. Press the dispenser paddle and dispense cold water for at least 5 minutes to remove air from the water line, and flush the filter. |
| To fill the ice bucket to the maximum capacity, I should dispense 12 and 18 hours after installation. | TRUE | Dispensing 3-4 cubes 12 hours and 18 hours after installation, allows ice to disperse within the ice bucket, which in turns calls on the ice maker to produce additional ice. Normal ice production = 100 cubes in 24 hours. |
| I can use the water filter bypass plug to determine if the filter requires replacement. | TRUE | Decrease in flow from the water dispenser, or decreased ice production, may indicate the need to replace the water filter. Install the water filter bypass plug (provided with the refrigerator on some models’), and check flow from the dispenser. If water flow returns to normal with the bypass plug in place, replace the water filter. |
| The top of the refrigerator doors will always be aligned. | MYTH | Several things can affect the refrigerator door alignment, including the floor the refrigerator is installed on and loading of doors. If the top of the refrigerator doors are not aligned, use a 1/4″ alien wrench to adjust the right left hand door. The adjustment screw is located on the bottom right or left hand side of the door. Refrigerator doors should be open during height adjustment. Open the freezer door to access the screw. See Step 15. |
| Refrigerator door handles can be easily tightened. | TRUE | If door handles are loose or have a gap, the handle can be adjusted using a 1/8″ allen wrench, on set screws located on the ends of the handles. |
| There may be odor and taste problems with your ice. | TRUE | After starting the ice maker throw away 24 hours of ice production to avoid odor and taste problems. |
| I can make fine adjustments to the refrigerator doors to align them. | TRUE | If the refrigerator doors are not aligned, use a 1/4″ Allen wrench to adjust the right hand door. The adjustment screw is located on the bottom of the right door. Open the freezer door to access. See step 15. |
| Truth or Myth? | Answer | Explanation |
| Door handles should always be removed for installation. | MYTH | Check chart on reverse side of this instruction. If the doors must be removed do not remove the handles, or if the refrigerator will fit easily through the passage way opening. Adjust handles that are loose or have a gap, by adjusting 1/8″ set screws on either end of handles. |
| Door removal is always required for installation. | MYTH | Check chart on reverse side of this instruction. Doors should only be removed when necessary to prevent damage from passage way or access to final location. |
| Refrigerator doors will self-close if left open. | MYTH | Refrigerator doors need to be closed by consumer. A gentle bounce back is a designed feature on some models that gives a positive feedback to the user so that they can initiate and complete the door closing action. |
| There is an adjustment to rear wheels. | MYTH | Front leveling legs are adjustable and should be used to balance the refrigerator. Leveling legs are used to make initial refrigerator door adjustment. |
| Check for leaks after all water connections are made. | TRUE | While purging the air from the water system, check all water line connections for leaks. Check the connection to the household water supply at back of refrigerator, and door water line connect. |
| Any packaging residue can be cleaned off the refrigerator using any cleaner. | MYTH | Do not use wax, polish, bleach, or other products containing chlorine on Stainless Steel panels, door handles and trim. Check this instruction under “Cleaning the Outside” for full details. |
*Some models do not come equipped with the filter bypass plug. To obtain a free bypass plug, call 800.692.6630 and request WR17X33825 filter bypass plug. In Canada, call 800.561.3344.
LIMITED WARRNTY
Café Appliances Refrigerator Limited Warranty
cafeappliances.com All warranty service is provided by our Factory Service Centers, or an authorized service technician. To schedule service online, visit us at cafeappliances.com/service. Please have your serial number and your model number available when scheduling service.
| For the Period of: | Café Will Replace |
| One Year From the date of the original purchase | Any part of the refrigerator which fails due to a defect in materials or workmanship. During the limited one-year warranty, Café will also provide, free of charge, all labor and related service to replace the defective part. |
| Thirty Days (Water filter, if included) From the original purchase date of the refrigerator | Any part of the water filter cartridge which fails due to a defect in materials or workmanship. During this limited thirty-day warranty, Café will also provide, free of charge, a replacement water filter cartridge. |
| Five Years From the date of the purchase | Any part of the sealed refrigerating system (the compressor, condenser, evaporator and all connecting tubing) which fails due to a defect in materials or workmanship. During this limited five-year sealed refrigerating system warranty, Cafe will also provide, free of charge, all labor and related service to replace the defective part in the sealed refrigerating system. |
What Café Will Not Cover:
■ Service trips to your home to teach you how to use the product.
■ Improper installation, delivery or maintenance.
■ Failure of the product if it is abused, misused, or used for other than the intended purpose or used commercially.
■ Loss of food due to spoilage.
■ Replacement of house fuses or resetting of circuit breakers.
■ Damage to finish, such as surface rust, tarnish, or small blemishes not reported within 48 hours of delivery.
■ Replacement of the water filter cartridge, if included, due to water pressure that is outside the specified operating range or due to excessive sediment in the water supply.
■ Replacement of the light bulbs, if included, or water filter cartridge, if included, other than as noted above.
■ Damage to the product caused by accident, fire, floods or acts of God.
■ Incidental or consequential damage caused by possible defects with this appliance.
■ Product not accessible to provide required servic
■ Damage caused by a non-
GE Appliances Brand water filter.
EXCLUSION OF IMPLIED WARRANTIES Your sole and exclusive remedy is product repair as provided in this Limited Warranty. Any implied warranties, including the implied warranties of merchantability or fitness for a particular purpose, are limited to one year or the shortest period allowed by law.
For US Customers: This limited warranty is extended to the original purchaser and any succeeding owner for products purchased for home use within the USA. If the product is located in an area where service by a Café Authorized Servicer is not available, you may be responsible for a trip charge or you may be required to bring the product to an Authorized Café Service location for service. In Alaska, the limited warranty excludes the cost of shipping or service calls to your home. Some states do not allow the exclusion or limitation of incidental or consequential damages. This limited warranty gives you specific legal rights, and you may also have other rights which vary from state to state. To know what your legal rights are, consult your local or state consumer affairs office or your state’s Attorney General.
Warrantor: GE Appliances, a Haier company Louisville, KY 40225
For Customers in Canada: This limited warranty is extended to the original purchaser and any succeeding owner for products purchased in Canada for home use within Canada. In-home warrant service will be provided in areas where it is available and deemed reasonable by Mabe to provide.
Warrantor Canada: MC Commercial, Inc., Burlington, Ontario, L7R 5B6
XWFE Water Filter Cartridge Limited Warranty
Contact us at geapplianceparts.com.
| For the period of | GE Appliances will replace |
| Thirty Days From the date of the original purchase | Any part of the water filter cartridge which fails due to a defect in materials or workmanship during this limited thirty-day warranty? |
What GE Appliances will not cover:
■ Service trips to your home to teach you how to use the product.
■ Improper installation.
■ Failure of the product if it is abused, misused, used for other than the intended purpose or used commercially.
■ Replacement of house fuses or resetting of circuit breakers.
■ Damage to the product caused by accident, fire, floods, or acts of God.
■ Incidental or consequential damage caused by possible defects with this appliance.
EXCLUSION OF IMPLIED WARRANTIES Your sole and exclusive remedy is part exchange as provided in this Limited Warranty. Any implied warranties, including the implied warranties of merchantability or fitness for a particular purpose, are limited to six months or the shortest period allowed by law.
This warranty is extended to the original purchaser and any succeeding owner for products purchased for home use within the USA. In Alaska, the warranty excludes the cost of shipping or service calls to your home. Some states do not allow the exclusion or limitation of incidental or consequential damages. This warranty gives you specific legal rights, and you may also have other rights which vary from state to state. To know what your legal rights are, consult your local or state consumer affairs office or your state’s Attorney General. For Purchases Made In Iowa: This form must be signed and dated by the buyer and seller prior to the consummation of this sale.
This form should be retained on file by the seller for a minimum of two years.
Buyer:————- Name———————— Address —————— City————————- State——————— Zip——————- Signature——————————————— Date —————
Seller: ————————–Name ——————-Address————————- Lity ———————–State ———————Zip——– Signature Date————–
*If your GE Appliances part fails because of a manufacturing defect within thirty days from the date of original purchase for use, we will give you a new or, at our option, a rebuilt part without charge. Return the defective part to the parts supplier from whom it was purchased together with a copy of the “proof of purchase” for the part. If the part is defective and shows no signs of abuse, it will be exchanged. The warranty does not cover the failure of parts which are damaged while in your possession, are abused, or have been installed improperly. It does not cover the cost of returning the part to the supplier from whom it was purchased nor does it cover the cost of labor to remove or install it to diagnose the fault. It does not cover parts used in products in commercial use except in the case of air conditioning equipment. In no event shall GE Appliances be liable for consequential damages. Warrantor: GE Appliances, a Haier companySystem certified by IAPMO R&T against NSF/ANSI Standards 42, 53, 401, and P473 for the reduction of claims specified on the performance data sheet and at iapmort.org Actual nerformance may vary with local wa er conditions.
| Substance Tested for Reduction | Influent challenge concentration (mpfL) | Maximum permissible product water concentration (mp/L) | Avg % Reduction |
| Chlorine Taste and Odor | 2.0 mg& ./. 10% | WA | 99. |
| Clgoramine Taste and Odor | 3.0 m94..1. 10% | 0.5 | 99. |
| Pantalets. Class I | Al least 10.000lmL | WA | 9t.4 |
| Cysts | 50.0004. | WA | >99.99 |
| Lead | 0.15 | 0.01 | 99. |
| mercury | 0.006 | 0.002 | 98. |
| ASSCUCC | iCa 60 108 fibril L | WA | >99 |
| Toxaohene | 0.015+1- 10% | 0.003 | 89. |
| VOC (Chloroform stooge* chemical) | 0.300 | 0.015 | 100. |
| Alachks | 0.050 | 0.001 | > 98 |
| Atrazise | 0.100 | 0.003 | > 97 |
| Benzene | 0.081 | 0.001 | a 90 |
| Carboluren | 0.190 | 0.001 | a 99 |
| carbon letrachichde | 0.078 | 0.0018 | 98 |
| chlorrobenzene | 0.077 | 0.001 | ‘ 99 |
| chbroptorin | 0.015 | 0.0002 | 99 |
| 2. | 0.110 | 0.0017 | 98 |
| dibrancoNorcorocene (DBCP) | 0.052 | 0.00002 | ‘ 99 |
| wOichbrceenzene | 0.08 | 0.001 | a 03 |
| pachInobenzene | 0.000 | 0.001 | a 98 |
| 1.24ichIctoethane | 0.088 | 0.0048 | 95 |
| 1 .1-dtchloroethylene | 0.083 | 0.001 | > 99 |
| cis.1.2-dichloreethylene | 0.170 | 0.0005 | a 99 |
| Irans-12-dichbroethylene | 0.098 | 0.001 | a 99 |
| .1.24ichloroOrcOane | 0.080 | 0.001 | > 99 |
| cis.1.3elichleropmeylene | 0.079 | 0.001 | > 99 |
| cfriosati | 0.170 | 0.0002 | 99 |
| Ender, | 0.053 | 0.00069 | 99 |
| Ethytertzene | 0.088 | 0.001 | a 99 |
| ethylene diteorside (50E) | 0.004 | 0.00002 | a 99 |
| bromochiccoacetosasIe | 0.022 | 0.0005 | 98 |
| otwomeacetentaile | 0.024 | 0.0006 | 98 |
| iscintoioacetenisile | 0.0098 | 0.0002 | 98 |
| inchIccoaccsositnio | 15 | 0.0003 | 98 |
| 1.14ichloro-2-orownone | 0,0072 | 0.0001 | 99 |
| 1 .1.14noNoro-2.propenone | 0.0082 | 0.0003 | 98 |
| heptachlor 0434. litotes) | 0.025 | 0.00001 | >99 |
| heptachlor epoxide | 0.0107 | 0.0002 | 98 |
| hexathlorobutedene | 0.044 | 0.001 | > se |
| hexachlorocyclopentadene | 0.080 | 0.000002 | > 99 |
| Undone | 0.055 | 0.00001 | a 99 |
| mernoxychlor | 0.050 | 0.0001 | > 99 |
| osmachkeophend | 0.096 | 0.001 | > 99 |
| simazine | 0.120 | 0.004 | a 97 |
| Styrene | 0.150 | 0.0005 | a 99 |
| 1.1.2.2-wrachteroemene | 0.061 | 0.001 | a 99 |
| Telrachteroethylene | 0.081 | 0.001 | a 99 |
| Toluene | 0.078 | 0.001 | > 99 |
| 2.0.5-TP (selves) | 0.270 | 0.0016 | 99 |
| inteomosatic acid | 0.042 | 0.001 | a 98 |
| 1.2.4-Trichlorehenzene | 0.180 | 0.0005 | a 99 |
| i 1.14ncetometrane | 0.084 | 0.0046 | 95 |
| 1 .1.24ncetoroeteane | 0.150 | 0.0005 | > 99 |
| Inchlaromhylene | 0.180 | 0.0010 | > 99 |
| Momoforrn | 0.300 | 0.015 | 95 |
| womoacwolometoane | 0.300 | 0.015 | 95 |
| chtrodtionnenethant | 0.300 | 0.015 | 95 |
| xylenes | 0.070 | 0.001 | >99 |
| Meorotemate | 400+1- 20% | 60 | 97. |
| Menotti | 200 41- 20% | 30 | 96. |
| Carbamazepino | 1400*S 20% | 200 | 99. |
| DEET | 1400 sir- 20% | 200 | 99. |
| Mesolachlor | 1400 eh 20% | 200 | 99. |
| Dimethopirn | 140 N. 20% | 20 | 9e.1 |
| Unman | 140 +1- 20% | 20 | 97. |
| ‘EP | 5000.1- 20% | 700 | 98. |
| TCPP | 50004.% | 700 | 98. |
| Phenytoin | 200+1- 20% | 30 | 98 |
| Ibtorofen | 400 el- 20% | 60 | 96. |
| Napf0X00 | 140 41- 20% | 20 | 97. |
| Estrum | 140 +1- 20% | 20 | 97. |
| Bisphenol A | 2000 ../- 20% | 300 | 99. |
Application Guidelines/Water Supply Parameters
| Service Flow | 0.5 ppm (1.89 Ipm) |
| Water Supply | Potable Water |
| Water Pressure | 25-120 psi (172827 kPa) |
| Water Temperature | 33°F-100T (0.6°C-38°C) |
| Capacity | 170 gallons (643.5 liters) |
It is essential that the manufacturer’s recommended installation. maintenance and filter replacement requirements be canied out for the product to perform as advertised. See Installation Manual for Warranty information.
NOTE: While the testing was performed under standard laboratory conditions, actual performance may vary. Replacement Cartridge: XWFE. For estimated costs of replacement elements please visit our website at cafeappliances.com.
WARNING
To reduce the risk associated with Ingestion of contaminants:
- Do not use with water that Is microbiologically unsafe or of unknown quality without adequate disinfection before and after the system. Systems certified for cyst reduction may be used on disinfected water that may contain filterable cysts.
NOTICE To reduce the risk of water leakage or flooding, and to ensure optimal filter performance:
- Read and follow use instructions before installation and use of this system.
- Installation and use MUST comply with all state and local plumbing codes. Do not install if water pressure exceeds 120 psi (827 kPa). If your water pressure exceeds 80 psi (552 kPa), you must install a pressure-kmiting valve. Contact a plumbing professional if you are uncertain how to check your water pressure.
- Do not install where water hammer conditions may occur. If water hammer conditions exist you must install a water hammer arrester. Contact a plumbing professional if you are uncertain how to check for this condition.
- Do not install on hot water supply lines. The maximum operating water temperature of this filter system is 100° F (38° C). Protect filter from freezing. Drain filter when temperatures drop below 33°F (0.6°C) Change the disposable filter cartridge every six months or sooner if you observe a noticeable reduction in water flow rate.
- Failure to replace the disposable filter cartridge at recommended intervals may lead to reduced filter performance and cracks in the filter housing, causing water leakage or flooding.
- This System has been tested according to NSF/ANSI 42, 53, 401, and P473 for the reduction of the substances listed below. The concentration of the indicated substances in water entering the system was reduced to a concentration less than or equal to the permissible limit for water leaving the system, as specified in NSF/ANSI 42, 53, 401, and P473
XWFE System Is °edified by IAPMO RAT against NSF/ANSI Standards 42. 53.401. and P473 for the reduction of claims specified on the performance data sheet and at lapmort.org.
CONSUMER SUPPORT
Caf6 Website
Have a question or need assistance with your appliance? Try the Café website 24 hours a day, any day of the year! You can also shop for more great Café products and take advantage of all our on-line support services designed for your convenience. In the US: cafeappliances.com In Canada: cafeappliances.ca
Register Your Appliance
Register your new appliance on-line at your convenience! Timely product registration will allow for enhanced communication and prompt service under the terms of your warranty, should the need arise. You may also mail in the pre-printed registration card included in the packing material. In the US: cafeappliances.com/register In Canada: cafeappliances.ca/registration
Schedule Service
Expert Cafe repair service is only one step away from your door. Get on-line and schedule your service at your convenience any day of the year. In the US: cafeappliances.com/service In Canada: cafeappliances.ca/service
Extended Warranties
Purchase a Café extended warranty and learn about special discounts that are available while your warranty is still in effect. You can purchase it on-line anytime. Café Service will still be there after your warranty expires. In the US: cafeappliances.com/extended-warranty In Canada: cafeappliances.ca/extended-warranty
Parts and Accessories
Individuals qualified to service their own appliances can have parts or accessories sent directly to their homes (VISA, MasterCard and Discover cards are accepted). Order on-line today 24 hours every day. In the US: cafeappliances.com/parts Instructions contained in this manual cover procedures to be performed by any user. Other servicing generally should be referred to qualified service personnel. Caution must be exercised, since improper servicing may cause unsafe operation. Customers in Canada should consult the yellow pages for the nearest Mabe service center, visit our website at cafeappliances.com/parts
Contact Us
If you are not satisfied with the service you receive from Café, contact us on our website with all the details including your phone number, or write to: In the US: General Manager, Customer Relations I Café Appliances, Appliance Park I Louisville, KY 40225 cafeappliances.com/contact In Canada: Director, Consumer Relations, Mabe Canada Inc. I Suite 310, 1 Factory Lane I Moncton, N.B. Ern 9M3 cafeappliances.ca/contact
Printed in United States

















NOTE: Commonwealth of Massachusetts Plumbing Codes 248CMR shall be adhered to. Saddle valves are illegal and use is not permitted in Massachusetts. Consult with your licensed plumber.
To complete the installation of the refrigerator, go back to Step 12 in Installing the Refrigerator.













![Lg French Door Refrigerator [lrfcs2503] Instruction Manual Lg French Door Refrigerator [lrfcs2503] Instruction Manual](https://static-data1.manualsee.com/1/img/383/16064/2020/12/LG-French-Door-Refrigerator-LRFCS2503.jpg)




