VisionLINE TAURUS-AU Slow Combustion Fireplace Slow Combustion Wood Fireplace

WOODFIRE COMPLIANCE LABEL
This appliance has been TESTED TO AS/NZS4013 for Hardwood by ASFT Report 20009 Date tested: FEBRUARY 2020
VisionLINE Taurus
Freestanding and Inbuilt
OVERALL AVERAGE EFFICIENCY
WHEN TESTED IN ACCORDANCE WITH AS/NZS 4012……61%
AVERAGE PARTICULATE EMISSION FACTOR
WHEN TESTED IN ACCORDANCE WITH AS/NZS 4013……1.3 G/KG
MAXIMUM AVERAGE HEAT OUTPUT ……….15.4 KW
CATALYTIC COMBUSTOR ……….NO
APPROVED FUEL ……………………………………………………………………BURN ONLY HARDWOOD WITH A MOISTURE
CONTENT LESS THEN 25% (dry basis)
Wetback – All Models ……………………………………………………………….Wetbacks are NOT approved option and must
Not be fitted
Manufactured By: …………………………………………………………………….Burning Technology – Stupkova – 952/18, Nova
Ulice, 77900, Olomouc – Czech Republic EU
INSTALLATIONS TO COMPLY WITH AS/NZS2918:2018 AND WILL REQUIRE A BUILDING CONSENT
IMPORTANT: Read all instructions carefully before starting installation. Failure to follow these instructions may result in a fire hazard and will void the warranty.
- Fig. 3,4,5 and Table 1 & 2 relate to installations with tested flue systems; as per AS/NZS 2918:2018 – Appendix F, with a ceiling angle between 0° – 30°inclusive.
- For installations with a ceiling angle greater than 30°, refer to Fig. 6 & 7 and AS/NZS 2918:2018 4.6.3(b)
- Ceiling Plate may vary in size depending on ceiling angle. Please specify ceiling pitch prior to ordering the ceiling plate.
WARNING
Fire Risk.
For use with solid wood fuel only.
Other fuels may over fire and generate poisonous gases (i.e. carbon monoxide).
WARNING
If the information in these instructions is not followed exactly, a fire could result causing property damage, personal injury, or death.
- Do not store or use gasoline or other flam-mable vapors and liquids in the vicinity of this or any other appliance.
- Do not over fire – If appliance or chimney connector glows, you are over firing. Over firing will void your warranty.
- Comply with all minimum clearances to combustibles as specified. Failure to comply may cause house fire.

The Taurus firebox weighs approx. 310kg including base.
To safety lift the unit onto the base for positioning, the unit should be stripped of as much weight as possible by removing all bricks, baffles and the door assembly. Page 17 contains information regarding brick removal and re-assembly.
The top door hinge should be marked for it’s location prior to removal so it can be re-assembled easily into it’s correct location. If the door doesn’t locate into the latch mechanism correctly adjustment is via the two bolts on the top hinge.
The VisionLINE Taurus may require an insulating Floor Protector depending on the installation type. It is tested and complies with the minimum Floor Protector requirements of AS/NZS 2918:2018. See below for Hearth specifications.
Note:
- The minimum Floor Protector sizes are specified in the clearance chart, see Table 1 & 2.
- A Floor Protector can include ceramic tiles with grouted joints fixed directly onto a wooden floor or a Steel panel or any other non combustible material laid directly onto a wooden floor.
- If installed directly onto a concrete slab, the concrete slab can be considered as the floor protector, but must maintain the minimum measurement listed.
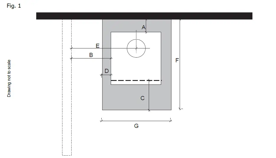
PARALLEL POSITIONING

| Using AU Default Flue kit (Solid 8” or Mesh) | TAURUS-AU | |
| A | Min. Clearance from firebox to rear wall | 450mm* |
| B | Min. Clearance from firebox to side wall | 475mm |
| C | Min. Distance from firebox opening to floor protector front | 600mm** |
| D | Min distance from firebox to floor protector side | 95mm |
| E | Min distance from centre of flue to side wall | 996mm |
| F | Depth of floor protector | 1040mm |
| G | Width of floor protector | 1230mm |
Hearth Thickness – 6mm thick hearth when unit is installed on optional raised wood storage base
* When optional rear heat shield is attached to the appliance, the rear wall clearance reduces to 200mm to the shield from a combustible wall.
If being installed against a fully non-combustible wall – 50mm spacing is recommended for servicing access.
** See FIG 3 on page 5




Please note: 300mm hearth projection min. when using optional wood storage base/pedestal
FIREBOX INSTALLATION
- If a separate floor protector is being used position now. Place the firebox on the floor protector that is at least 6mm thick to suit the minimum installation clearances. (See Fig 1,2 and 3).
- Systemically restrain the firebox and the floor protector to the floor.
WARNING
Fire Risk.
VisionLINE fireplaces disclaims any responsibility for, and the warranty will be voided by, the following actions:
- Installation and use of any damaged appliance.
- Modification of the appliance.
- Installation other than as instructed by VisonLINE fireplaces.
- Installation and/or use of any component part not approved by VisionLINE fireplaces.
- Operating appliance without fully assembling all components.
- Do NOT Over fire – If appliance or chimney connector glows, you are over firing.
Any such action that may cause a fire hazard.
Install Guide
Getting Started
Design and Installation Considerations
Consideration must be given to:
- Safety
- Convenience
- Traffic flow
- Chimney and chimney connector required
It is a good idea to plan your installation on paper, using exact measurements for clearances and floor protection, before actually beginning the installation. If you are not using an existing chimney, place the appliance Where there will be a clear passage for a factory-built listed chimney through the ceiling and roof.
We recommend that a qualified building inspector and your insurance company representative review your plans before and after install.ation.
If this appliance is in an area where children may be near it is recommended that you purchase a decorative barrier to go in front of the app’liance. Remember to always keep children away while it is operating and do not let anyone operate this appliance unless they are familiar with these operating instructions.
CAUTION
- Installation MUST comply with local, regional,
- state and national codes and regulations. Consult insurance carrier, local building, fire officials or authorities having jurisdiction about restrictions, installation inspection, and permits.
WARNING
Asphyxiation Risk. :
- Do NOT connect this appliance to a chimney flue servicing another appliance.
- Do NOT connect to any air distribution duct or system.
May allow flue gases to enter the house.
NOTICE: VISIONLINE FIREPLACES ASSUMES
NO RESPONSIBILITY FOR THE
IMPROPER PERFORMANCE OF THE
APPLIANCE SYSTEM CAUSED BY:
- Inadequate draft due to environmental conditions
- Down drafts
- Tight sealing construction of the structure
- Mechanical exhausting devices
- Over drafting caused by excessive chimney heights
- Ideal performance is with height of chimney between 14-16 feet (4.26-4.88rn) measured from the base of the appliance.
Fire Safety
To provide reasonable fire safety, the following should be given serious consideration:
- Install at least one smoke detector on each floor of your home to ensure your safety. They should be located away from the heating appliance and close to the sleeping areas. Follow the smoke detector manufacturer’s placement and installation instructions, and be sure to maintain regularly.
- A conveniently located Class A fire extinguisher to contend with small fires resulting from burning embers.
- A CO detector should be installed in the room with the appliance.
- A practiced evacuation plan, consisting of at least two escape routes.
- A plan to deal with a chimney fire as follows:
In the event of a chimney fire:- Evacuate the house immediately
- Notify fire department.
Negative Pressure
WARNING
Asp,hyxiation Risk.
- Negative pressure can cause spillage of combustion fumes, soot and carbon monoxide .
- Appliance needs to draft properly for safety.
Negative pressure results from the imbalance of air available for the appllance to operate properly. It can be strongest in lower levels of the house.
Causes include:
Exhaust fans (kitchen, bath, etc.)
Range hoods
Combustion air requirements for furnaces, water appliances and other combustion appliances
Clothes dryers
- Location of return-air vents to fμrnace or air conditioning
- Imbalances of the HVAC air handling system
- Upper level air leaks such as:
- Recessed lighting
- Attic ha1ch
- Duct leaks
To minimize the effects of negative air pressure:
- Install optional outside air kit with the intake facing prevailing winds during the heating season
- Ensure adequate outdoor air for all combustion appliances and exhaust equipment
- Ensure furnace and air conditioning return vents are not located in the immediate vicinity of the appliance
- Avoid installing the appliance near doors, walkways or small isolated spaces
- Recessed lighting should be a “sealed can” design
- Attic hatches weather stripped or sealed
- Attic mounted duct work and air handler joints and seams taped or sealed
- Basement installations should be avoided
WARNING
Fire Risk.
VisionLINE fireplaces disclaims any responsibility for, and the warranty will be voided by, the following actions:
- Installation and use of any damaged appliance.
- Modification of the appliance.
- Installation other than as instructed by VisionLINE fireplaces.
- Installation and/or use of any component part not approved by VisionLINE fireplaces.
- Operating appliance without fully assembling all components.
- Operating appliance without legs attached (if supplied with appliance).
- Do NOT Over fire – If appliance or chimney connector glows, you are over firing.
Any such action that may cause a fire hazard.
Tools And Supplies Needed
Before beginning the installation be sure the following tools and building supplies are available:
- Reciprocating saw
- Framing material
- Pliers
- High temp caulking material
- Hammer
- Gloves
- Phillips screwdriver
- Framing square
- Flat blade screwdriver
- Electric drill and bits
- Plumb line
- Safety glasses
- Level
- Tape measure
- Misc. screws and nails 10mm socket or wrench
1/2-3/4 in. length, #6 or #8 self-drilling screws
Inspection of Appliance and Components
- Remove appliance and components from packaging and inspect for damage.
- Report to your dealer any parts damaged in shipment.
- Read all the instructions before starting the installation. Follow these instructions carefully during the installation to ensure maximum safety and benefit.
WARNING
Fire Risk.
Inspect appliance and components for damage. Damaged parts may impair safe operation.
- Do NOT install damaged components.
- Do NOT install incomplete components.
- Do NOT install substitute components. Report damaged parts to dealer.
Install Checklist
ATTENTION INSTALLER
Follow this Standard Work Checklist
This standard work checklist is to be used by the installer in conjuction with, not istead of, the instructions contained in this installation manual.
- Customer:
- Date Installe: Lot__/____Address:____
- Location of Appliance installer
- Dealer / Distributor Phone #:___________Serial #:
- Model:
WARNING! Risk of Fire or Exposion! Failure to_______________________________________________________________install appliance according to these instruction can lead to a fire____________________or explosion.
Appliance Install
Verified clearances to combustibles.
Appliance is leveled and connector is secured to appliance.
Hearth extension size/height decided.
Outside air kit installed.
Floor protection requirements have been met.
If appliance is connected to a masonry chimney, it should be cleaned and inspected by a professional. If installed to a factory built metal chimney, the chimney must be installed according to the manufacturer’s instructions and clearances.
Chimney
Chimney configuration complies with diagrams.
Chimney installed, locked and secured in place with proper clearance. Chimney meets recommended height requirements (14-16 feet). Roof flashing installed and sealed.
Terminations installed and sealed.
Clearances
Combustible materials not installed in non-combustible areas.
Verified all clearances meet installation manual requirements.
Mantels and wall projections comply with installation manual requirements. Protective hearth strips and hearth extension installed per manual requirements.
Appliance Setup
All packaging and protective materials removed.
Firebrick, baffle and ceramic blanket installed correctly.
All labels have been removed from the door.
All packaging materials are removed from inside/under the appliance.
Manual bag and all of its contents are removed from inside/under the appliance and given to the party responsible for use and operation.
VisionLINE fireplaces recommends the following:
- Photographing the installation and copying this checklist for your file.
- That this checklist remain visible at all times on the appliance until the installtion is complete.
Comments: Further description of the issues, who is responsible (Installer/Builder/Other Trades, etc.) and corrective action needed: Comments communicated to party responsible ____________________________ by _____________________ on ___________
GENERAL INSTRUCTIONS FOR FLUE SYSTEM
- Flue pipe installed crirnp/narrow end down
- Outer casings installed crimped/narrow end up. (Critical when exposed above the roof)
- Inner casings – direction not critical
- Flue pipes – seal all joints including firebox spi,got. – fix with a minimum of 3 stainless steel rivets
- Flue pipe spacers – affix to flue pipe
- Flue system termination point – Refer to AS/NZS 2918:2018 4.9.1 .
- Flue pipe shall extend not less than 4.6m above top of the floor protector as per AS/NZS 2918:2018 4.9.1(a)
- Fac;ade or chase systems – same rule applies as above.
UNIT IS APPROVED WITH EITHER MESH OR SOLID 8″ OUTER SKIN
Note: These instructions apply to 150mm diameter flue pipe systems as tested to
AS/NZS 2918:2018
- Either locate the appliance in position or by measuring at the ceiling mark the flue pipe c,entre position. Check that the outer casing is unobstructed through the attic space or roof area.
- Spike the centre with a nail. Transfer this position to the next surface above. Plumb bob/laser.
- Cut out the ceiling penetration hole – square or rectangle – short axis equals outer casiing diameter plus 50mm, long axis as required. See Table 5. Perform the same at the roof penetration.
- Frame out the hole with minimum 75 x 50 timber or as required for roofing material. Minimum requirement at roof penetration see NZ Building Code E2 Acceptable Solution (from 01 /07/05).
- Install the outer casing so that :-
- lower end is flush with the underside of the ceiling material and
- with the addition of metal “L” brackets, affix to the outer casing at 90 degrees secure the outer casing centrally to the ceiling and roof nags. Alternatively substitute the “L” brackets for 25mm thick non heat sensitive packers. Secure the outer casing through the packers with horizontal fixings to the nags. Refer to the General Instruction for termination height.
The option of outer casing slips to be taken into account.
- Flash the outer casing to the roof material with the appropriate approved flashing.
- If using an outer/inner casing combination, now install the inner casing ensuring it extends a minimum 200mm above the high side of the roof penetration. If not using a combination see ’11 ‘ below.
- Refer to Firebox Installation, points 1 & 2.
- Prepare the ceiling plate and place upside down over the flue spigot.
- Install the flue pipes by preferred method – either up or down the outer casing. Affix each length per the notes in General Instructions (above). Extend the flue pipe above the outer casing to suit the casing cover/cowl assembly.
- If the inner casing has not been installed, install now. Refer to 7 above for minimum height.
- Install the cowl assembly, i.e. Top spacer, casing cover and cowl.
- Position and secure the ceiling plate with the screws and spacers.
- Wipe the flue pipe to remove finger marks.
- If flue offset is required, refer to AS/NZS 2918:2018 4.1
DEFAULT 6″ FLUE KIT
with mesh and solid decorative flue
INSTALLATION INSTRUCTIONS
For connecting into a standard installation:
The following drawing is meant as a guide only. Your wood heater must be installed by a qualified person whose work conforms with local council regulations, Australian/New Zealand standards & manufacturer’s recommendations.
VisionLINE fireplaces recommends using either VisionLINE Default flue kits or VisionLINE AIR insulated flue kits.
MINIMUM HEIGHT OF FLUE SYSTEM EXIT

Installing The Flue
The flue seats over the flue starter spigot, the flue crimp will slide down and rest in the lower channel. Friction fitment secures the flue on the spigot, no sealant required

- Lower channel
- Flue seated correctly.
Remove crimp if connection is slack or not fitting tight against the spigot.
Please Note – Flue starter spigot removed from unit for demonstration purposes only, removal of this spigot is not required during flue installation.
AS/NZS 2918:2018 General Notes
WARNING: THE APPLIANCE AND FLUE SYSTEM SHALL BE INSTALLED IN ACCORDANCE WITH AS/NZS 2918 AND THE APPROPRIATE REQUIREMENTS OF THE RELEVANT BUILDING CODE OR CODES.
WARNING: APPLIANCES INSTALLED IN ACCORDANCE WITH THIS STANDARD SHALL COMPLY WITH THE REQUIREMENTS OF AS/NZS 4013 WHERE REQUIRED BY THE REGULATORY AUTHORITY, I.E. THE APPLIANCE SHALL BE IDENTIFIABLE BY A COMPLIANCE PLATE WITH THE MARKING ‘TESTED TO AS/NZS 4013’.
ANY MODIFICATION OF THE APPLIANCE THAT HAS NOT BEEN APPROVED IN WRITING BY THE TESTING AUTHORITY IS CONSIDERED TO BE IN BREACH OF THE APPROVAL GRANTED FOR COMPLIANCE WITH AS/NZS 4013.
CAUTION: MIXING OF APPLIANCE OR FLUE SYSTEM COMPONENTS FROM DIFFERENT SOURCES OR MODIFYING THE DIMENSIONAL SPECIFICATION OF COMPONENTS MAY RESULT IN HAZARDOUS CONDITIONS. WHERE SUCH ACTION IS CONSIDERED, THE MANUFACTURER SHOULD BE CONSULTED IN THE FIRST INSTANCE.
CAUTION: THIS APPLIANCE SHOULD NOT BE OPERATED WITH CRACKED AND BROKEN COMPONENTS, e.g. GLASS PANELS OR CERAMIC TILES, MAY RENDER THE INSTALLATION UNSAFE.
WARNING: ANY MODIFICATION OF THE APPLIANCE THAT HAS NOT BEEN APPROVED IN WRITING BY THE TESTING AUTHORITY IS CONSIDERED AS BREACHING AS/NZS 4013.
WARNING: DO NOT USE FLAMMABLE LIQUIDS OR AEROSOLS TO START OR REKINDLE THE FIRE.
WARNING: DO NOT USE FLAMMABLE LIQUIDS OR AEROSOLS IN THE VICINITY OF THIS APPLIANCE WHEN ITS OPERATING.
WARNING: DO NOT STORE FUEL WITHIN HEATER INSTALLATION CLEARANCES.
WARNING: OPEN AIR CONTROLS AND DAMPER WHEN FITTED BEFORE OPENING FIRING DOOR.
WARNING: FOR OPTIMUM PERFORMANCE FUEL MUST BE LOADED SO THE LOGS LAY
“FRONT TO REAR” IN PREFERENCE TO LAYING ACROSS THE WIDTH OF THE FIREBOX. SPACES SHOULD BE LEFT BETWEEN THE LOGS TO ENABLE OXYGEN TO GET TO AS MUCH OF THE SURFACE OF THE FUEL AS POSSIBLE.
CAUTION: THIS APPLIANCE SHOULD BE MAINTAINED AND OPERATED AT ALL TIMES IN ACCORDANCE WITH THESE INSTRUCTIONS.
CAUTION: THE USE OF SOME TYPES OF PRESERVATIVE-TREATED WOOD AS A FUEL CAN BE HAZARDOUS.
Before lighting the first fire
If the stove was stored in a cold environment (car, store, etc.) before the first lighting, keep it at room temperature for about 3 hours to equalise moisture condensation and surface temperature of the parts. Otherwise, there is a risk of damage to the glass or lining of the stove.
During the first lighting, the paint coating will go through a curing process. The stove paint will emit an odor for at least 4 hours as it adheres to the steel. Ensure to ventilate the room during this time.
Lighting your fire
- Ensure the Air Slide is in the open or high position. (pulled out fully towards you.
In firebox lay your fire lighters 10 to centimetres apart. Do not use newspaper as a fire lighter. - Add a mixture of soft wood and hardwood kindling in a criss cross pattern above the firelighters. Softwood kindling allows for fire to light quicker and burn hotter, mixing in some kindling size hardwood helps the coals retain more heat for longer.
- Light fire with match or gas lighter, when fire is ablaze close the door, but do not latch the door. Leave for 5-10 minutes maximum and do not leave unattended.
- Load pieces of hardwood that are no wider than a drink can in a criss cross pattern.
- Latch the door and leave latched for 30 minutes. If your heater has a fan, do not run the fan for at least 45 minutes.
- After 30 minutes add the large pieces of hardwood. These pieces should be no bigger than a loaf of bread. Close and latch door after loading.
- After 45 minutes you can adjust the air slide to slow fire down and find your comfort level. If you have a fan fitted you can now turn it on.
If too little wood and firelighters are used during lighting or the pieces are too large, the optimal operating temperature will not be reached. This can lead to poor combustion, high soot formation and the extinguishing of the fire after closing the door.
Slow combustion fireplaces with wide door openings are prone to smoke spillage occassionally when the door is opened during lighting and reloading. This occurs due to a pressure imbalance when opening the door as cool air rushes in.
Avoid opening the door when there is visible smoke/flame to reduce this symptom. It is good practice to only reload when fuel is at coaling phase.
Tips on choosing firewood
How long a tree has been felled or dead for does not indicate how dry the wood is. The best way to dry wood is to split it and expose the inner core allowing the sun to dry the wood naturally.
Good wood merchants will split the wood for you, but may not season it for you.
The amount of you pay for your wood or the appearance of the wood does not justify how dry the wood is. The only way to know how dry your wood is, is to use a moisture meter measuring from the inner core after splitting the piece of wood you are testing.
Only burn wood under 20% moisture.
Anything over 20% and your wood heater will not work efficiently. The energy from the fire will be used to reduce moisture in your wood and not produce heat for your house.
Store your wood for at least 12 months after your have purchased it. Optimum moisture content is between 15-18%. Wood under 15% will have a shorter overall burn time than wood around 20%.
Never burn treated wood or painted wood.
Combustion air
The 3 elements required for fire are Fuel, Heat and Oxygen. When a fire is started within a slow combustion heater, the heat rises in the flue system creating a vacuum within the firebox. This vacuum creates positive pressure or ‘draw’ which pulls oxygen in to replace itself and create the balance of air to keep the fire running.
In tightly sealed homes, fresh air supply to the unit may be insufficient due to an air pressure imbalance which can affect the operation of the stove.
This stove has the possibility of connecting directly to outside the envelope of the home to supply combustion air. This is via the 99mm diameter central air duct neck located on the rear of the unit. This can be relocated to the base of the unit for outside air connection through the sub floor.
To ensure a central air supply, the duct must not be longer than 3 m and have too many bends. The minimum duct diameter is 80 mm.
The central air duct must be led outdoors or into a well-ventilated room inside the building (cellar, utility room, etc.).
VisionLINE fireplaces recommends the VisionLINE AIR insulated flue system to create a balanced flue ensuring adequate air supply balance.
Unit Operation
Over firing the unit and continuously running the unit on high with an overloaded firebox for extended periods of time can damage the unit.
This picture shows the firebox fully loaded.
Note the red line which indicates a gap between the loaded fuel and the baffle top and the clear path to the tertiary air tube at the rear.
Loading fuel which touches the roof baffle or the rear tertiary air tube is considered to be overloaded and can result in overfiring of the product causing damage to the unit and voiding the warranty.
Cleaning and Inspection
- The stove and flue pipes must be inspected once a year- or more frequently, for example, when the chimney is cleaned to check for any soot and to clean them if needed.
- The chimney needs to be cleaned regularly by a chimney sweeper.
- Before the heating season, thoroughly clean the entire fireplace from ash and soot with a brush or a vacuum cleaner. Ensure that ash fallen between the fireplace walls and the grate is removed while a small gap is left to allow the materials to dilate during long-term use in the heating season.
- Never use abrasive products to clean the glass or metal parts as this may cause damage.
The glass can only be cleaned if the stove is cold. - The surface of the stove can be cleaned with a damp cloth or if necessary, with a mild soap solution.
The fireplace can be accessed for cleaning, please follow the below procedure


Unit assembly process continued.


Installing Optional Rear Fans
Optional fans can be installed in two locations depending on how the unit is being installed, the lower location can be used when the unit is being installed on the optional base. If you wish to install the unit on raised hearth, the higher fan mounting location can be used.


Installing Optional Rear Fans
Optional fans require a standard double 240v GPO situated on the wall directly behind the fireplace.
Optional fans should not be used within 45 minutes of starting the fireplace, this allows the firebox to warm up prior to heat being pulled from the heat exchanger. Using the optional fans prior will reduce the heat output of the fire and delay the warm up process dramatically.

Please Note – Fans should be switched off when the fireplace door is opened Failure to do so may result in smoke being blown into the room.
VisionLINE Wood Stove Warranty
VisionLINE extends the following manufacturer’s warranty for wood hearth appliances that are purchased from a VisionLINE authorized dealer.
VisionLINE warrants to the original owner of the VisionLINE appliance at the site of installation, and to any transferee taking ownership of the appliance at the site of installation within two years following the date of original purchase, that the VisionLINE appliance will be free from defects in materials and workmanship at the time of manufacture.
After installation, if covered components manufactured by VisionLINE are found to be defective in materials or workmanship during the applicable warranty period, VisionLINE will, at its option, repair or replace the covered components. VisionLINE, at its own discretion, may fully discharge all of its obligations under this manufacturer’s warranty by replacing the product itself or refunding the verified purchase price of the product itself. The maximum amount recoverable under this warranty is limited to the purchase price of the product. This warranty is subject to conditions, exclusions and limitations as described below.
Warranty coverage begins on the date of original purchase. In the case of new home construction, coverage under this manufacturer’s warranty begins on the date of first occupancy of the dwelling or six months after the sale of the product by an independent, authorized VisionLINE dealer/ distributor, whichever occurs earlier. The warranty period for this manufacturer’s warranty shall commence no later than 12 months following the date of product shipment from VisionLINE AU, regardless of the installation or occupancy date.
The term “Limited Lifetime” in the table below is defined as: 10 years from the beginning date of warranty coverage for wood appliances. These time periods reflect the minimum expected useful lives of the designated components under normal operating conditions.
10 year structural warranty on the firebox construction including weldment.
5 year warranty on t air tube and baffle. (labour for 3 years)
2 year warranty on fans and electrical components. (labour for 1 year)
OTHER RIGHTS
The VisionLINE manufacturer’s warranty is in addition to other rights and remedies that you may have under Australian law.
Our goods come with guarantees that cannot be excluded under the Australian Consumer Law.You are entitled to a replacement or refund for a major failure and for compensation for any other reasonably foreseeable loss or damage. You are also entitled to have the goods repaired or replaced if the goods fail to be of acceptable quality and the failure does not amount to a major failure.
WARRANTY CONDITIONS AND EXCLUSIONS:
- The VisionLINE manufacturer’s warranty only covers VisoinLINE appliances that are purchased through a VisionLINE authorized dealer or distributor. A list of VisionLINE authorized dealers is available on the VisionLINE branded websites.
- This warranty is only valid while the VisionLINE appliance remains at the site of original installation.
WARRANTY EXCLUSIONS:
This VisionLINE manufacturer’s warranty does not cover the following:
- Changes in surface finishes as a result of normal use. As a heating appliance, some changes in color of interior and exterior surface finishes may occur. This is not a flaw and is not covered under warranty.
- Damage to printed, plated, or enamelled surfaces caused by fingerprints, accidents, misuse, scratches, melted items, or other external sources and residues left on the plated surfaces from the use of abrasive cleaners or polishes.
- Repair or replacement of parts that are subject to normal wear and tear during the warranty period. These parts include: paint, gaskets, firebricks, grates and the discoloration of glass.
- Minor expansion, contraction, or movement of certain parts causing noise. These conditions are normal and complaints related to this noise are not covered by this warranty.
- Damages resulting from: (1) failure toinstall, operate, or maintain the appliace in accordance with the installation instructions, operating instructions, and listing agent identification label furnished with the appliance; (2) failure to install the appliance in accordance with local building codes; (3) shipping or improper handling; (4) improper operation, abuse, misuse, continued operation with damaged, corroded or failed components, accident, or improperly/incorrectly performed repairs; (5) environmental conditions, inadequate ventilation, negative pressure, or drafting caused by tightly sealed constructions, insufficient make-up air supply, or handling devices such as exhaust fans or forced air furnaces or other such causes; (6) use of fuels other than those specified in the operating instructions; (7) installation or use of components not supplied with the appliance or any other components not expressly authorized and approved by VisionLINE (8) modification of the appliance not expressly authorized and approved by VisionLINE in writing; and/or (9) interruptions or fluctuations of electrical power supply to the appliance.
- Non VisionLINE venting components, hearth components or other accessories used in conjunction with the appliance.
- Any part of a pre-existing fireplace system in which an insert appliance is installed.
- Removal, installation, reinstallation, set up or any other costs associated with a claim including travel and shipping charges for parts.
- VisionLINE’s obligation under this warranty does not extend to the appliance’s capability to heat the desired space. Information is provided to assist the consumer and the dealer in selecting the proper appliance for the application. Consideration must be given to appliance location and configuration, environmental conditions, insulation and air tightness of the structure.
This warranty is void if:
- The appliance has been over-fired or operated in atmospheres contaminated by chlorine, fluorine, or other damaging chemicals. Over-firing can be identified by, but not limited to, warped plates or tubes, rust coloured cast iron, bubbling, cracking and discoloration of steel finishes.
- The appliance is subjected to prolonged periods of dampness or condensation.
- There is any damage to the appliance or other components due to water or weather damage which is the result of, but not limited to, improper chimney or venting installation.
HOW TO CLAIM
- To make a claim against this warranty, contact your local distributor during regular business hours. See addresses below for a dealer nearest you. (Vic) Pty Ltd ACN 005 872 159 (Jetmaster VIC).
- Additional service fees may apply if you are seeking warranty service from a dealer other than the dealer from whom you originally purchased the product.
- Check with Jetmaster VIC in advance for any costs to you when arranging a warranty call. Travel and shipping charges for parts are not covered by this manufacturers’ warranty.
- VisionLINE and Jetmaster VIC will assess your claim. VisionLINE or Jetmaster VIC may need to inspect the product as part of the assessment of your claim. If the product requires inspection, VisionLINE or Jetmaster will discuss with you the best way for this to occur.
- To make a claim under this manufacturer’s warranty, you must be able to prove when you purchased the product. The easiest way to do this is through your original proof of purchase, for example your invoice or receipt. However, if you do not have your original proof
of purchase VisionLINE or Jetmaster may accept other evidence of the date of purchase.
PO Box 5051 Burnley, 3121
Phone: (03) 9429 5573
Email: [email protected]
Web: visionlinefire.com.au




![Ortech Fireplaces User Manual [ledfp-3-43, Ledfp-3-50 & Ledfp-3-60] Ortech Fireplaces User Manual [ledfp-3-43, Ledfp-3-50 & Ledfp-3-60]](https://static-data1.manualsee.com/1/img/117/67826/2021/02/1590697842ledfp-3-43_50_60.jpg)







![Pleasant Hearth Electric Fireplace User Manual [model: 24-900-002] Pleasant Hearth Electric Fireplace User Manual [model: 24-900-002]](https://static-data1.manualsee.com/1/img/253/68707/2021/02/Pleasant-Hearth-electric-fireplace-User-Manual-Model-24-900-002.jpg)


