Peerless-AV XHB754 4K UHD Xtreme High Bright LED Outdoor Display Installation Guide

Electrical Code
Note: To the display system installer: This reminder is provided to call attention to Article 820-44 of the National
Electric Code that provides guidelines for proper grounding and, in particular, specifies that the cable ground shall be connected to the grounding system of the facility. Outlet shall be installed near the equipment and shall be easily accessib
Note: Installation shall incorporate UL Listed external surge protection rated 2500 Vpk or less, for 150 to 300 Vac
mains, installed in accordance with Article 285 of ANSI/NFPA 70 or applicable local codes.
Power Source
The display must be connected to a mains socket outlet with a protective grounding connection.
The mains plug is used as the disconnect device and shall remain readily accessible.
Electrical installation shall be in accordance with the applicable parts of Chapter 8 of ANSI/NFPA 70.
An outdoor antenna should not be located near overhead electrical lines or any electrical circuits.
If an outside antenna is connected to the receiver, confirm that the antenna system is grounded to protect against voltage surges and built up static charges. Section 810 of the National Electric Code, ANSI/NFPA No 70-1984, provides information with respect to proper grounding for the mast and supporting structure, grounding of the lead-in wire to an antenna discharge unit, size of grounding connectors, location of antenna discharge unit, connection to grounding electrodes and requirements for the grounding electrode.
This display operates on 100-240 volts 50-60 Hz, AC current. Never connect the display to direct current or anything other than the specified voltage.
To prevent electric shock from the display, do not use with an extension cord, receptacle, or other outlet unless the blades and ground terminal can be fully inserted to prevent blade exposure.
All secondary lines must be routed through grounded conduit and kept separate from AC line.
FCC CAUTION
To assure continued compliance and possible undesirable interference, ferrite cores may be used when connecting this display to video equipment; maintain at least 400mm (15.75 inches) spacing to other peripheral devices.
FCC STATEMENT
This equipment has been tested and found to comply with the limits for a Class A digital device, pursuant to Part 15 of the FCC Rule. These limits are designed to provide reasonable protection against harmful interference in a residential installation. This equipment generates, uses and can radiate radio frequency energy and, if not installed and used in accordance with these instructions, may cause harmful interference to radio communications; however, there is no guarantee that interference will not occur in a particular installation. If this equipment does cause harmful interference to radio or television reception, which can be determined by turning the equipment off and on, the user is encouraged to try to correct the interference by one or more of the following measures:
- Reorient or relocate the receiving antenna.
- Increase the separation between the equipment and receiver.
- Connect the equipment into an outlet on a circuit different from that to which the receiver is connected.
- Consult the dealer or an experienced radio/display technician for help.
This device complies with Part 15 of the FCC Rules. Operation is subject to the following two conditions:
- This device may not cause harmful interference.
- This device must accept any interference received, including interference that may cause undesired operation.
Relevant Information
Record your display’s model and serial number here for future reference. Keep this user manual in an accessible location in the event service is required. Note: Your display’s serial number can be found on the box, underneath the rear cover plate, and in the Setup Menu under Peerless-AV Technical Support.
Model Number
Serial Number
Read before operating equipment
Thank you for purchasing our product. Before using it, please read this user guide carefully and follow the instructions for safe operation. Please keep this manual for future reference and always include it when transferring or transporting this product to a different location.
WARNING
In case of emergency such as fire or electric shock caused by the product, immediately contact 911 or proper emergency police/fire service agencies in your country.
To reduce the risk of electric shock or fire, heed the following:
- In case of product malfunction or unusual events such as electrical burning smell, smoke, or loss of content signals due to internal overheating, immediately turn off, unplug the electrical cord and contact the manufacturer.
- Do not disassemble, modify or service product in any way other than that contained in this Any unauthorized modifications made to the product automatically void product warranty.
- Do not touch antenna lines or wires, electrical cables or plugs when lightning or thunder is present or with wet
- Do not submerge in
- Do not destroy, process, or place close to any heat
- Do not install near poisonous gas or chemically unstable
- Do not install near strong magnetic or electrical current
- Do not install the product in unstable locations or near moving objects, constantly vibrating equipment, or uneven
- Do not leave any fire source, such as candles, close to or on the
- Do not operate the product if it has been dropped or Severe physical impact to the product may cause components to fall out of place within and break.
- Do not bend or twist electrical cords, electrical plugs, cables, or wires with excessive
- Do not block ventilation slots or place any heavy object on the
- Use properly rated electrical
- Do not use any electrical sockets or power strips with many other devices jointly plugged Use a single, directly dedicated and rated GFCI electrical outlet for the product for safe operation.
- Do not move or transport with any cables (electrical, content connectivity) plugged in to the source
- Always connect the electrical plug firmly and When disconnecting any cables, always pull on the plug and not the cord.
- Always leave the power off when plugging or unplugging the electrical cords or connection
- Do not defeat the safety purpose of the polarized or grounding type electrical plug. A polarized plug has two blades with one wider than the other. A grounding type plug has two blades and a third grounding The wide blade or the third prong are provided for your safety. If the provided plug does not fit into your outlet, consult an electrician for replacement of the obsolete outlet.
- Protect the electrical cord from being walked on or pinched particularly at plugs, convenience receptacles, and the point where they exit from the apparatus.
WARNING
- Never apply pressure to the exterior of the LCD
- If monitor or glass is broken, do not come in contact with the liquid crystal and handle with
- Do not climb on the
- Do not install within five feet from a body of
- Do not use if ambient air temperature exceeds the operating limits; Maximum operating temperature is -31°F ~ 140°F (-35°C ~ 60°C).
- High solar loads may require reducing maximum operation temperature up to 14°F or 7.8°C to reduce the possibility of temporary screen artifacts.
- Do not install in enclosure or recessed cavity with less than 2 inches of airflow around the Air inside fully encased display must be ventilated. Installations within any third party enclosure without written authorization from Peerless-AV are not covered by the Peerless-AV Limited Warranty, nor any extended warranty.
- When installing in an enclosure or recessed cavity, the internal temperatures of those locations must not exceed the maximum operating temperatures as listed
- The product is to be secured to building before
- Product must be carried and supported by at least two
- Periodically clean dust off the electrical plug to keep it clean and dry, ensuring proper and safe
- Only use attachments/accessories specified by the
Tools Needed for Assembly.
CAUTION
To avoid image retention/burn-in on the LCD screen, do not allow static images to display for longer than 20 minutes at a time. Image retention is considered improper use of an LCD and is not covered by the Peerless-AV Limited Warranty, nor any extended warranty.
Tools Needed for Assembly.
Installation Locations
Follow local codes for environmental requirements
If installed in extremely hot locations, ensure ambient temperature does not exceed operating temperature of the display. Be aware that sun exposure time over
3 hours can elevate the display’s internal temperature by an additional 54°F (30°C) over ambient temperature.
The end user/installer must note the potential for temperature-increase based on high thermal/solar load, which needs to be addressed with additional cooling measures. Please contact Peerless-AV for design consultation in such cases.
If installed in extremely cold locations, the end user/ installer must note the potential for temperature- decrease based on environmental conditions and note that until display reaches operating temperature, display may experience performance lag
Operating Parameters
Use this graph to estimate solar load and its effect on maximum safe ambient temperature for the display
Kiosks will incur an additional 9°F (5°C) minimum temperature rise with the disclamer that insufficent airflow, high surface area to volume ratio, additional internal electronics, and dark exterior colors will incur a higher temperature rise. Peerless-AV Engineering should be consulted in these situations.
Peerless-AV Engineering must be consulted before placing the display into any enclosure not developed by Peerless-AV. Peerless-AV Engineering management must approve this installation solution to support the native warranty of the display
Display Orientation
Display can be oriented in landscape or portrait. Rotate display 90° clockwise to change to portrait orientation. Rotate display 90° counterclockwise to switch back to landscape orientation. When in landscape orientation, the sensor window will be on the bottom left of the display. When in portrait orientation, the sensor window will be on the top left of the display.
Do not block the sensor window. If window is blocked, consult with Peerless-AV for proper IR extender (included with product) and ALS extender usage (sold separately).
Prepare the Display for Mounting
Install cords prior to mounting your display. Input panel may be obstructed once the display is mounted.
A mounting solution is sold separately. Contact your Peerless-AV representative for an outdoor rated mounting solution for your particular application.
For your safety, only install an outdoor-rated mount that is suitable for the application and supports the weight of the display. When mounting a display outdoors, use proper environmentally rated mounts to ensure longevity in harsh environments.
Examine the chart below to determine the mounting specifications for your display:
| Display Size | Mounting Hole Pattern | Mounting Screw Size |
| 75″ | VESA 1400 x 300mm VESA 1400 x 600mm | Four M8 x 16mm maximum thread length |
| Display Size | A | B | C | D | E |
| 75″ | 55.12″ (1400mm) | 23.62″ (600mm) | 33.93″ (862mm) | 11.81″ (300mm) | 5.36″ (136mm) |
Removing Handles (Optional)
Landscape Mounting
Landscape oriented displays use a 1400mm x 600mm VESA mounting pattern on the raised portion of the rear surface. Mounting brackets must not block airflow of intake fans. When installing mounting brackets, use a spacer with a minimum height of 0.75″ (19mm) if the mounting brackets cover a portion of the intake fa
Landscape Mounting
Landscape oriented displays use a 1400mm x 600mm VESA mounting pattern on the raised portion of the rear surface. Mounting brackets must not block airflow of intake fans. When installing mounting brackets, use a spacer with a minimum height of 0.75″ (19mm) if the mounting brackets cover a portion of the intake fans.
Maximum Tilt
For portrait or landscape oriented displays, the maximum downward tilt is 15°. For other orientations, consult Peerless-AV
Minimum Airflow Spacing
Consult Peerless-AV for minimum spacing when installing two or more adjacent displays. Note: These are minimum requirements. Internal heat sources due to additional equipment, external heat sources and high solar loads may require additional spacing and airflow. Please consult Peerless-AV for additional guidance.
| W | X1 | X2 | Y1 | Y2 | |
| 4″ (102mm) | 2″ (51mm) | 2″ (51mm) | 4″ (102mm) | 2″ (51mm) | |
![]() | |||||
Minimum Airflow Spacing
Consult Peerless-AV for minimum spacing when installing two or more adjacent displays. Note: These are minimum requirements. Internal heat sources due to additional equipment, external heat sources and high solar loads may require additional spacing and airflow. Please consult Peerless-AV for additional guidance.
| W | X | Y1 | Y2 |
| 8″ (203mm) | 2″ (51mm) | 4″ (102mm) | 2″ (51mm) |
Airflow, Venting and Heat Dissipation
Consult Peerless-AV when installing two or more adjacent displays. Note: These are minimum requirements.
Internal heat sources due to additional equipment, external heat sources and high solar loads may require additional spacing and airflow. Please consult Peerless-AV for additional guidance.
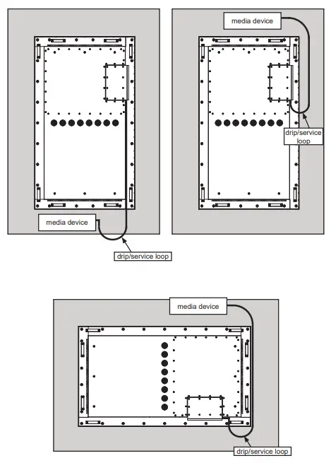
Routing Cables in the Display
Use only high-quality, shielded, grounded cables
Replacing Cord Cover
1. Run power and signal cords; separate cables to prevent unwanted interference (see image 1 below).
2. Replace the rear cover plate using the ten screws on the rear cover plate using drill with torx bitor torx screwdriver to secure. Ensure the rear cover plate is fully compressed to the back of the display
Cleaning the Screen
Do not rub or strike the screen with anything hard as this may scratch, mark, or even damage the screen permanently. Unplug the power cord before cleaning the screen. Do not spray water on the display in excess of 100kPa (14.5 PSI)
| ENG Warranty | ESP | Garantía | FRN | Garantie | DEU Garantie | NEL Garantie |
| ITL Garanzia | ČEŠ | Záruka | SLK | Záruka | POR Garantia | TÜR Garanti̇ |



































